СКАНДИНАВСЬКИЙ СТИЛЬ В ІНТЕР’ЄРІ КВАРТИРИ В ЖК АКАДЕМ КВАРТАЛ
Оформлення квартири або дизайн будинку всередині у скандинавському стилі - це завжди про функціональність, простоту, зрозумілість та наближеність до природи.
На таких об’єктах в основі покладено:
На таких об’єктах в основі покладено:
- багато світла та простору;
- функціональність в кожному рішенні - немає зайвих елементів та незрозумілих ідей;
- нейтральна колористика (бежевий, світло-сірий, білий та його відтінки, теплі кольори дерева) з невеликою кількістю акцентів;
- натуральні матеріали - камінь, дерево, льон, бавовна, кераміка;
- лаконічність при виборі меблів, сантехніки, декору, освітлювальних приладів - мають мінімум декору, чисті лінії, прості форми;
- енергоефективність та екологічність.
Втілити скандинавський стиль в інтер'єрі квартири реально та не складно. Головне довірити планування та ремонт квартири в жк перевіреній команді фахівців. Студія дизайн інтер'єрів Бєлік впродовж 10 років створює затишні та персоналізовані простори. Кожний наш об'єкт - це відображення індивідуальності клієнта, через його житло. Рішення, які покращують рівень життя та задовольняють потреби цілої родини.
Наші дизайнери інтер'єрів впроваджують ефективні рішення та втілюють в життя мрії клієнтів про затишну оселю. Орієнтуються на особливості об'єкта, запланований бюджет та індивідуальні побажання. Якщо вас цікавить скандинавський стиль в інтер'єрі квартири, радимо ознайомитися з одним з наших прикладів у ЖК Академ Квартал.
Наші дизайнери інтер'єрів впроваджують ефективні рішення та втілюють в життя мрії клієнтів про затишну оселю. Орієнтуються на особливості об'єкта, запланований бюджет та індивідуальні побажання. Якщо вас цікавить скандинавський стиль в інтер'єрі квартири, радимо ознайомитися з одним з наших прикладів у ЖК Академ Квартал.
Це стандартна за розміром квартира, яка виглядає максимально комфортною. Вона відображає прихильність клієнтів до “не показової” естетики, функціональності, затишку та сучасності. На об'єкті впроваджені цікаві рішення, які можуть стати у нагоді під час вашого ремонту.
Скандинавський стиль в інтер'єрі стандартної квартири ЖК
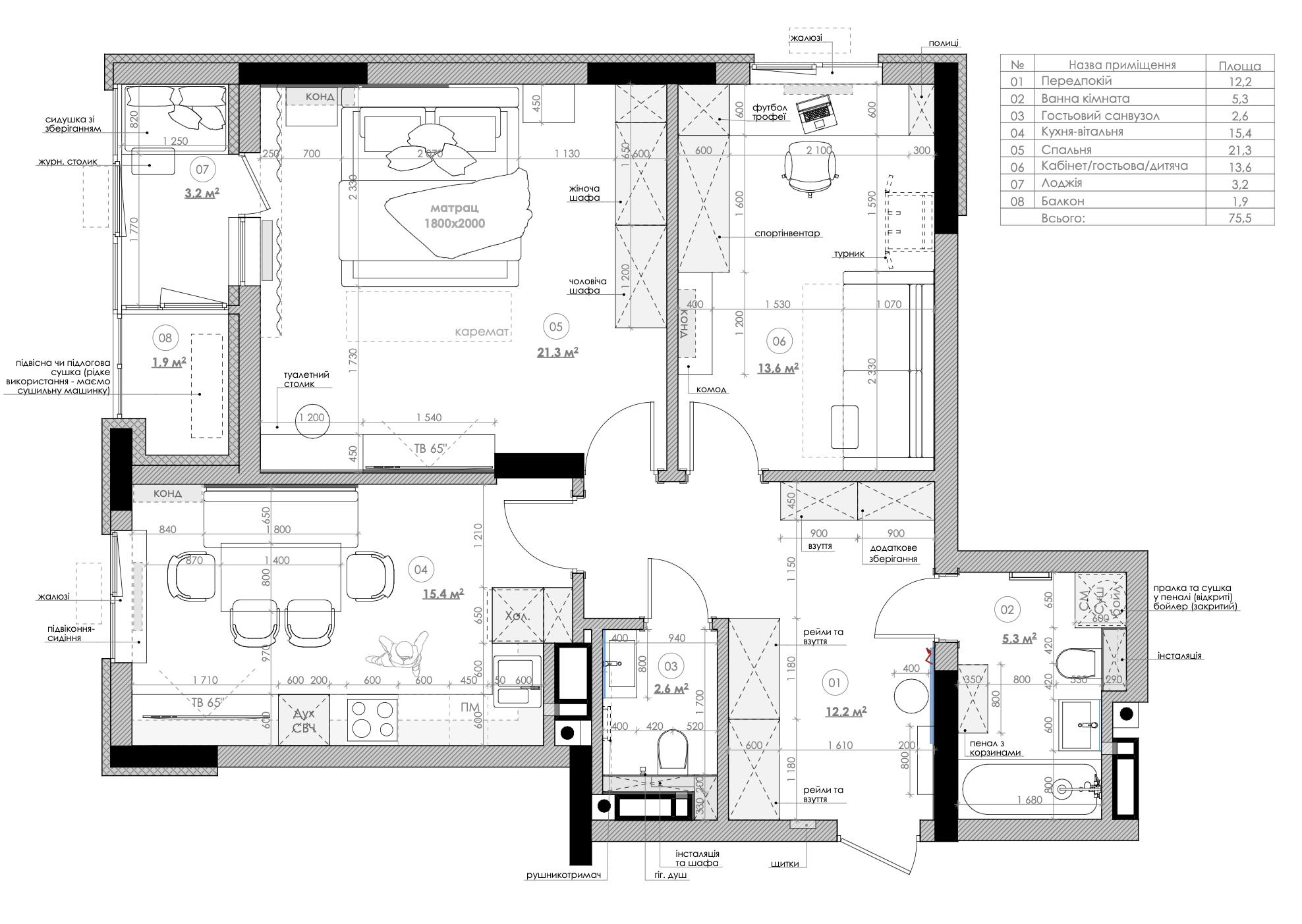
Об'єкт в ЖК Академ Квартал має 75 м2. На цій площі потрібно було раціонально розподілити простір, втіливши головні засади скандинавського направлення. Це сучасний та екологічний стиль, з яким цікаво працювати.
Дизайнери інтер'єрної компанії Бєлік вже мають напрацьовану базу рішень та понад 50 партнерів, у яких можна придбати потрібні для облаштування простору товари.
Першочергове, що було зроблено - це розподіл простору. Скандинавський стиль в інтер'єрі квартири в ЖК Академ Квартал має дві житлові кімнати, лоджію, два санвузли (гостьовий, ванна), вітальню-кухню, просторий передпокій.
Кімната-студія на цьому об'єкті невелика. Головною метою стало максимально раціональний поділ простору на функційні зони. Одну частині стіни з кутовою шафою зайняв кухонний гарнітур. В ньому вдалося розмістити вбудовану техніку, інвентар, посуд. Окремо спроектували частину шафи зі скляним дверцятами та підсвічуванням полиць.Чудово виглядатимуть за склом сервіз, література, декоративні елементи.
Кімната-студія на цьому об'єкті невелика. Головною метою стало максимально раціональний поділ простору на функційні зони. Одну частині стіни з кутовою шафою зайняв кухонний гарнітур. В ньому вдалося розмістити вбудовану техніку, інвентар, посуд. Окремо спроектували частину шафи зі скляним дверцятами та підсвічуванням полиць.Чудово виглядатимуть за склом сервіз, література, декоративні елементи.
Кутовий сервант, верхні полиці кухонного гарнітуру, окремий пенал для вбудованої мікрохвильової печі та духової шафи, полиця для зберігання під зоною ТВ - все це складники однієї меблевої групи. Ідентичність матеріалів та плавне перетікання меблів з однієї форми в іншу створили цікавий ефект. Це оригінальне рішення, яке до того ж заощаджує кошти. Дозволяє максимально раціонально використати простір. Адже монтується одна конструкція, в якій використані однакові самі системи, панелі, фарба.
Майже вся головна меблева група виконана з фактур світлого дерева, що створює ефект затишку та екологічності. Окремо були монтовані верхні та нижні шафи для зберігання в кухонній зоні. Виконані вони в акцентних білому та темно-сірому кольорах. Навпроти кухні, з невеликим зсувом у бік розмістили великий обідні стіл.
Майже вся головна меблева група виконана з фактур світлого дерева, що створює ефект затишку та екологічності. Окремо були монтовані верхні та нижні шафи для зберігання в кухонній зоні. Виконані вони в акцентних білому та темно-сірому кольорах. Навпроти кухні, з невеликим зсувом у бік розмістили великий обідні стіл.
Зважаючи на обмеженість простору, замість м'яких крісел вздовж стіни поставили диван. Елемент меблів, який є головним у вітальні. Навпроти помістився ТВ, над навісною полицею.
Вітальна має багато природного та додаткового світла. Над обіднім столом присутні дизайнерські світильники, які є доповненням до трекових систем. Щоб максимально використати простір в кімнаті-студії навіть підвіконня облаштували на користь. Радіатори сховали за дерев'яними меблями (є доступ до них). Замість підвіконня було зроблене додаткове місце для сидіння - зі стійкою конструкцією та м'яким пуфом.
Вітальна має багато природного та додаткового світла. Над обіднім столом присутні дизайнерські світильники, які є доповненням до трекових систем. Щоб максимально використати простір в кімнаті-студії навіть підвіконня облаштували на користь. Радіатори сховали за дерев'яними меблями (є доступ до них). Замість підвіконня було зроблене додаткове місце для сидіння - зі стійкою конструкцією та м'яким пуфом.
Житлові кімнати мебльовані всіма необхідними предметами. В спальні багато місця, що дозволило зробити окремо чоловічу та жіночу шафи. Виконані на кшталт гардеробної меблі мають вдосталь відкритих та закритих систем для зберігання. Скляні двері та підсвічування робить шафу принадою інтер'єра.
Друга житлова кімната може бути використана, як дитяча, кабінет або гостьова. Ремонт в ній оптимальний та візуально естетичний. Меблі функціональні та відповідні до загальної концепції.
Друга житлова кімната може бути використана, як дитяча, кабінет або гостьова. Ремонт в ній оптимальний та візуально естетичний. Меблі функціональні та відповідні до загальної концепції.
Квартира в ЖК Академ Квартал досить світла. Основна колористика - це білий та його відтінки. Використано дуже багато світлого дерева в оздобленні підлоги, панелюванні, фактурах дерева. Меблі зроблені з однакових матеріалів та кольорів, що відображає єдиність концепції.
Світла колористика та фактури дерева розведені цікавими акцентними кольорам. Для цього об'єкта був обраний гарний смарагдовий колір, за спаданням клієнта. Зустрічаються акценти у:
Світла колористика та фактури дерева розведені цікавими акцентними кольорам. Для цього об'єкта був обраний гарний смарагдовий колір, за спаданням клієнта. Зустрічаються акценти у:
- вітальні - оббивка м’яких обідніх крісел, декоративних подушок;
- спальні - фарбування стін, постільна білизна, на елементах декору;
- передпокої - м’який пуф.
Скандинавський стиль не перевантажено важкими меблями та зайвим декором. Присутні продумані місця для зберігання. Величезна меблева група у передпокої дозволила уникнути корпусної шафи у вітальні-студії, яка достатньо мала за розміром.
Запланований у проєкті капітальний ремонт у скандинавському стилі повністю відповідає можливостям замовника. Дизайнер компанії інтер'єрів Бєлік приймав кожне рішення, орієнтуючись на бюджет майбутнього ремонту. Тут гарна візуальна частина без «показної розкоші». Максимально затишна атмосфера, яка виглядає досить сучасно та оригінально.
Запланований у проєкті капітальний ремонт у скандинавському стилі повністю відповідає можливостям замовника. Дизайнер компанії інтер'єрів Бєлік приймав кожне рішення, орієнтуючись на бюджет майбутнього ремонту. Тут гарна візуальна частина без «показної розкоші». Максимально затишна атмосфера, яка виглядає досить сучасно та оригінально.
Замовити дизайн таунхауса в скандинавському, лофт, етно, мінімалістичному або будь-якому іншому стилі ви можете в бюро інтер'єрів Бєлік. Наші робітники втілюють бажані направлення, підлаштовуючи їх під побут власників.
Вартість ремонту будинку чи квартири від самого початку (розробка проєктної документації) орієнтована на можливості клієнтів. Це не про заощадити на якості та відмову від необхідних ремонтних процесів. Це про пошук вдалих альтернатив та компромісів, приймання кращих для конкретного об'єкта дизайнерських (архітектурних, технічних) рішень.
Вартість ремонту будинку чи квартири від самого початку (розробка проєктної документації) орієнтована на можливості клієнтів. Це не про заощадити на якості та відмову від необхідних ремонтних процесів. Це про пошук вдалих альтернатив та компромісів, приймання кращих для конкретного об'єкта дизайнерських (архітектурних, технічних) рішень.
Подивіться нашу презентацію