ОДНОКІМНАТНА КВАРТИРА ІНТЕР’ЄР В ЖК РЕСПУБЛІКА У КИЄВІ
Функціональний інтер'єр однокімнатної квартири в ЖК Республіка
Головна мета при плануванні дизайну однокімнатної квартири - це максимально раціональне та функціональне використання простору. Тут не потрібні надсучасні інновації, якщо вони не покращують рівня життя та не закривають потреби власників.
Декор та текстиль рідко використовується, через візуальну та фактичну крадіжку простору. Меблі? Ліпший варіант купувати модульні конструкції та вироби під замовлення, які будуть максимально відповідати всім параметрам об'єкта.
Враховуючи головні засади облаштування невеликих об'єктів та застосовуючи ефективні рішення в галузі дизайну, навіть однокімнатна квартира інтер'єр може бути естетичним. Довірившись освіченому дизайнеру можна отримати на невеликому об'єкті сучасний ремонт та зручне в побуті житло.
Інтер’єрна компанія Бєлік є однією з небагатьох, яка не просто “малює” 3Д-візуалізації. Наша студія розробляє дизайн проекти у повному обсязі, тобто з усіма необхідними планами, схемами, кресленнями, розрахунками, 3Д візуалізаціями та технічною документацією. Кожний папірець в документі та прийняте рішення орієнтоване на індивідуальний об'єкт замовника. Дизайнер інтер'єрів вразувує також особливості та параметри об'єкта, побажання та потреби клієнта, його бюджет.
Інтер’єрна компанія Бєлік є однією з небагатьох, яка не просто “малює” 3Д-візуалізації. Наша студія розробляє дизайн проекти у повному обсязі, тобто з усіма необхідними планами, схемами, кресленнями, розрахунками, 3Д візуалізаціями та технічною документацією. Кожний папірець в документі та прийняте рішення орієнтоване на індивідуальний об'єкт замовника. Дизайнер інтер'єрів вразувує також особливості та параметри об'єкта, побажання та потреби клієнта, його бюджет.
Застосовуючи перевірені досвідом рішення, професійні знання та спеціальні інструменти навіть в однокімнатній квартирі вдається створити гармонійний простір. Відремонтована нашою бригадою майстрів або за нашим проектом однокімнатна квартира інтер'єр є зручним та затишним для проживання В таких квартирах не виникає складнощів під час виконання ремонту, проблем або бажання змін через кілька років. Розроблені співробітниками Бєлік дизайни квартир лишаються оптимальними тривалий час, виглядають естетично та є персоналізованими.
Одним з найрозповсюдженіших та доволі складних запитів є саме розробка дизайн інтер'єру однокімнатної квартири. Адже на невеликій площі (до 60 м2) потрібно розмістити всі необхідні елементи меблів (техніки, декору), зробити грамотне планування, досягти зручності та сучасності.
В нас є реальний досвід розробки інтер'єрів для багатьох квартири у новеньких ЖК, де об'єкти здаються у вільному плануванні. Маючи пустуючу коробку, дизайнери самотужки обирають місця розташування кімнат (дверей, перегородок, шаф) та їх площу, передбачають маршрут пересування мешканців квартирою та приймають дійсно актуальні рішення. Прикладом найкращих інтер'єрів для однушок у новобудовах варто вважати об'єкти в ЖК Республіка.
В нас є реальний досвід розробки інтер'єрів для багатьох квартири у новеньких ЖК, де об'єкти здаються у вільному плануванні. Маючи пустуючу коробку, дизайнери самотужки обирають місця розташування кімнат (дверей, перегородок, шаф) та їх площу, передбачають маршрут пересування мешканців квартирою та приймають дійсно актуальні рішення. Прикладом найкращих інтер'єрів для однушок у новобудовах варто вважати об'єкти в ЖК Республіка.
Компанія інтер'єрів Бєлік оформила багато квартир у цьому ЖК. Є об'єкти різні за площею, стилем, концепцією, бюджетом. Замовити можна лише дизайн проекти, ремонти за ними та навіть повне комбо послуг (проєктна документація+ремонт+авторський нагляд).
Якщо цікавить, як саме може виглядати однокімнатна квартира інтер'єр в ЖК Республіка, ми маємо цікавий приклад. Це максимально затишний, трошки романтичний, сучасний та зручний простір. Де на 44 м2 досягти максимальної гармонії та розмістили все необхідне для комфорту.
Якщо цікавить, як саме може виглядати однокімнатна квартира інтер'єр в ЖК Республіка, ми маємо цікавий приклад. Це максимально затишний, трошки романтичний, сучасний та зручний простір. Де на 44 м2 досягти максимальної гармонії та розмістили все необхідне для комфорту.
Однокімнатна квартира інтер'єр в ЖК Республіка - затишок у кожній дрібниці
Не дивлячись на те, що об’єкт в ЖК Республіка невеликий за площею, головна задача полягала саме в створенні затишної атмосфери. Замовниці було важливо відчувати комфорт та легкість.
Дизайн студія Бєлік не переслідує виключно один стиль та не намагається всюди, де є обмеження за площею, впроваджувати мінімалізм. Наші співробітники взяли основні засади цього направлення під час прийняття планувальних рішень, розподілу простору та виборі певних меблів. Беручи до уваги потреби та побажання власниці, ця однокімнатна квартира інтер'єр має багато затишних елементів, текстилю та декору. Вони не переобтяжують простір, а роблять його більш гармонійним та затишним. Дизайнери інтер'єрів зробили все можливе, щоб м'які декоративні подушки, круглі дзеркала у кімнатах, текстильні штори, килими гармонійно виглядали в оформленні.
Оформлена однокімнатна квартира інтер'єр в ЖК Республіка в максимально спокійній колірній палітрі. Переважають тут теплі бежеві відтінки. Це не один беж, а різні його фактури та варіації:
Всі ці елементи гармонійно переплітаються між собою, передаючи основну ідею затишку. Присутні в інтер'єрі однокімнатної квартири ЖК Республіка й більш насичені кольори. Небагато акцентних палітр можна побачити у вигляді темно-коричневої основи ліжка, сірому або білому оздобленні стін (дверей прихованого монтажу), світлої сантехніки тощо.
- меблі та панелі зі світлого дерева;
- фарбовані фасади шаф та стіни в один матовий тон;
- м’які крісла, диван, пуфи у бежевих кольорах з більш яскравими за тоном декоративними подушками;
- пухнасті м’які килими, пледи тощо.
Всі ці елементи гармонійно переплітаються між собою, передаючи основну ідею затишку. Присутні в інтер'єрі однокімнатної квартири ЖК Республіка й більш насичені кольори. Небагато акцентних палітр можна побачити у вигляді темно-коричневої основи ліжка, сірому або білому оздобленні стін (дверей прихованого монтажу), світлої сантехніки тощо.
Вважаючи, що у цій квартирі присутньо багато дрібних декоративних елементів, від додавання дизайнерських освітлювальних приладів довелося відмовитися на користь вбудованих у стелю елементів. Точкові світильники та трекові системи ідеально освітлюють приміщення, не повертаючи зайвої уваги та не забираючи простір. Для візуального збільшення простору були використано не лише світлі палітри та якісне освітлення. Багато дзеркал також зіграли на користь в досягненні ефекту вільного простору.
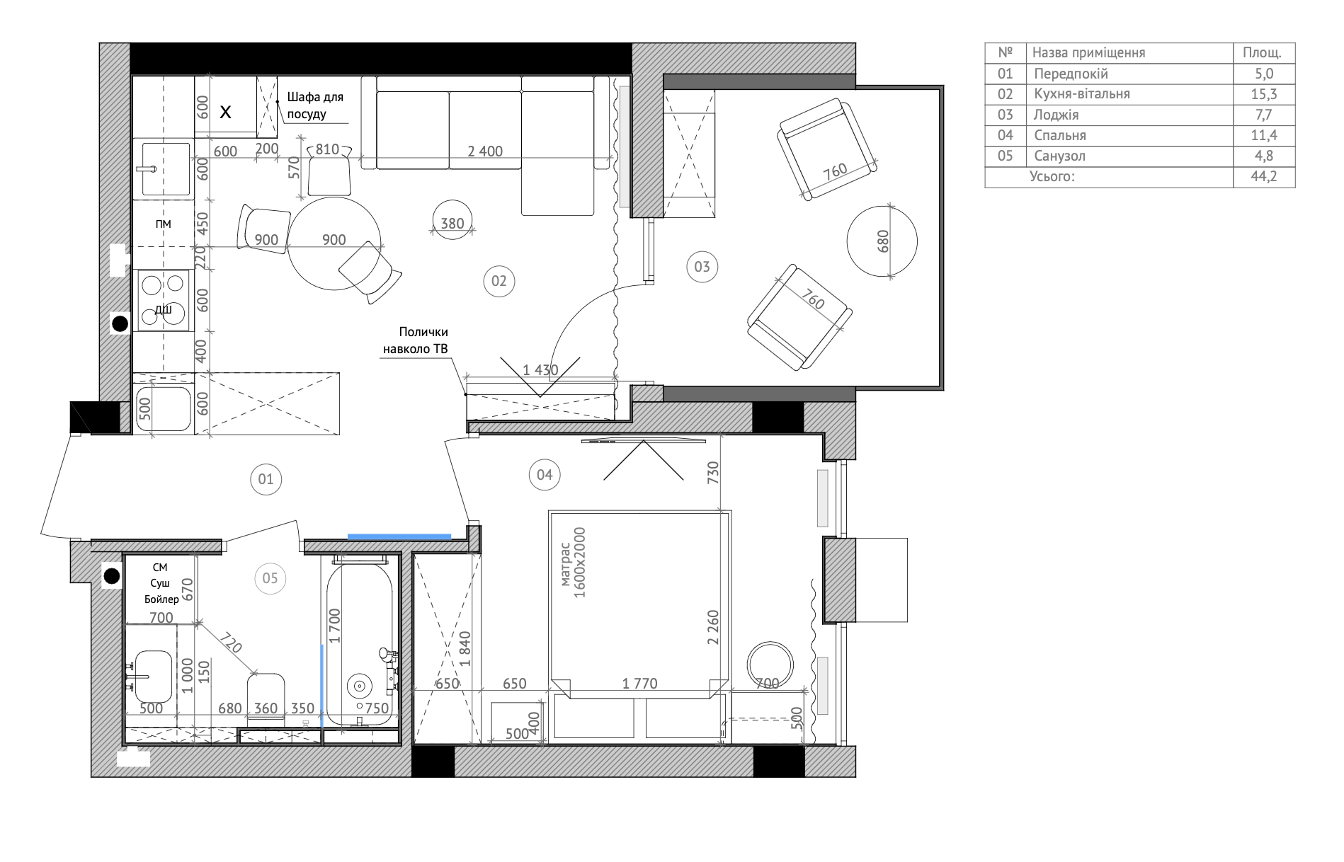
Крім естетичної сторони в оформленні інтер'єру однокімнатної квартири, було докладено багато зусиль для раціонального поділу. На 44 м2 розміщено кухню-вітальню, спальню, ванну кімнату та балкон.
Крім естетичної сторони в оформленні інтер'єру однокімнатної квартири, було докладено багато зусиль для раціонального поділу. На 44 м2 розміщено кухню-вітальню, спальню, ванну кімнату та балкон.
Кімната-студія є самою великою та поділеною на кілька функціональних зон. Є вдосталь зручного місця для приготування їжі із вбудованою технікою, однотонними фарбованими фасадами та навіть сервантом для посуду. У вітальні розміщення зручний диван, журнальний столик та ТВ зона. Між кухнею та вітальнею, завдяки відсутності непотрібної стіни, вийшло поставити круглий обідній стіл.
Вважаючи на обмеження у просторі, всі великі корпусні шафи робилися максимально непомітними - в один рівень зі стінами, вбудованими та з однотонними фасадами (дверми). Саме така виконана у спальні. Вона майже не привертає уваги, але вміщує всі необхідні речі, аксесуари тощо. Також корпусна шафа із дзеркалом вмонтована у передпокої (для верхнього одягу), ванній кімнаті та навіть на балконі. В останній зручно зберігати інвентар для прибирання, якусь техніку та інші, не потрібні кожного дня, речі.
Вважаючи на обмеження у просторі, всі великі корпусні шафи робилися максимально непомітними - в один рівень зі стінами, вбудованими та з однотонними фасадами (дверми). Саме така виконана у спальні. Вона майже не привертає уваги, але вміщує всі необхідні речі, аксесуари тощо. Також корпусна шафа із дзеркалом вмонтована у передпокої (для верхнього одягу), ванній кімнаті та навіть на балконі. В останній зручно зберігати інвентар для прибирання, якусь техніку та інші, не потрібні кожного дня, речі.
Купівля меблів у виробників, під замовлення дозволило максимально використати кожний вільний сантиметр. Досягти ідентичності кольорів між оздобленням та фасадами, отримати плавний перехід шафи у стіну.
Цей приклад оформлення інтер'єру однокімнатної квартири, як і багато інших наших робіт, підтверджує оригінальність та доцільність ідей. Показує, що навіть в обмежених умовах можна створити персоналізований та покращуючий ваш рівень життя простір. Для цього достатньо завчасно звернутися до дизайн-студії Бєлік, замовити розробку проектної документації та реалізувати її із командою професіоналів. З Бєлік ви можете бути впевненими у результаті, адже доведено понад 10-річним досвідом, що кожний наш дизайн проект реалізується на 100%.
Цей приклад оформлення інтер'єру однокімнатної квартири, як і багато інших наших робіт, підтверджує оригінальність та доцільність ідей. Показує, що навіть в обмежених умовах можна створити персоналізований та покращуючий ваш рівень життя простір. Для цього достатньо завчасно звернутися до дизайн-студії Бєлік, замовити розробку проектної документації та реалізувати її із командою професіоналів. З Бєлік ви можете бути впевненими у результаті, адже доведено понад 10-річним досвідом, що кожний наш дизайн проект реалізується на 100%.
Плануючи оновлення житла, замовників насамперед цікавить вартість дизайну та ремонту квартир в новобудовах. Саме від цього показника залежить стратегія реалізації проєкту, вибір матеріалів і технічних рішень. У студії інтер’єрів Бєлік бюджет формується прозоро та прогнозовано — з урахуванням площі, складності планування, стилістики та побажань власників. Детальніше про формування бюджету можна дізнатися за посиланням:
👉 https://belik.design/dyzayn_u_novobudovi
Якісний результат неможливий без грамотно розробленого проекту квартири, адже саме він є основою всього ремонту. Планувальні рішення, розміщення меблів, освітлення, комунікацій та зон зберігання продумуються ще до початку робіт. У випадку з однокімнатною квартирою в ЖК Республіка такий підхід дозволив досягти максимальної функціональності без втрати затишку. Ознайомитися з форматом проєктної документації можна тут:
👉 https://belik.design/design-project
👉 https://belik.design/dyzayn_u_novobudovi
Якісний результат неможливий без грамотно розробленого проекту квартири, адже саме він є основою всього ремонту. Планувальні рішення, розміщення меблів, освітлення, комунікацій та зон зберігання продумуються ще до початку робіт. У випадку з однокімнатною квартирою в ЖК Республіка такий підхід дозволив досягти максимальної функціональності без втрати затишку. Ознайомитися з форматом проєктної документації можна тут:
👉 https://belik.design/design-project
Для повної відповідності ідеї та результату варто замовляти саме дизайнерський проект квартири, який включає не лише візуалізації, а й усі необхідні креслення, плани та технічні рішення для реалізації. Такий формат дозволяє уникнути помилок під час ремонту та забезпечує 100% відповідність готового інтер’єру задуму дизайнера. Детальніше про розробку дизайнерських проєктів:
👉 https://belik.design/dyzainer_interiera
Окреме питання для більшості замовників — ціна на ремонт квартир Київ. Навіть найкращий дизайн потребує професійної реалізації, дотримання технологій та чіткої послідовності робіт. Команда Бєлік співпрацює з перевіреними ремонтно-будівельними бригадами, що дозволяє реалізовувати проєкти без зривів термінів і перевитрат бюджету. Актуальні умови та приклади реалізацій доступні за посиланням:
👉 https://belik.design/repair
👉 https://belik.design/dyzainer_interiera
Окреме питання для більшості замовників — ціна на ремонт квартир Київ. Навіть найкращий дизайн потребує професійної реалізації, дотримання технологій та чіткої послідовності робіт. Команда Бєлік співпрацює з перевіреними ремонтно-будівельними бригадами, що дозволяє реалізовувати проєкти без зривів термінів і перевитрат бюджету. Актуальні умови та приклади реалізацій доступні за посиланням:
👉 https://belik.design/repair
Ознайомитися з повним переліком того, що включають дизайн інтер’єру послуги, а також переглянути реалізовані об’єкти різної площі та стилістики, можна у портфоліо студії. Реальні приклади, зокрема інтер’єр однокімнатної квартири в ЖК Республіка, наочно демонструють, як продуманий підхід перетворює компактне житло на комфортний та функціональний простір для життя:
👉 https://belik.design/portfolio
👉 https://belik.design/portfolio
Подивіться нашу презентацію