НЕОКЛАСИКА В ІНТЕР’ЄРІ КВАРТИРИ В ЖК ШЕВЧЕНКІВСЬКИЙ У КИЄВІ
Сьогодні кожна людина може проявлятися через свій інтер'єр. Внутрішній дизайн будинку або квартири ідеально відображає зайнятість, уподобання, потреби та стиль життя власників. Якщо правильно підійти до інтер'єру, можна не лише створити зручний та комфортний простір. Можна максимально підлаштувати всі тренди сучасності, стилістичні направлення та побажання під власні запити. Допомагають досягти такого результату освічені в цій галузі фахівці.
Саме дизайнер інтер'єрів зможе правильно адаптувати та підлаштувати більшість архітектурних, технічних та візуальних рішень. Цей фахівець не лише відобразить через 3Д візуалізації вигляд майбутнього результату. Він:
Саме дизайнер інтер'єрів зможе правильно адаптувати та підлаштувати більшість архітектурних, технічних та візуальних рішень. Цей фахівець не лише відобразить через 3Д візуалізації вигляд майбутнього результату. Він:
- покроково спланує ваш ремонт;
- уникне більшості помилок та перевитрат;
- ергономічно розподілить простір;
- підбере всі товари з орієнтованість на ваші можливості;
- досягне ідеального візуала та функціональності.
Інтер’єрна компанія Бєлік створила та реалізувала понад 100 проектів. Кожний з них має власний настрій та концепцію. На об'єктах впроваджуються виключно ефективні рішення, які забезпечують комфорт та зручність. Завдяки великому досвіду та надивленості всі наші інтер'єри є гармонічними візуально, практичними та безпечними - технічно.
Наші співробітники знаходять підхід до клієнтів з різними запитами та очікуваннями. Є приклади сучасних та максимально функціональних просторів. Присутні квартири, оформленні в етнічних або мінімалістичних мотивах. Попит мають також вишукані направлення.
Якщо для вас неабияке значення відіграє естетичність та елементи розкоші, можна сміливо звертатися в інтер'єрну студію Бєлік. Дизайнерський ремонт у квартирі можливий.
Наші співробітники знаходять підхід до клієнтів з різними запитами та очікуваннями. Є приклади сучасних та максимально функціональних просторів. Присутні квартири, оформленні в етнічних або мінімалістичних мотивах. Попит мають також вишукані направлення.
Якщо для вас неабияке значення відіграє естетичність та елементи розкоші, можна сміливо звертатися в інтер'єрну студію Бєлік. Дизайнерський ремонт у квартирі можливий.
Ви не витратите всі кошти та не потрібно буде брати позики. Уникнете більшості помилок та купівлі непотрібних предметів - що автоматично заощаджує до 20% витрат. Матимете рішення від дизайнера, які будуть орієнтовані саме на ваш бюджет. При зверненні до дизайн студії Бєлік, клієнт в анкеті вказує приблизний бюджет, який готов витратити на ремонт житла (купівлю товарів тощо).
Неокласика в інтер'єрі квартири присутня серед численної кількості прикладів, створених в Бєлік. Цей стиль улюблений серед естетів та поціновувачів розкоші. Його може дозволити собі кожна людина, якщо правильно підійде до планування ремонту.
В бюро інтер’єрів є багато прикладів з елементами неокласики або з максимальним впровадженням цього стиля. На прикладі об'єкта ЖК Шевченківський можна особисто впевнитися в гармонійності, практичності та доцільності рішень. Поринути в атмосферу краси та вишуканості. Перейнятися естетикою та комфортом, який 100% не набридне через кілька років.
Неокласика в інтер'єрі квартири присутня серед численної кількості прикладів, створених в Бєлік. Цей стиль улюблений серед естетів та поціновувачів розкоші. Його може дозволити собі кожна людина, якщо правильно підійде до планування ремонту.
В бюро інтер’єрів є багато прикладів з елементами неокласики або з максимальним впровадженням цього стиля. На прикладі об'єкта ЖК Шевченківський можна особисто впевнитися в гармонійності, практичності та доцільності рішень. Поринути в атмосферу краси та вишуканості. Перейнятися естетикою та комфортом, який 100% не набридне через кілька років.
Неокласика в інтер'єрі квартири, де краса в кожній дрібниці
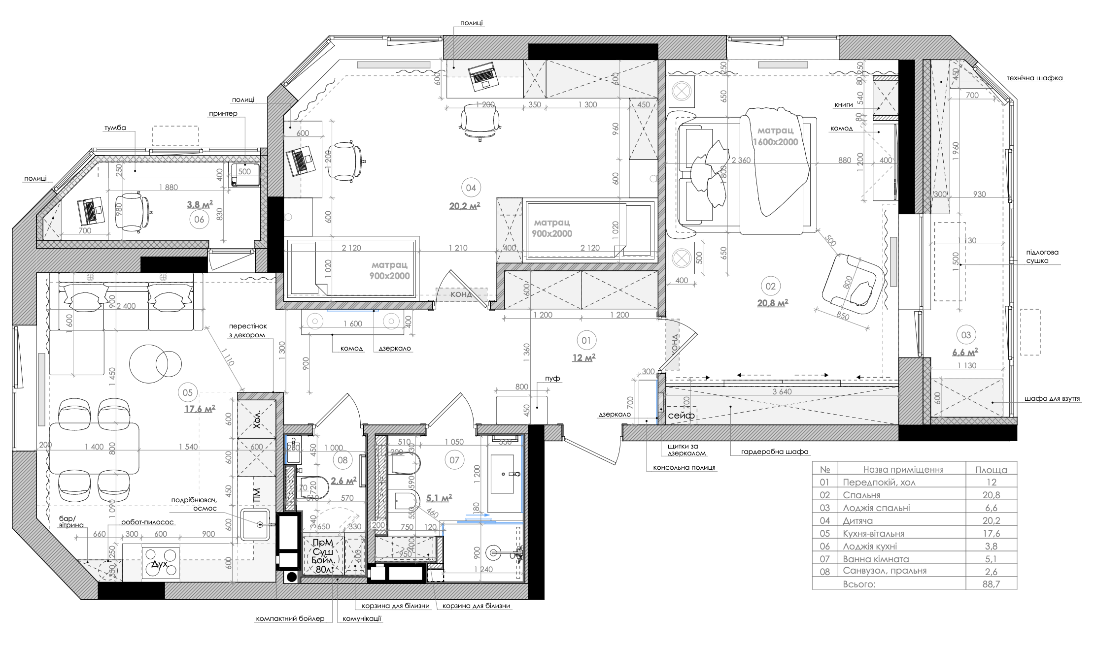
Об’єкт в ЖК Шевченківський має нестандартне планування. Велика площа стала перевагою та надала можливості втілити цікаві ідеї. Скошені стіни, кімнати не ідеальної прямокутної форми із чисельними кутами та великими вікнами потребували поміркованих рішень.
Дизайнер інтер'єру вдало обіграв кожне рішення забудовника. Ніші стали ідеальним місцем для вбудованих шаф та гардеробних. Зроблені в один рівень зі стінами та фарбованими в той самий колір фасадами візуально вони не переобтяжують простір. Уникнено ефекту зайвих та важких меблів.
Неокласика в інтер'єрі квартири ЖК Шевченківський прослідковується на всіх 88 м2. Санвузол, пральня, дитяча кімната, гостина-кухня та лоджія - все виконано в єдиній колористиці й стилістиці.
Завдяки тому що вартість дизайну та ремонту квартир у жк планувалася заздалегідь, дизайнером були чітко підібрані всі елементи. Оздоблення, декорування, меблі, освітлювальні прилади - кожна позиція обиралася з каталогів реальних постачальників. Підбиралися товари в єдиних відтінках, схожих фактурах та стилістиці.
Більшість корпусних меблів виготовлялися під замовлення. Це дозволило максимально використати простір та розставити по всій квартирі конструкції з однаковими фасадами, фактурами, механізмами, декоративними елементами.
Завдяки тому що вартість дизайну та ремонту квартир у жк планувалася заздалегідь, дизайнером були чітко підібрані всі елементи. Оздоблення, декорування, меблі, освітлювальні прилади - кожна позиція обиралася з каталогів реальних постачальників. Підбиралися товари в єдиних відтінках, схожих фактурах та стилістиці.
Більшість корпусних меблів виготовлялися під замовлення. Це дозволило максимально використати простір та розставити по всій квартирі конструкції з однаковими фасадами, фактурами, механізмами, декоративними елементами.
Щоб підкреслити вишуканий смак та прихильність влаників до естетики, дизайнери додали багато декоративних елементів в оздобленні житла. На цьому об’єкті присутні такі ефективні рішення з неокласики як:
- багато природного й штучного світла, оформлення квартири саме в світлій колористиці - це візуально створює ефект максимального простору та легкості;
- симетричні та пропорційні форми - мова йде про меблі, декорування стін, розподіл простору на конкретні функціональні зони тощо;
- декорування в оздобленні, а саме - молдинги та ліпнина на фасадах корпусних меблів, стінах, дверях;
- вишуканий декор - дзеркала в позолочених рамках, предмети живопису, цікавої форми ручки на корпусних меблях;
- багато естетичних освітлювальних приладів - люстра інкрустована камінням, дизайнерські настінні світильники, бра тощо;
- природні матеріали у виборі оздоблення та меблів - паркет на підлозі, мармурові плити в ванній кімнаті та оформленні робочої поверхні кухні, натуральні тканини на обшивці диванів та в текстилі;
- присутність золота в різних елементах квартири, як акценти - рамки на меблях, освітлювальні прилади, окремі предмети декору тощо.
Квартира в неокласиці ЖК Шевченківський оформлена переважно у світлих тонах. Ефекту однотипності тут уникнено завдяки чисельному декоруванню в оздобленні, меблях, декоруванні. Щоб розвести білу колористику, дизайнер додав трохи акцентних кольорів. Для неокласики ідеально підійшли:
В ЖК Шевченківський присутньою багато дрібних елементів, які тонкою ниттю поєднані між собою. Дизайнер на професійному рівні комбінує всі елементи інтер'єра, досягаючи єдиної концепції. Таким чином створюється гармонійний дизайн таунхауса 90 кв м, будинку або квартири.
- оливкові м’які меблі та декор (в вітальні-кухні, передпокої, на лоджії) - ідеально поєднується з золотими елементами інтер'єру та світлими кольорами;
- темно-зелене ліжко та гірчичне крісло в спальні - дозволили додати затишку, створити більш теплу атмосферу;
- спокійний рожевий в оформленні фасадів прихованих систем у ванній кімнаті, санвузлі;
- глибокий синій та жовтий на землях та стінах - ідейно підійшли для дитячої, яка має свій настрій та особливу атмосферу.
В ЖК Шевченківський присутньою багато дрібних елементів, які тонкою ниттю поєднані між собою. Дизайнер на професійному рівні комбінує всі елементи інтер'єра, досягаючи єдиної концепції. Таким чином створюється гармонійний дизайн таунхауса 90 кв м, будинку або квартири.
Звернувшись в студію дизайн інтер'єрів Бєлік ви можете отримати оптимізований під ваші потреби простір. Будуть враховані не лише запити стосовно візуала. Проміркованими стануть всі технічні рішення, стосовно прокладання та приховування комунікацій. На прикладі об’єкта в ЖК Шевченківський складно передбачити, де саме прокладені дроти та труби. Розетки, вимикачі, бойлер, фільтра, система “розумний дім”, робот-пилосмок, побутова техніка, точки доступу - всі сучасні предмети та інновації присутні на об’єкті. Але вони вдало приховані, що забезпечує ідеальну картину та зручність використання інтер'єра.
Замовити можна дизайн в будь-якому стилістичному оформленні. Буде це преміальний або бюджетний інтер'єр будинків в мінімалізмі, лофт, етно, еко, хай-тек, іншому направленні? Наші фахівці створять сучасний, затишний, безпечний, ергономічний та гармонійний простір. Змодуть втілити ваші мрії про комфортне житло в реальність без колосальних витрат та зайвого стресу.
Замовити можна дизайн в будь-якому стилістичному оформленні. Буде це преміальний або бюджетний інтер'єр будинків в мінімалізмі, лофт, етно, еко, хай-тек, іншому направленні? Наші фахівці створять сучасний, затишний, безпечний, ергономічний та гармонійний простір. Змодуть втілити ваші мрії про комфортне житло в реальність без колосальних витрат та зайвого стресу.
Подивіться нашу презентацію