РЕМОНТ 2 КІМНАТНОЇ КВАРТИРИ У ЖК ТАЙМ
• Локація – ЖК Тайм, Київ, Україна
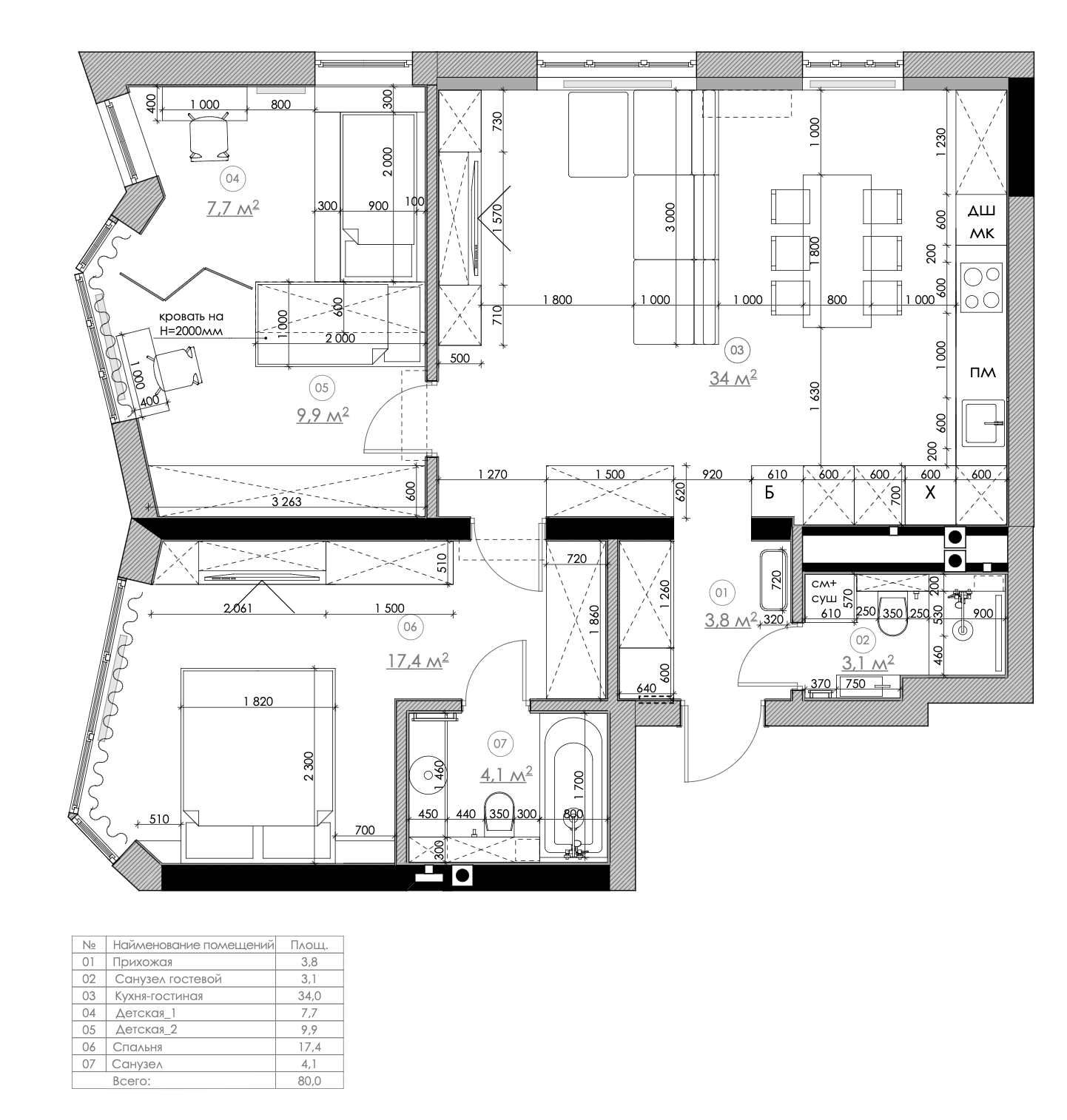
• Площа 2 кімнатної квартири – 81 м²
• Формат роботи – дизайн проект інтер'єру
• Площа 2 кімнатної квартири – 81 м²
• Формат роботи – дизайн проект інтер'єру
Коли простір квартири обмежений, але в ньому потрібно розмістити цілу родину разом із дітьми та домашніми улюбленцями, дуже важливо правильно спланувати ремонт. Адже невелика квадратура на об'єктах зустрічається повсякчасно. Деяким вдається створити з такого об'єкта комфортне та зручне житло. В той час, як інші стикаються з низкою незручностей та обтяжуючим інтер'єром.
Щоб не відноситися до другої категорії людей, варто завчасно спланувати ремонт 2 кімнатної квартири, проміркувати кожне рішення до дрібниць. Впоратися з цим дозволяє саме розробка дизайн проекта. У проектній документації передбачаються всі можливі варіанти облаштування житла, знаходяться кращі планувальні та дизайнерські варіанти для кожного конкретного випадку.
Щоб не відноситися до другої категорії людей, варто завчасно спланувати ремонт 2 кімнатної квартири, проміркувати кожне рішення до дрібниць. Впоратися з цим дозволяє саме розробка дизайн проекта. У проектній документації передбачаються всі можливі варіанти облаштування житла, знаходяться кращі планувальні та дизайнерські варіанти для кожного конкретного випадку.
Завдяки розробці дизайн проекту можна завчасно:
Маючи на руках завершений та повний дизайн проект, лишиться лише звернутися до професійної бригади майстрів. Саме вона реалізує дизайнерські ідеї та виконує ремонт 2 кімнатної квартири якісно.
- уникнути 99% помилок;
- спланувати покроковість всіх ремонтних процесів та робіт;
- розрахувати правильну кількість оздоблення, розеток та вимикачів, сантехніки, освітлювальних приладів тощо;
- обрати меблі та всі товари для інтер'єру за потрібними параметрами;
- зрозуміти розміщення всіх комунікацій та спосіб їх приховування;
- отримати дизайн квартири, який відповідатиме вашому бюджету та потребам.
Маючи на руках завершений та повний дизайн проект, лишиться лише звернутися до професійної бригади майстрів. Саме вона реалізує дизайнерські ідеї та виконує ремонт 2 кімнатної квартири якісно.
В інтер'єрній компанії Бєлік ви можете замовити дизайн під ключ. Він складається з розробки проектної документації та її повної реалізації. Ваш інтер'єр відповідатиме всім рішенням візуалізацій та схем. Роботи будуть виконані якісно та бездоганно.
Мешканці міста Київ та передмістя можуть замовити послуги ремонту. Якщо об’єкт знаходиться в межах столиці, його також перевтілюють в сучасний та функціональний простір.
Інтер'єрна студія Бєлік має реальні приклади ремонтів одно-, дво-, трикімнатних. Одним із найрозповсюдженіших об'єктів є саме двокімнатні оселі в ЖК. Впевнитися в тому, що в невеликому просторі ЖК Тайм можна розмістити все необхідне можна, подивитись реальні приклади з портфоліо.
Мешканці міста Київ та передмістя можуть замовити послуги ремонту. Якщо об’єкт знаходиться в межах столиці, його також перевтілюють в сучасний та функціональний простір.
Інтер'єрна студія Бєлік має реальні приклади ремонтів одно-, дво-, трикімнатних. Одним із найрозповсюдженіших об'єктів є саме двокімнатні оселі в ЖК. Впевнитися в тому, що в невеликому просторі ЖК Тайм можна розмістити все необхідне можна, подивитись реальні приклади з портфоліо.
Двокімнатна квартира в ЖК Тайм - секрети ідеального оформлення
Беручи до уваги об’єкт в ЖК Тайм, призначений для родини з дитиною, максимум уваги було приділено створенню зручного та безпечного простору. Уникнути постійного безладу вдалося завдяки використанню корпусних шаф. Вони присутні в кожній кімнаті. Є вбудованими та виступають частиною інтер'єру. Однотонні фасади без ручок, сучасні системи відчинення дверцят, підсвічування та комбінування різних фактур виглядають дуже органічно.
Ремонт 2 кімнатної квартири в ЖК Тайм виконано у сірих палітрах. Щоб додати цікавих акцентів, були використані фактури дерева. Дерево тут присутнє в оздобленні підлоги та стін, як елемент меблів. Сірий представлено не в одному своєму кольорі. Він плавно переплітається з більш світлими палітрами, іншими фактурами (матові, текстильні, кам’яні) та відтінками.
Інтер'єр всієї квартири виглядає максимально стримано та мінімалістично. При цьому, він не тисне та не переобтяжує. Затишок створено завдяки текстилю та декору (декоративні подушки, живі рослини, блюда для фруктів або солодощів, вази, свічки). Цікавою частиною гостинної стали м'які підвіконня, які виступають додатковим місцем для відпочинку. Вони не лише виглядають оригінально, але також додають особливого спокою.
Враховуючи, що у квартирі проживатиме дитина, простір обов’язково містить місце для ігор та відпочинку. У вітальні-кухні вдосталь місця для активу.
Враховуючи, що у квартирі проживатиме дитина, простір обов’язково містить місце для ігор та відпочинку. У вітальні-кухні вдосталь місця для активу.
Проводження часу всією родиною за великими обіднім столом - чудове рішення. Відсутність непотрібних стін та ніш між кухнею та вітальнею дозволили розмістити місткі меблі. Створити в кімнаті атмосферу легкості та свободи.
Окрема дитяча кімната є місцем для усамітнення та часу на одинці. Саме в дитячий найменший член родини може навчатися, відпочивати, розвиватися, грати та творити у комфорті. Ліжко на другому поверсі, а меблі на першому - це MustHave, який заощаджує простір та дозволяє створити цікаві зони.
Крім дитячої та гостиної в цій квартирі присутня ще одна житлова кімната. Це спальня, яка орієнтована саме на відпочинок. Колористика та стилістика в ній відповідає загальній ідеї. Головною особливістю спальні виступає зручне ліжко та зональне освітлення.
Окрема дитяча кімната є місцем для усамітнення та часу на одинці. Саме в дитячий найменший член родини може навчатися, відпочивати, розвиватися, грати та творити у комфорті. Ліжко на другому поверсі, а меблі на першому - це MustHave, який заощаджує простір та дозволяє створити цікаві зони.
Крім дитячої та гостиної в цій квартирі присутня ще одна житлова кімната. Це спальня, яка орієнтована саме на відпочинок. Колористика та стилістика в ній відповідає загальній ідеї. Головною особливістю спальні виступає зручне ліжко та зональне освітлення.
Замовити ремонт квартири ЖК у професіоналів
Важливо розуміти, що ремонт 2 кімнатної квартири недостатньо гарно намалювати та спланувати. Не менш важливим є його реалізація. Інтер’єрна компанія виконує ремонти якісно та з гарантіями.
В ЖК Тайм всі процеси дотримані. Роботи виконані професійно. Саме тому інтер'єр виглядає доцільним, а результат ідеальним. Дивлячись на дизайн неможливо зрозуміти, де саме приховані комунікації та як було здійснено монтаж певних елементів. Але неозброєним оком можна побачити зваженість кожного рішення, зручність та доцільність всіх ідей. Такі ремонти не викликають проблем із часом, бажання щось переробити та виправити.
Замовити ремонт квартири з гарантіями якості, дотриманням всіх термінів та бюджету в місті Київ (передмісті) можна в бюро інтер’єрів Бєлік. Ми співпрацюємо з перевіреними, досвідченими та повністю укомплектований бригадами. Маємо понад 50 партнерів (виробники, постачальники, майстри). Створення сучасного та персоналізованого інтер'єру квартири - це наша база.
Наші робітники вміють працювати з преміальними матеріалами. Мають всі необхідні для цього інструменти, знання, навички та досвід. Вони допоможуть прийняти ліпше рішення, конкретно для вашого об'єкта. Виконають всі процеси у правильній послідовності та дотримуючись всіх рекомендацій. Дотримаються заявленого кошторису та термінів.
Наші робітники вміють працювати з преміальними матеріалами. Мають всі необхідні для цього інструменти, знання, навички та досвід. Вони допоможуть прийняти ліпше рішення, конкретно для вашого об'єкта. Виконають всі процеси у правильній послідовності та дотримуючись всіх рекомендацій. Дотримаються заявленого кошторису та термінів.
Важливо зазначити, що підхід, який застосовується під час ремонту двокімнатних квартир, є актуальним і для більш масштабних об’єктів. Саме тому принципи, закладені в дизайн інтер’єру будинку, активно використовуються і в міських квартирах: продумане зонування, логічне розміщення комунікацій, функціональні системи зберігання та єдина стилістична концепція. дизайн інтер’єру будинку базується на створенні простору, який працює на комфорт мешканців щодня — незалежно від площі об’єкта.
Для досягнення такого результату варто завчасно замовити дизайнера квартири, який має досвід роботи з житлом у новобудовах і розуміє реальні потреби родин. Професійний фахівець не просто пропонує красиві рішення, а прораховує їх до дрібниць: від ергономіки меблів до безпечних сценаріїв користування простором для дітей. Саме тому замовити дизайнера квартири — це крок до передбачуваного та спокійного ремонту без хаосу.
Для досягнення такого результату варто завчасно замовити дизайнера квартири, який має досвід роботи з житлом у новобудовах і розуміє реальні потреби родин. Професійний фахівець не просто пропонує красиві рішення, а прораховує їх до дрібниць: від ергономіки меблів до безпечних сценаріїв користування простором для дітей. Саме тому замовити дизайнера квартири — це крок до передбачуваного та спокійного ремонту без хаосу.
Окрему увагу замовники приділяють фінансовому питанню. Вартість дизайн проекта квартири у києві формується з урахуванням площі, складності планування, кількості приміщень і обсягу технічної документації. Важливо розуміти, що професійний дизайн дозволяє уникнути значно більших витрат на переробки та помилки в процесі ремонту. Детальніше з цим питанням можна ознайомитися на сторінці вартість дизайн проекта квартири у києві.
Замовляючи дизайн проєкт інтер’єру для києва, клієнт отримує рішення, адаптоване до реалій столичних житлових комплексів: типових планувань, технічних обмежень і сучасних будівельних норм. Локальний досвід дизайнерів дозволяє створювати інтер’єри, які легко реалізуються та залишаються актуальними роками. дизайн проєкт інтер’єру для києва — це чіткий план дій для будівельної бригади та зрозумілий результат для власників житла.
Замовляючи дизайн проєкт інтер’єру для києва, клієнт отримує рішення, адаптоване до реалій столичних житлових комплексів: типових планувань, технічних обмежень і сучасних будівельних норм. Локальний досвід дизайнерів дозволяє створювати інтер’єри, які легко реалізуються та залишаються актуальними роками. дизайн проєкт інтер’єру для києва — це чіткий план дій для будівельної бригади та зрозумілий результат для власників житла.
У підсумку професійний iнтер’єр дизайн — це не лише про зовнішній вигляд квартири, а й про зручність, безпеку та логіку кожного рішення. Саме такий підхід дозволяє створити простір, у якому комфортно жити родині з дітьми, приймати гостей і не повертатися до питання ремонту протягом багатьох років. інтер’єр дизайн від студії Бєлік поєднує естетику, функціональність і реальну практичну користь.
🔗 Дивіться також:
Подивіться нашу презентацію