ДИЗАЙНЕРСЬКИЙ РЕМОНТ КВАРТИР НА ВУЛ. ПРИЧАЛЬНА У КИЄВІ
Якщо ви прагнете переоблаштувати житло старого фонду або зробити сучасний інтер'єр на об'єкті в новобудові - потрібно звернутися до досвіченого фахівця. Саме він спланує дизайн та майбутній ремонт.
Дизайнерські ремонти квартир сьогодні не про колосальні витрати та кардинальні зміни. Це про створення комфортних умов, пристосованих до стилю життя власників. Про вибір якісних матеріалів, прийняття правильних планувальних та технічних рішень. Саме дизайнерське оформлення відображає гарний смак мешканців, їх інтереси та рівень життя.
Дизайнерський ремонт квартир неможливо провести без індивідуально розробленої проектної документації. Саме через проект відображають покроковість всіх робіт, вигляд майбутнього житла та шлях досягнення мети.
Дизайнерські ремонти квартир сьогодні не про колосальні витрати та кардинальні зміни. Це про створення комфортних умов, пристосованих до стилю життя власників. Про вибір якісних матеріалів, прийняття правильних планувальних та технічних рішень. Саме дизайнерське оформлення відображає гарний смак мешканців, їх інтереси та рівень життя.
Дизайнерський ремонт квартир неможливо провести без індивідуально розробленої проектної документації. Саме через проект відображають покроковість всіх робіт, вигляд майбутнього житла та шлях досягнення мети.
В інтер’єрній компанії Бєлік ви можете замовити дизайн дому або квартири повного циклу. Ремонт на базі проекта з супроводом дизайнера гарантує 100% відповідність результату ідеям. Адже досвідчені професіонали виконуватимуть кожний крок поступово, згідно з наданою інструкцією. При замовленні нагляду, дизайнер буде займатися пошуком та замовленням позицій з проекта. Контролюватиме результат ремонтних процесів та розв'язуватиме виниклі проблеми.
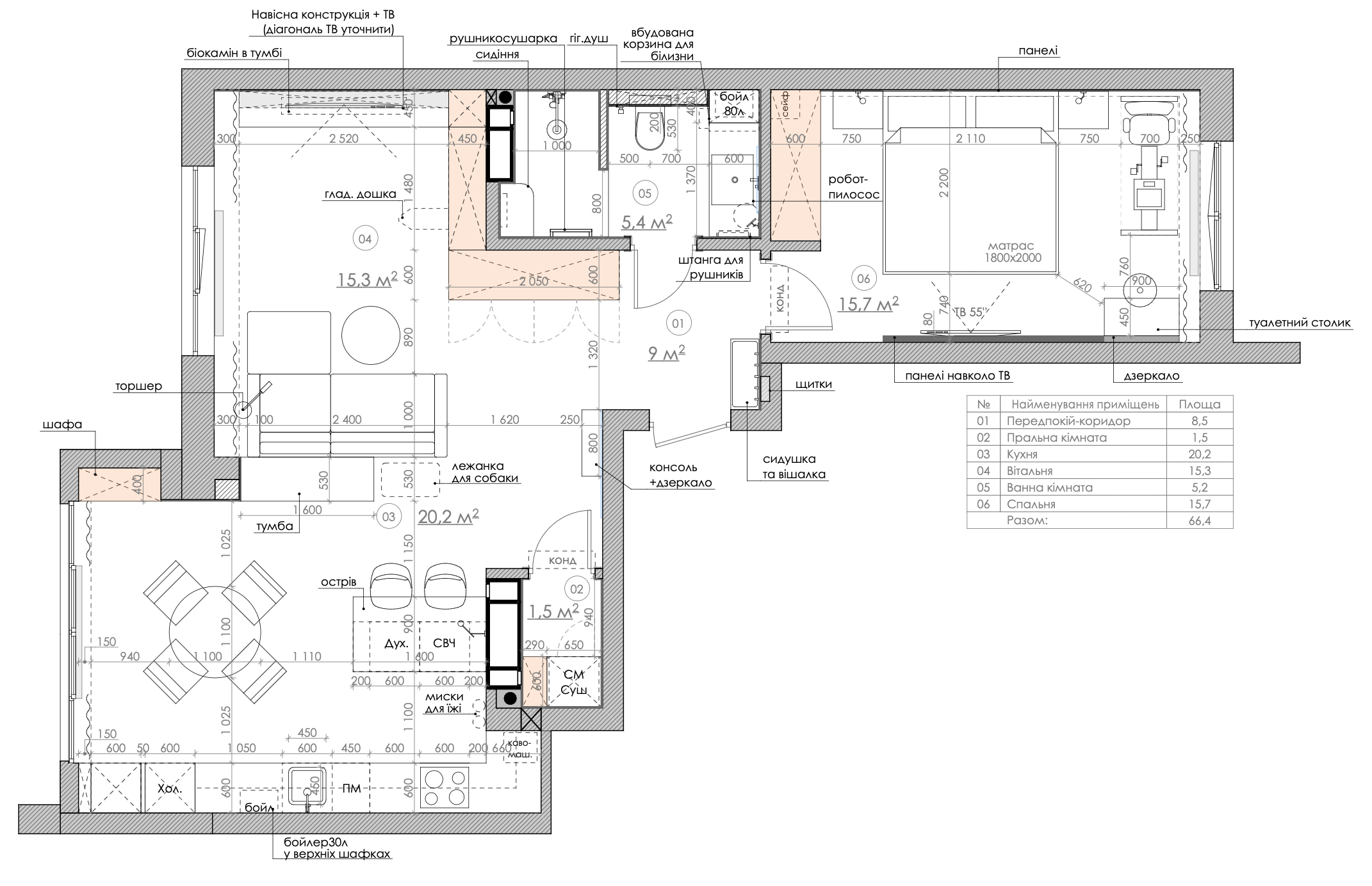
Прикладом того, як може виглядати дизайнерський ремонт квартир варто вважати реалізований об'єкт по вул. Причальна у Києві. Невелику квартиру на 66 м2 вдалося переоблаштувати у сучасний, функціональний, затишний та унікальний простір. Це житло повністю задовольняє потреби власників, покращує їх рівень життя та забезпечить 100% комфорт протягом майбутніх десятиріч.
Прикладом того, як може виглядати дизайнерський ремонт квартир варто вважати реалізований об'єкт по вул. Причальна у Києві. Невелику квартиру на 66 м2 вдалося переоблаштувати у сучасний, функціональний, затишний та унікальний простір. Це житло повністю задовольняє потреби власників, покращує їх рівень життя та забезпечить 100% комфорт протягом майбутніх десятиріч.
Особливості дизайнерського ремонту по вул. Причальна у Києві
Мета облаштування цієї квартири - це створення сучасного та затишного простору, не дивлячись на невелику площу. Для цього були прийняті ефективні рішення з розподілу простору. Лишили одну велику кімнату-студію. Відмовилися від зайвих стін та перегородок.
Відсутність стіни між вітальнею, передпокоєм та кухнею зберегли кілька м2. Замість перегородки вдалося розмістити додатковий обідній стіл, комод та кілька м'яких крісел. Наявні ніші та комори були використані з користю. Всі вони стали вбудованими шафами.
Вбудовані шафи виконані врівень зі стінами. Замовлення в меблярів наповнення та фасадів зробили їх невіддільною частиною інтер'єра. Наявне панелювання зроблено з тих самих матеріалів що й фасади, корпуси. Загалом оздоблення виглядає гармонійно.
Невелику комору вийшло перетворити на пральну кімнату. В ній поставили сушильну та пральну машини, додали кілька систем для зберігання та відкритих полиць для побутової техніки. Наявність окремої пральної кімнати заощадило місце в ванній та інших приміщеннях квартири. Всі комунікації, труби, щитові, бойлер та інші прикладання приховали за фасадами технічних шаф. Такий підхід дозволив уникнути візуального шуму, зайвих елементів.
Невелику комору вийшло перетворити на пральну кімнату. В ній поставили сушильну та пральну машини, додали кілька систем для зберігання та відкритих полиць для побутової техніки. Наявність окремої пральної кімнати заощадило місце в ванній та інших приміщеннях квартири. Всі комунікації, труби, щитові, бойлер та інші прикладання приховали за фасадами технічних шаф. Такий підхід дозволив уникнути візуального шуму, зайвих елементів.
В кімнаті-студії загального користування вдалося зробити кілька функціональних зон:
- передпокій-коридор, де розміщені вбудована шафа, дзеркало у весь зріст, сидушка та вішак;
- кухня з великим кухонним гарнітуром, вбудованою технікою, місцями для зберігання та зручною робочою поверхнею, барною стійкою;
- столова - тут є круглий обідній стіл та м'які крісла, тумба та ще одна шафа врівень зі стіною;
- вітальня - облаштована містким диваном, ТВ-зоною навпроти та біокаміном в тумбі.
Окрім кімнати-студії у квартирі є спальня, з усіма необхідними елементами меблів. Просторе двоспальне ліжко, приліжкові тумби, тренажер, вбудована шафа для речей, косметичний столик - все це ідеально помістилося у кімнаті. Правильно зроблені розрахунки в плануванні дозволили створити функціональний простір всередині.
Ванна кімната має багато вбудованих систем для зберігання. Фасади інсталяцій та шаф виконані з якісних матеріалів, які мають високі показники вологостійкості. Замість ванни в середині розміщено сучасний та зручний душ з трапом, термостатом, теплими стінами та підлогою.
Ванна кімната має багато вбудованих систем для зберігання. Фасади інсталяцій та шаф виконані з якісних матеріалів, які мають високі показники вологостійкості. Замість ванни в середині розміщено сучасний та зручний душ з трапом, термостатом, теплими стінами та підлогою.
Стилістичне оформлення квартири на вул. Причальна у Києві
Стилістичне оформлення цієї квартири вважається сучасним. Тут поєднані рішення раціоналізму та функціональності з елементами затишку та комфорту. Послуга дизайну інтер'єру квартири в жк складалася з правильного підбору колористики, гармонійного поєднанню всіх елементів.
Дизайнерський ремонт квартир по вул. Пральна у Києві має монохромну теплу колористику. В кожному приміщенні можна побачити бежеві відтінки, ідеального поєднані з фактурами світлого дерева та мармуру.
Варто зазначити, що дерев’яні фактури у підлоговому покритті, панелюванні, елементах меблів обиралися в тон з однотонною фарбою стін. Теж саме стосується робочої поверхні, кухонного фартуха, барної стійки, які були оформлені в мармурі. Текстиль, оббивка дивана та м'яких крісел в обідній зоні виконані зі світло-сірої тканини. Колір підібраний максимально схожий, що робить кожний елемент частиною загальної концепції.
Багато світла та використання приладів різних типів роблять інтер'єр затишним. На об'єкті були використані трекові системи, підсвічування полиць та дзеркал світлодіодними стрічками, настінні та підлогові торшери.
Багато світла та використання приладів різних типів роблять інтер'єр затишним. На об'єкті були використані трекові системи, підсвічування полиць та дзеркал світлодіодними стрічками, настінні та підлогові торшери.
Завдяки використанню якісних матеріалів та проведенню ремонтних робіт на професійному рівні, гармонійному поєднанню всіх елементів, правильним планувальним рішенням, додаванню дрібних деталей вдалося створити інтер'єр мрії, на який розраховували замовники.
Ви можете замовити в інтер’єрній компанії Бєлік внутрішній дизайн інтер'єру будинку чи квартири, де проміркованість буде присутня в кожній дрібниці. Простір стане зручним та комфортним для вашої родини. Ремонт не викличе проблем та побажання щось змінити. Він лишиться оптимальним протягом багатьох років.
В компанії Бєлік для вас спланують дизайн таунхауса 120 кв м або будь-якого іншого приміщення, відповідно до його особливостей, індивідуальних побажань та ваших фінансових можливостей. Заздалегідь пропишуть ефективний шлях до інтер'єру мрії та допоможуть втілити в життя всі дизайнерські ідеї.
Ви можете замовити в інтер’єрній компанії Бєлік внутрішній дизайн інтер'єру будинку чи квартири, де проміркованість буде присутня в кожній дрібниці. Простір стане зручним та комфортним для вашої родини. Ремонт не викличе проблем та побажання щось змінити. Він лишиться оптимальним протягом багатьох років.
В компанії Бєлік для вас спланують дизайн таунхауса 120 кв м або будь-якого іншого приміщення, відповідно до його особливостей, індивідуальних побажань та ваших фінансових можливостей. Заздалегідь пропишуть ефективний шлях до інтер'єру мрії та допоможуть втілити в життя всі дизайнерські ідеї.
Подивіться нашу презентацію