СУЧАСНА КЛАСИКА В ІНТЕР’ЄРІ КВАРТИРИ В ЖК DELMAR У КИЄВІ
Сучасна класика в інтер'єрі квартири - це про бажання жити в естетиці, комфорті та затишку. Існує безліч максимально не схожих між собою стилістичних направлень. І кожне з них, при правильному підході та реалізації, може стати ідеальним варіантом для проживання.
Неокласика - це адаптований під ритм та стиль життя сучасної людини класичний стиль. Оформлені квартири зберігають ту саму розкіш та естетику через декор, вибір матеріалів, комбінування кольорів та розподіл простору. Всі ці візуально гарні елементи чудово поєднують із сучасними тенденціями та інноваціями, функціональними меблями та практичними рішеннями.
Неокласика - це адаптований під ритм та стиль життя сучасної людини класичний стиль. Оформлені квартири зберігають ту саму розкіш та естетику через декор, вибір матеріалів, комбінування кольорів та розподіл простору. Всі ці візуально гарні елементи чудово поєднують із сучасними тенденціями та інноваціями, функціональними меблями та практичними рішеннями.
Лише освічений дизайнер інтер'єру зможете дійсно якісно та гарно відтворити неокласику. Цей стиль потребує використання преміальних матеріалів, приховування надто сучасних елементів за фасадами, раціональний розподіл простору, впровадження цікавих акцентів через колористику та декор.
Інтер'єрна компанія Бєлік має досвід розробки та реалізації об'єктів різної складності. Кожний наш приклад унікальний. Але при цьому всі вони відтворюють стиль життя та потреби мешканців, їх індивідуальність та світогляд. Якщо мова йде про сучасну класику, присутньо багато прикладів оформлення дизайну інтер'єру будинку та квартир.
Інтер'єрна компанія Бєлік має досвід розробки та реалізації об'єктів різної складності. Кожний наш приклад унікальний. Але при цьому всі вони відтворюють стиль життя та потреби мешканців, їх індивідуальність та світогляд. Якщо мова йде про сучасну класику, присутньо багато прикладів оформлення дизайну інтер'єру будинку та квартир.
Цей стиль - це не розкішний максимум, а база серед багатьох замовників з квартирами в ЖК. Обмеження площі та нестандартне планування не є недоліком. Дизайнери інтер'єрної компанії Бєлік вміють вдало обігравати особливість кожного об'єкта. Впроваджують сміливі та ефективні рішення. Впевнитися особисто в тому, що сучасна класика в інтер'єрі квартири може бути доцільною та чарівною можна, подивитись приклад в ЖК Дельмар.
Квартира в ЖК Delmar - елегантність, легкість та естетика в кожному рішенні
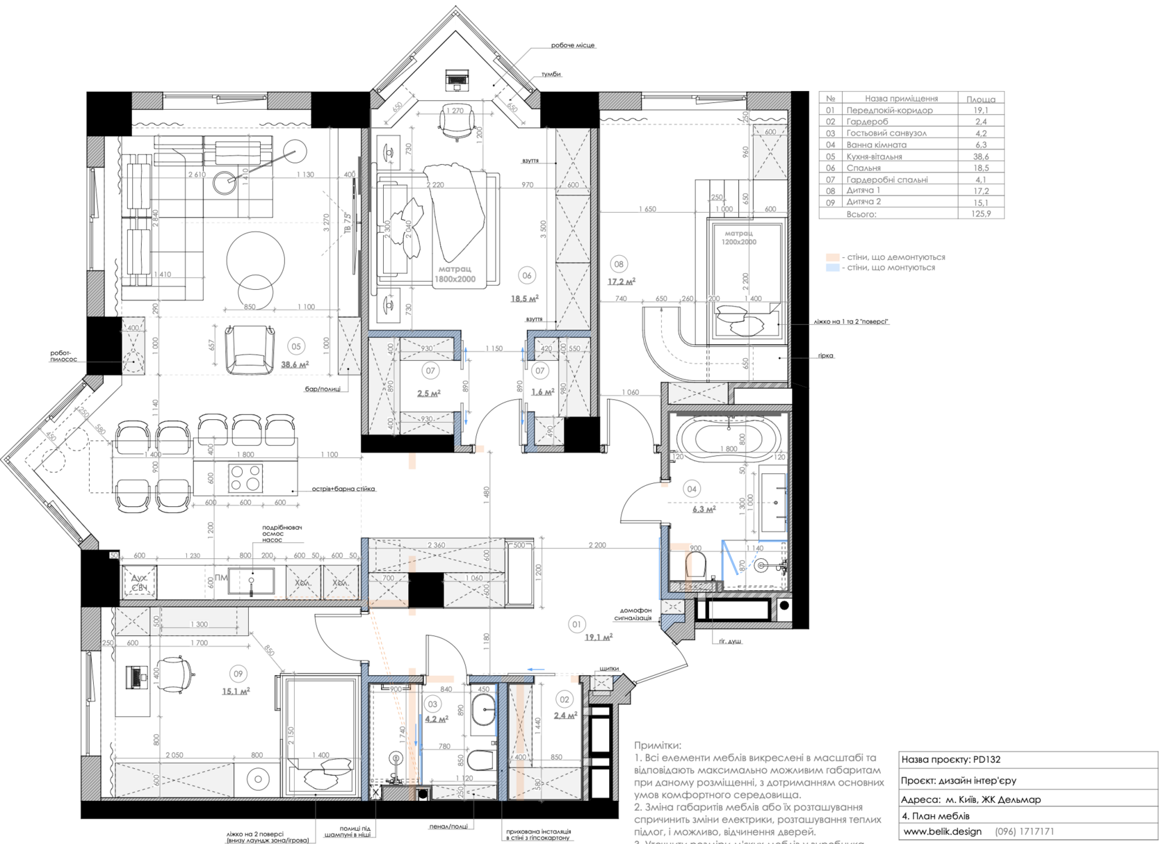
Як і проект дизайн інтер'єру таунхауса чи будинку, оформлення цієї квартири потребувало детального та правильного планування. Об’єкт має нестандартну геометрію від забудовника, яка проявлена через незручні ніші та скошені стіни. В спальні та кімнаті загального користування присутні гострі кути з панорамними вікнами. Цей нетиповий простір потребував особливої уваги.
Завдяки меблям під замовлення вийшло зробити зручний письмовий стіл в спальні та додати місце для відпочинку в вітальні. Ця складність стала перевагою дизайну. Сам вхід в кімнату-студію, яка поєднує в собі вітальню та кухню-столову, не відділяли додатковими стінами чи дверима. Це додало вільного простору та зручності в пресуванні. Візуально не переобтяжило приміщення.
Передпокій облаштовано проміркованою меблевою групою. Вона виступає частиною стіни та окремою гардеробною. В середні розташована велика кількість місць для зберігання сезонних речей. Ззовні фасади мають ідентичне зі стінами оформлення, окрім дзеркала у весь зріст з підсвічуванням.
Не лише в передпокої, але й в спальні є гардеробна. Це необхідна кімната, яка максимально розвантажує простір від непотрібних шаф. На об'єкті було присутньо декілька ніш, які дизайнерові вдалося обіграти на користь.
В ЖК Delmar присутня також маленька, але просто необхідна пральня кімната. Саме в ній розміщено пральну та сушильну машини, бойлер, щитові, котел. Додані полиці для зберігання інвентарю та засобів для прибирання, техніки та інших допоміжних речей.
Не лише в передпокої, але й в спальні є гардеробна. Це необхідна кімната, яка максимально розвантажує простір від непотрібних шаф. На об'єкті було присутньо декілька ніш, які дизайнерові вдалося обіграти на користь.
В ЖК Delmar присутня також маленька, але просто необхідна пральня кімната. Саме в ній розміщено пральну та сушильну машини, бойлер, щитові, котел. Додані полиці для зберігання інвентарю та засобів для прибирання, техніки та інших допоміжних речей.
Завдяки такому рішенню, у ванній кімнаті та санвузлі максимум вільного місця. Це дозволило використати інсталяції, зручно розмістити необхідну сантехніку. В квартирі ЖК Delmar присутньо два санвузли - що є базою. кожне з приміщень оформляли, відповідно до загальної концепції дизайну квартири. В ідентичних кольорах, фактурах, з декоруванням та впровадженням ефективних рішень. Не виникне проблеми з очікуванням зранку чи черги, коли прийшли гості.
Візуальна частина квартири ЖК Дельмар
Перетинаючи поріг цієї квартири, одразу складається враження високої вартості та преміального класу ремонтна. В оздобленні кожної кімнати були використані дорогі та натуральні матеріали. Тут ви не зустрінете штучності, пластику та нав'язливих принтів.
Кожний елемент в оформленні підлоги, стелі та навіть вибір меблів гармонійно поєднано між собою. Для досягнення цієї мети меблі замовлялися у перевірених виробників. Виготовлялися вони за кресленнями, які робили наші дизайнери. З орієнтованістю на їх ідеї, пропозиції.
Фактури мармуру на керамогранітних панелей великого формату - це MustHave сучасних та якісних ремонтів. За ними легко доглядати. Вони мають максимальні показники якості та естетичності.
Крім кладки на підлозі, мармурові плити були використані в кожному куточку приміщення, а саме в:
Ця квартира, як і оригінальна класика, має чітку геометрію та максимум світла. Там де немає фактур мармуру та декорування, стіни пофарбовані в однотонний білий колір. На акцентних стінах виконані молдинги.
- оздобленні декоративних панелей на стінах у вітальні, спальні;
- оформленні стільниці в обідній зоні - тут були поєднані два різних візерунки (темний і світлий мармур);
- на робочій поверхні та кухонному фартусі - використали одну плиту, створивши ефекти єдності;
- виборі підвіконь;
- фасадах корпусах приліжкових тумб в спальні;
- оздобленні всіх стін та підлоги в ванній кімнаті, гостьовому санвузлі.
Ця квартира, як і оригінальна класика, має чітку геометрію та максимум світла. Там де немає фактур мармуру та декорування, стіни пофарбовані в однотонний білий колір. На акцентних стінах виконані молдинги.
Рішення поєднати острів з обіднім столом є оригінальним. На острові створено додаткове місце для приготування їжі. Також є окремі місця для сидіння, як за барною стійкою. Щоб не ставити окремо стіл, додали стільницю та продовжили цей елемент меблі. Створивши тим самим цікавий дизайнерський акцент.
Акцентними елементами тут виступають м'які меблі та освітлювальні прилади. Перші - виготовлялися під замовлення, з підбором однакових тканин. Оригінальним та акцентним кольором став смарагдовий Насичений зелений присутній в обшивці м'якого крісла та обідніх стільців, ліжка, декоративних подушок на дивані.
Освітлення в ЖК Delmar - це окрема та дуже важлива тема. Воно працює, як режисер. Додаткові прилади створюють настрій, змінюють сприйняття простору, акцентують деталі та навіть виступають додатковим декором.
Акцентними елементами тут виступають м'які меблі та освітлювальні прилади. Перші - виготовлялися під замовлення, з підбором однакових тканин. Оригінальним та акцентним кольором став смарагдовий Насичений зелений присутній в обшивці м'якого крісла та обідніх стільців, ліжка, декоративних подушок на дивані.
Освітлення в ЖК Delmar - це окрема та дуже важлива тема. Воно працює, як режисер. Додаткові прилади створюють настрій, змінюють сприйняття простору, акцентують деталі та навіть виступають додатковим декором.
На об'єкті використані в якості основного освітлення трекові системи. Додатково обиралися:
Дизайн квартир Київ ціна включала в себе всі витрати на ремонт. Оформлення дитячої кімнати - це окрема історія та дуже важлива історія. Тут запровадили індивідуальний підхід саме до найменшого мешканця. Замість напускної розкішні наші співробітники підлаштовувалися під вік, стать, інтереси та захоплення дитини.
Дитяча виконана у ніжних фіолетово-рожевих кольорах, з квітами на шпалерах та цікавою меблевою групою. Додано багато місць для зберігання та ігор. Дитяче ліжко зробити на другому поверсі. Під ним створити лаунж-зону, де дитина може гратися та розміщувати гостей. В стіні присутні додаткові місця для відпочинку та ігор. Меблі зручні та оригінальні.
- дизайнерські люстри незвичних форм;
- підсвічування полиць, панелей на стінах, дзеркал та окремих елементів LED-стрічками;
- бра для підлоги;
- лампи настінні тощо.
Дизайн квартир Київ ціна включала в себе всі витрати на ремонт. Оформлення дитячої кімнати - це окрема історія та дуже важлива історія. Тут запровадили індивідуальний підхід саме до найменшого мешканця. Замість напускної розкішні наші співробітники підлаштовувалися під вік, стать, інтереси та захоплення дитини.
Дитяча виконана у ніжних фіолетово-рожевих кольорах, з квітами на шпалерах та цікавою меблевою групою. Додано багато місць для зберігання та ігор. Дитяче ліжко зробити на другому поверсі. Під ним створити лаунж-зону, де дитина може гратися та розміщувати гостей. В стіні присутні додаткові місця для відпочинку та ігор. Меблі зручні та оригінальні.
Звернувшись до студій інтер'єрів Бєлік, ви не лише отримаєте персоналізований простір. Вам завчасно зможуть розрахувати ціну дизайн проекту будинку зі схожим на цей чи протилежним стилем оформлення. Дизайнери компанії Бєлік надають професійні рекомендації та облаштовують простір під ваш побут.
Розрахована в проекті вартість дизайну будинку складатиметься не лише з необхідних ремонтних робіт та процесів. Також в приблизну цифру будуть включені: оздоблювальні та декоруючі матеріали, меблі, освітлювальні прилади, сантехніка, декор тощо. Кожна позиція береться з каталогів реальних виробників та продавців, що дозволяє уникнути ризику переплати під час реалізації у кілька разів.
Розрахована в проекті вартість дизайну будинку складатиметься не лише з необхідних ремонтних робіт та процесів. Також в приблизну цифру будуть включені: оздоблювальні та декоруючі матеріали, меблі, освітлювальні прилади, сантехніка, декор тощо. Кожна позиція береться з каталогів реальних виробників та продавців, що дозволяє уникнути ризику переплати під час реалізації у кілька разів.
Подивіться нашу презентацію