ДИЗАЙН ИНТЕРЬЕРА ФОТО В ЖК ПРИЧАЛ 8 В КИЕВЕ
• Локация – ЖК Причал 8, Киев, Украина
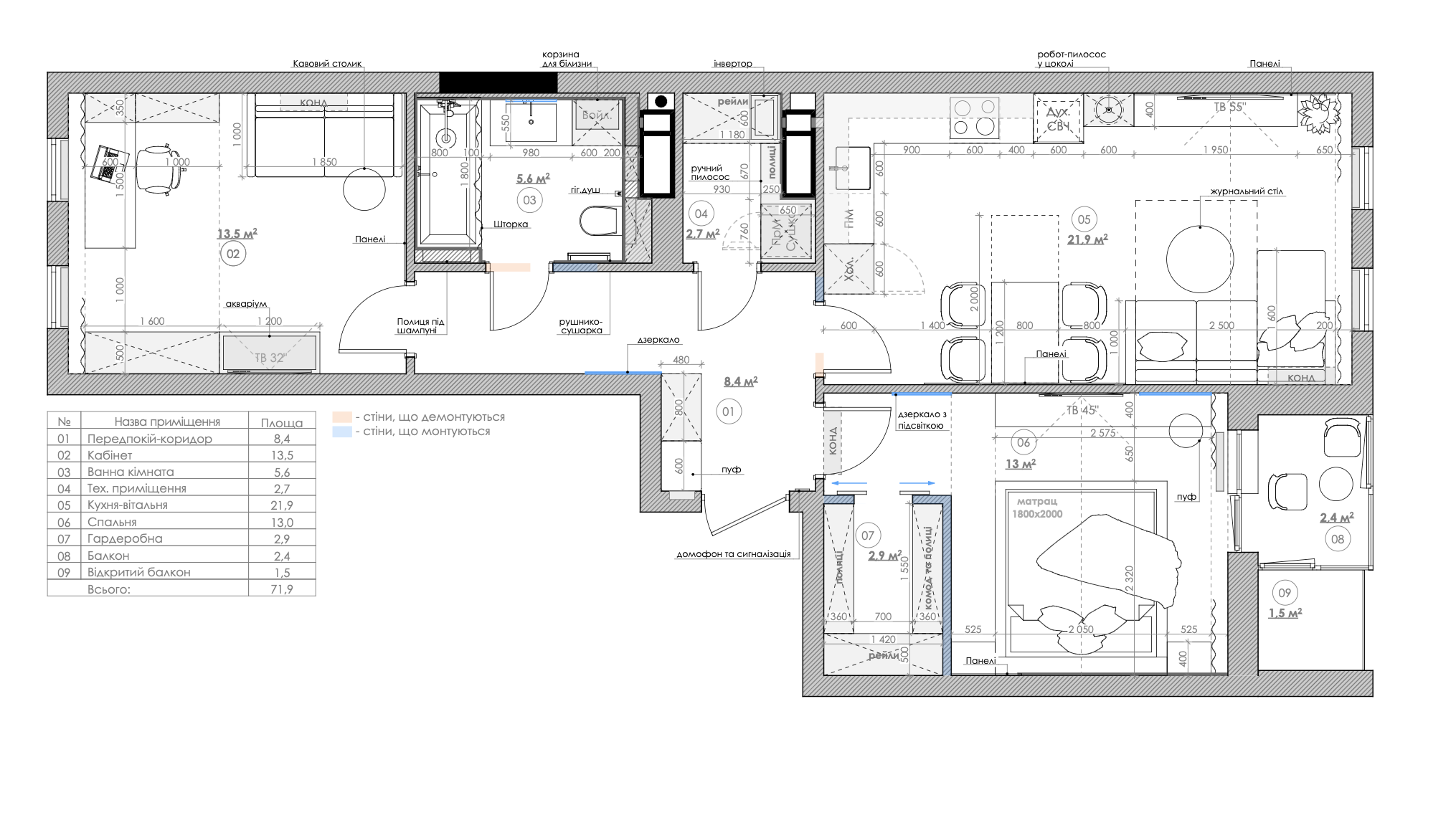
• Площадь квартиры – 71,9 м²
• Формат работы – дизайн проекта интерьера + дизайнерский надзор + ремонт под ключ
• Год завершения – 2025
• Площадь квартиры – 71,9 м²
• Формат работы – дизайн проекта интерьера + дизайнерский надзор + ремонт под ключ
• Год завершения – 2025
Большинство людей сегодня хотят получить персонализированный, функциональный и уникальный ремонт квартиры дизайн. Постоянно находиться в помещении, где будет отображаться их индивидуальность, стиль жизни и сфера занятости. Где будут закрыты потребности каждого члена семьи.
Важно в момент планирования ремонта не начать выполнять все процессы самостоятельно. Обращение к “знакомым” мастерам также не лучший вариант. Ремонт скорее всего окажется посредственным, не совсем удобным и требующим систематического внесения корректировок.
Важно в момент планирования ремонта не начать выполнять все процессы самостоятельно. Обращение к “знакомым” мастерам также не лучший вариант. Ремонт скорее всего окажется посредственным, не совсем удобным и требующим систематического внесения корректировок.
Обратившись к профессионалам вы получите услуги по ремонту квартир Киев по четкому плану и с гарантиями качества. В таком интерьерном агентстве, как Белик, все ремонтные процессы отлажены. В команду исполнителей выбраны люди, доказавшие свой профессионализм на реальном опыте.
Качественный ремонт начинается не с покупки материалов и планирования размещения мебели вдоль стен. Первый этап — это подробное проектирование квартиры через схемы, чертежи. Именно на этапе проектирования можно запланировать размещение всех коммуникаций и способы их сокрытия, принять решения по поводу перепланировки (полной, частичной), придумать актуальные архитектурные элементы, предусмотреть все ремонтные процессы и варианты внедрения инноваций.
Качественный ремонт начинается не с покупки материалов и планирования размещения мебели вдоль стен. Первый этап — это подробное проектирование квартиры через схемы, чертежи. Именно на этапе проектирования можно запланировать размещение всех коммуникаций и способы их сокрытия, принять решения по поводу перепланировки (полной, частичной), придумать актуальные архитектурные элементы, предусмотреть все ремонтные процессы и варианты внедрения инноваций.
Далее следует разработка фотореалистичных 3Д визуализаций. Ориентируются дизайнеры на пожелания, стиль жизни, потребности и увлечения заказчиков. Выбирается определенное стилистическое направление. Через фотореалистичные изображения в программе клиент видит, как именно будет выглядеть объект после ремонта. Дизайн интерьера фото дает четкое представление о том, в какой атмосфере будет проживать семья. Позволяет на этом этапе внести коррективы, избежать ошибок, добиться визуальной гармонии и правильно запланировать все процессы.
Студия интерьеров Белик имеет множество уникальных и заслуживающих внимание объектов. Убедиться лично в эффективности всех идей и современности подхода позволяет дизайн интерьера фото. Инновационным, оптимальным, персонализированным и действительно комфортным считается квартира в ЖК Причал 8 в Киеве. Дизайнером интерьера были внедрены лучшие идеи и тенденции. Их полностью подстроили стиль под потребности жильцов, отобразив их индивидуальность и повысив уровень жизни.
Студия интерьеров Белик имеет множество уникальных и заслуживающих внимание объектов. Убедиться лично в эффективности всех идей и современности подхода позволяет дизайн интерьера фото. Инновационным, оптимальным, персонализированным и действительно комфортным считается квартира в ЖК Причал 8 в Киеве. Дизайнером интерьера были внедрены лучшие идеи и тенденции. Их полностью подстроили стиль под потребности жильцов, отобразив их индивидуальность и повысив уровень жизни.
Уникальные решения в интерьере квартиры ЖК Причал 8 в Киеве
Интерьер этого объекта интересен не только эстетикой и гармонией. Сотрудники компании Белик выполнили на объекте сложную инженерную проработку. Внедрили лучше инновационные решения во всех сферах обустройства жилья.
1. Планировка и зонирование
Единое пространство кухни-гостинной — лучшее решение для создания современных пространств. Зонирование выполнено не перегородками, а с помощью света и отделки стен.
Например, деревянная панель за обеденным столом визуально выделяет столовую зону.
Скрытые системы хранения присутствует по всей квартире. В прихожей и кухне шкафы спроектированы в потолок, что создает эффект стены и не загромождает пространство.
Эталоном современной эргономики стал собственный хозблок.
Колонна из техники (сушильная машина над стиральной) экономит место и избавляет от необходимости развешивать белье на раскладных сушилках.
Интегрированное хранение сохраняет дополнительно несколько свободных м2 в квартире. Позволяет избежать нахождения разных элементов в отдельных комнатах. Все бытовые приборы (пылесос, гладильная доска, бытовая химия) спрятаны в один глубокий шкаф с розетками внутри, что полностью убирает “визуальный шум”.
Вся мебель в ЖК Причал 8 в Киеве сделана под заказ, что позволило создать множество интегрированных элементов, функциональных зон, скрытых систем хранения и целых мебельных групп.
Единое пространство кухни-гостинной — лучшее решение для создания современных пространств. Зонирование выполнено не перегородками, а с помощью света и отделки стен.
Например, деревянная панель за обеденным столом визуально выделяет столовую зону.
Скрытые системы хранения присутствует по всей квартире. В прихожей и кухне шкафы спроектированы в потолок, что создает эффект стены и не загромождает пространство.
Эталоном современной эргономики стал собственный хозблок.
Колонна из техники (сушильная машина над стиральной) экономит место и избавляет от необходимости развешивать белье на раскладных сушилках.
Интегрированное хранение сохраняет дополнительно несколько свободных м2 в квартире. Позволяет избежать нахождения разных элементов в отдельных комнатах. Все бытовые приборы (пылесос, гладильная доска, бытовая химия) спрятаны в один глубокий шкаф с розетками внутри, что полностью убирает “визуальный шум”.
Вся мебель в ЖК Причал 8 в Киеве сделана под заказ, что позволило создать множество интегрированных элементов, функциональных зон, скрытых систем хранения и целых мебельных групп.
2. Скрытый монтаж и “бесшовность”
Двери скрытого монтажа в цвет стены практически невидимы.
Единое напольное покрытие с отсутствием порогов между зонами (прихожая, кухня, гостиная) визуально объединяет квартиру в одну большую площадь.
Сложно даже заметить, где заканчивается корпус шкафа и начинаются декоративные панели. Такого эффекта достигли благодаря подбору идентичных фасадов под заказ, выбору одинаковых узоров и оттенков.
3. Сложная комбинация текстур
Инновация заключается в том, как удачно состыкованы разные материалы:
Двери скрытого монтажа в цвет стены практически невидимы.
Единое напольное покрытие с отсутствием порогов между зонами (прихожая, кухня, гостиная) визуально объединяет квартиру в одну большую площадь.
Сложно даже заметить, где заканчивается корпус шкафа и начинаются декоративные панели. Такого эффекта достигли благодаря подбору идентичных фасадов под заказ, выбору одинаковых узоров и оттенков.
3. Сложная комбинация текстур
Инновация заключается в том, как удачно состыкованы разные материалы:
- скала и дерево — в спальне используется панно из “дикого камня”, которое стыкуется с гладкими шпонированными панелями через световой профиль;
- монолитность в области кухонного фартука — использование широкоформатного керамогранита с минимальным количеством швов делает зону готовки целостной и легкой в уходе;
- керамогранит под мрамор/камень в ванной — крупные плиты с активным природным рисунком делают интерьер более статусным и дорогим.
4. Световой дизайн как архитектурный элемент
Свет в квартире не просто выполняет функцию освещения. Он зонирует и “строит” пространство:
5. Функциональные детали
Хозяйственный блок со встроенной техникой, зоной для хранения инвентаря для уборки, с открытыми полками и подсветкой экономит место в квартире.
Низкая длинная консоль (тумба под ТВ) плавно переходит в декоративную панель, объединяя зону отдыха в общую композицию.
Зеркала во весь рост не только функциональны, но и удваивают узкое пространство.
Теневой профиль создает эффект “парящих” стен. Это одно из самых дорогих и технологичных решений в современном дизайне. Вместо обычного плинтуса и потолочного багета по периметру пола и потолка оставлен узкий технологический зазор (теневой шов).
Свет в квартире не просто выполняет функцию освещения. Он зонирует и “строит” пространство:
- световые карнизы — скрытая LED-лента вдоль штор и стен создает мягкий градиент.;
- вертикальные линии — подсветка внутри шкафов-витрин и вертикальные светильники в спальне (у изголовья) визуально приподнимают потолки;
- функциональная подсветка мебели (под нижней базой) — создает “парящий” эффект и служит ночным дежурным светом;
- акцентные подвесы — группа из трех цилиндрических черных светильников над обеденным столом создает фокусную точку.
5. Функциональные детали
Хозяйственный блок со встроенной техникой, зоной для хранения инвентаря для уборки, с открытыми полками и подсветкой экономит место в квартире.
Низкая длинная консоль (тумба под ТВ) плавно переходит в декоративную панель, объединяя зону отдыха в общую композицию.
Зеркала во весь рост не только функциональны, но и удваивают узкое пространство.
Теневой профиль создает эффект “парящих” стен. Это одно из самых дорогих и технологичных решений в современном дизайне. Вместо обычного плинтуса и потолочного багета по периметру пола и потолка оставлен узкий технологический зазор (теневой шов).
Создается визуальное впечатление, что стены не касаются пола и потолка. Это расширяет пространство и делает линии интерьера идеально четкими.
В ванной комнате используются сенсорные выключатели и бесконтактные дозаторы, что соответствует тренду на гигиеничность и технологичность.
Дизайн интерьера фото объекта ЖК Причал 8 в Киеве подтверждает, что возможно удачно вплести сложные технические решения при создании визуальной простоты. Стоимость дизайн проекта квартиры в таком стиле или любом другом направлении зависит исключительно от ее площади. Цена озвучивается на старте, прописывается в договоре и не меняется в процессе.
В ванной комнате используются сенсорные выключатели и бесконтактные дозаторы, что соответствует тренду на гигиеничность и технологичность.
Дизайн интерьера фото объекта ЖК Причал 8 в Киеве подтверждает, что возможно удачно вплести сложные технические решения при создании визуальной простоты. Стоимость дизайн проекта квартиры в таком стиле или любом другом направлении зависит исключительно от ее площади. Цена озвучивается на старте, прописывается в договоре и не меняется в процессе.
Во время разработки проектной документации вы можете знать приблизительные границы цены на ремонт квартир. Также можете самостоятельно указать свой бюджет, который готовы потратить на интерьер. В зависимости от этой цифры дизайнер будет принимать определенные решения, подбирать материалы и планировать дополнительные процессы (по желанию).
Обратившись в бюро интерьеров Белик вы получите спокойный, персонализированный, функциональный и продуманный до мелочей интерьер. Пространство, где даже элементы декора будут иметь свое практическое обоснование.
Обратившись в бюро интерьеров Белик вы получите спокойный, персонализированный, функциональный и продуманный до мелочей интерьер. Пространство, где даже элементы декора будут иметь свое практическое обоснование.