ЄВРОРЕМОНТ ПІД КЛЮЧ КВАРТИРИ НА ВУЛ. ГНАТА ЮРИ У КИЄВІ
• Локація - вул. Гната Юри, Київ, Україна
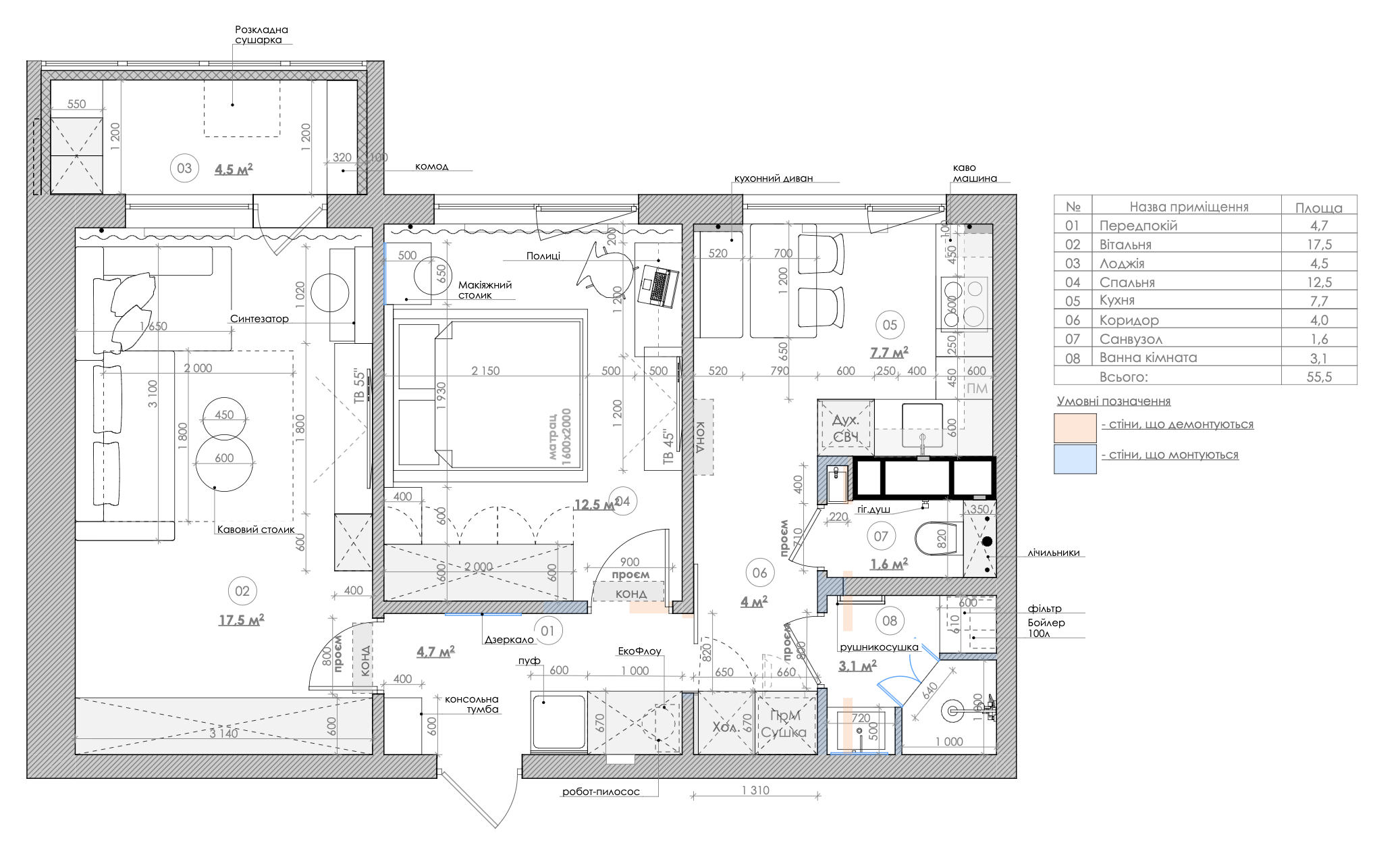
• Площа квартири – 55,5 м²
• Формат роботи – дизайн проєкт інтер'єру
• Площа квартири – 55,5 м²
• Формат роботи – дизайн проєкт інтер'єру
Сучасні новобудови дають більше можливостей для реалізації персоналізованого дизайну “з нуля”. Маючи власне житло у квартирах на вторинному ринку також можливо створити сучасний простір. Для досягнення цієї мети та виконання всіх процесів правильно, ліпше обрати євроремонт під ключ квартири.
У цю послугу, як правило, включено розробка проектної документації, її реалізація (ремонт), авторський нагляд. Навіть, якщо ви знаходитесь за межами України, ліпше довіряти дизайни квартир у Польщі перевіреним фахівцям. В такому випадку ви не просто витратите кошти на ремонт, а інвестуєте у свій комфорт, затишок та безпеку.
Інтер'єрна компанія Бєлік створює та реалізує “під ключ” дизайни квартир Варшава, Гданськ, Краків та інші міста Польщі. Студія розширила межі своєї діяльності. Це дозволило навіть за кордоном отримувати якісні послуги з дизайну. Підлаштовувати інтер'єр під власний побут та проживати у максимальному комфортні.
У цю послугу, як правило, включено розробка проектної документації, її реалізація (ремонт), авторський нагляд. Навіть, якщо ви знаходитесь за межами України, ліпше довіряти дизайни квартир у Польщі перевіреним фахівцям. В такому випадку ви не просто витратите кошти на ремонт, а інвестуєте у свій комфорт, затишок та безпеку.
Інтер'єрна компанія Бєлік створює та реалізує “під ключ” дизайни квартир Варшава, Гданськ, Краків та інші міста Польщі. Студія розширила межі своєї діяльності. Це дозволило навіть за кордоном отримувати якісні послуги з дизайну. Підлаштовувати інтер'єр під власний побут та проживати у максимальному комфортні.
В Польщі, як і в Україні, ви можете не лише замовити розробку проєктної документації. Весь дизайн квартири Гданськ разом із євроремонтом виконується під ключ (за запитом). Надаються гарантії якості. Дотримуються кошторис та терміни. З максимальною відповідністю 3Д візуалізаціям відтворюється візуал, реалізуться технічні та дизайнерські рішення на об'єктах.
Навіть якщо мова йде про маленьку квартиру у забудовах старого фонду, можна отримати персоналізований та затишний простір. Співробітники інтер'єрної агенції Бєлік допоможуть зробити все правильно. Ми виконуємо євроремонт під ключ квартири будь-якої складності, за чітким проєктом та з урахуванням одразу кількох факторів:
Євроремонт під ключ квартири від Бєлік — це прояв вашої індивідуальності через житло, гарантії якості та естетичності результату. Переглянувши портфоліо з прикладами можна впевнитися, що кожний дизайн проект з ремонтом від компанії інтер'єрів Белік є ідеальним.
Об’єкт на вул. Гната Юри заслуговує окремої уваги. Адже на 55 м2 вдалося створити дійсно затишний, функціональний та сучасний простір. Квартиру, яка має вигляд зображень з дизайнерських журналів. Простір, в якому зрозуміле кожне рішення, а загальна атмосфера максимально комфортна та зручна.
- індивідуальні потреби майбутніх мешканців;
- побажання до стилістичного оформлення, кольорів, певного дизайну предметів інтер'єру (меблі, сантехніка, освітлювальні прилади, декор);
- особливості самого об'єкта — його площа, стан, планування;
- бюджет клієнта — з урахуванням певних меж дизайнер інтер'єрів приймає архітектурні та технічні рішення, обирає матеріали та товари.
Євроремонт під ключ квартири від Бєлік — це прояв вашої індивідуальності через житло, гарантії якості та естетичності результату. Переглянувши портфоліо з прикладами можна впевнитися, що кожний дизайн проект з ремонтом від компанії інтер'єрів Белік є ідеальним.
Об’єкт на вул. Гната Юри заслуговує окремої уваги. Адже на 55 м2 вдалося створити дійсно затишний, функціональний та сучасний простір. Квартиру, яка має вигляд зображень з дизайнерських журналів. Простір, в якому зрозуміле кожне рішення, а загальна атмосфера максимально комфортна та зручна.
Євроремонт під ключ квартири — ефективні рішення
Це невелика квартира, тому багато уваги було приділено раціональному розподілу простору. За бажанням замовника, на об’єкті не виконували масштабних робіт з перепланування.
Тут немає звичної кімнати-студії. Вітальня, кухня, спальня — всі ці приміщення розташовані окремо та об'єднані загальним коридором. Можливості зробити власну гардеробну не було. Кожну нішу та комору по-максимуму використали. Спланували від самого початку меблі замовлення, які візуально стали продовження стін.
Обиралися ідентичного кольору та фактури фасади. Робилися вбудованими та зі зручними механізмами двері. Меблеві конструкції мають висоту до стель, приховані ручки, зручне розташування полиць та ящиків. Таке рішення дозволило мінімізувати візуальний шум, сховати все непотрібне за дверима та використати кожний сантиметр на користь.
Крім меблів під замовлення, цей євроремонт під ключ квартири виконано у досить стриманому стилі. Це мінімалізм з відсутністю непотрібного декору та незрозумілих архітектурних інсталяцій. Правильно додані елементи з еко направлення зробили інтер'єр більш затишним та “живим”.
Крім меблів під замовлення, цей євроремонт під ключ квартири виконано у досить стриманому стилі. Це мінімалізм з відсутністю непотрібного декору та незрозумілих архітектурних інсталяцій. Правильно додані елементи з еко направлення зробили інтер'єр більш затишним та “живим”.
В дизайні квартири використали кілька професійних прийомів, які дозволили зберегти відчуття простору, не жертвуючи функціональністю.
Ефективними та заслуговуючими на увагу дизайнерськими рішеннями для такого невеликого простору слід вважати:
Ефективними та заслуговуючими на увагу дизайнерськими рішеннями для такого невеликого простору слід вважати:
- максимально спокійна колористика, без різких переходів та яскравих акцентів — використання сірих та білих палітр візуально збільшує простір, не завантажуючи його;
- поєднання монохромних кольорів, матових поверхонь та фактур насиченого дерева — комбінування однотону з природними фактурами створюють потрібні акценти, роблять простір більш затишним;
- “левітуючі” меблі — підвісні тумби та консолі візуально збільшують кімнату та значно полегшують прибирання (робот-пилосос проїде всюди);
- розумне зонування світлом — замість однієї великої люстри в центрі, використано багаторівневе освітлення (трекові системи, прихована LED-підсвітка, настінні бра, акцентні люстри, вбудовані у стелі точкові світильники);
- вертикальні лінії та рейки (бафли) — візуально “підіймають” стелю та допомагають уникнути ефекту “коробки”;
- багатофункціональні підвіконня — вузький простір на лоджії перетворили на барну зону та творили місце для додаткового зберігання речей;
- дзеркала та відбиваючі поверхні — у передпокої та спальні дзеркала розташовані так, щоб відбивати світло з вікон або сусідніх зон;
- розміщення меблевих груп — у спальні робочий стіл вдало інтегровано у систему зберігання, у вітальні пенал для декору та книг плавно переходить у підвісну тумбу тощо;
- оздоблення, як елемент декору — дерев’яні панелі, молдинги на стінах, перехід від однотону до фактурного оформлення стін створюють цікаві акценти, позбавляючи необхідності додатково розміщувати предмети декору у кімнатах.
Варто зазначити, що саме оздоблення стін виступає якірним елементом в інтер'єрі цієї квартири. Не маючи можливості розмістити великі та складні архітектурні елементи, було прийняте рішення працювати з фактурами. В кожній кімнаті можна побачити вдалі та цікаві переходи на стінах. Однотонна сіра краска ідеально поєднується з дерев'яними панелями, які також підсвічуються за периметром. У вітальні цікавою стала частина стіни, що імітує скелю. В той час як інша її половина вже прикрашена молдингами. Різноманіття в оформленні візуально створює ефект преміального інтер'єру та візуально прикрашає оселю. Все це не краде м2 у приміщеннях.
Потребуєте сучасного міського житла, де темні акценти не обтяжують простір завдяки правильному освітленню та великій кількості дерев'яних поверхонь? Бажаєте додати яскравих фарб у свою оселю або доцільно запровадити надсучасні інновації? В інтер’єрній компаній Бєлік допоможуть досягти цієї мети. Спланують та реалізують інтер’єр вашої мрії, підлаштувавши його під ваші потреби та зробивши доцільним.
Потребуєте сучасного міського житла, де темні акценти не обтяжують простір завдяки правильному освітленню та великій кількості дерев'яних поверхонь? Бажаєте додати яскравих фарб у свою оселю або доцільно запровадити надсучасні інновації? В інтер’єрній компаній Бєлік допоможуть досягти цієї мети. Спланують та реалізують інтер’єр вашої мрії, підлаштувавши його під ваші потреби та зробивши доцільним.
🔗 Дивіться також:
Подивіться нашу презентацію