ІНТЕР’ЄР ОДНОКІМНАТНОЇ КВАРТИРИ ДЛЯ СІМ’Ї З ДИТИНОЮ В ЖК ОЗЕРНИЙ ГАЙ У С. ГАТНЕ
Функціональний інтер'єр однокімнатної квартири для сім'ї з дитиною
Невеликі квартири (до 50 м2) можуть стати ідеальним стартом для молодого подружжя. Навіть родини із дітьми може вдало облаштувати побут, розмістити всередині все необхідне та досягнути комфортних умов. Безумовно, для цього потрібно не слідувати стандартним та звичайним рішенням. Щоб створити на 50 м2 дійсно затишний, функціональний та сучасний дизайн, варто підійти до його планування творчо. Звернутися до фахівців, які мають напрацьовану базу та реально ефективні варіанти оформлення житла.
В такому випадку ви не отримаєте:
- розставлені вздовж стін корпусні меблі;
- захаращені та візуально перевантажені непотрібним декором кімнати;
- нестачу місця для відпочинку або ігор з дітьми;
- невдало прокладені та приховані комунікації;
- відсутні розетки у необхідних місцях тощо.
Дизайнер спланує інтер'єр однокімнатної квартири для сім'ї з дитиною до дрібниць. Заздалегідь (через схеми, плани, технічну документацію та 3Д візуалізації) створить зручний в майбутньому простір.
Саме завдяки розробці проектної документації вийде прийняти актуальні та ефективні рішення. Дизайнер інтер'єрів може “гратися” з плануванням та розставленням всіх предметів меблів, запропонувати кілька варіантів оформлення житла. Вже на основі затверджених планів буде проводитись розробка 3Д візуальній. Вона також базується на обмірах, затверджених планувальних рішеннях, потребах родини, їх рівні життя та можливостях. Залежно від заявленого бюджету будуть плануватися складні або більш компромісні варіанти, які забезпечать якісний ремонт. Також обиратимуться оздоблення, меблі та всі товари для інтер'єру.
Саме завдяки розробці проектної документації вийде прийняти актуальні та ефективні рішення. Дизайнер інтер'єрів може “гратися” з плануванням та розставленням всіх предметів меблів, запропонувати кілька варіантів оформлення житла. Вже на основі затверджених планів буде проводитись розробка 3Д візуальній. Вона також базується на обмірах, затверджених планувальних рішеннях, потребах родини, їх рівні життя та можливостях. Залежно від заявленого бюджету будуть плануватися складні або більш компромісні варіанти, які забезпечать якісний ремонт. Також обиратимуться оздоблення, меблі та всі товари для інтер'єру.
Компанія дизайн інтер'єрів Бєлік працює з понад 50 партнерами. Кожна позиція з візуалізацій реально існує та доступна до купівлі. Також вона відповідає можливостям замовника. Дизайнер інтер'єру не відображає у 3Д преміальні матеріали або дизайнерські освітлювальні прилади (меблі, декор), якщо є реальні обмеження у витратах.
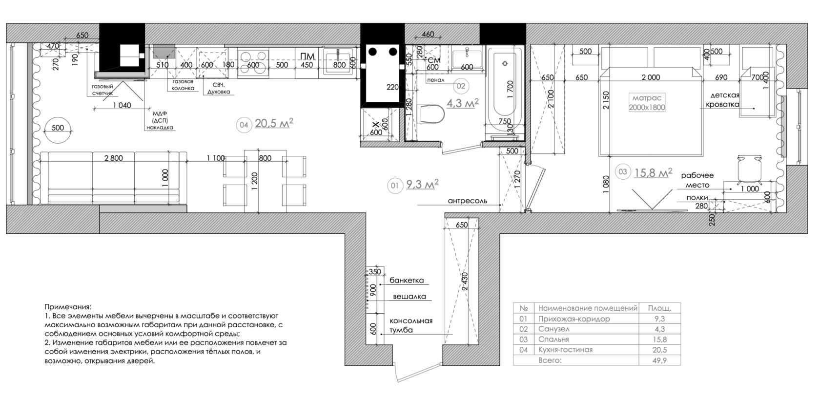
Варто розуміти, що навіть певні межі в видатках не впливають на візуал та зручність дизайну. Кожний інтер'єр однокімнатної квартири для сім'ї з дитиною персоналізований та розрахований на якість. Чудовим прикладом, де були реальні обмеження в просторі, можна вважати об’єкт ЖК Озерний Гай. Оформлювали невелике житло для родини з дитиною. Дизайнерам вдалося досягти бажаного ефекту затишку, комфорту та зручності.
Варто розуміти, що навіть певні межі в видатках не впливають на візуал та зручність дизайну. Кожний інтер'єр однокімнатної квартири для сім'ї з дитиною персоналізований та розрахований на якість. Чудовим прикладом, де були реальні обмеження в просторі, можна вважати об’єкт ЖК Озерний Гай. Оформлювали невелике житло для родини з дитиною. Дизайнерам вдалося досягти бажаного ефекту затишку, комфорту та зручності.
Оформлення інтер'єру однокімнатної квартири для родини з дитиною в ЖК Озерний Гай
Обралися дійсно ефективні та кращі рішення для облаштування невеликих квартир. Зробили вільним планування в кухні. Це приміщення вдало об'єднане з вітальнею, що дозволило розмістити всередині одразу кілька функціональних зон.
Приміщення прямокутне, тому одна стіна - це кухонний гарнітур, з робочою поверхнею та всіма вбудованими меблями. Навпроти вийшло поставити круглий обідній стіл, та м’які крісла. В другій частині кімнати розміщено зона вітальні, з м’яким диваном, ТВ на стіні та навіть вбудованою шафою.
Простір не захаращено непотрібними елементами декору. Естетика досягнута за допомогою правильного вибору оздоблення, декорування стін дерев'яними панелями та правильно підібраними меблями. Корпусні конструкції зроблені під замовлення, що забезпечує максимально раціональне використання простору. Кожний см2 облаштовано, уникнено наявність щілин та непотрібних ніш. Самі матеріали меблів підібрано відповідно до оздоблення стін. Шафи тут плавно перетікають в оздоблення, не привертаючи зайвої уваги.
Інтер'єр однокімнатної квартири для сім'ї з дитиною в ЖК Озерний Гай виконано переважно у світлих кольорах. Вони візуально збільшують кімнату, роблять її вільнішою. Щоб не виникало ефекту стерильності та надмірної “чистоти” дизайнер використав кращі фактури, декорування, поєднання відтінків.
Інтер'єр однокімнатної квартири для сім'ї з дитиною в ЖК Озерний Гай виконано переважно у світлих кольорах. Вони візуально збільшують кімнату, роблять її вільнішою. Щоб не виникало ефекту стерильності та надмірної “чистоти” дизайнер використав кращі фактури, декорування, поєднання відтінків.
На площі, стінах, корпусних шафах, у виборі певних меблів можна побачити фактури дерева. Вони присутні в різних частинах кімнати, але виконані в ідентичному кольорі, максимально наближених матеріалах. Це відображає цілісність ідеї та допомагає в створенні акцентних зон (ТВ, місце для приймання їжі тощо). Замість ідеально пофарбованого оздоблення зробили цікаву акцентну стіну з невеликих білих цеглинок, дадали рельєфності.
Цікавими елементами декору, які також мають функціонал, стали саме освітлювальні прилади. Мова йде не про одну люстру посеред кімнати. Використання вбудованих у стелю ламп, естетичної люстри в обідній зоні, трекових систем, підсвічування робочої поверхні та шаф світлодіодними стрічками додали естетики в інтер’єр.
Цікавими елементами декору, які також мають функціонал, стали саме освітлювальні прилади. Мова йде не про одну люстру посеред кімнати. Використання вбудованих у стелю ламп, естетичної люстри в обідній зоні, трекових систем, підсвічування робочої поверхні та шаф світлодіодними стрічками додали естетики в інтер’єр.
Крім вітальні-кухні у квартирі присутній невеликий передпокій з вбудованою шафою, ванна кімната та спальня. В спальні розташоване все для того, щоб родина могла відпочити після насиченого дня. Саме в ній було встановлено дитяче ліжко, на перший час зростання малечі. Також всередині розміщено величне зручне ліжко для батьків, шафа, робоче місце, приліжкові полиці. Крім візуально спокійних палітр та різнорівневого освітлення для спальні дизайнер обрав якісний текстиль. Штори, які не пропускають надто яскравого світла та які додають затишку в інтер’єр. Постіль з натуральних матеріалів та м’який килим, шо не викличе алергії.
Об'єкт в ЖК Озерний Гай має нестандартне планування, тому дизайнер інтер’єрної компанії зробив велику роботу, щоб досягти дійсно сучасного та комфортного результату. Інтер'єр однокімнатної квартири для сім'ї з дитиною повністю задовольняє всі потреби власників не лише з візуального огляду.
Об'єкт в ЖК Озерний Гай має нестандартне планування, тому дизайнер інтер’єрної компанії зробив велику роботу, щоб досягти дійсно сучасного та комфортного результату. Інтер'єр однокімнатної квартири для сім'ї з дитиною повністю задовольняє всі потреби власників не лише з візуального огляду.
Правильно прокладені комунікації, вентилювання та кондиціонування, розміщені на потрібній висоті вимикачі, вірно прорахована кількість та визначені місця розміщення розеток, приховані за панелями елементи, недостатня кількість освітлення, передбачені місця для зберігання речей - все це створює функціональний простір. Ремонт, який не викличе проблем та інтер'єр, який не схочеться змінити через кілька років.
Таке оформлення є оптимальним. Навіть у процесі дорослішання дитини не потрібно буде все перероблювати. Достатньо буде додати потрібні меблі та зробити невелике переставляння.
Таке оформлення є оптимальним. Навіть у процесі дорослішання дитини не потрібно буде все перероблювати. Достатньо буде додати потрібні меблі та зробити невелике переставляння.
В компанії інтер'єрів Бєлік можна замовити дизайн квартири для однієї людини, пари з домашніми улюбленцями, цілої родини з дітьми, під здачу або продаж. Дизайнер інтер'єрів розробляє документацію, враховуючи потреби та особливості кожного конкретного замовника. Саме тому всі наші об'єкти мають персоналізовані, зручні та покращуючи рівень життя власників простори.
Замовивши дизайн проєкт інтер’єру, родина отримує не просто красиву картинку, а чітко продуманий простір, адаптований під життя з дитиною. Проєктна документація дозволяє заздалегідь врахувати всі сценарії користування квартирою, передбачити зони для сну, гри, зберігання та відпочинку без перевантаження простору.
Реалізація такого простору неможлива без якісного ремонту квартири, виконаного відповідно до проєкту. Саме дотримання креслень, схем і технічних рішень гарантує, що інтер’єр буде не лише естетичним, а й безпечним, функціональним та зручним для всієї родини.
Реалізація такого простору неможлива без якісного ремонту квартири, виконаного відповідно до проєкту. Саме дотримання креслень, схем і технічних рішень гарантує, що інтер’єр буде не лише естетичним, а й безпечним, функціональним та зручним для всієї родини.
Ще на етапі планування замовник розуміє, якою буде середня вартість ремонту. Це дозволяє правильно розподілити бюджет, уникнути спонтанних витрат і підібрати оптимальні матеріали, які прослужать багато років навіть за активного сімейного використання.
Реальні приклади дизайнерського ремонту квартир демонструють, що навіть однокімнатна квартира може бути комфортною для родини з дитиною. Продумані планувальні рішення, якісні матеріали та увага до деталей дозволяють створювати простори, які не потребують постійних змін з роками.
Реальні приклади дизайнерського ремонту квартир демонструють, що навіть однокімнатна квартира може бути комфортною для родини з дитиною. Продумані планувальні рішення, якісні матеріали та увага до деталей дозволяють створювати простори, які не потребують постійних змін з роками.
Звернувшись до студії дизайну Бєлік, ви отримуєте персоналізований підхід, професійний супровід та інтер’єр, який реально покращує рівень життя. Проєкт у ЖК Озерний Гай — яскраве підтвердження того, що навіть на обмеженій площі можна створити затишний, функціональний та сучасний простір для всієї родини.
Подивіться нашу презентацію