СУЧАСНИЙ ІНТЕР’ЄР ДВОКІМНАТНОЇ КВАРТИРИ У ЖК ВАРШАВСЬКИЙ ПЛЮС
Сучасний інтер'єр двокімнатної квартири - як його створити
Двокімнатні квартири - це найрозповсюдженіший варіант житла. При правильному підході в 60-70 м2 можна розмістити родину з дітьми. Влаштувати собі простір для роботи, занять хобі, відпочинку та зустрічей з друзями також легко на таких об’єктах.
Важливим аспектом оформлення двокімнатних приміщень є ергономічний та максимально функціональний розподіл простору. Адже, на перший погляд, ці об'єкти здаються доволі великими. Але припустившись помилки в плануванні, розміщення меблів та надмірному додаванні декору ви отримаєте захаращену квартиру.
Щоб уникнути розчарувань та отримати дійсно сучасний інтер'єр двокімнатної квартири, варто від самого початку звернутися до дизайнера. Цей фахівець спланує до дрібниць ваш простір та ремонт.
Студія інтер'єрів Бєлік на професійному рівні займається розробкою та реалізацією дизайн проектів для житлової нерухомості. На нашому рахунку багато саме двокімнатних квартир. Є приклади перероблених об'єктів вторинного житла та оформлення приміщень з нуля, у новобудовах. Другий варіант все частіше викликає інтерес у людей, які придбали житло у ЖК.
Студія інтер'єрів Бєлік на професійному рівні займається розробкою та реалізацією дизайн проектів для житлової нерухомості. На нашому рахунку багато саме двокімнатних квартир. Є приклади перероблених об'єктів вторинного житла та оформлення приміщень з нуля, у новобудовах. Другий варіант все частіше викликає інтерес у людей, які придбали житло у ЖК.
Побачити приклад сучасної квартири у ЖК Варшавський Плюс та розуміти, як саме виглядає сучасне її облаштування можна в нашому портфоліо. Реальні приклади з фото результатів, а не лише візуалізаціями - це підтвердження професіоналізму робітників студії дизайну інтер'єрів Бєлік.
Особливості оформлення двокімнатної квартири ЖК Варшавський Плюс
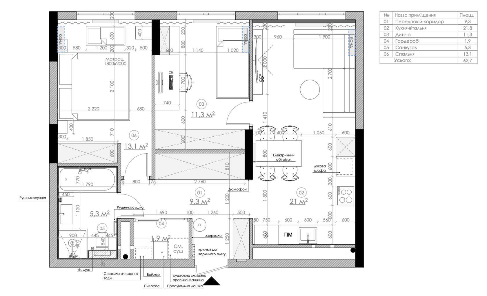
Ця двокімнатна квартира площею всього 60 м2 є комфортним житлом для родини з дітьми. Під двома кімнатами маються на увазі повноцінні та окремі приміщення з дверьми. Це спальня та дитяча.
Спальня, не дивлячись на досить невеликий простір, вмістила в собі двоспальне ліжко, шафу, приліжкові ящики, дитяче ліжечко. Дизайн кімнати доволі спокійний та витриманий. Всі елементи гармонійно поєднані між собою, без різких контрастів та непотрібних елементів.
Дитячу дизайнер інтер'єрів зробив окремим та персоналізованим простором. Адже крім місця для сну, в цих приміщеннях надважливим є створення куточка для ігор та занять. В цій дитячий все це вміщено. Окрему увагу приділили корпусним меблям, які зайняли одну зі стін та стали цікавою частиною в приміщення (це не просто шафа).
Орієнтуючись на вік, стать та інтереси самої дитини дизайнер інтер'єрів обрав колористику, тканини, декор. Про власні уподобання та індивідуальні побажання власники житла сповіщають дизайнера студії інтер'єрів Бєлік ще на стадії розробки проектної документації. Для цього надається анкета клієнта.
Орієнтуючись на вік, стать та інтереси самої дитини дизайнер інтер'єрів обрав колористику, тканини, декор. Про власні уподобання та індивідуальні побажання власники житла сповіщають дизайнера студії інтер'єрів Бєлік ще на стадії розробки проектної документації. Для цього надається анкета клієнта.
Крім окремих дитячої та спальні, в цій квартирі вдалося створити достатньо простору вітальню. Невелика площа не завадила зробити кімнату-студію та по-максимуму використати її. Економія кількох м2, завдяки відмовленню від непотрібних стін та перегородок в цьому випадку, не стала виключенням. Враховуючи, що об'єкти в ЖК Варшавський Плюс здаються у вільному пануванні, дизайнеру інтер'єрів вдалося уникнути необхідності зводити непотрібні стіни.
Кухня-гостина є кімнатою загального користування. Приміщенням, де зустрічається та проводить час вся родина. Місцем, куди приходять гості та рідні. Відсутність стін не лише фактично, але й візуально робить кімнату більш просторою.
Кухня-гостина є кімнатою загального користування. Приміщенням, де зустрічається та проводить час вся родина. Місцем, куди приходять гості та рідні. Відсутність стін не лише фактично, але й візуально робить кімнату більш просторою.
Беручи до уваги обмеженість квадратури, було прийняте рішення використання світлих палітр. Небесно блакитний та білий у поєднанні з природними фактурами дерева - все це виглядає максимально органічно. Замість дотримання надсучасної стилістики, перевага надається практичним направленням. У сучасному оформленні квартири гармонійно поєднані елементи Скандинавського, еко та мінімалістичного стилів.
У квартирі присутня кімната-студія, яка поділена на функціональні зони. Розподіл вдалося зробити за допомогою меблів, точковому підсвічуванню, плавним переходам кольорів та фатур. Кухня відповідає загальній концепції, тому меблі в ній виконані в гарному блакитному кольорі. Однотонні матові фасади висотою до стелі не мають ручок та непотрібного декору. Техніка та кухонний інвентар тут сховані за фасадами. Кухня та гостинна мають різне підлогове покриття (плитка та паркет). Додатково розділяють ці дві зони обідні стіл, який размістить цілу родину.
У квартирі присутня кімната-студія, яка поділена на функціональні зони. Розподіл вдалося зробити за допомогою меблів, точковому підсвічуванню, плавним переходам кольорів та фатур. Кухня відповідає загальній концепції, тому меблі в ній виконані в гарному блакитному кольорі. Однотонні матові фасади висотою до стелі не мають ручок та непотрібного декору. Техніка та кухонний інвентар тут сховані за фасадами. Кухня та гостинна мають різне підлогове покриття (плитка та паркет). Додатково розділяють ці дві зони обідні стіл, який размістить цілу родину.
Зважаючи на обмеженість простору, дизайнеру інтер'єрної компанії Бєлік вийшло вмістити всі необхідні меблі та техніку у квартирі.Всі кімнати виглядають максимально просторими та є функціональними.
Пересуватися, відпочивати, грати з дітьми, готувати їжу, зустрічати гостей - всі процеси виконувати тут максимально комфортно. Також за оселею легко доглядати. Обрані матеріали є якісними та не потребують окремих умов з догляду. Відсутність зайвого декору також є перевагою у прибиранні.
У квартирі ЖК Варшавський Плюс присутні практичні рішення, природні елементи, органічні комбінації, зручне планування, затишні елементи декору та текстилю.
Пересуватися, відпочивати, грати з дітьми, готувати їжу, зустрічати гостей - всі процеси виконувати тут максимально комфортно. Також за оселею легко доглядати. Обрані матеріали є якісними та не потребують окремих умов з догляду. Відсутність зайвого декору також є перевагою у прибиранні.
У квартирі ЖК Варшавський Плюс присутні практичні рішення, природні елементи, органічні комбінації, зручне планування, затишні елементи декору та текстилю.
Сучасна квартира від бюро інтер'єрів Бєлік
Якщо візуал можна побачити на прикладах та сторінках в мережі, то всі технічні аспекти частіше за все лишаються поза увагою. Компанія дизайн інтер'єрів Бєлік не просто створює органічні та естетичні простори. Ми передбачаємо всі можливі проблеми, уникаючи їх. Також розробляється детальна технічна документація, в якій передбачається прокладання всіх комунікацій, прописуються необхідні роботи та процеси.
У проекті ви можете побачити, як саме будуть проводитися електромережі, сантехніка, точки доступу, вентилювання та кондиціонування, опалення тощо. Способи приховування дротів за панелями або іншим оздобленням, кількість та положення розеток (вимикачів, освітлювальних приладів), особливості монтажу меблів та сантехніки - все це також відображається у дизайн проекті.
У інтер'єрній компанії Бєлік ви можете замовити індивідуальну розробку дизайну квартири, який відповідатиме вашим потребам та бюджету. Кожне рішення буде зважене та логічне, орієнтоване на конкретно ваш об’єкт.
У інтер'єрній компанії Бєлік ви можете замовити індивідуальну розробку дизайну квартири, який відповідатиме вашим потребам та бюджету. Кожне рішення буде зважене та логічне, орієнтоване на конкретно ваш об’єкт.
Саме дизайн проєкт інтер’єра дозволяє об’єднати всі ідеї, побажання та технічні рішення в єдину зрозумілу систему. Для двокімнатної квартири це особливо важливо, адже необхідно збалансувати приватні зони, простір для спільного дозвілля та зберігання речей. Продуманий дизайн проєкт інтер’єра дає змогу ще на етапі планування побачити кінцевий результат і уникнути помилок під час ремонту.
Важливу роль у цьому процесі відіграє дизайнер інтер’єру київ, який добре орієнтується в особливостях столичних новобудов і типових планувань. Саме локальний досвід дозволяє врахувати всі нюанси — від розташування стояків до реальних сценаріїв життя родини. Професійний дизайнер інтер’єру київ працює не лише з естетикою, а й з логікою, ергономікою та практичністю простору.
Важливу роль у цьому процесі відіграє дизайнер інтер’єру київ, який добре орієнтується в особливостях столичних новобудов і типових планувань. Саме локальний досвід дозволяє врахувати всі нюанси — від розташування стояків до реальних сценаріїв життя родини. Професійний дизайнер інтер’єру київ працює не лише з естетикою, а й з логікою, ергономікою та практичністю простору.
Окреме питання, яке цікавить більшість замовників, — ціна дизайн проекту квартири. Вона формується з урахуванням площі, складності планування, кількості приміщень та обсягу технічної документації. Важливо розуміти, що інвестиція в професійний проєкт дозволяє уникнути значно більших витрат на переробки та виправлення помилок у процесі ремонту. Детальніше ознайомитися з підходами до формування бюджету можна на сторінці ціна дизайн проекту квартири.
Замовляючи дизайн проект інтер’єру у києві, клієнт отримує не просто набір креслень, а комплексне рішення, адаптоване під конкретний об’єкт і реальні умови експлуатації. Такий підхід дозволяє реалізувати задум без хаосу, затримок і непередбачуваних рішень під час будівельних робіт. дизайн проект інтер’єру у києві — це чітка структура, зрозуміла як замовнику, так і будівельній бригаді.
Замовляючи дизайн проект інтер’єру у києві, клієнт отримує не просто набір креслень, а комплексне рішення, адаптоване під конкретний об’єкт і реальні умови експлуатації. Такий підхід дозволяє реалізувати задум без хаосу, затримок і непередбачуваних рішень під час будівельних робіт. дизайн проект інтер’єру у києві — це чітка структура, зрозуміла як замовнику, так і будівельній бригаді.
У результаті грамотно продуманий дизайн інтер’єру двокімнатної квартири поєднує в собі комфорт, естетику та функціональність. Такий простір легко адаптується до змін у житті родини, залишається актуальним роками та не потребує кардинальних переробок. Саме тому дизайн інтер’єру від студії Бєлік — це рішення, яке працює на щоденний комфорт і впевненість у якості вашого житла.
Подивіться нашу презентацію