ІНТЕР’ЄР ВІТАЛЬНІ В ПРИВАТНОМУ БУДИНКУ У С. ХОТЯНІВКА В КИЇВСЬКІЙ ОБЛАСТІ
• Локація - с. Хотянівка, Київська Область, Україна
• Площа будинку – 204,6 м²
• Формат роботи – дизайн проєкт інтер'єру
• Площа будинку – 204,6 м²
• Формат роботи – дизайн проєкт інтер'єру
Наявність власного будинку дає можливості створити всередині затишну, комфортну для родини та персоналізовану атмосферу. Вдосталь місця в кімнатах дозволяє “гратися” з розтавленням меблів, варіантами декорування та акцентування певних частин приміщення.
Щоб отримати дійсно бажаний результат, який принесе комфорт вашій родині, при плануванні інтер'єру будинку дуже важливо звернутися до компетентних фахівців. Послуги дизайнера інтер'єру ціна на розробку проектної документації частіше за все є фіксованою. Що стосується авторського нагляду та реалізації самого ремонту? Тут багато залежить від обраної вами концепції, професіоналізму та умов роботи виконавців.
Щоб отримати дійсно бажаний результат, який принесе комфорт вашій родині, при плануванні інтер'єру будинку дуже важливо звернутися до компетентних фахівців. Послуги дизайнера інтер'єру ціна на розробку проектної документації частіше за все є фіксованою. Що стосується авторського нагляду та реалізації самого ремонту? Тут багато залежить від обраної вами концепції, професіоналізму та умов роботи виконавців.
Студія інтер'єрів Бєлік — це перевірена роками компанія, яка може планувати дизайн інтер єру Польща (в інших країнах Європи), розробити проект для частини будинку або цілого об'єкта, реалізувати всі ідеї з максимальною точністю.
Навіть, якщо мова йде про планування дизайну всього однієї кімнати чи поверху в забудові, наші дизайнери виконують свою роботу максимально якісно. Підтвердженням цього є інтер'єр вітальні в приватному будинку с. Хотянівка в Київській області. Перетинаючи поріг оселі одразу ж відчувається професійний підхід в плануванні ремонту, безперечна якість кожного запланованого та реалізованого процесу, атмосфера затишку та індивідуальний стиль.
Навіть, якщо мова йде про планування дизайну всього однієї кімнати чи поверху в забудові, наші дизайнери виконують свою роботу максимально якісно. Підтвердженням цього є інтер'єр вітальні в приватному будинку с. Хотянівка в Київській області. Перетинаючи поріг оселі одразу ж відчувається професійний підхід в плануванні ремонту, безперечна якість кожного запланованого та реалізованого процесу, атмосфера затишку та індивідуальний стиль.
Якщо замовляти виключно один поверх чи частину оселі, то вартість буде майже така сама, як ціна дизайн проекта квартири. Адже в агенції дизайну Бєлік ціна проектної документації залежить від площі об’єкта. Що стосується складу проекта? Він містить в собі всі необхідні розрахунки, креслення, 3Д візуалізації, плани та технічну документацію для ремонту.
В майбутньому завжди можна буде дозамовити оформлення іншої частини об'єкта. Або взагалі обговорити планування резервних кімнат (спальня, дитяча, кабінет). Планують їх розмір, положення дверей, проведення комунікацій та способи їх приховування. Варіанти оздоблення та меблювання не беруть до уваги.
В майбутньому завжди можна буде дозамовити оформлення іншої частини об'єкта. Або взагалі обговорити планування резервних кімнат (спальня, дитяча, кабінет). Планують їх розмір, положення дверей, проведення комунікацій та способи їх приховування. Варіанти оздоблення та меблювання не беруть до уваги.
Оформлення вітальні в будинку с. Хотянівка
Замовники мали чіткий запит на інтер'єр вітальні в приватному будинку с. Хотянівка в Київській області. Враховуючи індивідуальні побажання клієнтів, особливості об’єкта та закладений бюджет на ремонт (інтер'єр) дизайнер розробив детальну проектну документацію.
Цей дизайн виглядає дорогим, але стриманим. Акцент було зроблено на текстури та функціональність.Чисті лінії, відсутність зайвого декору та інтегровані меблі — це безпрограшна основа оформлення кімнати-студії. Розміщене на першому поверсі приміщення від самого початку розрахована на постійне перебування гостей, всієї родини у вільний час. Це зона загального користування, де створювалась затишна атмосфера та досягалася максимальна функціональність.
Велика кількість вільного простору, приховані системи зберігання та лаконічні форми (круглі столи, модульний диван) запозичені з мінімалізму. Ці рішення дозволяють ідеально приховати все зайве, додати акцентів в потрібних місцях, уникнути візуальної захаращеності та максимально використати простір.
Щоб досягти візуальної естетики, яку очікували замовники, були впроваджені нотки з неокласики. Сучасна класика ідеально додана в якості молдингів на стінах. Вони додають інтер'єру елегантності та глибини. Також присутні: візуально гарна акцентна люстра в зоні столової, текстури мармуру, підсвічування панелей та молдингів по периметру, текстиль з якісних та дорогих тканин.
Щоб досягти візуальної естетики, яку очікували замовники, були впроваджені нотки з неокласики. Сучасна класика ідеально додана в якості молдингів на стінах. Вони додають інтер'єру елегантності та глибини. Також присутні: візуально гарна акцентна люстра в зоні столової, текстури мармуру, підсвічування панелей та молдингів по периметру, текстиль з якісних та дорогих тканин.
Інтер'єр вітальні-кухні побудований на природній, монохромній базі з використанням теплих і холодних відтінків:
На цьому об'єкті немає різких переходів та надто насичених акцентів. Естетика тут досягається шляхом плавного перетікання одного відтінку до іншого, “гри” з текстурами та візуальними ефектами. Не лише кольори, але і матеріали підібрані з максимальною відповідністю до загальної концепції.
- бежевий та пісочний — основний колір м'яких меблів (диван, обідні стільці) та текстилю;
- дерево (світлий дуб/горіх) — використовується на фасадах кухні, обідньому столі та стелажах;
- білий та світло-сірий — це стіни та стеля, що візуально розширюють простір;
- графітовий та чорний — такі акцентні елементи, як журнальний столик, корпус каміна, ніжки стільців, змішувачі та трекові світильники;
- мармурові текстури — у ванній та на кухонному фартуху додає преміальності.
На цьому об'єкті немає різких переходів та надто насичених акцентів. Естетика тут досягається шляхом плавного перетікання одного відтінку до іншого, “гри” з текстурами та візуальними ефектами. Не лише кольори, але і матеріали підібрані з максимальною відповідністю до загальної концепції.
Будо обрано об’ємний модульний диван з шеніловою оббивкою. В тому ж відтінку м’які обідні стільці та пуф. Легкі напівпрозорі гардини, м'який персиковий килим. Все в кімнаті додає особливого затишку.
Освітлення — це ще один елемент, який дозволяє створювати настрій. Різні сценарії освітлення було додано в інтер'єр вітальні в приватному будинку в с. Хотянівка в Київській області. Основними освітлювальними елементами виступають точкові світильники та магнітні трекові системи на стелі.
Освітлення — це ще один елемент, який дозволяє створювати настрій. Різні сценарії освітлення було додано в інтер'єр вітальні в приватному будинку в с. Хотянівка в Київській області. Основними освітлювальними елементами виступають точкові світильники та магнітні трекові системи на стелі.
Акцентів додають дизайнерська люстра (над обіднім столом) зі скляними кулями та стильні бра на стінах.
Прихована LED-підсвітка стелі, полиць у гардеробній та підлогова підсвітка — все це створює ефект “парячих” меблів та дозволяє “гратися” з атмосферою.
Це збалансований, спокійний, екологічний та дуже актуальний інтер’єр для заміського будинку. Крім естетики у виборі кольорів, фактур та освітлення вдалі планувальні рішення на об'єкті також відіграли важливу роль.
Прихована LED-підсвітка стелі, полиць у гардеробній та підлогова підсвітка — все це створює ефект “парячих” меблів та дозволяє “гратися” з атмосферою.
Це збалансований, спокійний, екологічний та дуже актуальний інтер’єр для заміського будинку. Крім естетики у виборі кольорів, фактур та освітлення вдалі планувальні рішення на об'єкті також відіграли важливу роль.
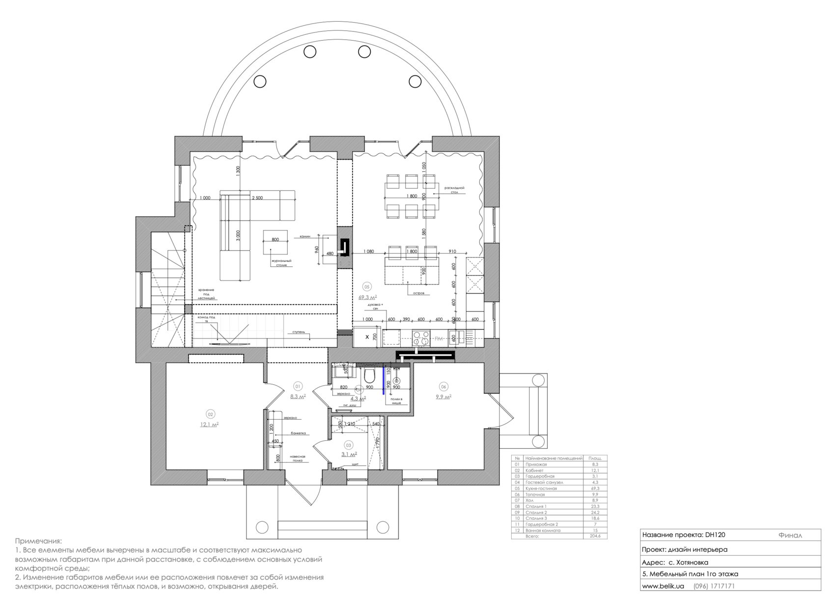
Планування вітальні в будинку с. Хотянівка в Київській області
Зона кухні-вітальні має камін у вигляді центрального композиційного вузла усього будинку. Спроектоване приміщення за принципом open space (відкритого простору). Камін виконує роль не лише затишного вогнища, а й головного інструменту зонування.
Будо прийняте рішення зробити сучасний тристоронній камін, вбудований у масивну колону-перегородку. Завдяки склінню з трьох боків, вогнем можна милуватися одночасно з дивана, обіднього столу та під час приготування їжі на кухні.
Камінна колона візуально розділяє робочу зону кухні та зону відпочинку (вітальні). Простір при цьому залишатися вільним для пересування. Дизайнером був спланований круговий обхід, що зробило планування ергономічним.
Сама кімната студія візуально поділена на три окремі зони:
Таке планування — це ідеальне рішення для сімейних вечорів. Поки хтось відпочиває біля телевізора, інші мешканці будинку можуть вечеряти або готувати. Всі залишаються в одному просторі, об’єднані магією живого вогню в каміні. У вітальні-студії додано вдосталь зручних зон та створено багато місця для розміщення великої кількості людей одночасно (гості, родина).
Сама кімната студія візуально поділена на три окремі зони:
- кухня — має Г-подібної форми з великим островом (слугує робочою поверхнею, барною стійкою для швидких сніданків);
- обідня група (їдальня) — обладнана великим столом із натурального дерева, м’якими стільцями ергономічної форми, акцентною люстрою цікавої форми;
- вітальня — має всі необхідні меблі (величезний модульний диван кольору «тауп» з низькою посадкою, ТБ-зона із консоллю).
Таке планування — це ідеальне рішення для сімейних вечорів. Поки хтось відпочиває біля телевізора, інші мешканці будинку можуть вечеряти або готувати. Всі залишаються в одному просторі, об’єднані магією живого вогню в каміні. У вітальні-студії додано вдосталь зручних зон та створено багато місця для розміщення великої кількості людей одночасно (гості, родина).
В інтер'єрній студії Бєлік ви можете замовити дизайн проект у Варшаві або іншому місті Європи з аналогічною концепцією. Також можна обрати інше за настроєм, кольором та стилістикою оформлення. Для отримання персоналізованого простору варто лише обговорити свої побажання до результату зі співробітником нашої компанії.
Наразі студія дизайн інтер'єрів Бєлік не просто розробляє проектну документацію, але й реалізує дизайн інтер єру у Гданську під ключ. Ми маємо укомплектовану команду перевірених фахівців, понад 50 партнерів та всі необхідні інструменти для надання якісного, бажаного результату.
Наразі студія дизайн інтер'єрів Бєлік не просто розробляє проектну документацію, але й реалізує дизайн інтер єру у Гданську під ключ. Ми маємо укомплектовану команду перевірених фахівців, понад 50 партнерів та всі необхідні інструменти для надання якісного, бажаного результату.
Подивіться нашу презентацію