СУЧАСНА КВАРТИРА У ЖК ВАРШАВСЬКИЙ У КИЄВІ
Сучасна квартира в ЖК Варшавський
Сучасна квартира - це не про квадратні метри та ремонт за стандартами. Сьогодні сучасна квартира свідчить про власний смак та особисті потреби, комбінацію зручності з естетикою. Правильно поставившись до облаштування дизайну власного житла ви отримаєте простір, який відповідатиме всім індивідуальним потребам.
Вже давно в галузі дизайну інтер'єрів відійшли від ідеї дотримуватися одного стилю. Ви не зустрінете ідеальний мінімалізм, класику, еко чи етно. Тому що строгі засади направлень тиснуть та потребують відмови від індивідуальності. Також не всі вони є комфортними для тривалого проживання. Особливо, якщо є діти чи домашні улюбленці. Сучасним вважається дизайн інтер'єру, де вдало поєднані оригінальні засади з різних направлень. Це розробка персоналізованого дизайну, в якому зібрані ефективні рішення, особисті побажання клієнтів та враховані особливості конкретного об’єкта.
Такий підхід дозволяє створювати сучасні інтер'єри, які повністю задовольняють запити клієнта та мешканців оселі. До того ж вони не виглядають стандартно та одноманітно. Кожний простір - індивідуальний та персоналізований, призначений для конкретної родини.
Кожний розроблений та реалізований дизайн проект від Бєлік - це сучасна квартира, в якій впроваджують стандарти майбутнього та враховуються особисті потреби мешканців. В дизайн студії Бєлік представлені різні приклади оформлення інтер'єрів. Всі вони персоналізовані, сучасні, комфортні, гармонійні та естетичні. Чудовим прикладом того, як можна оформити невелику квартиру та зробити її зручною є об'єкт в ЖК Варшавський.
Кожний розроблений та реалізований дизайн проект від Бєлік - це сучасна квартира, в якій впроваджують стандарти майбутнього та враховуються особисті потреби мешканців. В дизайн студії Бєлік представлені різні приклади оформлення інтер'єрів. Всі вони персоналізовані, сучасні, комфортні, гармонійні та естетичні. Чудовим прикладом того, як можна оформити невелику квартиру та зробити її зручною є об'єкт в ЖК Варшавський.
ЖК Варшавський - дизайн та ремонт сучасної квартири
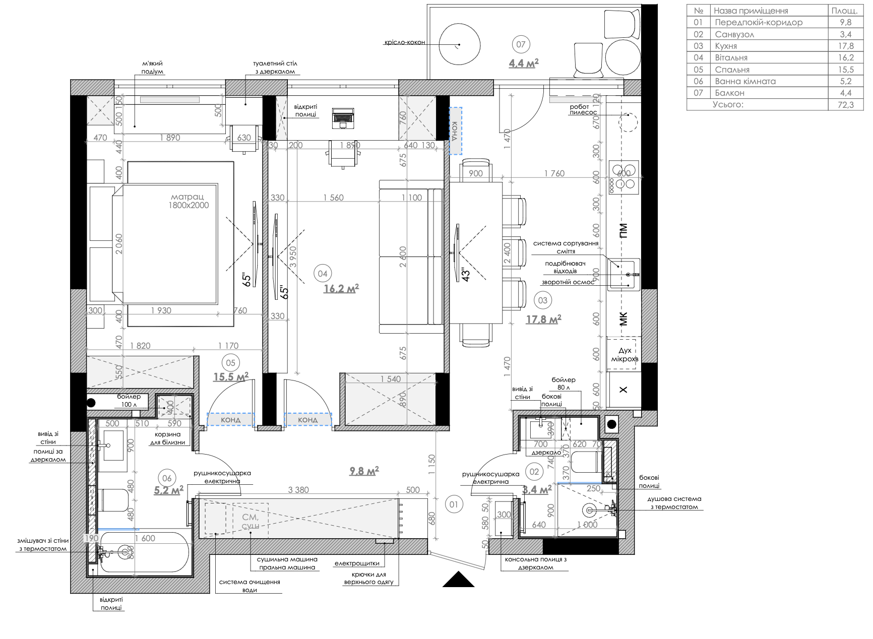
В приміщення 70 м2 потрібно будо раціонально розмістити кухню, вітальню, спальню, ванну кімнату, окремий санвузол та балкон. Замість розповсюдженого рішення поєднати кухню з вітальнею, замовник попросив зробити їх окремими. Кухня має вдосталь місця для приготування їжі. Навпроти розміщено місткий обідній стіл з сучасними м'якими кріслами. Це приміщення максимально світле та зручне, без непотрібних речей та інсталяцій. За фасадами меблів прихована техніка, інвентар, посуд. Естетика досягнута завдяки декоруванню стін панелями, вибору цікавої люстри в зоні столової та візуально гарних меблів.
Колористика (не лише в кухні, а в усій квартирі) світла. Сірі кольори плавно переходить в відтінки білого в оздобленні підлог та стін, виборі меблів, текстилю та декору. Акценти додають фактури натурального каменю (мармур, граніт).
Цікавим рішенням стало оформлення кухонного фартуха та робочої поверхні з одного матеріалу. Це створює ефект цілісності, немає стиків та очевидних переходів. Навіть обідній стіл зробили з тих самих панелей. Такі ідеї ідеально поєднують між собою всі елементи інтер'єру, підкреслюючи концепцію єдності. В усій квартирі (крім спальні та вітальні) підлогове покриття - це керамогранітна плита. Є підігрів, що гарантує затишок та тепло. Візуально таке оздоблення виглядає дуже сучасно та доцільно. Кольори покриття обрані у відповідний том з оздобленням стін (сірі світлі палітри).
Для спальні та вітальні обрали дерев'яний паркет. Він додав затишку та цікавих акцентів в інтер'єр. В кожній кімнатні квартири, окрім люстри, присутні трекові системи, LED-підсвічування окремих елементів та настінні освітлювальні прилади. Багаторівневе освітлення різними елементами допомагає в створенні комфортних умов протягом всього дня. Також доданий естетичний та ненав’язливий декор у вигляді картин, ваз, живих рослин в горщиках, ароматичних свічок, книжок.
Для спальні та вітальні обрали дерев'яний паркет. Він додав затишку та цікавих акцентів в інтер'єр. В кожній кімнатні квартири, окрім люстри, присутні трекові системи, LED-підсвічування окремих елементів та настінні освітлювальні прилади. Багаторівневе освітлення різними елементами допомагає в створенні комфортних умов протягом всього дня. Також доданий естетичний та ненав’язливий декор у вигляді картин, ваз, живих рослин в горщиках, ароматичних свічок, книжок.
На невеликій площі у квартирі вдалося розмістити необхідні для комфорту кімнати:
Сучасна квартира в ЖК Варшавський максимально простора та вільна. Досягли цього завдяки правильному розподілу простору. В кімнатах, якщо і примітні корпусні шафи та меблі, то вони зроблені майже непомітними. Шафа в спальні та вітальні має однотонні матові фасади, фарбовані у колір стін. Виготовлені під замовлення, меблі максимально сходяться з розмірами комор за особливостями кімнат. Всередині зроблені полиці різної величини, що полегшує зберігання.
- передпокій-коридор з великою технічною шафою;
- спальня - в ній розташовані основні меблі (ліжко, шафа, диван поряд з невеликою бібліотекою, стіл зі стільцем для роботи);
- вітальня - також виступає робочим кабінетом або кімнатою для гостей;
- ванна кімната з всією необхідною сантехнікою та достатньо вільним простором;
- санвузол з душовою системою - зроблено окремо від ванної кімнати, що дозволяє уникнути черг протягом для.
Сучасна квартира в ЖК Варшавський максимально простора та вільна. Досягли цього завдяки правильному розподілу простору. В кімнатах, якщо і примітні корпусні шафи та меблі, то вони зроблені майже непомітними. Шафа в спальні та вітальні має однотонні матові фасади, фарбовані у колір стін. Виготовлені під замовлення, меблі максимально сходяться з розмірами комор за особливостями кімнат. Всередині зроблені полиці різної величини, що полегшує зберігання.
Цікавим рішення стало розміщення великої шафи у передпокої-коридорі. Було прийняте рішення розмістити за її фасадами:
Цей технічний куточок дає постійний доступ кожному мешканцю до техніки та всіх елементів. Також приховує масивну техніку та приладдя, що сприяє створенню візуально гарної картинки.
- окреме місце для зберігання верхнього одягу, взуття;
- системи очищення води;
- великий бойлер;
- електрощитки;
- пральну машину;
- сушильну машину.
Цей технічний куточок дає постійний доступ кожному мешканцю до техніки та всіх елементів. Також приховує масивну техніку та приладдя, що сприяє створенню візуально гарної картинки.
В інтер'єрній студії Бєлік певні, що сучасна квартира повинна адаптуватися під потреби мешканців. Саме тому тут створюються енергоефективні, ергономічні, візуально естетичні та зручні простори. Замовити оформлення об'єкта з засадами, які були використані й у ЖК Варшавський, можна з будь-якої точки країни (та з за кордону). В Бєлік розроблять персонально для вас дизайн інтер'єру та планують ремонт, який буде залишатися ідеальними тривалі роки.
Щоб отримати такий результат, як у квартирі в ЖК Варшавський, важливо підходити до облаштування житла комплексно. Саме ремонт квартири з нуля дозволяє продумати всі технічні процеси ще на старті: від прокладання комунікацій і зонування до вибору матеріалів та освітлення. Це виключає хаотичні рішення та забезпечує прогнозований результат.
На етапі планування варто найняти дизайнера квартири, який зможе поєднати естетику з функціональністю. Фахівець аналізує спосіб життя мешканців, особливості планування ЖК Варшавський і формує індивідуальні рішення, що реально працюють у повсякденному житті, а не лише гарно виглядають на візуалізаціях.
Основою реалізації стають дизайнерські проекти квартир, у яких детально опрацьовані планування, 3D-візуалізації та технічна документація. Саме завдяки такому підходу інтер’єр квартири виглядає цілісно, гармонійно та відповідає всім потребам власників, незалежно від площі житла.
На етапі планування варто найняти дизайнера квартири, який зможе поєднати естетику з функціональністю. Фахівець аналізує спосіб життя мешканців, особливості планування ЖК Варшавський і формує індивідуальні рішення, що реально працюють у повсякденному житті, а не лише гарно виглядають на візуалізаціях.
Основою реалізації стають дизайнерські проекти квартир, у яких детально опрацьовані планування, 3D-візуалізації та технічна документація. Саме завдяки такому підходу інтер’єр квартири виглядає цілісно, гармонійно та відповідає всім потребам власників, незалежно від площі житла.
Ще до початку робіт замовник розуміє, якою буде дизайн інтер’єру вартість, які етапи передбачені та за що саме він платить. Це дозволяє уникнути зайвих витрат і зберегти контроль над бюджетом протягом усього процесу.
Інтер’єрна студія Бєлік створює сучасні квартири, які залишаються актуальними роками. Простори адаптовані до життя, змін у родині та повсякденних сценаріїв. Саме такий підхід був реалізований у сучасній квартирі в ЖК Варшавський — без шаблонів, з урахуванням реальних потреб та комфорту мешканців.
Інтер’єрна студія Бєлік створює сучасні квартири, які залишаються актуальними роками. Простори адаптовані до життя, змін у родині та повсякденних сценаріїв. Саме такий підхід був реалізований у сучасній квартирі в ЖК Варшавський — без шаблонів, з урахуванням реальних потреб та комфорту мешканців.
Подивіться нашу презентацію