ІНТЕР’ЄР КВАРТИРИ СТУДІЇ В ЖК РУСАНІВСЬКА ГАВАНЬ У КИЄВІ
• Локація - ЖК Русанівська Гавань, Київ, Україна
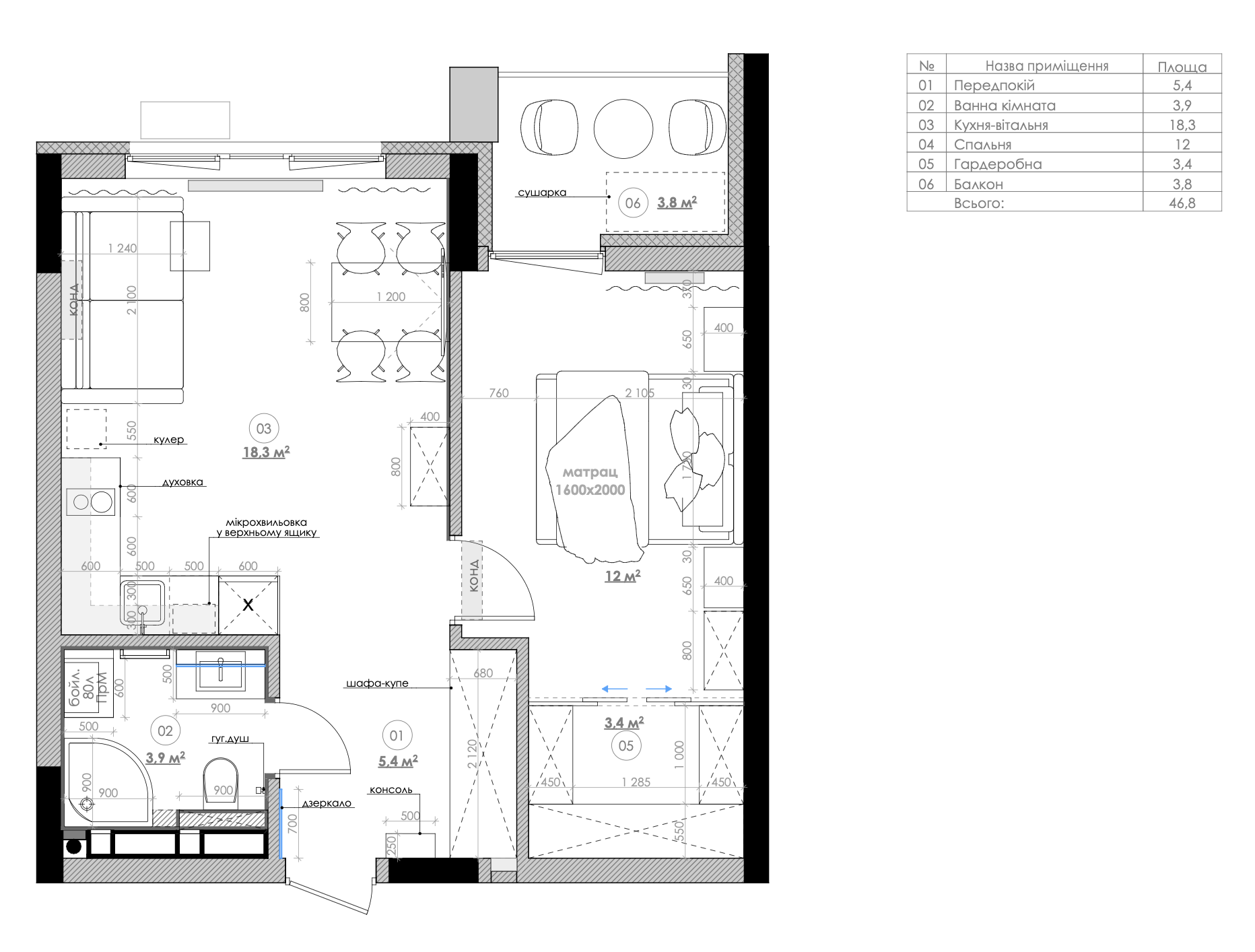
• Площа квартири – 46,8 м²
• Формат роботи – дизайн проєкт інтер'єру
• Площа квартири – 46,8 м²
• Формат роботи – дизайн проєкт інтер'єру
Навіть з невеликої квартири-студії можна створити затишний, зручний та сучасний простір для тривалого проживання. Головне, від самого початку, звернутися до компетентного фахівця та замовити дизайн квартири у Гданську чи іншому місті Європи. Дизайн проект вирішує майже 100% питань, стосовно:
Завдяки проєктній документації вдається уникнути 95% помилок, пов'язаних з невідповідністю розмірів чи кольорів, неможливістю проведення певних комунікацій чи виконання архітектурних робіт. Навіть зайвих робіт та процесів, купівлі непотрібного оздоблення та меблів можна уникнути, якщо замовити дизайн квартири Польща (Україна).
- майбутнього планування приміщень;
- вибору стилю, кольорів та фактур в інтер'єрі;
- проведення всіх ремонтних робіт — їх послідовність та обсяги;
- вибору та закупівлі необхідних товарів для інтер'єру (оздоблення, меблі, сантехніка, текстиль, декор тощо).
Завдяки проєктній документації вдається уникнути 95% помилок, пов'язаних з невідповідністю розмірів чи кольорів, неможливістю проведення певних комунікацій чи виконання архітектурних робіт. Навіть зайвих робіт та процесів, купівлі непотрібного оздоблення та меблів можна уникнути, якщо замовити дизайн квартири Польща (Україна).
Наявність чіткого плану у вигляді дизайн проєкта збереже ваші кошти, нерви та час. Всі роботи проводитимуться за чіткої інструкцією, а результат буде прогнозованим та очікуваним.
Необхідна така підготовка не лише, якщо ви маєте приватний будинок на 100 м2. Спланувати інтер'єр квартири-студії іноді навіть складніше. Адже присутні чіткі обмеження в площі та плануванні. Всього на 40-50 м2 потрібно помістити всі необхідні меблі, техніку, сантехніку.Створити простір для відпочинку, роботи, занять хатніми справамИ тощо. В такому випадку важливим є функціональність та ергономічність.
Необхідна така підготовка не лише, якщо ви маєте приватний будинок на 100 м2. Спланувати інтер'єр квартири-студії іноді навіть складніше. Адже присутні чіткі обмеження в площі та плануванні. Всього на 40-50 м2 потрібно помістити всі необхідні меблі, техніку, сантехніку.Створити простір для відпочинку, роботи, занять хатніми справамИ тощо. В такому випадку важливим є функціональність та ергономічність.
Ліпше рішення для невеликих приміщень — мебель під замовлення. Це дозволяє максимально використати кожну нішу, закуток та вільний см. Створити зручні меблеві групи та досягти ефекту цілісної стіни, що не буде візуально красти простір. З
амість предметів декору у вигляді статуеток та інших дрібних елементів, такі дизайни квартир у Варшаві матимуть акцентне оформлення. Декоративними елементами виступатимуть вдало поєднані кольори та фактури, переходи від одного матеріалу до іншого, освітлювальні прилади та елементи самих меблів.
Побачити приклад вдалого оформлення можна, якщо звернути увагу на об'єкт в ЖК Русанівська Гавань. Цей інтер'єр квартири студії відповідає сучасним Європейським стандартам, при цьому задовольняє потреби замовників та виглядає максимально естетично.
амість предметів декору у вигляді статуеток та інших дрібних елементів, такі дизайни квартир у Варшаві матимуть акцентне оформлення. Декоративними елементами виступатимуть вдало поєднані кольори та фактури, переходи від одного матеріалу до іншого, освітлювальні прилади та елементи самих меблів.
Побачити приклад вдалого оформлення можна, якщо звернути увагу на об'єкт в ЖК Русанівська Гавань. Цей інтер'єр квартири студії відповідає сучасним Європейським стандартам, при цьому задовольняє потреби замовників та виглядає максимально естетично.
Актуальний інтер'єр квартири студії в ЖК Русанівська Гавань
Враховуючи обмеженість простору, дизайн цієї квартири виконувався в функціональному мінімалізмі. Щоб уникнути надлишкової суворості були додані контрастні акценти в кожній з кімнат.
У контрастних кольорах (марсала, теракот) обрані саме предмети меблів — стільці, тумби під телевізор, консолі у спальні та меблі у ванній кімнаті. Це додало інтер'єру характеру, не перевантажуючи його. Використані акцентні елементи в кожній з кімнат, що дозволило підкреслити єдиний концепт.
Завдяки вдалій роботі дизайнера інтер'єрів та правильно прийнятим планувальним рішенням, на 45 м2 вдалося розмістити кухню-вітальню з обідньою зоною, спальню, ванну кімнату та навіть гардеробну.
Остання must-have для невеликих квартир. Адже за дверима, в невеликій коморі, вдалося створити багато місця для зберігання. Полиці, ящики, віршики розташовано з трьох сторін стін. В гардеробній зручно зберігати одяг, взуття, аксесуари, мийні засоби, інвентар та навіть техніку для прибирання.
Що стосується стиля та кольорів? Основний акцент у квартирі ЖК Русанівська Гавань було зроблено саме на раціональному використанні кожного сантиметра та візуальному розширенні простору.
Остання must-have для невеликих квартир. Адже за дверима, в невеликій коморі, вдалося створити багато місця для зберігання. Полиці, ящики, віршики розташовано з трьох сторін стін. В гардеробній зручно зберігати одяг, взуття, аксесуари, мийні засоби, інвентар та навіть техніку для прибирання.
Що стосується стиля та кольорів? Основний акцент у квартирі ЖК Русанівська Гавань було зроблено саме на раціональному використанні кожного сантиметра та візуальному розширенні простору.
Для досягнення цієї мети використали одразу кілька ефективних дизайнерських рішень, а саме:
- акцентні геометричні форми — круглі спинки стільців, чіткі лінії меблевих фасадів;
- контрастна та динамічна колірна палітра — світло-сірий та попелястий кольори поєднано з глибоким теракотовим та чорним (трекові системи, тонкі ніжки меблів, сантехніка)
- використано текстиль для створення затишку — однотонний килим з абстрактним кольоровим принтом, підібрані в однаковому відтінку штори тощо;
- виконані меблі з гладкими матовими фасадами "в стелю", що зливаються зі стінами;
- робота з зонуванням — кухня-вітальня об’єднана, але чітко розділена обідньою групою (столом у формі кола);
- двері прихованого монтажу — використання дверей "невидимок" в колір стін не дробить простір;
- велика кількість інтегрованої підсвітки (ніші під стелею, дзеркала, полиці в гардеробі), що створює різні сценарії — від робочого до вечірнього релаксу;
- підвісні меблі та інсталяції — тумби під ТБ, консолі у ванній та навіть ліжка з ефектом "паріння";
- дзеркальні та глянцеві панелі від підлоги до стелі;
- практичні рішення з технічного погляду — спеціальна ніша під кондиціонер над полицями, грамотне розміщення пральної машини у ванній під стільницею, повноцінна гардеробна кімната з продуманим освітленням кожної секції.
Завдяки всім цим ефективним рішенням вдалося не просто візуально розширити простір. Меблі під замовлення та перевірені дизайнерські “фішки” дозволили по-максимуму звільнити місце в кімнатах. Полегшили процес прибирання та дотримання порядку. Все зайве заховано чи розташовано на своїх місцях. В загальному сприйнятті досягнута візуальна гармонія.
Інтер'єр квартири студії в ЖК Русанівська Гавань є ідеальним прикладом стильної оселі. Якщо вас цікавлять послуги дизайнера інтер'єру ціна — варто звернутися до інтер’єрної компанії Бєлік та домовитися про безкоштовну консультацію. Під час першої бесіди ви отримаєте відповіді на всі турбуючі питання. Вам нададуть всю необхідну інформацію, стосовно розробки та реалізації дизайн проекта. Покажуть приклади робіт, які б вас зацікавили чи підійшли конкретно для вашого об'єкта.
Інтер'єр квартири студії в ЖК Русанівська Гавань є ідеальним прикладом стильної оселі. Якщо вас цікавлять послуги дизайнера інтер'єру ціна — варто звернутися до інтер’єрної компанії Бєлік та домовитися про безкоштовну консультацію. Під час першої бесіди ви отримаєте відповіді на всі турбуючі питання. Вам нададуть всю необхідну інформацію, стосовно розробки та реалізації дизайн проекта. Покажуть приклади робіт, які б вас зацікавили чи підійшли конкретно для вашого об'єкта.
Подивіться нашу презентацію