ДИЗАЙН КУХНІ СТУДІЇ В БУДИНКУ У М. БОРИСПІЛЬ В КИЇВСЬКІЙ ОБЛАСТІ
• Локація - м. Бориспіль, Київська Область, Україна
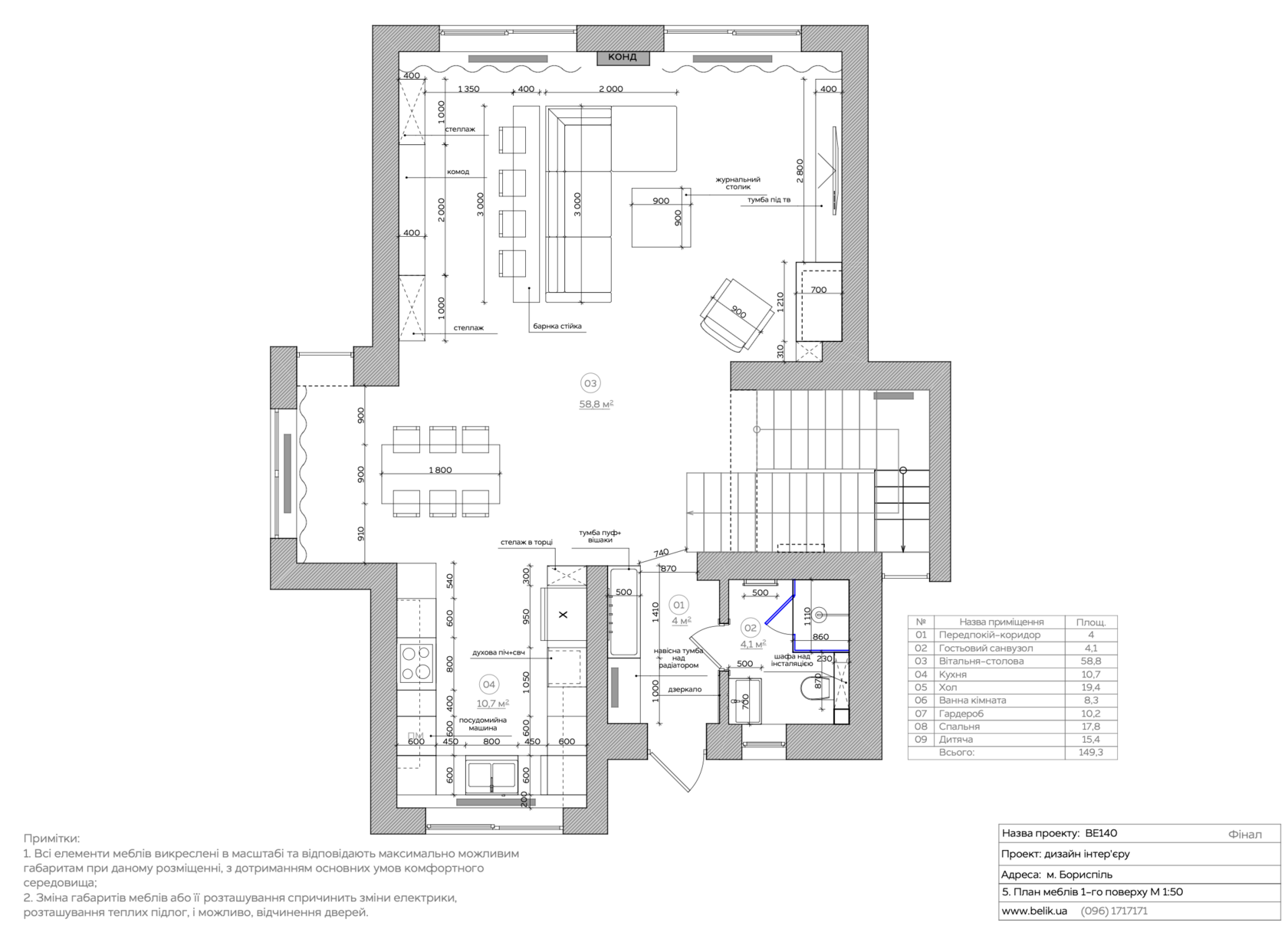
• Площа будинку – 149,3 м²
• Формат роботи – дизайн проєкт інтер'єру
• Площа будинку – 149,3 м²
• Формат роботи – дизайн проєкт інтер'єру
Не завжди є можливість замовити дизайнерський ремонт у будинку у Києві у повному форматі. Іноді фінансові або інші причини (незавершене будівництво, розподіл об'єкта для двох родин тощо) можуть вносити свої корегування. Це зовсім не означає, що потрібно чекати “слушної” миті та відкладати ремонт.
Варто просто звернутися до фахівців, які можуть виконати якісно навіть частину ремонту в вашій оселі. Професійна студія інтер'єру Бєлік має реальний досвід з планування та реалізації дизайн проекта частини будинку (квартири). Ідеальним прикладом є дизайн кухні студії в будинку м. Бориспіль в Київській області. Для цього об'єкта було сплановано інтер'єр першого поверху.
Стиль, колористика, матеріали та планувальні рішення - все обирається, відповідно до індивідуальних потреб замовників. Вже на базі чинного проєкта клієнтами було прийняте рішення замовити дизайнерський ремонт у будинку у Києві, який дійсно вражає.
Варто просто звернутися до фахівців, які можуть виконати якісно навіть частину ремонту в вашій оселі. Професійна студія інтер'єру Бєлік має реальний досвід з планування та реалізації дизайн проекта частини будинку (квартири). Ідеальним прикладом є дизайн кухні студії в будинку м. Бориспіль в Київській області. Для цього об'єкта було сплановано інтер'єр першого поверху.
Стиль, колористика, матеріали та планувальні рішення - все обирається, відповідно до індивідуальних потреб замовників. Вже на базі чинного проєкта клієнтами було прийняте рішення замовити дизайнерський ремонт у будинку у Києві, який дійсно вражає.
Ефективні рішення оформлення в будинку м. Бориспіль
Дизайн кухні студії в будинку було виконано в сучасному мінімалізмі. Перевагу надали теплим, природним тонам. Це поєднує функціональність та елегантність. Не лише кімнату загального користування дизайн інтер'єру замовити в нашій компанії також вирішили облаштування гардеробної. Ця кімната знаходиться на другому поверсі, але має аналогічну концепцію, стилістику та колористику оформлення.
Кухня
Кухня має П-подібну форму. Це найергономічніше рішення, яке дозволило створити робочий трикутник. Меблі мають трирівневу конструкцію:
- нижні тумби;
- основні навісні шафи;
- верхній ряд антресолей, який по глибині збігається з нижніми полицями.
Вся меблева група створює ефект ніші для робочої зони. Окремо варто відмітити такий конструктивний елемент, як скляна вітрина.
Побудований інтер’єр на принципі «тихої розкоші». Основний секрет успіху не в яскравих кольорах, а в грі напівтонів та поєднанні радикально різних тактильних відчуттів. Головними стали кольори піску та заліза.
Теплий монохром розбавлений глибокими темними акцентами.
Фасади кухні та гардероба мають колір «грейж» (суміш сірого та бежевого). Він виглядає дорого, оскільки змінює відтінок залежно від освітлення (прохолодний вдень, затишний теплий — ввечері).
Стільниця та фартух імітують окислений метал або темний сланець. Це вносить в інтер'єр «індустріальну» нотку, яка не дає бежевому кольору стати занадто нудним.
Чорні треки на стелі, рами вікон, цоколь та техніка створюють «каркас» інтер'єру. Без цих ліній простір виглядав би розмитим.
Поєднання ідеально матових поверхонь із природною грубістю — це вірне рішення для кімнати-студії в м. Бориспіль в Київській області.
Soft-touch фасади з матовою поверхнею поглинають світло.
Текстура каменю на фартуху, робочої поверхні працює як фон, що підкреслює ідеальну гладкість меблів. З однакової плити виконана робоча зона на кухні, а також оздоблена стіна, зроблені відкоси на підвіконні тощо. Простір максимально використали через відмову під стандартного підвіконня та інтеграцію меблевої групи. Вона стала продовженням кухонного гарнітуру. Тобто з’явилася змога готувати з видом на подвір'я. Додалося місце для зберігання інвентарю, монтажу техніки.
Крім матових та кам'яних поверхонь дизайн кухні студії в будинку в м. Бориспіль в Київській області має багато скляних фасадів. Мова йде про величезну вітрину муж зоною кухні та вітальній. Тоноване скло створює ефект дзеркала, але з димчастим відтінком. Також скляні фасади в великій кількості були додані в оформленні гардеробної.
Soft-touch фасади з матовою поверхнею поглинають світло.
Текстура каменю на фартуху, робочої поверхні працює як фон, що підкреслює ідеальну гладкість меблів. З однакової плити виконана робоча зона на кухні, а також оздоблена стіна, зроблені відкоси на підвіконні тощо. Простір максимально використали через відмову під стандартного підвіконня та інтеграцію меблевої групи. Вона стала продовженням кухонного гарнітуру. Тобто з’явилася змога готувати з видом на подвір'я. Додалося місце для зберігання інвентарю, монтажу техніки.
Крім матових та кам'яних поверхонь дизайн кухні студії в будинку в м. Бориспіль в Київській області має багато скляних фасадів. Мова йде про величезну вітрину муж зоною кухні та вітальній. Тоноване скло створює ефект дзеркала, але з димчастим відтінком. Також скляні фасади в великій кількості були додані в оформленні гардеробної.
Не лише вибір колористики та кольорів зробили цей інтер'єр естетично гарним. Правильно прийняті дизайнерські рішення в розподілі простору, виборі певних рішень або відмові від них сприяли такому результату. Були обрані:
- фасади без видимих ручок - все відчиняється через натискання або вбудовані всередину ручки;
- високі колони до стелі інтегрують побутову техніку (духову шафу, кавомашину);
- скляна вітрина має внутрішнє вертикальне підсвічування для келихів або декору;
- світло працює як “проявник” фактур — трекові системи, LED-підсвічування під шафами та на полицях, акцентна люстра в обідній зоні дозволяють “гратися” зі сценаріями освітлення.
Гардеробна кімната
Гардеробна виглядає максимально розкішно. Вона має паралельне планування, де шафи розташовані вздовж двох стін. Таке рішення утворює зручний прохід. Також серед приміщення розмістили центральний острів. Він не лише виконує роль комода, а й банкетки (пуфа). Частиною острова виступає скляна верхня панель для аксесуарів (годинників, прикрас). Це конструктивне рішення "2 в 1" економить місце.
Завдяки поєднанню прозорості та світла, простір виглядає дуже дорого.
Всі шафи тут мають скляні тоновані фасади в тонких алюмінієвих рамах. Це дозволяє бачити вміст, але зберігає візуальний порядок.
Кожна полиця має інтегровану LED-стрічку, що створює ефект «бутика».
Кольори, матеріали, вибір скляних фасадів, освітлювальні прилади, фактури - все елементи в обох кімнатах переплітаються між собою. Це підкреслює єдність концепції та певну ідею в оформленні будинку.
Фахівці інтер'єрної компанії Бєлік розроблять для вас схожий на цей або інший (обраний вами) дизайн інтер єру у Польщі (інших містах Європи, Україні). Орієнтуючись на особливості об’єкта, фінансові можливості та індивідуальні запити буде розроблено персоналізований проект майбутнього інтер'єру, прописана детальна інструкція ремонту.
Фахівці нашої агенції не бояться складних рішень та сміливих ідей. Вони вдало інтегрують ефективні тренди та інновації в сучасні простори, відобразять індивідуальність замовників через дизайн їх оселі, зроблять побут та проживання комфортнішим. Ціна на дизайн проект квартири у Києві, який дозволить досягти ідеального простору в студії інтер'єрів Бєлік є фіксованою. Вона базується виключно на площі об’єкта та не залежить від обраного вами стиля, прийнятих планувальних та технічних рішень на папері, приблизного бюджету ремонту, кількості зустрічей з дизайнером.
Фахівці нашої агенції не бояться складних рішень та сміливих ідей. Вони вдало інтегрують ефективні тренди та інновації в сучасні простори, відобразять індивідуальність замовників через дизайн їх оселі, зроблять побут та проживання комфортнішим. Ціна на дизайн проект квартири у Києві, який дозволить досягти ідеального простору в студії інтер'єрів Бєлік є фіксованою. Вона базується виключно на площі об’єкта та не залежить від обраного вами стиля, прийнятих планувальних та технічних рішень на папері, приблизного бюджету ремонту, кількості зустрічей з дизайнером.
Подивіться нашу презентацію