ДИЗАЙН ПРОЕКТ ТАУНХАУСА В КОТЕДЖНОМУ МІСТЕЧКУ EASTVILLE
Дизайн проект таунхауса
Дизайн проект таухауса – це складний та потребуючий спеціальних знань, інструментів, навичок процес. Адже, на відміну від звичайної квартири або будинку, ці об’єкти мають специфічне планування. Мова йде про двоповерховість, наявність мансарди, невелику площу, відкриту кімнату на першому поверсі, сусідів по сторонах та прибудинкову територію. Ззовні забудова оформлена в певному стилі, тому важливо створити всередині відповідну атмосферу.
Самостійно оформити інтер’єр таунхауса доволі складно. Адже потрібно врахувати особливості конкретного об’єкта, побажання замовника та його бюджет. Робітники інтер’єрної компанії Бєлік мають реальний досвід та чисельні варіанти оформлення дизайну таунхаусів. Наявним та цікавим прикладом нашої роботи слід вважати КМ Eastville у Києві. Цікавий таунхаус оформлений нашими дизайнером інтер’єрів та бригадою майстрів радує око, дарує відчуття комфорту та затишку.
Особливості оформлення таунхаусу від Бєлік на реальному прикладі
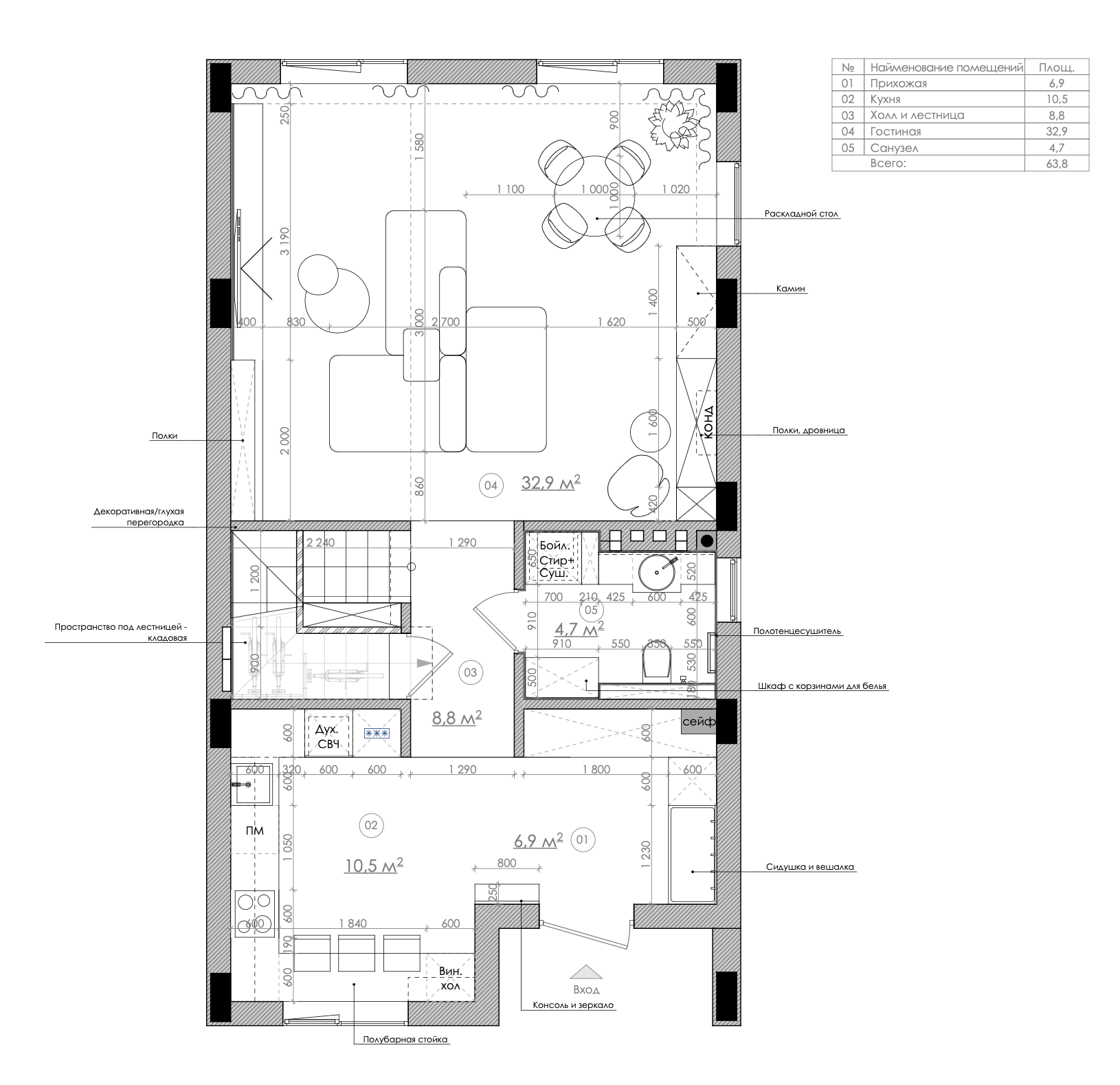
Зважаючи на обмежене панування з певними особливостями, дизайнери інтер’єрного бюро Бєлік розробили детальну проектну документацію майбутнього ремонту. Саме в ній було відображено майбутній інтер’єр через 3Д візуалізації, схеми та плани.
Головна мета дизайнерів було створення функціонального та комфортного простору. Великі панорамні вікна в будинку не заховали за чисельним текстилем. Вони додають достатню кількість природного світла, створюючи атмосферу легкості та чистоти. Біля вікна була створена зона для приймання їжі. Обідній стіл зі стільцями дозволяє насолодитися філіжанкою кави або чаю, почитати книгу, поспілкуватися у спокійній атмосфері.
Враховуючи, що у таунхаусі на першому поверсі велика кімната, вона розподілена на функціональні зони. Кухня та столова тут в одному приміщенні. Кожна з цих зон виповнює свої функції, але вони гармонійно поєднані між собою. Дизайнери інтер'єру для досягнення цілісності композиції використовують однакову колористику та фактури, меблі та схожі за дизайном освітлювальні прилади.
В цьому випадку вибір пав на сіре оформлення стін, підлог, меблі. Сірий інтер’єр у таунхаусі дозволяє створити сучасний простір, візуально додати місця, приховати недоліки та досягнути атмосфери стриманості. Уникнути зайвої суворості у дизайні інтер’єрів вдається завдяки вдалій грі з кольорами та фактурами. Краще рішення – це розвести сірий теплими та більш насиченими кольорами. Глибокі жовті акценти у вигляді текстилю (килим, фіранки, подушки декоративні), декору та невеликих елементів на меблях роблять оформлення котеджу цікавішим. Задають певний настрій та роблять його унікальним. Естетики та затишку додають фактури природного дерева, каміння, живі рослини у горщиках.
Зонування у таунхаусі
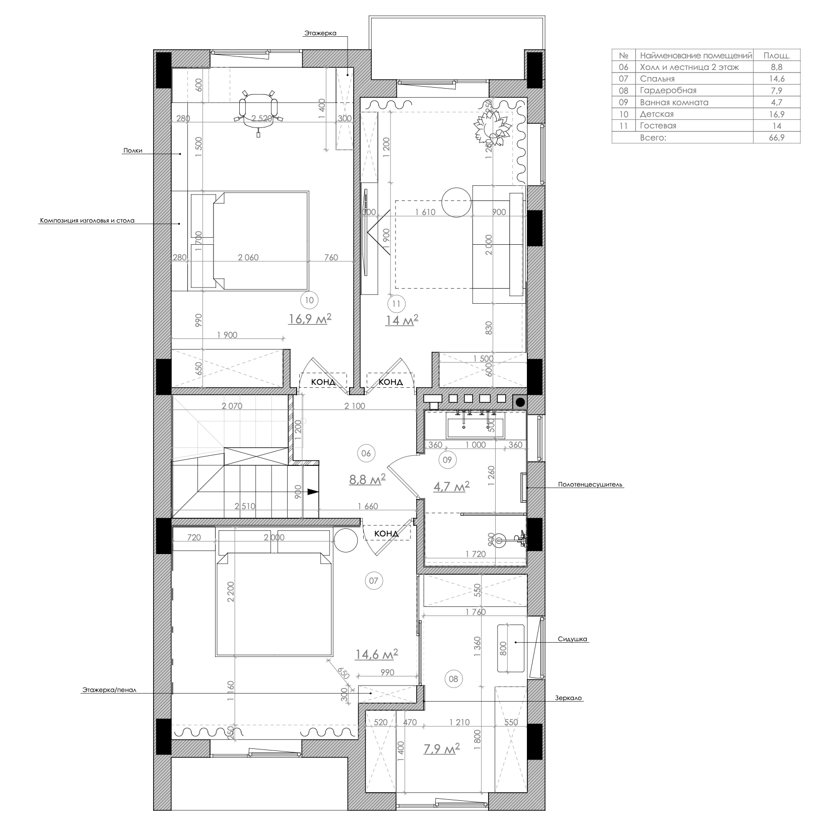
Планування котеджів – це велика кімната на першому поверсі та кілька кімнат на другому. Перший виступає зоною для загального користування. Тут часто роблять гардеробну, санвузол, котельну, кухню, вітальну, гостину. На другому роблять другий санвузол та житлові кімнати – спальня, дитяча, кабінет. Важливо розуміти, що котеджі не мають величезні площі, тому потрібно правильно розподілити простір та розмістити все максимально раціонально. Додавши багато зайвих речей та прийнявши неправильні планувальні рішення можна переобтяжити простір, зробити перебування та користування кімнат незручними.
Кухня у котеджному містечку – це зручний та функціональний простір для пригодовування їжі. Однотонні монохромні сірі фасади комбінуються з дерев’яними фактурами. Прихована техніка, відсутність непотрібних ручок та декоративних елементів, максимум місця на робочій поверхні – все це забезпечує зручність. Відсутність непотрібного декору на кухні та візуального шуму дозволяє створити інтер’єр сучасності. Затишку досягнуто завдяки використанню природних фактур та кольорів (дерево, мармур тощо). Враховуючи, що простір котеджів Eastville може бути обмежений, барна стійка стала MustHave для їх мешканців.
Робітники Бєлік зробили барну стійку подовженням робочої поверхні. Відмовившись від стандартного підвіконня вдалося збільшити місце для приготування їжі та створити додаткову зону для сидіння (чаювання, сніданків тощо).
Кухня плавно перетинається з гостиною. Стіни оформлені в одному кольорі, але саме в цій частині додані м’який зручний диван, крісла, килим, зона для приймання їжі. Окрему увагу приділили створенню затишку. З цією функцією справляється камін, який задає особливого настрою. Відкрита шафа, яка слугує бібліотекою – це особисте прохання замовників, яке відображає їх світогляд та стиль життя.
Кухня плавно перетинається з гостиною. Стіни оформлені в одному кольорі, але саме в цій частині додані м’який зручний диван, крісла, килим, зона для приймання їжі. Окрему увагу приділили створенню затишку. З цією функцією справляється камін, який задає особливого настрою. Відкрита шафа, яка слугує бібліотекою – це особисте прохання замовників, яке відображає їх світогляд та стиль життя.
Другий поверх – це житлові кімнати, які відповідають загальній концепції таунхаусу. Дитяча виконана облаштована усіма необхідними меблями, декором, текстилем. У спальні вдалося уникнути перевантаження простору зайвими меблями (шафами, комодами). Наявність окремої гардеробної зробило простір набагато зручнішим, дозволивши мінімізували кількість корпусних меблів у різних кімнатах.
Замовити дизайн інтер’єрів котеджів та таунхаусів «під ключ»
Естетично гарний та функціональний інтер’єр в наведеному вище прикладі було досягнуто не лише фантазією дизайнера компанії Бєлік. Щоб облаштувати котеджне містечко Eastville співробітниками інтер’єрного бюро Бєлік використали індивідуальний підхід.
Кожний об’єкт має конкретні особливості, як і запити замовника, його бюджет, потреби. Тому, всі дизайни в нас є персоналізованими.
Важливим складником інтер’єра таунхаусів виступає не лише естетика, але й безпека та зручність. У проектній документації, без якої неможливо виконати якісний ремонт, прораховані всі етапи робіт, обсяги, особливості. Через технічну документацію дизайнер інтер’єру прописує весь шлях ремонту, уникаючи помилок та мінімізуючи ризики додаткових витрат. В такому випадку, всі комунікації проведені технічно правильно, роботи вковані в потрібній послідовності, товари придбані необхідні та відповідні до проєкта, витрати та терміни витримані.
Важливим складником інтер’єра таунхаусів виступає не лише естетика, але й безпека та зручність. У проектній документації, без якої неможливо виконати якісний ремонт, прораховані всі етапи робіт, обсяги, особливості. Через технічну документацію дизайнер інтер’єру прописує весь шлях ремонту, уникаючи помилок та мінімізуючи ризики додаткових витрат. В такому випадку, всі комунікації проведені технічно правильно, роботи вковані в потрібній послідовності, товари придбані необхідні та відповідні до проєкта, витрати та терміни витримані.
В компанії дизайн інтер'єрів Бєлік ви можете замовити розробку дизайн проектів для таунхаусу у своєму котеджному містечку. Також інтер'єрне бюро виконує ремонти та надає авторський нагляд на професійному рівні.
Саме дизайн проект інтер’єра є тим інструментом, який дозволяє перетворити обмежену площу однокімнатної квартири на зручний та продуманий простір для життя. Завдяки детальній проєктній документації клієнт чітко розуміє, як виглядатиме квартира після ремонту, які матеріали будуть використані та в якій послідовності відбуватимуться всі роботи. Замовляючи дизайн проект інтер’єра, ви отримуєте не просто красиву картинку, а логічно вибудувану систему рішень, яка працює щодня.
Важливу роль у цьому процесі відіграє дизайнер квартир у києві, який добре орієнтується у типових плануваннях столичних новобудов, знає особливості комунікацій та будівельних норм. Саме локальний досвід дозволяє адаптувати сучасні дизайнерські підходи під реальні умови об’єкта та бюджет клієнта. Професійний дизайнер квартир у києві допоможе знайти оптимальні рішення навіть для складних або нестандартних приміщень.
Важливу роль у цьому процесі відіграє дизайнер квартир у києві, який добре орієнтується у типових плануваннях столичних новобудов, знає особливості комунікацій та будівельних норм. Саме локальний досвід дозволяє адаптувати сучасні дизайнерські підходи під реальні умови об’єкта та бюджет клієнта. Професійний дизайнер квартир у києві допоможе знайти оптимальні рішення навіть для складних або нестандартних приміщень.
Попит на київ дизайн інтер’єру постійно зростає, адже однокімнатні квартири часто купують як перше житло або як інвестиційний об’єкт. У таких випадках важливо створити універсальний, сучасний інтер’єр, який буде привабливим як для власників, так і для потенційних орендарів. Саме тому київ дизайн інтер’єру базується на поєднанні функціональності, нейтральної естетики та практичних матеріалів.
Окремо варто зазначити, що дизайн квартири у києві — це завжди про індивідуальний підхід. Навіть у межах одного житлового комплексу кожен проєкт відрізняється сценаріями життя, побажаннями клієнтів та технічними нюансами. Саме тому дизайн квартири у києві не може бути шаблонним рішенням, а потребує глибокого аналізу та професійного бачення.
Окремо варто зазначити, що дизайн квартири у києві — це завжди про індивідуальний підхід. Навіть у межах одного житлового комплексу кожен проєкт відрізняється сценаріями життя, побажаннями клієнтів та технічними нюансами. Саме тому дизайн квартири у києві не може бути шаблонним рішенням, а потребує глибокого аналізу та професійного бачення.
Комплексним фіналом цього процесу стає дизайн проєкт інтер’єру квартири, який об’єднує всі ідеї в єдину систему — від планування до фінальних декоративних акцентів. Такий підхід дозволяє реалізувати ремонт без хаосу, перевитрат та компромісів. Замовивши дизайн проєкт інтер’єру квартири у студії Бєлік, ви отримуєте прогнозований результат, який повністю відповідає вашим очікуванням і реальним умовам об’єкта.
Подивіться нашу презентацію