СУЧАСНИЙ СТИЛЬ ІНТЕР’ЄРУ КВАРТИРИ ЖК СТАРТ
Сучасний стиль інтер'єру квартири у світлих тонах
Замість того щоб відтворювати картинки із мережі та журналів, більшість людей прагнуть отримати персоналізований інтер’єр. Саме унікальність та індивідуальний підхід відрізняє сучасні ремонти від прикладів “за стандартом”. Адже не кожний об'єкт дозволяє втілити певні архітектурні та дизайнерські рішення. Проблеми можуть бути пов’язані з невеликими розмірами приміщення, нестачею коштів та необхідністю докладати багато зусиль для отримання посереднього результату.
Без професійної допомоги та підтримки складно відтворити сучасний стиль інтер'єру квартири. Мова йде не про впровадження всіх останніх трендів, а про створення комфортного простору, який покращує рівень життя. Допомогти впоратися із цією задачею зможе саме дизайнер інтер’єрів.
В інтер'єрній компанії Бєлік працює згуртована команда професіоналів, яка не “малює” гарні візуалізації. В нас розробляються детальні дизайн проекти та реалізуються ідеї на 100%. Звернувшись до дизайн студії Бєлік ви отримуєте детальний план вашого ремонту, індивідуально розроблений та персоналізований інтер'єр, відповідність результату поставленим задачам.
Особливий попит мають саме сучасні оформлення житла у новобудовах. Адже більшість мешканців міста Київ (передмістя) сподіваються досягти в себе вдома функціональності, зручності, ергономіки та затишку. Хочуть мешкати в сучасному просторі, де не виникатиме незручностей з переміщенням по кімнатах та пошуком потрібних речей.
В дизайн студії Бєлік є понад 100 прикладів вдалих інтер'єрів. Вони відрізняються стилями, кольорами, концепцією, складністю, бюджетом. Якщо вас цікавить саме сучасний дизайн, варто звернути увагу на приклад оформлення об’єкта в ЖК Старт.
В дизайн студії Бєлік є понад 100 прикладів вдалих інтер'єрів. Вони відрізняються стилями, кольорами, концепцією, складністю, бюджетом. Якщо вас цікавить саме сучасний дизайн, варто звернути увагу на приклад оформлення об’єкта в ЖК Старт.
Сучасний стиль інтер'єру квартири в ЖК Старт - особливості
Варто розуміти, що сучасний стиль у квартирі - це не про впровадження всіх останніх трендів, інновацій та тенденцій на одному місці. Також це не про дотримання конкретної методички для відображення закладених ідей. Сьогодні під сучасним направленням розуміють грамотне та вдале комбінування різних направлень Переплітатися можуть елементи хай-тек, провансу, скандинавського та еко направлень, мінімалізму та етно. В основі, як правило, полягають саме рішення з мінімалізму, якщо мова йде про невеликі об’єкти.
Головні засади мінімалізму дозволяють максимально використати простір, зробити його зручним та функціональним. Позбавити квартиру візуального шуму та захаращеності. Кольори, фактури, оздоблення стін та підлоги, матеріали, тип декору, текстиль, освітлювальні прилади, архітектурні рішення - тут можна впроваджувати рішення з різних направлень, гармонійно поєднуючи їх в одну композицією.
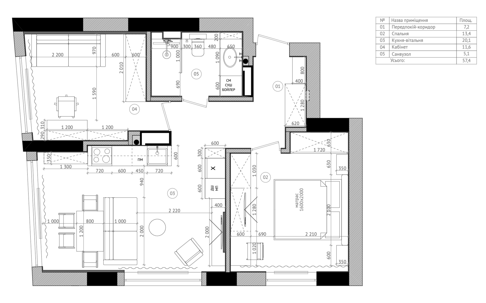
Об’єкт в ЖК Старт - це невелика квартира (до 60 м2), в якій потрібно було створити максимально комфортні умови для проживання родини. Дизайнером інтер'єрів було вирішено оформити житло у світлих палітрах. Саме беж та білі кольори тут переважають.
Об’єкт в ЖК Старт - це невелика квартира (до 60 м2), в якій потрібно було створити максимально комфортні умови для проживання родини. Дизайнером інтер'єрів було вирішено оформити житло у світлих палітрах. Саме беж та білі кольори тут переважають.
Білим оформлені стіни, стелі, фасади деяких меблів та оббивка. Обрано в цьому ж кольорі деякий декор, сантехніка, текстиль. Не дивлячись на велику кількість білого, він не виглядає головним та не створює ефекту стерильності. Навпаки, додає світла та легкості. Акценти та цікаві переплетення його з іншим монохромним відтінком створюють атмосферу затишної оселі.
Ідеальним рішенням стало поєднання білого з бежевим. Теплий беж тут проявляється в різних фактурах, а саме:
Ідеальним рішенням стало поєднання білого з бежевим. Теплий беж тут проявляється в різних фактурах, а саме:
- дерев’яні фактури світлого дерева в оформленні підлоги, стін (панелі), меблів;
- однотонні матові кольори на фасадах, стінах, елементах меблів, декорі;
- текстиль - подушки, оббивка дивану та крісел, килими, пледи, штори тощо.
Трошки додати акцентів та розвести світлу колористику вдалося за допомогою дрібниць в чорному кольорі. Тут його зовсім не багато, але він вдало підкреслює гарний смак власників та робить біло-бежевий інтер'єр ще цікавішим. Чорні трекові системи та елементи інших освітлювальних приладів, обідній стіл, ніжки крісел, трохи декору та сантехніки, побутова техніка. Все це підкреслює загальну дизайнерську ідею. Чорний в ЖК Старт не перетягує на себе увагу, а допомагає зробити цікаві акценти.
Завдяки плавним переходам фактур та відтінків сучасний стиль інтер'єру квартири в новобудові виглядає дуже органічно та естетично. Сучасність в нього вносять раціональність кожного рішення. Адже планувальні рішення, прокладання комунікацій, використання техніки, впровадження інновацій забезпечують комфорт та зручність.
Завдяки плавним переходам фактур та відтінків сучасний стиль інтер'єру квартири в новобудові виглядає дуже органічно та естетично. Сучасність в нього вносять раціональність кожного рішення. Адже планувальні рішення, прокладання комунікацій, використання техніки, впровадження інновацій забезпечують комфорт та зручність.
Загальна концепція світла та легкості витримана в кожній кімнаті на об’єкті ЖК Старт. Дизайнеру ще під час проектування інтер'єру вдалося підібрати максимально схожі, органічні та відповідні матеріали. Саме вони були представлені спочатку у 3Д візуалізаціях, разом з іншими планувальними та технічними рішеннями. Лише після затвердження та пропрацювання всіх деталей, дизайн проект було доведено до завершення. Здано замовнику у повному обсязі, що дозволило одразу взятися до роботи та в зрозумілі терміни завершити ремонт.
Купівля потрібних товарів для інтер'єру, послідовність та обсяги всіх ремонтних робіт, прокладання та приховування комунікацій, планувальні та архітектурні рішення, декорування - все це не викликало проблем під час ремонту квартири в ЖК Старт. Адже всі процеси були розписані зрозумілою для ремонтно будівельної бригади мовою. Заплановані терміни та закладений бюджет також мали максимальну наближеність. Дизайнер інтер'єрів орієнтувався на ці показники під час розробки проектної документації.
Замовити сучасний стиль квартири у компанії інтер'єрів Бєлік
В нашій студії інтер'єрів ви можете отримати індивідуально розроблений, сучасний стиль інтер'єру квартири. Кожний наш дизайн орієнтовано на конкретні запити та можливості замовника, потреби майбутніх мешканців, особливості об'єкта. Приклад оформлення ЖК Старт є прямим підтвердженням того, що навіть маленький простір можна перетворити на зручну та затишку оселю.
Ми працюємо згідно з договором, пропонуємо зрозумілі та прозорі умови співпраці, надаємо гарантії. Серед сотень прикладів ви зможете знайти, чим надихнутися. Взяти певні рішення для своєї оселі та обговорити свої побажання з дизайнером.
Враховуючи ваші запити та особливості об'єкта, співробітник інтер’єрної компанії Белік запропонує кращі рішення для вашого випадку, знайде цікаві компроміси та альтернативи. Наші проекти втілюються на 100%, якщо довіритися професійній бригаді майстрів. Всі товари з візуалізацій можна придбати без проблем, а рішення реалізувати.
Саме дизайн проект інтер’єру в квартирі дозволяє перетворити ідею сучасного світлого простору на чітко спланований та реалізований результат. У межах одного проєкту поєднуються планувальні рішення, 3D-візуалізації, підбір матеріалів, меблів, освітлення та детальна технічна документація. Завдяки цьому дизайн проект інтер’єру в квартирі стає зрозумілим і для замовника, і для ремонтної бригади, що значно знижує ризик помилок та перевитрат.
Важливу роль у створенні такого простору відіграють послуги дизайнера київ, адже робота з міськими квартирами має свою специфіку. Планування новобудов, інженерні обмеження, вимоги до шумоізоляції та освітлення — усе це враховується ще на етапі проєктування. Саме тому послуги дизайнера київ дозволяють адаптувати сучасні стилістичні рішення до реальних умов життя у столиці.
Важливу роль у створенні такого простору відіграють послуги дизайнера київ, адже робота з міськими квартирами має свою специфіку. Планування новобудов, інженерні обмеження, вимоги до шумоізоляції та освітлення — усе це враховується ще на етапі проєктування. Саме тому послуги дизайнера київ дозволяють адаптувати сучасні стилістичні рішення до реальних умов життя у столиці.
Одне з найчастіших питань, яке виникає у замовників, — вартість дизайн проєкту квартири. Вона формується залежно від площі об’єкта, складності планувальних рішень, кількості приміщень та обсягу супроводу. Важливо розуміти, що професійний дизайн — це інвестиція, яка дозволяє уникнути значно більших витрат під час ремонту. Детальніше про підхід до формування бюджету можна дізнатися на сторінці вартість дизайн проєкту квартири.
Замовляючи дизайн проект інтер’єрів у києві, клієнт отримує рішення, розроблене з урахуванням локального досвіду та актуальних будівельних норм. Це означає, що всі дизайнерські ідеї можуть бути реалізовані без складних доопрацювань уже в процесі ремонту. дизайн проект інтер’єрів у києві — це прогнозований результат, чіткі терміни та контроль якості на кожному етапі.
Замовляючи дизайн проект інтер’єрів у києві, клієнт отримує рішення, розроблене з урахуванням локального досвіду та актуальних будівельних норм. Це означає, що всі дизайнерські ідеї можуть бути реалізовані без складних доопрацювань уже в процесі ремонту. дизайн проект інтер’єрів у києві — це прогнозований результат, чіткі терміни та контроль якості на кожному етапі.
У підсумку продумані інтер’єр дизайни у світлих тонах поєднують естетику, функціональність і комфорт. Вони залишаються актуальними роками, легко адаптуються до змін у житті та не втрачають своєї привабливості. Саме такі інтер’єр дизайни створює студія Бєлік — з увагою до деталей, реальних потреб клієнтів і можливостей кожного конкретного об’єкта.
Подивіться нашу презентацію