ДИЗАЙН КВАРТИРИ В СУЧАСНОМУ СТИЛІ В ЖК СЛАВУТИЧ
Дизайн квартири ЖК Славутич в сучасному стилі
Сучасний стиль інтер'єру квартири на сьогодні - це про лаконічність, доцільність кожної ідеї, впровадження корисних у побуті трендів та інновацій. Не обов'язково намагатися втілити на об'єкті все тенденції сьогодення, щоб зробити її сучасною. Це ж стосується прийняття планувальних рішень, вибору оздоблення (меблів, освітлення, декору) та проведення комунікацій складними способами.
Дизайн квартири в сучасному стилі повинен задовольняти потреби майбутніх мешканців та покращувати їх рівень життя. Відсутність незручностей та ризиків під час проживання, створення затишної атмосфери, персоналізація інтер'єру - саме це варто вважати сучасним підходом до оформлення житла. В такому випадку можна вдало додавати в мінімалістичні стилі ідеї з більш затишних направлень (прованс, скандинавський, етно, еко тощо).
Спланувати та втілити у життя сучасний дизайн квартири можливо, якщо довіритися творчому та грамотному у цій галузі фахівцю. Адже не достатньо просто зробити підбірку сучасного оформлення та перемалювати всі можливі рішення у візуалізації для вашої квартири. Дизайнери інтер'єрів повинні орієнтуватися у ваших потребах, фінансових можливостях та індивідуальних побажаннях, щодо колористики (стилів, факту і т.п.). Особливості самого об'єкта також мають значення у прийнятті планувальних та технічних рішень.
Спланувати та втілити у життя сучасний дизайн квартири можливо, якщо довіритися творчому та грамотному у цій галузі фахівцю. Адже не достатньо просто зробити підбірку сучасного оформлення та перемалювати всі можливі рішення у візуалізації для вашої квартири. Дизайнери інтер'єрів повинні орієнтуватися у ваших потребах, фінансових можливостях та індивідуальних побажаннях, щодо колористики (стилів, факту і т.п.). Особливості самого об'єкта також мають значення у прийнятті планувальних та технічних рішень.
Дизайн квартири в сучасному стилі, може виглядати максимально по-різному. Залежить це від багатьох індивідуальних факторів, перерахованих вище. Один з затишних прикладів оформлення квартири майже на 90 м2 у новобудові часто стає натхненням для перейняття певних ідеї. Сучасний інтер'єр об'єкта ЖК Славутич дарує відчуття затишку та свідчить про крокування власників у ногу із часом. Сам дизайн всередині передає естетичну насолоду, а ремонт характеризується максимальною функціональністю та логічністю прийнятих рішень
Сучасний інтер'єр квартири в ЖК Славутич - цікаві дизайнерські рішення
З першого погляду цей дизайн квартири в сучасному стилі хочеться схарактеризувати саме, як затишний. Не як технологічний, практичний, мінімалістичний або інноваційний. Затишок тут прослідковується у кожному рішенні, навіть максимально практичному та поміркованому заздалегідь.
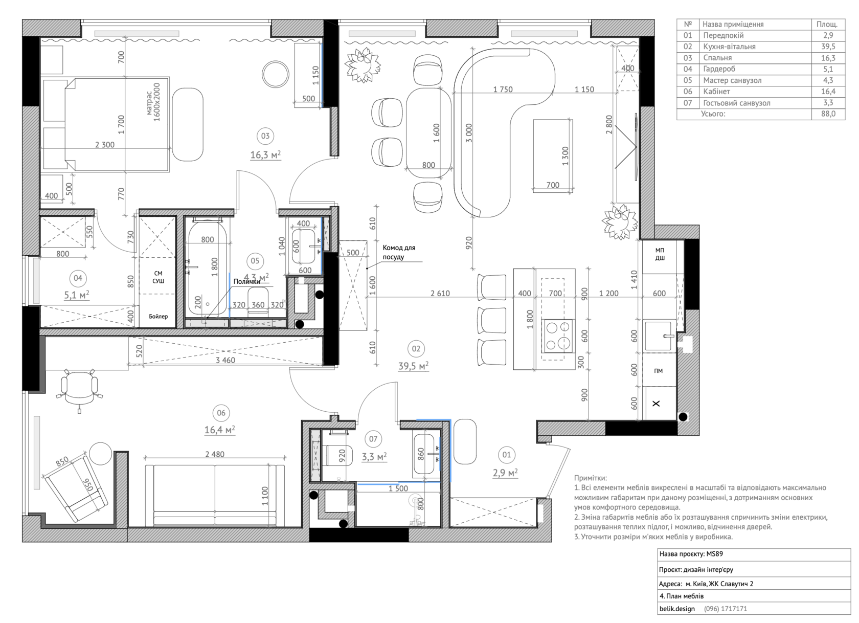
Об’єкт ЖК Славутич має 88 м2, в яких вдалося розмістити:
- передпокій, плавно перетікаючих у кухню-вітальню;
- простору кімнату-студію, яка поділена одразу на три функціональних зон - вітальня, столова, кухня;
- два санвузли - основний та гостьовий;
- спальню;
- кабінет;
- гардероб.
Кожне з приміщень виконано в одній колірній палітрі та з використанням однакових фактур. В ЖК Славутич бежеві палітри ідеально гармонують із чорними, сірими, білими кольорами. Використання фактур каменю та дерева виглядають дуже естетично. Тут присутньо багато кам'яних та дерев'яних панелей. Оздоблені ними підлоги та стіни. З фактурами мармуру виконані острів-бар, стіна для розташування ТВ зони, журнальний столик, робоча поверхня та кухонний фартух.
Фактури дерева обрано переважно у світлих кольорах. Присутні вони у кухонних фасадах, корпусах шаф, ніжках та інших елементах меблів (крісла, стільці, столи), оздобленні гардеробної, декоруванні стін панелями. Особливо естетично виглядають у спальні та в кабінеті.
Фактури дерева обрано переважно у світлих кольорах. Присутні вони у кухонних фасадах, корпусах шаф, ніжках та інших елементах меблів (крісла, стільці, столи), оздобленні гардеробної, декоруванні стін панелями. Особливо естетично виглядають у спальні та в кабінеті.
Важливо зазначити, що панелюванням керамогранітними або дерев’яними плитами дозволяє зручно прокласти всі комунікації, приховати їх та зробити точки в потрібних місцях.
В цій квартирі присутньо багато оригінальних елементів. Між зоною вітальні та кухні розміщено бар-острів. Він виступає додатковим місцем для прийняття та приготуванні їжі На відміну від стандартних варіантів, дизайнери розмістили індукційну плиту та витяжку саме в зоні острова. Була обрана естетично приваблива та дійсно ефективна модель витяжки. Зі сторони вітальні острів має вдосталь місця для зручного сидіння, як за барною стійкою.
В цій квартирі присутньо багато оригінальних елементів. Між зоною вітальні та кухні розміщено бар-острів. Він виступає додатковим місцем для прийняття та приготуванні їжі На відміну від стандартних варіантів, дизайнери розмістили індукційну плиту та витяжку саме в зоні острова. Була обрана естетично приваблива та дійсно ефективна модель витяжки. Зі сторони вітальні острів має вдосталь місця для зручного сидіння, як за барною стійкою.
В кімнаті-студії оформлення квартири в сучасному стилі передбачає використання дизайнерських меблів. Це дивани круглих та овальних форм, без кутів. Двері мають прихований монтаж, що візуально не краде простір. Також розміщено скляний комод, в якому зручно зберігати вінтажний декор та коштовний посуд.
Вибір меблів незвичних форм та з якісних матеріалів вже робить інтер'єр оригінальним. Затишку та особливої атмосфері було досягнуто завдяки додаванню цікавих предметів живопису, вибору оригінальних освітлювальних різних приладів (трекові системи, стельові люстри, бра, світлодіодне підсвічування зон тощо).
Вибір меблів незвичних форм та з якісних матеріалів вже робить інтер'єр оригінальним. Затишку та особливої атмосфері було досягнуто завдяки додаванню цікавих предметів живопису, вибору оригінальних освітлювальних різних приладів (трекові системи, стельові люстри, бра, світлодіодне підсвічування зон тощо).
Спальня облаштована великим ліжком, косметичним столиком, пуфом, парою тумб. Саме зі спальні йдуть два окремі виходи у ванну кімнату на гардеробну. Ванна кімната виконана максимально якісно. Всі елементи приховані за фасадами вбудованих шаф та інсталяцій. Навіть у стінах, де розташована ванна, зроблені полиці. Це дозволяє зручно зберігати все необхідне, візуально не переобтяжуючи простір. Сантехніку обрано вбудованого монтажу, з використання інсталяцій. Умивальник виконано в тому ж кольорі та матеріалі, що й оздоблення стін (підлоги) ванної.
Гардеробна - це ідеальне рішення, якщо ви прагнете зробити в себе дизайн квартири в сучасному стилі. В ЖК Славутич в гардеробній вийшло не просто створити місце для зберігання всіх речей Ця кімната слугує також коморою-пральною. Тут вдосталь місця не лише для зберігання речей, аксесуарів, взуття. Окрема частина приміщення зроблена для монтажу пральної та сушильної машин, зберігання пилосмока, прасувальної дошки, праски та іншого інвентарю.
Завдяки гардеробній вдалося уникнути монтажу великих корпусних шаф у кожній кімнаті. Ці меблі розташовані лише у передпокої (забезпечує зберігання верхнього одягу та сезонного взуття) та кабінеті. У кабінеті шафа виконана в один рівень та колір зі стіною, що створює візуально цілісність.
Завдяки гардеробній вдалося уникнути монтажу великих корпусних шаф у кожній кімнаті. Ці меблі розташовані лише у передпокої (забезпечує зберігання верхнього одягу та сезонного взуття) та кабінеті. У кабінеті шафа виконана в один рівень та колір зі стіною, що створює візуально цілісність.
ЖК Славутич виступає ідеальним прикладом, як саме може виглядати правильно спланований та професійно виконаний дизайн квартири в сучасному стилі. Звернувшись до студії інтер'єрів Бєлік ви можете отримати результати із відповідною якістю та гарантіями, але орієнтовані індивідуально на ваш об'єкт та особисті потреби (побажання).
ЖК Славутич є наочним прикладом того, як продуманий проект квартири дозволяє поєднати естетику, функціональність і комфорт у сучасному інтер’єрі. Ще на етапі планування було враховано всі сценарії життя мешканців, логіку пересування, зручність зберігання речей та використання простору. Саме завдяки професійному підходу до створення проекту квартири інтер’єр виглядає цілісно та залишається актуальним з роками.
Починаючи роботу з детального проєктування, замовники одразу розуміють дизайн проект квартири — ціна якого формується прозоро та прогнозовано. Це дозволяє заздалегідь оцінити бюджет, порівняти рішення та уникнути непотрібних витрат у процесі реалізації. Грамотно підготовлена документація стає основою для якісного та керованого ремонту.
Починаючи роботу з детального проєктування, замовники одразу розуміють дизайн проект квартири — ціна якого формується прозоро та прогнозовано. Це дозволяє заздалегідь оцінити бюджет, порівняти рішення та уникнути непотрібних витрат у процесі реалізації. Грамотно підготовлена документація стає основою для якісного та керованого ремонту.
Реалізація інтер’єру в ЖК Славутич виконувалась у форматі дизайнерського ремонту квартир, де кожен етап чітко відповідав проєктним рішенням. Такий підхід дозволяє точно контролювати вартість ремонту під ключ у Києві, дотримуватись термінів і досягати повної відповідності результату 3D-візуалізаціям.
У підсумку власники отримали сучасний ремонт квартири, де немає випадкових рішень: кожна деталь має свою функцію, а простір працює на комфорт і якість життя. Саме такий результат стає можливим, коли інтер’єр створюється не спонтанно, а на основі професійного проєктування та комплексного підходу.
Звернувшись до студії інтер’єрів Бєлік, ви отримаєте не типовий шаблон, а індивідуально розроблений сучасний інтер’єр, адаптований під ваш об’єкт, стиль життя та очікування — від першої ідеї до повністю реалізованого простору.
У підсумку власники отримали сучасний ремонт квартири, де немає випадкових рішень: кожна деталь має свою функцію, а простір працює на комфорт і якість життя. Саме такий результат стає можливим, коли інтер’єр створюється не спонтанно, а на основі професійного проєктування та комплексного підходу.
Звернувшись до студії інтер’єрів Бєлік, ви отримаєте не типовий шаблон, а індивідуально розроблений сучасний інтер’єр, адаптований під ваш об’єкт, стиль життя та очікування — від першої ідеї до повністю реалізованого простору.
Подивіться нашу презентацію