ДИЗАЙН КВАРТИРИ В НОВОБУДОВАХ В ЖК ВАРШАВСЬКИЙ У КИЄВІ
• Локація - ЖК Варшавський, Київ, Україна
• Площа квартири – 98,9 м²
• Формат роботи – дизайн проєкт інтер'єру
• Площа квартири – 98,9 м²
• Формат роботи – дизайн проєкт інтер'єру
Дизайнерський ремонт квартир сьогодні це не про коштовні меблі, недосяжні ідеї в оформленні та надскладні архітектурні роботи. В сучасному світі дизайнерське оформлення житла свідчить про прагнення до комфорту, зручності, безпеки та прояву себе через власне житло.
Вартість дизайн квартир при цьому може бути повністю зорієнтована на фінансові можливості клієнта. Візуал, впровадження трендів та інновацій також залежатиме від його індивідуальних побажань.
Отримати дійсно сучасний та персоналізований дизайн квартири в новобудовах ви можете звернувшись до інтер'єрної компанії Бєлік. Наша студія дизайну створила понад 100 вдалих, ергономічних, сучасних та різних просторів. Кожний з об’єктів підлаштований саме під побут замовників, потреби їх родини та особисті побажання.
Вартість дизайн квартир при цьому може бути повністю зорієнтована на фінансові можливості клієнта. Візуал, впровадження трендів та інновацій також залежатиме від його індивідуальних побажань.
Отримати дійсно сучасний та персоналізований дизайн квартири в новобудовах ви можете звернувшись до інтер'єрної компанії Бєлік. Наша студія дизайну створила понад 100 вдалих, ергономічних, сучасних та різних просторів. Кожний з об’єктів підлаштований саме під побут замовників, потреби їх родини та особисті побажання.
Одні проєкти відображають бажання жити в розкоші та люксі. Інші підкреслюють любов до стриманості та мінімуму. Відобразити через власне житло можна навіть прихильність до менталітету та культури певної країни (етно направлення). Тим, хто прагне до візуальної простоти та максимально затишку підійдуть варіанти сучасного стиля з вплетенням рішень зі скандинавського, еко, Japandi направлень.
Прикладом, що заслуговує на увагу є квартира в ЖК Варшавський у Києві. Дизайн інтер'єрів київ ціна були вибудовані на індивідуальних побажаннях та можливостях замовника, довівших свою ефективність рішеннях.
Прикладом, що заслуговує на увагу є квартира в ЖК Варшавський у Києві. Дизайн інтер'єрів київ ціна були вибудовані на індивідуальних побажаннях та можливостях замовника, довівших свою ефективність рішеннях.
ЖК Варшавський у Києві - стратегічні рішення в інтер'єрі квартири
Дизайн квартири в новобудовах важливо було розробити з орієнтовністю на особливості геометрії та архітектури забудови. Цей об’єкт здавався у вільному плануванні та не потребував складних демонтажних робіт. Положення кімнат враховувались дизайнером при розподілі простору та прийнятті певних рішень про розташування кімнат, дверних пройомів, вибору меблів та проведення комунікацій.
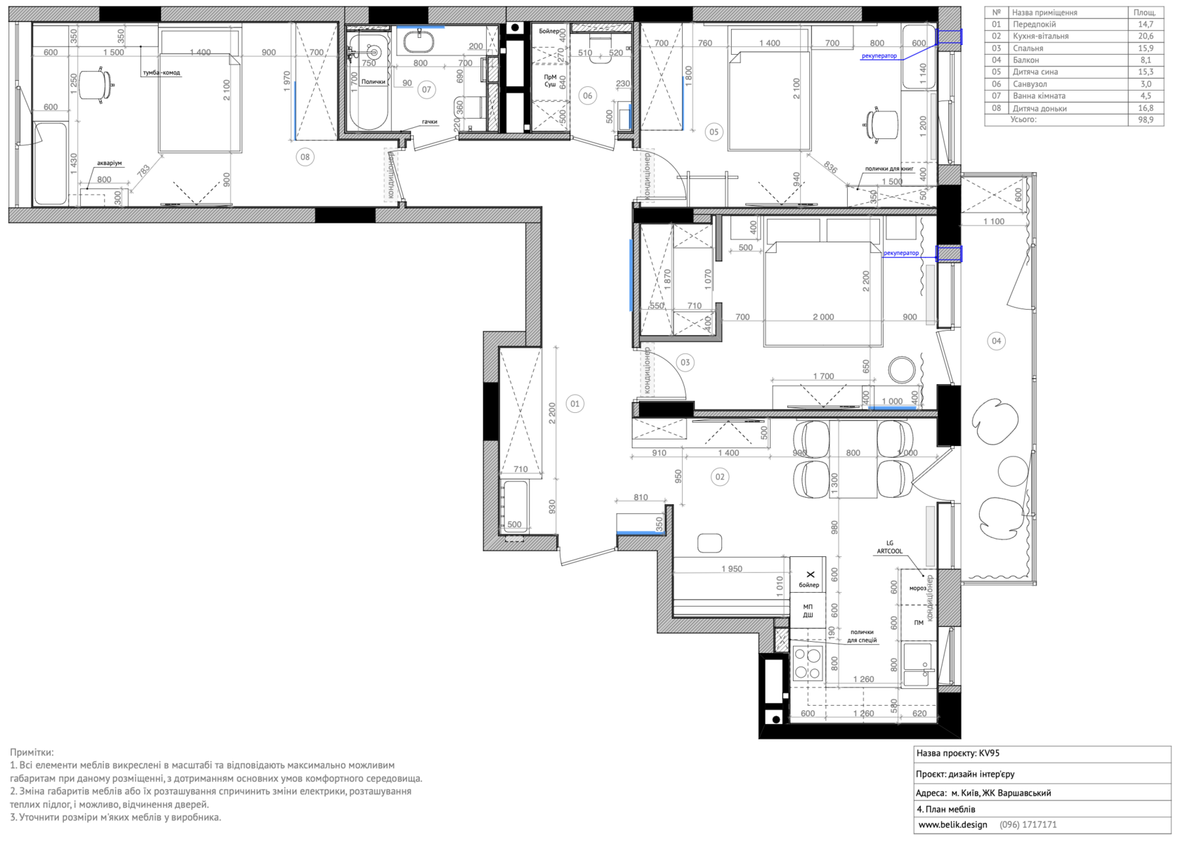
Квартира має одну простору кімнату-студію, спальню, 2 окремі дитячі, ванну та санвузол, гардеробну. На 90 м2 вдалося розмістити всі необхідні меблі та предмети, створивши при цьому затишну атмосферу.
Основна ідея проєкту інтер'єру в ЖК Варшавський у Києві — створення спокійного, “обволікаючого” простору, де панує гармонія природних текстур та стриманої палітри.
Саме тому дизайн тут побудований на поєднанні теплих сіро-бежевих (greige) відтінків, світлого дерева та графітових акцентів. Використання матових поверхонь кухонних фасадів поруч із вираженою фактурою дерева створило приємний тактильний контраст. Акценти у вигляді тонких чорних ліній трекового освітлення та фурнітура додали інтер’єру графічності
Планування та зонування
Кухня-вітальня
Тут панує функціональна естетика. П-подібне планування кухні зроблено у невеликій ніші. Була виконана вбудована техніка, що виглядає монолітно. Комбінація антрацитових нижніх модулів та дерев’яних верхніх шаф додало візуальної глибини. Робоча зона біля вікна — це завжди про велику кількість природного світла та комфорт.
Для обідньої зони обрали масивний дерев’яний стіл із закругленими кутами та стільці з м'якими вигнутими спинками. Вибір таких меблів пом’якшують строгі лінії в інтер'єрі
Текстильні підвіси над столом (у стилі паперових ліхтарів Akari) — додаткове та акцентне освітлення. Це внесло настрій автентичного східного затишку.
Вітальня розрахована на відпочинок та проведення сумісного часу з родиною. Дизайнер обрав лаконічний диван модульного типу та круглий журнальний столик. Були додані декоративні акценти у вигляді текстилю, фактурного килима. Декоративна дерев’яна панель із прихованою підсвіткою на стіні працює як головний візуальний акцент.
Спальня та дитячі
В спальні панує атмосфера готелю класу люкс. Текстильне узголів'я ліжка, стіна з імітацією декоративної штукатурки (мікроцементу) та симетричні футуристичні світильники створюють ідеальний баланс між затишком і сучасним артом.
Дитячі кімнати продовжують загальну естетику квартири, але додають їй індивідуальності та затишку.
Одна з кімнат має оливкові акценти. Виглядає свіжо завдяки введенню приглушеного оливкового кольору стін. Клітчаста постіль та декоративні подушки з написами додають динаміки. Використання круглого килима з абстрактним малюнком візуально розширює центр кімнати.
Письмовий стіл інтегрований у систему зберігання біля вікна. Це практичне рішення. Адже присутньо багато світла для навчання та зручні стелажі для книг поруч. Стіл плавно переходить в корпусний пуф, всередині якого можна зберігати речі. Також він виступає додатковим місцем для відпочинку.
Обов'язково використали декор. Комікс-постери над ліжком та дерев’яні чоловічки-фігурки додають дитячій характеру, залишаючи її в межах сучасної стилістики.
В спальні панує атмосфера готелю класу люкс. Текстильне узголів'я ліжка, стіна з імітацією декоративної штукатурки (мікроцементу) та симетричні футуристичні світильники створюють ідеальний баланс між затишком і сучасним артом.
Дитячі кімнати продовжують загальну естетику квартири, але додають їй індивідуальності та затишку.
Одна з кімнат має оливкові акценти. Виглядає свіжо завдяки введенню приглушеного оливкового кольору стін. Клітчаста постіль та декоративні подушки з написами додають динаміки. Використання круглого килима з абстрактним малюнком візуально розширює центр кімнати.
Письмовий стіл інтегрований у систему зберігання біля вікна. Це практичне рішення. Адже присутньо багато світла для навчання та зручні стелажі для книг поруч. Стіл плавно переходить в корпусний пуф, всередині якого можна зберігати речі. Також він виступає додатковим місцем для відпочинку.
Обов'язково використали декор. Комікс-постери над ліжком та дерев’яні чоловічки-фігурки додають дитячій характеру, залишаючи її в межах сучасної стилістики.
Друга дитяча кімната має ніжний кремовий візуал. Тут панує ще більш м’яка атмосфера, орієнтована на спокій та відпочинок.
Акцентна стіна з великими абстрактними арками у бежевих тонах виглядає дуже стильно. Вона підтримує загальну ідею округлих ліній в інтер’єрі. Вертикальні м’які панелі за ліжком не лише додають затишку, а й працюють як додаткова звукоізоляція.
Низька лава-підвіконня з відкритою полицею для книг знизу — ідеальне місце для вечірнього читання. Поруч розташований акваріум, що додає кімнаті “живого” спокою.
Акцентна стіна з великими абстрактними арками у бежевих тонах виглядає дуже стильно. Вона підтримує загальну ідею округлих ліній в інтер’єрі. Вертикальні м’які панелі за ліжком не лише додають затишку, а й працюють як додаткова звукоізоляція.
Низька лава-підвіконня з відкритою полицею для книг знизу — ідеальне місце для вечірнього читання. Поруч розташований акваріум, що додає кімнаті “живого” спокою.
Господарська зона та санвузол
Гардеробна зона та вбудовані шафи спроєктовані так, щоб бути максимально непомітними (система “невидимих” фасадів). Використання внутрішньої підсвітки полиць робить пошук речей зручним і додає інтер’єру легкості.
Ванна кімната продовжує загальну концепцію. Були обрані: великоформатний керамограніт під камінь, дерев'яна тумба під раковину та акцентна стіна з об'ємним геометричним візерунком. Текстильна штора замість скла додала простору м’якості.
Пральна та сушильна машини встановлені в колону, що економить місце. Використання дерев'яних панелей навіть в ванній кімнаті та санвузлі зробили простір теплим, а не суто технічним.
Дизайнер обирав матеріали з високими показниками якості та вологостійкості. На об'єкті не виникне проблем (з меблями, комунікаціями та іншим) через роки експлуатації.
Гардеробна зона та вбудовані шафи спроєктовані так, щоб бути максимально непомітними (система “невидимих” фасадів). Використання внутрішньої підсвітки полиць робить пошук речей зручним і додає інтер’єру легкості.
Ванна кімната продовжує загальну концепцію. Були обрані: великоформатний керамограніт під камінь, дерев'яна тумба під раковину та акцентна стіна з об'ємним геометричним візерунком. Текстильна штора замість скла додала простору м’якості.
Пральна та сушильна машини встановлені в колону, що економить місце. Використання дерев'яних панелей навіть в ванній кімнаті та санвузлі зробили простір теплим, а не суто технічним.
Дизайнер обирав матеріали з високими показниками якості та вологостійкості. На об'єкті не виникне проблем (з меблями, комунікаціями та іншим) через роки експлуатації.
По всій квартирі були впроваджені однакові дизайнерські рішення, що дозволило відобразити єдину концепцію. Цікавими та ефективними дизайнерськими рішеннями стали:
- комбіноване освітлення - функціональне (магнітні трекові системи), атмосферне (підвісні світильники лаконічних форм), приховане LED-підсвічування (дзеркала, над панелями, по периметру меблів та усередині полиць);
- єдина інтер’єрна “канва” — одне й те саме світле дерево на підлозі, ідентичні відтінки фарби на стінах та схожі текстури меблевих фасадів проходять крізь усі кімнати;
- розумне використання “вертикалей” — меблі в стелю, вертикальне фрезерування тощо;
- робочі зони біля вікон — в обох дитячих та в кухні використано принцип інтегрованих меблів та меблевих груп, що зекономило корисну площу та дозволило створити затишні зони;
- прихована естетика побуту — усі побутові процеси “заховані”;
- тактильність та м’які форми — попри загальний мінімалізм, інтер’єр не виглядає холодним завдяки закругленим кутам (столи, стільці, малюнки на стінах) та різноманіттю текстилю (рогожка, велюру, бавовна та вовняні килими).
Всі ці рішення роблять дизайн квартири в новобудовах актуальним на багато років вперед. Плануючи інтер'єр дизайнери агенції Бєлік роблять ставки на комфорт та природність, а не на короткочасні тренди. Вартість дизайн проекту для квартири в ЖК Варшавський у Києві чи іншого об'єкта в нас фіксована. При повноті всієї документації, персоналізованості, наявності особистих зустрічей із дизайнером, індивідуальному підході до оформлення та дотриманих термінах надання результату.
Подивіться нашу презентацію