• Location — White Lines Residential Complex, Kyiv, Ukraine
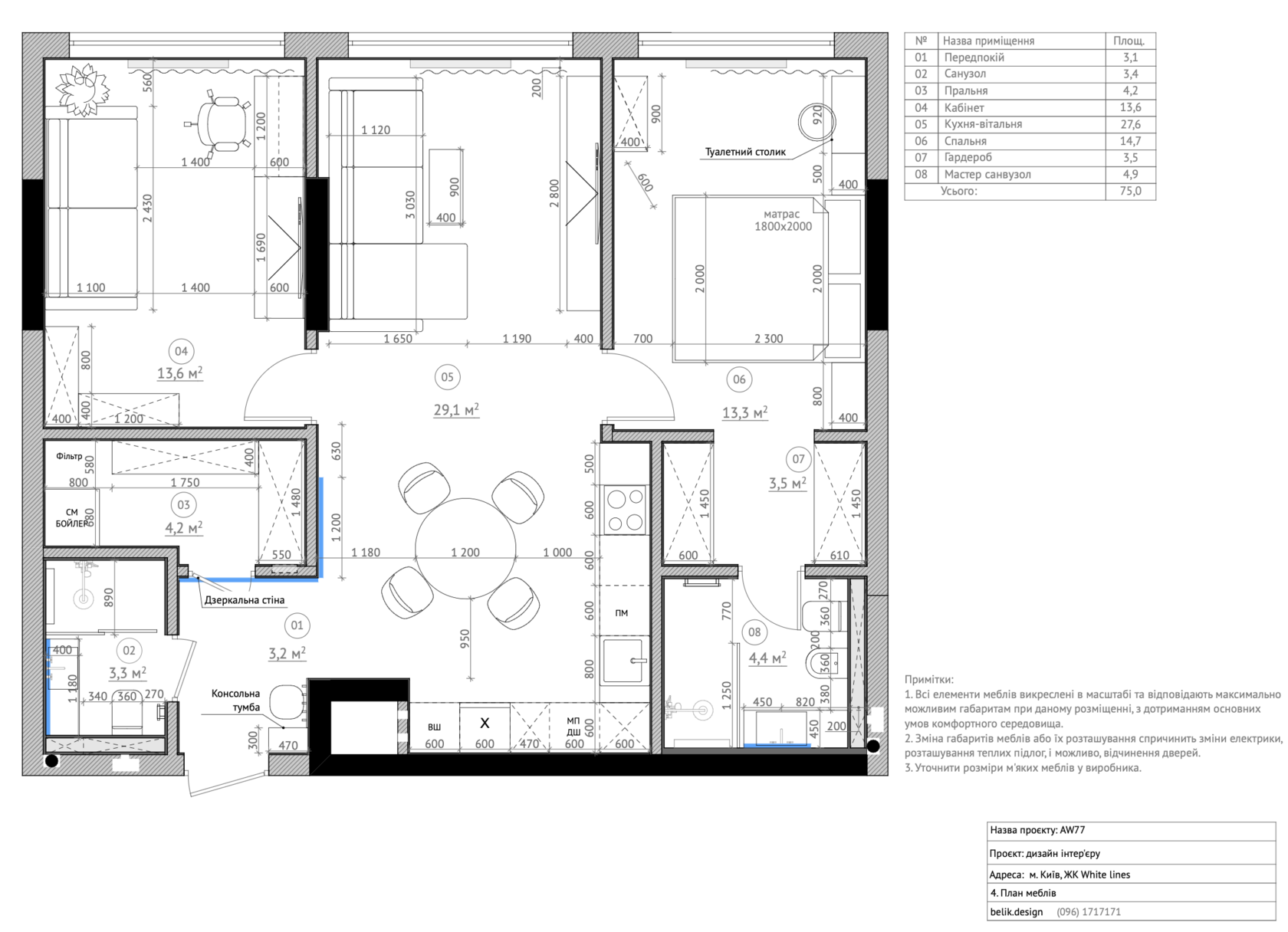
• Apartment area — 75 m²
• Scope of work — interior design project, design supervision and turnkey renovation
• Completion year — 2025
• Apartment area — 75 m²
• Scope of work — interior design project, design supervision and turnkey renovation
• Completion year — 2025