РЕМОНТ У НОВОБУДОВІ КВАРТИРИ В ЖК SEVEN У КИЄВІ
• Локація - ЖК Seven, Київ, Україна
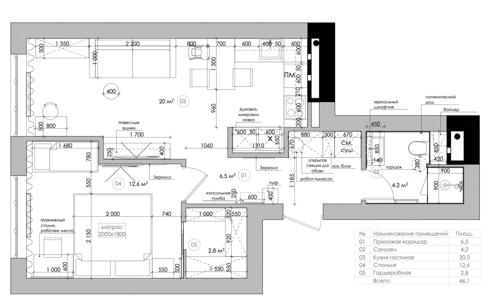
• Площа квартири – 46,1 м²
• Формат роботи – дизайн проєкт інтер'єру
• Площа квартири – 46,1 м²
• Формат роботи – дизайн проєкт інтер'єру
Ремонт у новобудові квартири дарує безліч можливостей для створення інтер'єру мрії. Адже такі об'єкти є чистим полотном із вільним плануванням, не розведеними комунікаціями та відсутністю помилок від минулого ремонту. Безумовно, щоб отримати бажаний та якісний результат, важливо відповідально віднестися до майбутнього облаштування житла.
Самостійно врахувати всі нюанси новобудови, правильно прийняти планувальні, технічні та інтер'єрі рішення неможливо. Допоможуть в цьому освічені фахівці, які мають реальні знання та досвід в галузі дизайну інтер'єрів. Компанія Бєлік, починаючи з 2015 року спеціалізується на розробці та реалізації проектів, виконанні ремонтів та дизайну під ключ.
Самостійно врахувати всі нюанси новобудови, правильно прийняти планувальні, технічні та інтер'єрі рішення неможливо. Допоможуть в цьому освічені фахівці, які мають реальні знання та досвід в галузі дизайну інтер'єрів. Компанія Бєлік, починаючи з 2015 року спеціалізується на розробці та реалізації проектів, виконанні ремонтів та дизайну під ключ.
Дизайн проект квартири ціна в нас фіксована. Вона озвучується на старті розробки та не залежить від того, чи замовите ви надалі в студії ремонт, чи вирішите реалізувати рішення власними силами. Ви можете сміливо замовити дизайн проект у Польщі маючи власну бригаду або звернутись до наших партнерів. Кожне рішення з проєкта від Бєлік реалізується на 100%. Сама документація описана максимально детально. Це дає розуміння професійним фахівцям ремонтно-будівельної бригади все про етапи, особливості та послідовність робіт.
Інтер'єрна компанія Бєлік має багато вдалих та реальних прикладів розробки сучасних просторів. Цікавим та заслуговуючим уваги варіантом оформлення є об'єкт в ЖК Seven. Цей ремонт у новобудові квартири є чудовим прикладом сучасного стилю з елементами м'якого мінімалізму та еко-дизайну.
Терміни виконання, ціна ремонту, вартість послуг дизайнера інтер'єру — все це було оговорено перед початком всіх робіт. Такий підхід зробив процеси запланованими, що допомогло уникнути розчарувань та отримати бажаний результат.
Інтер'єрна компанія Бєлік має багато вдалих та реальних прикладів розробки сучасних просторів. Цікавим та заслуговуючим уваги варіантом оформлення є об'єкт в ЖК Seven. Цей ремонт у новобудові квартири є чудовим прикладом сучасного стилю з елементами м'якого мінімалізму та еко-дизайну.
Терміни виконання, ціна ремонту, вартість послуг дизайнера інтер'єру — все це було оговорено перед початком всіх робіт. Такий підхід зробив процеси запланованими, що допомогло уникнути розчарувань та отримати бажаний результат.
Функціональність та комфорт у квартирі ЖК Seven
Ремонт у новобудові квартири в ЖК Seven — це чудовий приклад того, як всього на 50 м2 можна створити затишну атмосферу. Кожне прийняте дизайнером рішення було зваженим та орієнтованим на функціональність. Було використано кожний см на користь, що зробило дизайн ще ергономічнішим. Сам простір виглядає водночас стриманим, дорогим і неймовірно затишним завдяки поєднанню природних текстур.
Основа інтер'єру в ЖК Seven — це гармонія землистих і природних відтінків:
- дерево — теплий дуб або горіх використовується всюди (від кухонних фасадів до декоративних рейок на стінах), що створює особливий затишок;
- камінь — текстура сірого терраццо або дрібнозернистого граніту на кухонному фартухові та у ванній кімнаті додає інтер'єру “фундаментальності”;
- текстиль — світло-сірі та бежеві тканини (диван, ліжко, килими) пом'якшують строгі лінії меблів.
Всі фактури, кольорові, тканини ідеально гармонують між собою. Адже вони вдало скомбіновані дизайнером.
Для 50 м2 ця квартира стала справжнім майстер-класом з раціонального використання простору. Одразу кілька ключових рішень дозволили вмістити все необхідне на такій обмеженій площі.
1. Об'єднання та зонування.
Замість тісних коридорів і маленької кухні, дизайнери обрали формат open space (кухня-вітальня). Кухонний гарнітур інтегрований у стіну, а барна стійка замінює громіздкий обідній стіл. Вона виступає продовженням робочої поверхні, що економить простір.
Вдале візуальне розширення — це використання однакового підлогового покриття (світле дерево) по всій квартирі. Це “стирає” межі між кімнатами, роблячи загальну площу візуально більшою.
1. Об'єднання та зонування.
Замість тісних коридорів і маленької кухні, дизайнери обрали формат open space (кухня-вітальня). Кухонний гарнітур інтегрований у стіну, а барна стійка замінює громіздкий обідній стіл. Вона виступає продовженням робочої поверхні, що економить простір.
Вдале візуальне розширення — це використання однакового підлогового покриття (світле дерево) по всій квартирі. Це “стирає” межі між кімнатами, роблячи загальну площу візуально більшою.
2. Створення “кімнати в кімнаті”.
На 50 квадратах зазвичай важко виділити окрему дитячу, тому тут застосовано розумне сусідство. Дитяча зона зроблена просто в спальні. Дитяче ліжечко розміщене в ніші, а акцентна стіна з рейками та телевізором слугує візуальним роздільником.
Використання рейкових перегородок у гардеробі дозволяє відокремити зони, не перекриваючи доступ світла та повітря.
На 50 квадратах зазвичай важко виділити окрему дитячу, тому тут застосовано розумне сусідство. Дитяча зона зроблена просто в спальні. Дитяче ліжечко розміщене в ніші, а акцентна стіна з рейками та телевізором слугує візуальним роздільником.
Використання рейкових перегородок у гардеробі дозволяє відокремити зони, не перекриваючи доступ світла та повітря.
3. Вертикальне зберігання.
На малій площі головний ворог — безлад. Тут його перемогли за допомогою шаф до стелі та паруючих меблів. Перші, монтовані у кухні та коридорі. Верхні антресолі ідеальні для сезонних речей.
Тумби під ТВ та раковиною, консоль у передпокої “відірвані” від підлоги. Це залишає підлогу відкритою, що психологічно сприймається як наявність вільного простору. Також полегшуе процесс прибирання роботу-пилососу.
На малій площі головний ворог — безлад. Тут його перемогли за допомогою шаф до стелі та паруючих меблів. Перші, монтовані у кухні та коридорі. Верхні антресолі ідеальні для сезонних речей.
Тумби під ТВ та раковиною, консоль у передпокої “відірвані” від підлоги. Це залишає підлогу відкритою, що психологічно сприймається як наявність вільного простору. Також полегшуе процесс прибирання роботу-пилососу.
4. Робота з нішами та кутами.
Гардеробна замість шаф. Виділення невеликого кута під повноцінну гардеробну ефективніше за кілька окремих шаф, бо звільняє стіни в інших кімнатах.
5. Багатофункціональні стіни.
Стіна з крейдовим покриттям у вітальні — це одночасно декор і ігрова зона, яка не займає місця на підлозі.
Гардеробна замість шаф. Виділення невеликого кута під повноцінну гардеробну ефективніше за кілька окремих шаф, бо звільняє стіни в інших кімнатах.
5. Багатофункціональні стіни.
Стіна з крейдовим покриттям у вітальні — це одночасно декор і ігрова зона, яка не займає місця на підлозі.
6. Прихована техніка.
На об’єкті було вбудовано духову шафу, мікрохвильовку та прихований холодильник. На 50 метрах критично важливо, щоб кухня не виглядала як склад побутових приладів.
7. Декорування через оздоблення.
Вертикальні рейки (баффелі) виступають головним декоративним акцентом. Вони повторюються на стінах у вітальні та спальні, створюючи ритм і візуально підіймаючи стелю.
8. Різні сценарії освітлення. Замість однієї люстри посеред кімнати тут були використані різні освітлювальні прилади. Це не лише дозволило “гратися” з яскравістю. Наявність пари дизайнерських люстр та бра виступають додатковими декоративними елементами. В ЖК Seven присутні:
На об’єкті було вбудовано духову шафу, мікрохвильовку та прихований холодильник. На 50 метрах критично важливо, щоб кухня не виглядала як склад побутових приладів.
7. Декорування через оздоблення.
Вертикальні рейки (баффелі) виступають головним декоративним акцентом. Вони повторюються на стінах у вітальні та спальні, створюючи ритм і візуально підіймаючи стелю.
8. Різні сценарії освітлення. Замість однієї люстри посеред кімнати тут були використані різні освітлювальні прилади. Це не лише дозволило “гратися” з яскравістю. Наявність пари дизайнерських люстр та бра виступають додатковими декоративними елементами. В ЖК Seven присутні:
- контурна підсвітка дзеркал, ніш, стелі, робочої зони на кухні;
- декоративні кільцеві бра;
- світильники-хмаринки в дитячій зоні;
- вбудовані у стелі точкові світильники;
- трекові системи.
Завдяки ефективним рішенням в дизайні інтер'єрів ремонт у новобудові квартири ЖК Seven має грамотне планування. Квартира не виглядає перевантажено, а акценти зроблені на легких деталях (світильники, рейки, текстури).
Навіть маючи невелику площу ви можете замовити дизайн проект Варшава. Дизайнери, беручи до уваги особливості об'єкта, індивідуальні потреби та запити, бюджет на ремонт створять ідеальний варіант для вашого об’єкта. Простір, де кожен сантиметр буде використано з розумом, а візуал відповідатиме сучасному ритму життя та відображатиме індивідуальність власників.
Навіть маючи невелику площу ви можете замовити дизайн проект Варшава. Дизайнери, беручи до уваги особливості об'єкта, індивідуальні потреби та запити, бюджет на ремонт створять ідеальний варіант для вашого об’єкта. Простір, де кожен сантиметр буде використано з розумом, а візуал відповідатиме сучасному ритму життя та відображатиме індивідуальність власників.
В інтер'єрному бюро Бєлік присутні не лише приклади з об'єктів в містах України. Ми створили та навіть реалізували не один дизайн інтер єру Гданськ, який відповідає європейським стандартом та лишається зручним для тривалого проживання. Ремонти від інтер’єрної студії Бєлік не приносять проблем. Інтер’єри лишаються оптимальними впродовж багатьох років.
Подивіться нашу презентацію