СУЧАСНИЙ РЕМОНТ КВАРТИРИ ПІД КЛЮЧ ЦІНА В ЖК WHITE LINES У КИЄВІ
• Локація - ЖК White Lines, Київ, Україна
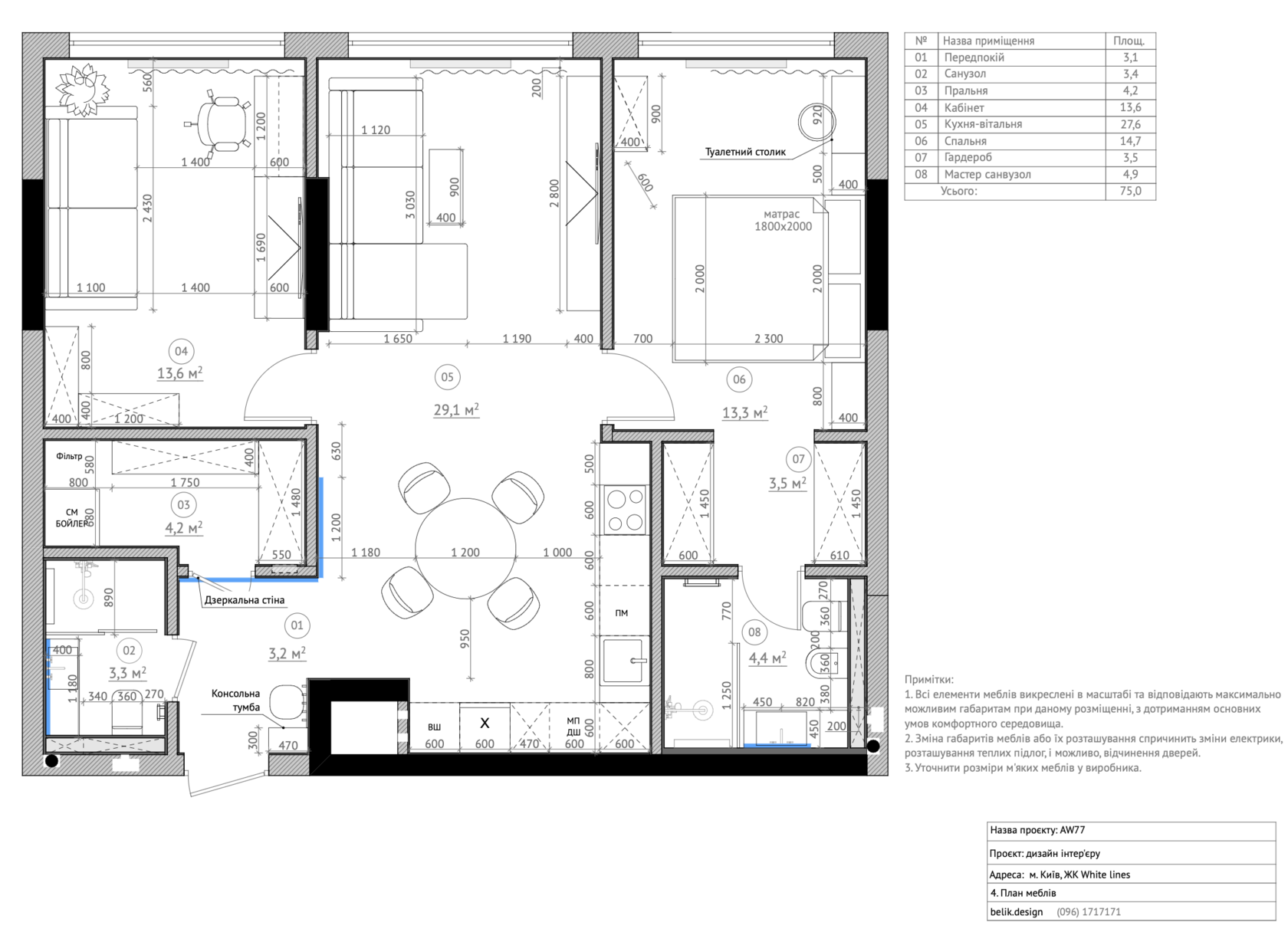
• Площа квартири – 75 м²
• Формат роботи – дизайн проєкт інтер'єру + дизайнерський нагляд + ремонт під ключ
• Рік завершення – 2025
• Площа квартири – 75 м²
• Формат роботи – дизайн проєкт інтер'єру + дизайнерський нагляд + ремонт під ключ
• Рік завершення – 2025
ЖК White Lines у Києві - дизайн квартири в сучасному стилі
Цікавить сучасний ремонт квартири під ключ ціна? Перш ніж звертатися до бригади майстрів, радимо заздалегідь спланувати цей захід. Адже дизайнерське та ергономічне оформлення можливо, якщо заздалегідь прийняти зважені рішення.
Навіть бюджет залежить від того, як саме ви сплануєте положення кімнат, які матеріали оберете та процеси додасте у перелік необхідних. Щоб не помилятися з усім вищеперерахованим та отримати дійсно дизайн квартири в сучасному стилі, варто звернутися до професіоналів.
Краще, якщо це буде компанія з досвідом планування та реалізації дизайну. В інтерєр’єрній студії Бєлік ви можете замовити послуги з дизайну квартири в повному або частковому форматах. Наша компанія понад 10 років створює унікальні, ефективні, ергономічні, безпечні та комфортні простори. Наші проекти - це не ремонт в квартирі, як у сусіда або за чіткими стандартами. Це орієнтованість на індивідуальні побажання замовника, його потреби, стиль життя, фінансові можливості та особливості конкретного об’єкта.
Серед прикладів бюро інтер'єрів Бєлк можна побачити багато різноманітних та максимально не схожих між собою ремонтів. Але кожний з них виглядає сучасним та гармонійним. Всі рішення є доцільними. Присутня індивідуальна концепція, зрозумілість ідей.
Тим, хто прагне складних рішень в оформленні, сучасної естетики та індивідуальності в інтер'єрі, до смаку припаде дизайн квартири в сучасному стилі в ЖК White Lines у Києві. На 75 м2 вдалося запровадити багато цікавих рішень, інновацій та останніх тенденцій в оформленні житла.
Тим, хто прагне складних рішень в оформленні, сучасної естетики та індивідуальності в інтер'єрі, до смаку припаде дизайн квартири в сучасному стилі в ЖК White Lines у Києві. На 75 м2 вдалося запровадити багато цікавих рішень, інновацій та останніх тенденцій в оформленні житла.
Оригінальні рішення в інтер'єрі квартири ЖК White Lines у Києві
Цей дизайн квартири Київ за побажанням замовника мав виглядати оригінально, дорого та цікаво. Хотіли саме витриманість та консерватизм в інтер'єрі, замість напускної розкоші та візуальної естетики через декор.
Щоб досягти поставленої мети, дизайнер інтер'єру спочатку раціонально розподілив простір. Основа концепції - це максимально вільні приміщення, де кожна функціональна зона облаштована необхідними меблями та елементами. Від зайвого декору, нагромадженості меблів та текстилю довелося відмовитися.
Дивлячись на фото прикладів, в очі припадає гра на контрастах. В оздобленні стін приймались складні архітектурні рішення. В кожній кімнаті стіни оформленні одразу кількома типами панелей з різних матеріалів. У вітальні, передпокої та спальні їх аж три:
- мармурові - для них був використаний великоформатний керамограніт;
- ДСП панелі - в дерев'яних фактурах ;
- декоративне шпаклювання або однотонне фарбування стін.
Цікавим є те, що панелювання зроблене в один рівень, не дивлячись на різну товщину та особливість матеріалів. Також присутнє підсвічування, що додає особливу естетику.
У вітальні не лише стіни виконані з керамограніту, в мармурових фактурах. Такий самий матеріал використали для виготовлення стільниці для обіднього столу (зона вітальні). Дерев’яні фактури присутні у ТВ-зоні, в якості акцентного елемента. З тих самих матеріалів була виконана меблева група в передпокої. Серед її фасадів також є мармурові фактури. Такий підхід у виборі та використанні матеріалів зробив кожний елемент частиною єдиної концепції.
Це складне оформлення не потребує додаткового декору та прикрашання. Якісна реалізація складних рішень створює особливу красу та унікальність. Робить інтер’єр квартири вишуканим та максимально естетичним.
Це складне оформлення не потребує додаткового декору та прикрашання. Якісна реалізація складних рішень створює особливу красу та унікальність. Робить інтер’єр квартири вишуканим та максимально естетичним.
Окрім оздоблення стін різними фактурами на ЖК White Lines у Києві впроваджено багато ефективних рішень. Обговорювалися вони та весь сучасний ремонт квартири під ключ ціна ще на стадії проекта. Замовник особисто обирав тканини для м’яких меблів та ділився своїми побажаннями в оформленні гардеробної, інших приміщеннях.
Дизайнер інтер'єрної компанії підлаштував запити клієнта під можливості приміщення. Знаходив компроміси та втілював ідеї в життя, прописавши заздалегідь цей шлях у дизайн проекті.
Дизайнер інтер'єрної компанії підлаштував запити клієнта під можливості приміщення. Знаходив компроміси та втілював ідеї в життя, прописавши заздалегідь цей шлях у дизайн проекті.
Дизайн квартири в сучасному стилі у ЖК White Lines у Києві має такі ефективні рішення:
- приточно-витяжне вентилювання;
- підібрані в тон зі стінами штори, а в тон з підлогою - дерев’яні жалюзі;
- суцільне дзеркало у весь зріст в макіяжній зоні - має підсвітку з датчиком руху (в кутку);
- монтовані біля спального місця вимикачі, розетки;
- багаторівневе освітлення - де основними є трекові системи та додатково LED-підсвічування різних зон та елементів, точкові світильники, настінні бра, люстра;
- пофарбовані в колір стін двері, висотою до стелі;
- вбудована сантехніка з термостатом;
- м'які меблі (дивани, ліжко, пуф) шилися з тканин італійського бренду під замовлення;
- трап з нахилом, що дозволило уникнути витікання води з душу;
- подрібнювач харчових відходів (диспоузер);
- корпусні меблі під замовлення, в яких зроблено багато прихованих систем для зберіганні (санвузол, передпокій, вітальня, кабінет, спальня).
Окремо варто виділити оформлення гардеробної. Найкращі дизайнери інтер'єру Києва за замовленням клієнта зробити дві дзеркально однакові шафи. Їх поділили на жіночу та чоловічу. Кожна шафа має різне наповнення. Скляні двері стоп слоу мають дзеркальне напилення. Ці шафи є ефективним рішенням для зберігання та естетичним складником в інтер'єрі.
На об'єкті також вийшло зробити додаткове технічне приміщення, де заховані щитові, бойлер, система очищення води. Встановлена пральна машина. Місця для зберігання добавляють розмісити всі мийні засобі, інвентар для прибирання, деякі сезонні речі та взуття, інші побутові предмети. Є системи відкритого та закритого зберігання.
На об'єкті також вийшло зробити додаткове технічне приміщення, де заховані щитові, бойлер, система очищення води. Встановлена пральна машина. Місця для зберігання добавляють розмісити всі мийні засобі, інвентар для прибирання, деякі сезонні речі та взуття, інші побутові предмети. Є системи відкритого та закритого зберігання.
Всі ці та багато інших рішень можна втілити на будь-якому об’єкті. Допомоагає спланувати ремонт та реалізувати все технічно правильно проектна документація. Дизайн проект вартість не перевищує 8% всіх витрат на ремонт. Ця сума фіксована та зазначена на початку співпраці. Але саме проектна документація збереже ваші нерви та час. Заощадить до 20 % витрат на виправленні помилок, купівлі зайвих речей та виконанні непотрібних процесів.
Співробітники інтер’єрної компанії Бєлік беруть відповідальність за планування та весь процес ремонту, надаючи якісний результат з гарантіями.
Співробітники інтер’єрної компанії Бєлік беруть відповідальність за планування та весь процес ремонту, надаючи якісний результат з гарантіями.
🔗 Дивіться також:
Подивіться нашу презентацію