ІНТЕР’ЄР БУДИНКУ ВСЕРЕДИНІ У С. ВІТА-ПОШТОВА У КИЇВСЬКІЙ ОБЛАСТІ
Інтер'єр будинку всередині - де сучасність поєднана з природою
Ремонт будинку викликає у багатьох людей стан стурбованості та страху. Адже потрібно врахувати так багато важливих речей та обміркувати все до дрібниць. Без спеціальних знань, інструментів, навичок, досвіду та надивленості складно досягти ідеального та органічного інтер'єра. Особливо, коли йдеться про приватні будинки. Адже кожна забудова унікальна. Вони не зводяться за стандартом та не мають ідентичного планування, як це буває у квартирах старого фонду або ЖК. Всі будинки різні за архітектурою, мають суттєві відмінності в планувальних рішеннях, розміщенні кімнат, проведенні комунікацій тощо.
Саме тому так важливо звернутися до дизайнера інтер'єрів, якщо ви наважилися на сучасний та дійсно хороший ремонт. Інтер'єр будинку всередині дозволить вам відчути себе в безпеці та максимально відпочити. Освічений фахівець не лише створить гарний візуал на вашому об'єкті. Кожне прийняте рішення стане орієнтованим на потреби вашої родини. Всі ідеї будуть логічними та ефективними, що покращуватиме рівень життя. Ремонт також буде поміркованим до дрібниць. Це позбавить від проблем під час реалізації дизайн проекта та в подальшому майбутньому. Через 5-10 років ви не зіткнетеся з бажанням щось виправити чи переробити.
Прикладом дійсного вдалого дизайн інтер'єру будинку, в якому хочеться мешкати та проводити час є об’єкт в с. Віта-Поштова. Команда студії дизайну Бєлік створила унікальний, персоналізований та дуже естетичний інтер'єр. Концепція була орієнтована на індивідуальні потреби замовника, його інтереси та побажання. Також до уваги бралися особливості самого об'єкта та бюджет.
Варто зазначити, що цей інтер'єр будинку всередині ви не знайдете на всіх сторінках з дизайну. Адже кожна ідея розроблялась індивідуально, промірковувалася та доводилася до досконалості.
Варто зазначити, що цей інтер'єр будинку всередині ви не знайдете на всіх сторінках з дизайну. Адже кожна ідея розроблялась індивідуально, промірковувалася та доводилася до досконалості.
Краса дизайну будинку в с. Віта-Поштова
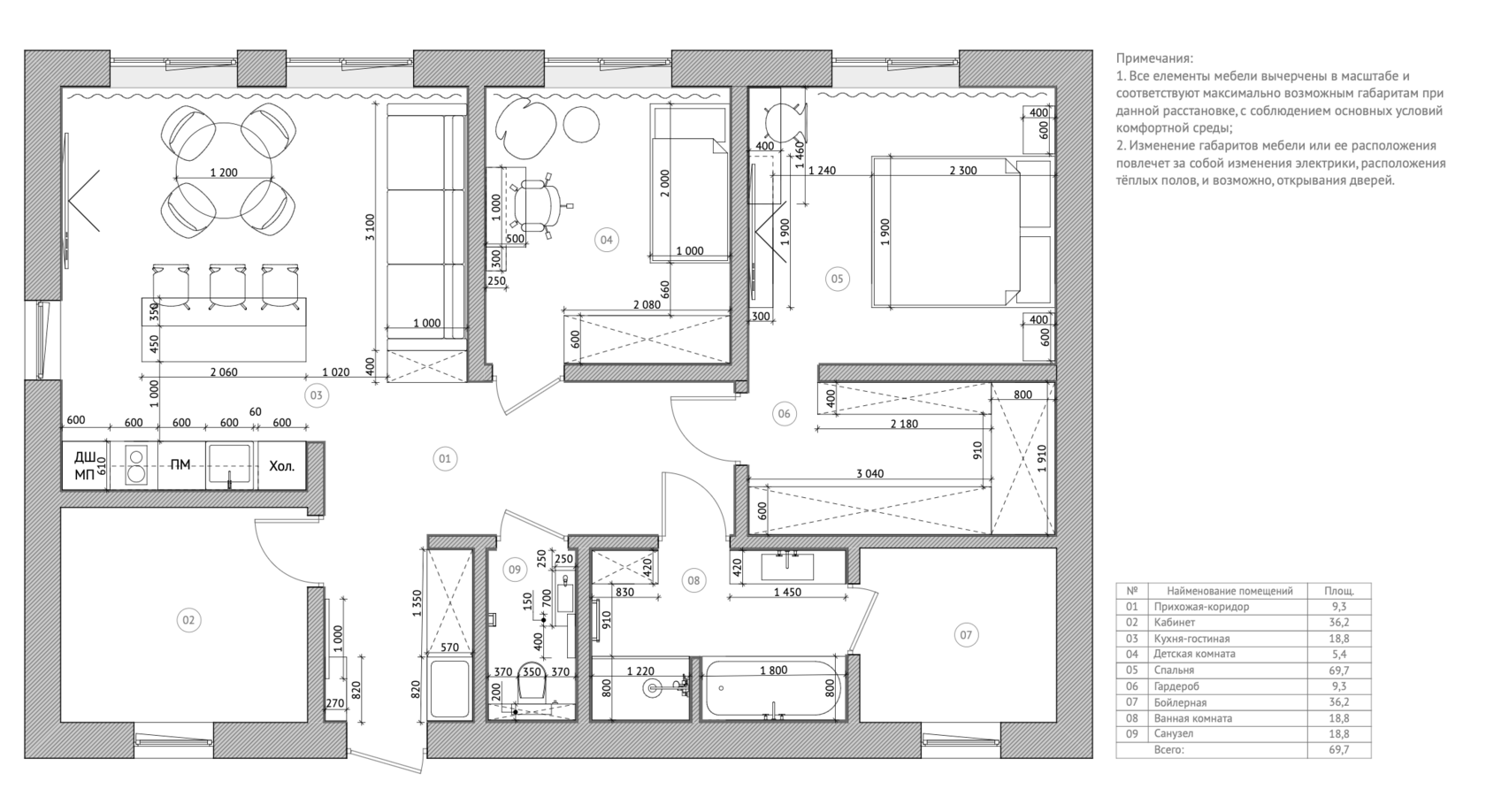
Головний запит при плануванні цього об'єкта полягав у створенні максимально естетичного та функціонального простору. Дизайнером інтер'єру витримана ідея не захаращеного будинку. Не дивлячись на те що це забудова, вона досить невелика (до 70 м2). Тому дуже важливим було розмістити все необхідне всередині, максимально використати кожний м2.
Робітники інтер'єрної студії Бєлік обирали за основу змішану стилістику. Функціонально розподілити простір та зробити його ергономічним вийшло завдяки головним засадам мінімалізму. Але справжнього затишку та візуальну естетику створили акценти з еко стиля.
Увійшовши в цю оселю одразу відчуваєш єднання з природою. Тут вирує атмосфера спокою завдяки використанню дерев’яних фактур, насичених зелених кольорів, живих рослин, цікавому декоруванню.
Зелений колір обрано не просто акцентним - у вигляді кількох типів меблів, присутності на предметах декору та текстилі. Він став основним, нарівні із білим. Пофарбовані стіни, фасади та корпуси меблів, декоративні панелі, оббивка меблів, текстиль - всюди зустрічається ідентичний, гарний відтінок зеленого. Він гармонійно переплітається зі світлим монохромними палітрами (сірий, беж, білий). Щоб атмосфера еко відчувалася по-максимуму, цей інтер'єр будинку всередині містить багато дерев'яних фактур. Вони також виконані у вигляді фасадів шаф, окремих елементів або повноцінних меблів (обідній стіл), оздоблення підлоги та стін (декоративні панелі).
Зелений колір обрано не просто акцентним - у вигляді кількох типів меблів, присутності на предметах декору та текстилі. Він став основним, нарівні із білим. Пофарбовані стіни, фасади та корпуси меблів, декоративні панелі, оббивка меблів, текстиль - всюди зустрічається ідентичний, гарний відтінок зеленого. Він гармонійно переплітається зі світлим монохромними палітрами (сірий, беж, білий). Щоб атмосфера еко відчувалася по-максимуму, цей інтер'єр будинку всередині містить багато дерев'яних фактур. Вони також виконані у вигляді фасадів шаф, окремих елементів або повноцінних меблів (обідній стіл), оздоблення підлоги та стін (декоративні панелі).
Саме завдяки гармонійному поєднанню та комбінуванню різних фактур, відтінків та кольорів створюється естетика. Тут не потрібно зайвого декору. Лише гарні дизайнерські світильники з якісним освітленням, елементи живих рослин, необхідні предмети декору (вази із квітами, аромасвічки, книжки тощо).
Щодо планування, в будинку присутня одна простора кімната студія. Вона починається одразу із входу. Тобто, коридор поєднано із вітальнею та кухнею. Щоб відділити цю частину приміщення від загальної, була встановлена шафа, нагадуюча ширму. В ній зручно розмістити всі декоративні елементи та аксесуари. Вона не краде простір (як це було б зі стіною) та виглядає частиною загальної концепції.
Щодо планування, в будинку присутня одна простора кімната студія. Вона починається одразу із входу. Тобто, коридор поєднано із вітальнею та кухнею. Щоб відділити цю частину приміщення від загальної, була встановлена шафа, нагадуюча ширму. В ній зручно розмістити всі декоративні елементи та аксесуари. Вона не краде простір (як це було б зі стіною) та виглядає частиною загальної концепції.
В гостинній-кухні розміщені всі необхідні предмети інтер'єру. Витримана загальна стилістика та колористика. Чудовим рішенням в будинку став острівець. Він відіграє роль додаткового місця для приготування їжі, а також використовується в якості барної стійки, обіднього столу.
Житлові кімнати мають ідентичну стилістику, матеріали, кольори. Вони зроблені максимально комфортними та функціональними. В спальні головним елементом є ліжко. В кабінеті докладено максимум зусиль для створення зручного робочого місця та зони для відпочинку.
Зважаючи на те, що оформлювався приватний будинок, дизайнери врахували необхідність оформлення технічних приміщень та гардеробної. Невеликі кімнати були переобладнані на зручні простори, які полегшують життя власників.
Житлові кімнати мають ідентичну стилістику, матеріали, кольори. Вони зроблені максимально комфортними та функціональними. В спальні головним елементом є ліжко. В кабінеті докладено максимум зусиль для створення зручного робочого місця та зони для відпочинку.
Зважаючи на те, що оформлювався приватний будинок, дизайнери врахували необхідність оформлення технічних приміщень та гардеробної. Невеликі кімнати були переобладнані на зручні простори, які полегшують життя власників.
Інтер'єр будинку всередині - важливі засади оформлення
Дуже важливими при плануванні інтер'єру будинку у с. Віта-Поштова були технічні аспекти. Співробітники студії дизайн інтер'єрів Бєлік розробили детальну технічну документацію. Прокладання та приховування всіх комунікацій, впровадження інновацій та тенденцій (розумний дім, приточно витяжне вентилювання, точки доступу, теплі підлоги) - все це присутньо на об'єкті. Крім гарної естетики велика увага приділялася зручності інтер'єра.
Всі технічні та житлові приміщення оформленні правильно, естетично. Також увагу приділили ремонту в санвузлі та ванній кімнаті. Це не про монтаж унітаза та ванни. Тут особлива атмосфера з тропічним душем, окремою ванною, термостатом, інсталяціями та зберіганням всіх засобів на полицях в стіні.
Звернувшись до студії дизайн інтер'єрів Бєлік ви замовите не лише гарні візуалізації, як в будинку с. Віта-Поштова. Ви отримаєте покроковий план реалізації всіх ідей (схеми, плани, креслення, розрахунки, підбірка товарів для інтер'єру). Кожне рішення зважене та промірковане, що не викличе проблем під час їх реалізації та надалі (вже при проживанні). Ми створимо для вас персоналізований інтер'єр будинку всередині та чіткий план дій.
Звернувшись до студії дизайн інтер'єрів Бєлік ви замовите не лише гарні візуалізації, як в будинку с. Віта-Поштова. Ви отримаєте покроковий план реалізації всіх ідей (схеми, плани, креслення, розрахунки, підбірка товарів для інтер'єру). Кожне рішення зважене та промірковане, що не викличе проблем під час їх реалізації та надалі (вже при проживанні). Ми створимо для вас персоналізований інтер'єр будинку всередині та чіткий план дій.
Основою якісного результату в будь-якому житловому просторі є продуманий дизайн проєкт. Саме він дозволяє ще на етапі планування поєднати естетику, функціональність і технічну доцільність усіх рішень. У дизайн-проєкті враховується логіка переміщення між приміщеннями, сценарії життя родини, інженерні вузли та майбутнє навантаження на простір. Детальніше з підходом до формування проєкту та бюджету можна ознайомитися на сторінці дизайн проєкт.
Для багатьох замовників важливим є розуміння фінансової складової. Вартість дизайнера квартир залежить від площі об’єкта, складності архітектури, обсягу технічної документації та рівня супроводу реалізації. Важливо усвідомлювати, що професійний дизайнер — це не витрата, а інвестиція, яка дозволяє уникнути значно більших витрат у майбутньому. Ознайомитися з деталями формування бюджету можна за посиланням вартість дизайнера квартир.
Для багатьох замовників важливим є розуміння фінансової складової. Вартість дизайнера квартир залежить від площі об’єкта, складності архітектури, обсягу технічної документації та рівня супроводу реалізації. Важливо усвідомлювати, що професійний дизайнер — це не витрата, а інвестиція, яка дозволяє уникнути значно більших витрат у майбутньому. Ознайомитися з деталями формування бюджету можна за посиланням вартість дизайнера квартир.
Принципи, які застосовуються при оформленні приватних будинків, так само ефективно працюють і для міського житла. Дизайн інтер’єру квартири базується на тих самих засадах: раціональне зонування, ергономіка, продумане зберігання та цілісна стилістична концепція. Саме комплексний підхід дозволяє створювати простори, комфортні для щоденного життя незалежно від формату об’єкта. дизайн інтер’єру квартири — це поєднання естетики та практичності.
Особливої уваги потребує дизайн та ремонт квартири у новобудові, де об’єкти часто здаються з вільним плануванням. Такі простори відкривають широкі можливості, але водночас вимагають професійного підходу до розміщення комунікацій і зонування. Саме дизайн-проєкт дозволяє уникнути хаосу та створити житло, повністю адаптоване під спосіб життя власників. дизайн та ремонт квартири у новобудові — це можливість реалізувати потенціал об’єкта без компромісів.
Особливої уваги потребує дизайн та ремонт квартири у новобудові, де об’єкти часто здаються з вільним плануванням. Такі простори відкривають широкі можливості, але водночас вимагають професійного підходу до розміщення комунікацій і зонування. Саме дизайн-проєкт дозволяє уникнути хаосу та створити житло, повністю адаптоване під спосіб життя власників. дизайн та ремонт квартири у новобудові — це можливість реалізувати потенціал об’єкта без компромісів.
У підсумку комплексна послуга дизайнера інтер’єру охоплює значно більше, ніж створення красивої картинки. Це аналіз потреб, розробка концепції, підготовка повної проєктної документації та супровід реалізації. Саме такий підхід гарантує, що інтер’єр буде зручним, функціональним і актуальним протягом багатьох років. послуга дизайнера інтер’єру від студії Бєлік — це впевненість у результаті та комфорт на кожному етапі роботи.
Подивіться нашу презентацію