СУЧАСНИЙ РЕМОНТ ОДНОКІМНАТНОЇ КВАРТИРИ В ЖК КРИШТАЛЕВІ ДЖЕРЕЛА У КИЄВІ
Однокімнатні квартири - це доволі складні та потребуючи професійних знань в галузі дизайн інтер'єрів об'єкти. Невеликі приміщення складніше адаптувати під потреби сучасної людини, помістити все необхідне та досягти гарного візуалу. Замість того щоб намагатися зробити все “за стандартом” розставляючи меблі вздовж стін та досягти хоч якого функціоналу, краще завчасно звернутися до фахівця.
Сучасний ремонт однокімнатної квартири потребує дійсно професійного погляду навіть більше, ніж житло на 100 м2. Адже саме освічений та досвідчений фахівець зможе реалізувати ефективні ідеї під час прийняття планувальних рішень, виборі матеріалів та впровадженні певного стиля. Планування дизайну відбувається з огляду на реальний досвід, професійні знання та надивленість. Завдяки зверненню до дизайнера інтер'єрів можна уникнути багато зайвих процесів та помилок, реалізуючи сучасний ремонт однокімнатної квартири.
Сучасний ремонт однокімнатної квартири потребує дійсно професійного погляду навіть більше, ніж житло на 100 м2. Адже саме освічений та досвідчений фахівець зможе реалізувати ефективні ідеї під час прийняття планувальних рішень, виборі матеріалів та впровадженні певного стиля. Планування дизайну відбувається з огляду на реальний досвід, професійні знання та надивленість. Завдяки зверненню до дизайнера інтер'єрів можна уникнути багато зайвих процесів та помилок, реалізуючи сучасний ремонт однокімнатної квартири.
Будуть уникнені перевитрати на закупівлю оздоблювальних матеріалів, меблів "не за розміром”, непотрібного декору та текстилю. Це заощадить близько 10% вашого бюджету. Ще 10% витрат від ремонту ви збережете завдяки тому, що уникнете зайвих процесів та переробляння помилок.
В інтер’єрній компанії Бєлік ви можете замовити сучасний ремонт однокімнатної квартири в ЖК Кришталеві Джерела чи будь-якій іншій новобудові (об'єкті старого фонду) міста Київ та передмістя. Роботи виконуються від чистого старту (розробка дизайн проекта) до повної реалізації під ключ. Тобто ви отримуєте розроблений професійно та реалізований дизайн інтер'єра.
В інтер’єрній компанії Бєлік ви можете замовити сучасний ремонт однокімнатної квартири в ЖК Кришталеві Джерела чи будь-якій іншій новобудові (об'єкті старого фонду) міста Київ та передмістя. Роботи виконуються від чистого старту (розробка дизайн проекта) до повної реалізації під ключ. Тобто ви отримуєте розроблений професійно та реалізований дизайн інтер'єра.
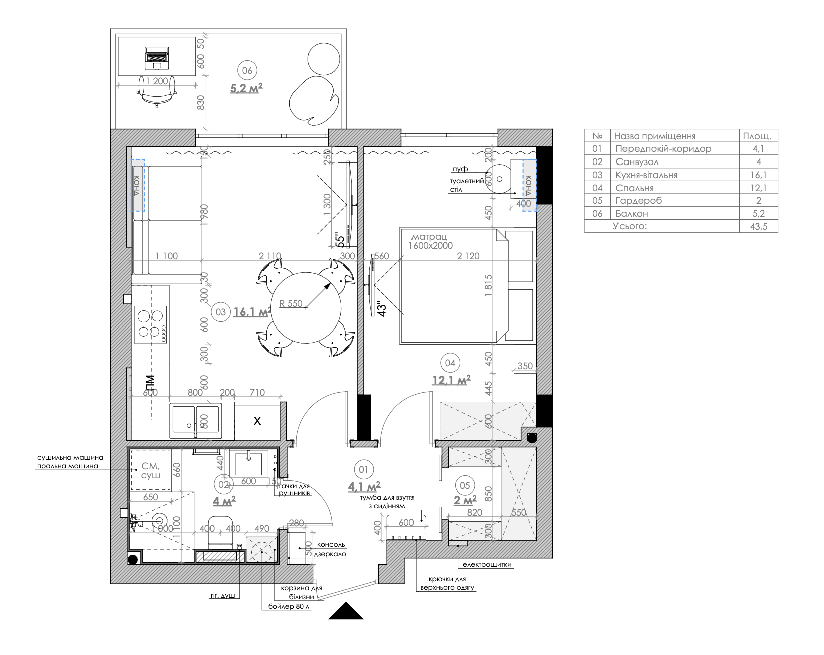
Простіше обрати для себе планувальні, архітектурні, дизайнерські та стилістичні рішення, роздивляючись приклади схожого проекта. Квартира в ЖК Кришталеві Джерела - ідеальний приклад для тих, у кого невелика площа (40-45 м2) в новобудові або старому фонді. Тут присутні оптимальні та ефективні рішення. Реальні фото ремонту відображають ідеальний смак власників. Отриманий результат цілком задовольняє всі потреби мешканців, покращуючи їх рівень життя.
Сучасний ремонт однокімнатної квартири - оптимальні рішення для комфортного життя
Беручи до уваги невелику площу об'єкта, головною метою стало максимально раціональне її використання. Від самого початку була обрана світла колористика, адже вона візуально створює ефект легкості та додає простору. Дозволяє розставляти акценти без складних ремонтних процесів. Достатньо “погратися” з кольорами та фактурами, правильно підібрати меблі та додати якісне освітлення.
В квартирі ЖК Кришталеві Джерела є спальня та додатково кімната-студія. Кухня-вітальня доволі невелика, але оснащена всіма необхідними меблями. Підлогове покриття має однакові фактури дерева, а ось на стінах було використано перехід.
Зона вітальні ніби відокремлена, за допомогою не стін, а саме оздоблення на стелі та стінах. Диван та ТВ-зона розташована біля стін, виконаних з декоративних дерев’яних панелей. Вони дають цікавих акцентів, підкреслюючи екологічність та сучасність простору. Також за дерев'яними панелями зручно проводити та ховати всі комунікації, не виконуючи складні будівельні роботи. За ними легко доглядати - достатньо протерти вологою серветкою. Не лише стіни виділяють вітальню. Стеля виконана у два рівні. Частина стелі над зоною вітальні має перехід, окрему трекову систему та підсвічування вздовж цього перетину.
Саме освітлення тут має багато рівнів та варіантів, а саме:
Таке різноманіття дозволяє створити особливу атмосферу в різний час доби, підсвітити окремі зони. Візуально додає затишку та естетики у інтер'єр.
- трекові системи;
- LED-підсвічування окремих зон на стелі, меблів, полиць в шафах;
- гарна люстра над обіднім столом;
- бра на стіні, підлозі тощо.
Таке різноманіття дозволяє створити особливу атмосферу в різний час доби, підсвітити окремі зони. Візуально додає затишку та естетики у інтер'єр.
Не дивлячись на невелику площу, у студії розмістили круглий обідній стіл з м'якими кріслами. Він розташований на перетині кухні та вітальні. Тут немає зайвого декору. Затишку досягнуто завдяки використанню килима, декоративних подушок, фіранок. Були обрані якісні матеріали та однотонні спокійні кольори, які схожі між собою. Пофарбовані у беж стіни та плінтуса плавно переходять у дерев'яні декоративні панелі.
Сучасний ремонт однокімнатної квартири в вітальні немає корпусної шафи. Більшість речей зберігається саме в гардеробній, яка була виконана у передпокої. На великих об'єктах, як ЖК Кришталеві Джерела гардеробна стає порятунком від візуального шуму та захаращеності. Її вдалося монтувати в ніші передпокою. Замовлення наповнення у меблярів за індивідуальними розмірами дозволило максимально ефективно використати простір, додати полиці різних розмірів. Навіть електрощити приховані за дверима гардеробної.
Сучасний ремонт однокімнатної квартири в вітальні немає корпусної шафи. Більшість речей зберігається саме в гардеробній, яка була виконана у передпокої. На великих об'єктах, як ЖК Кришталеві Джерела гардеробна стає порятунком від візуального шуму та захаращеності. Її вдалося монтувати в ніші передпокою. Замовлення наповнення у меблярів за індивідуальними розмірами дозволило максимально ефективно використати простір, додати полиці різних розмірів. Навіть електрощити приховані за дверима гардеробної.
В спальні, як і по всіх квартирі, були поєднані різні світлі текстури. Саме за допомогою такого комбінування створені цікаві приходи, додані акценти та уникнено ефекту стерильності. Не дивлячись на обмеженість простору, в спальні вдалося інтегрувати зону макіяжного столика, розмістити по центру велике ліжко та навіть поставити шафу. Вона пофарбована у колір із дверима (білі фасади). Ручки врізні, що виглядає досить ефектно. Яскравим акцентом саме спальні є м’яка об'ємна стіна не лише над ліжком, але й біля косметичного столика.
Санвузол в ЖК Кришталеві Джерела також складно назвати просторим. Але в замовників був запит на монтаж пральної та сушильної машин. Ці два девайси розміщені один над одним, вбудовані у стіну. В санвузлі є саме душ кабіна з прозорим, скляним корпусом. Трап вздовж стіни захищає від витікання води. Поріг відсутній. В санвузлі присутні інсталяції, вбудована всі сантехніка, зроблені полиці в стіні, є термостат з автоматичним регулюванням температури води. Всі ці дрібниці забезпечують комфорт та покращують рівень життя власників. Додають візуально гарного ефекту.
Санвузол в ЖК Кришталеві Джерела також складно назвати просторим. Але в замовників був запит на монтаж пральної та сушильної машин. Ці два девайси розміщені один над одним, вбудовані у стіну. В санвузлі є саме душ кабіна з прозорим, скляним корпусом. Трап вздовж стіни захищає від витікання води. Поріг відсутній. В санвузлі присутні інсталяції, вбудована всі сантехніка, зроблені полиці в стіні, є термостат з автоматичним регулюванням температури води. Всі ці дрібниці забезпечують комфорт та покращують рівень життя власників. Додають візуально гарного ефекту.
Замовити сучасний ремонт однокімнатної квартири в професійному виконанні та з наданням гарній якості ви можете в студії Бєлік. Компанія інтер'єрів понад 10 років спеціалізується на створенні сучасних, персоналізованих та пристосуваних до комфортного життя просторів. Тут сучасні тенденції адаптуються під потреби замовників. Впроваджуються рішення, які на реальному досвіді довели свою ефективність. Задовольняються потреби та побажання клієнтів - чи то певні кордони в бюджеті на ремонт, чи то впровадження якогось конкретного стиля.
Щоб сучасний ремонт однокімнатної квартири був дійсно продуманим і передбачуваним, варто починати з професійного планування. Саме ціна дизайн проекту включає не просто красиві 3D-візуалізації, а повний комплекс рішень: планування, технічну документацію, підбір матеріалів і чітку послідовність робіт. Для невеликих квартир це особливо важливо, адже кожен сантиметр простору має працювати на комфорт.
Звертаючись до дизайн студія Бєлік, ви отримуєте системний підхід до створення інтер’єру. Тут не працюють за шаблонами — кожен проєкт адаптується під реальні сценарії життя, звички мешканців і можливості конкретного об’єкта, як це було реалізовано у квартирі в ЖК Кришталеві Джерела.
Ще на старті співпраці замовник розуміє, як формується дизайн інтер’єрів київ ціна, які етапи включає проєкт і як розподіляється бюджет. Така прозорість дозволяє уникнути зайвих витрат і чітко контролювати фінансову сторону ремонту, не жертвуючи якістю чи естетикою.
Звертаючись до дизайн студія Бєлік, ви отримуєте системний підхід до створення інтер’єру. Тут не працюють за шаблонами — кожен проєкт адаптується під реальні сценарії життя, звички мешканців і можливості конкретного об’єкта, як це було реалізовано у квартирі в ЖК Кришталеві Джерела.
Ще на старті співпраці замовник розуміє, як формується дизайн інтер’єрів київ ціна, які етапи включає проєкт і як розподіляється бюджет. Така прозорість дозволяє уникнути зайвих витрат і чітко контролювати фінансову сторону ремонту, не жертвуючи якістю чи естетикою.
Для тих, хто хоче повністю делегувати процес фахівцям, доступні послуги дизайнера інтер’єру ціна з авторським наглядом. Це означає, що дизайнер контролює реалізацію всіх рішень, спілкується з майстрами, допомагає з підбором і закупівлею матеріалів та гарантує відповідність результату затвердженому проєкту.
А коли мова йде про повну реалізацію інтер’єру, оптимальним рішенням стає капітальний ремонт квартири Київ під ключ. Такий формат дозволяє отримати готове житло без стресу, переробок і непередбачених витрат — саме так, як це було реалізовано у сучасному ремонті однокімнатної квартири в ЖК Кришталеві Джерела.
Результат — компактний, функціональний і візуально легкий простір, який повністю відповідає потребам сучасної людини та залишається комфортним на роки вперед.
А коли мова йде про повну реалізацію інтер’єру, оптимальним рішенням стає капітальний ремонт квартири Київ під ключ. Такий формат дозволяє отримати готове житло без стресу, переробок і непередбачених витрат — саме так, як це було реалізовано у сучасному ремонті однокімнатної квартири в ЖК Кришталеві Джерела.
Результат — компактний, функціональний і візуально легкий простір, який повністю відповідає потребам сучасної людини та залишається комфортним на роки вперед.
Подивіться нашу презентацію