СОВРЕМЕННЫЙ РЕМОНТ КВАРТИРЫ ПОД КЛЮЧ ЦЕНА В ЖК WHITE LINES В КИЕВЕ
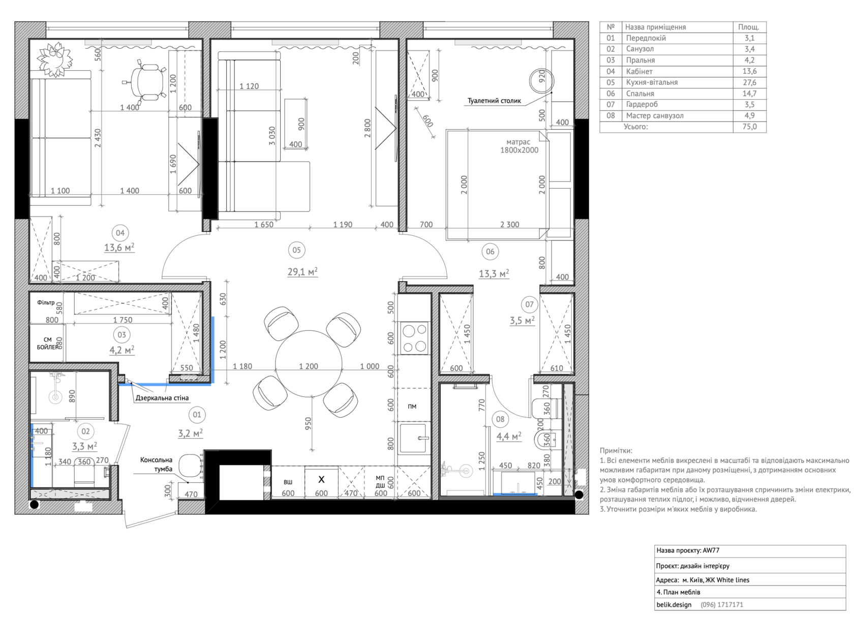
• Локация - ЖК White Lines, Киев, Украина
• Площадь квартиры – 75 м²
• Формат работы – дизайн проекта интерьера + дизайнерский надзор + ремонт под ключ
• Год завершения – 2025
• Площадь квартиры – 75 м²
• Формат работы – дизайн проекта интерьера + дизайнерский надзор + ремонт под ключ
• Год завершения – 2025