СУЧАСНИЙ СКАНДИНАВСЬКИЙ СТИЛЬ КВАРТИРИ В ЖК МІСТО КВІТІВ У КИЄВІ
• Локація - ЖК Місто Квітів, Київ, Україна
• Площа квартири – 83 м²
• Формат роботи – дизайн проєкт інтер'єру
• Площа квартири – 83 м²
• Формат роботи – дизайн проєкт інтер'єру
Якщо ви прагнете до комфорту, унікальності та персоналізації інтер'єра, то варто від самого початку звернутися до освічених в цій галузі фахівців. Без створення дизайн проєкту квартири складно буде втілити всі сучасні тренди та інновації, відобразити ваші смаки до певного стиля, зробити ремонт дійсно якісним, а інтер’єр ергономічним. Адже крім праці над візуалом дизайн інтер'єрів планує кожний ремонтний процес. Промірковуються всі планувальні та технічні аспекти, досягається максимальна зручність використання простору та гармонійність в візуальному плані.
Замовити оригінальний та покращуючий рівень життя дизайн оселі можна в студії дизайн інтер'єру Бєлік. Ми беремо на себе всі процеси, починаючи з розробки проектної документації та завершуючи авторським наглядом під час її реалізації. Можна замовити ремонт в приватному будинку, дизайн квартири вторинного ринку або у новобудові. Надаються послуги, як окремо (лише проєкт чи ремонт), так і в комплексі “під ключ” (дизайн проєкт+ремонт+авторський нагляд).
Замовити оригінальний та покращуючий рівень життя дизайн оселі можна в студії дизайн інтер'єру Бєлік. Ми беремо на себе всі процеси, починаючи з розробки проектної документації та завершуючи авторським наглядом під час її реалізації. Можна замовити ремонт в приватному будинку, дизайн квартири вторинного ринку або у новобудові. Надаються послуги, як окремо (лише проєкт чи ремонт), так і в комплексі “під ключ” (дизайн проєкт+ремонт+авторський нагляд).
Серед прикладів нашої компанії можна віднайти максимально сміливі, не схожі між собою та сучасні варіанти. Кожний з об'єктів, спланований та реалізований фахівцями Бєлік, характеризується персоналізованістю, зручністю, безпекою, безперечною якістю. Візуальні аспекти можуть відрізнятися. Вони цілком залежать від індивідуальних побажань клієнта, його фінансових можливостей, особливостей самого об'єкта.
Для зручності пошуку бажаного для вас стиля (планування, колористики) можна заздалегідь промовити співробітнику інтер’єрної студії Бєлік про свої побажання. Також наші клієнти заповнюють анкету, яка дозволяє дизайнерові краще зрозуміти їх індивідуальні потреби та запити.
Для зручності пошуку бажаного для вас стиля (планування, колористики) можна заздалегідь промовити співробітнику інтер’єрної студії Бєлік про свої побажання. Також наші клієнти заповнюють анкету, яка дозволяє дизайнерові краще зрозуміти їх індивідуальні потреби та запити.
Тим, хто шукає світлий та функціональним простір, з елементами природної естетики та ніжної краси варто звернути увагу на сучасний скандинавський стиль квартири в ЖК Місто Квітів. Це ідеальне рішення, як для невеликих, так і для досить просторих квартир (будинків). Кожна деталь тут навіює комфорт, затишок та особливе тепло.
Дизайнер інтер'єрів вдало попрацював над вибором та комбінуванням кольорів, фактур, декоруванням стін, розподілом простору та впровадженням ефективних дизайнерських рішень. Багато ідей, використаних в ЖК Місто Квітів можуть стати в нагоді при плануванні ремонту.
Дизайнер інтер'єрів вдало попрацював над вибором та комбінуванням кольорів, фактур, декоруванням стін, розподілом простору та впровадженням ефективних дизайнерських рішень. Багато ідей, використаних в ЖК Місто Квітів можуть стати в нагоді при плануванні ремонту.
Скандинавський стиль в ЖК Місто Квітів - де затишок поєднано зі зручністю
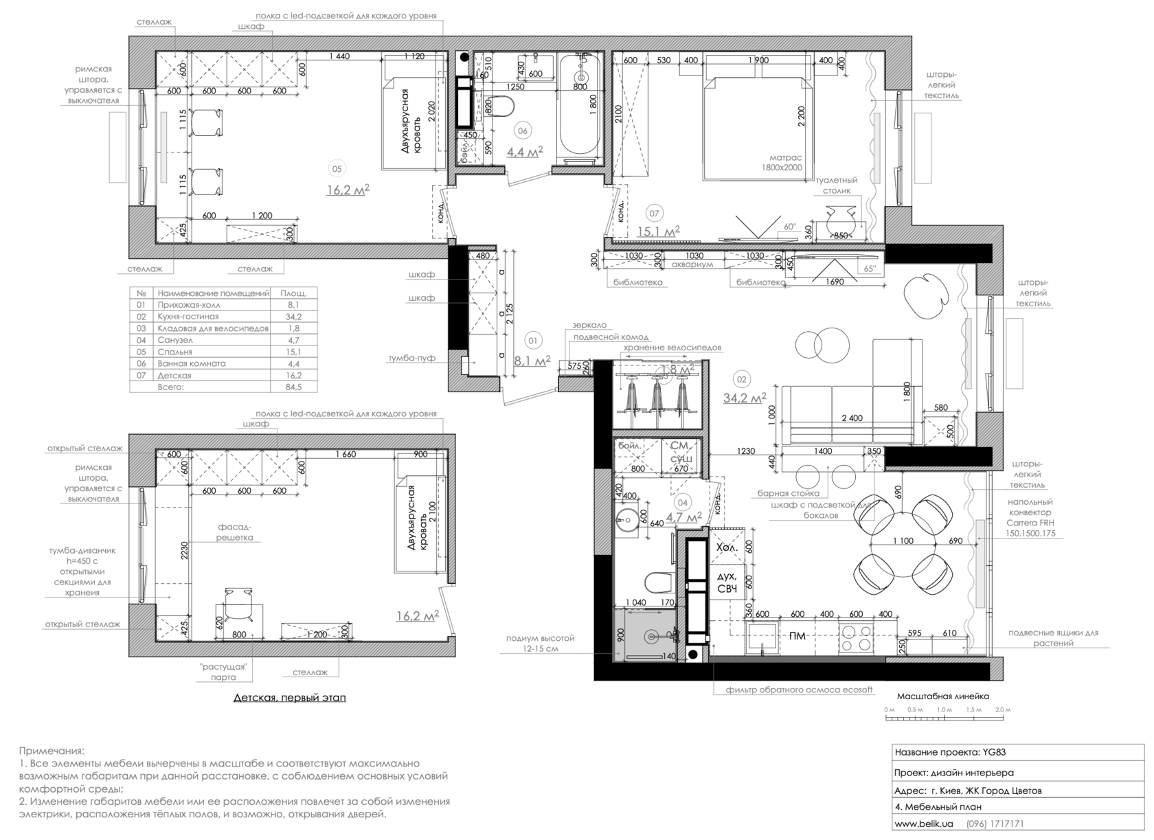
Основна ідея цього стиля — це створення світлого, функціонального простору. Природні текстури тут ідеально поєднуються з чіткими лініями. При досить стандартному плануванні (об'єднана кухня-вітальня, спальня, дитяча на двох) вдалося досягти максимальної естетики.
На це вплинула вдала “гра” з колористикою та декоруванням. Додавання цікавих дизайнерських фішок в оформленні. Кращими рішеннями у квартирі ЖК Місто Квітів слід вважати:
- зонування за допомогою меблів та окремих їх елементів — як приклад, барна стійка та скляна вітрина для келихів елегантно розділяють зону відпочинку та приготування їжі;
- вертикальні дерев’яні рейки (баффелі) та чітка геометрія стін — використовуються як для зонування (перегородка біля барної стійки), так і як декор стін;
- приховані двері, пофарбовані в колір стін — створюють відчуття безперервного простору;
- функціональні «невидимки» — пральна та сушильна машини в колоні, інтегроване робоче місце (стіл, що є продовженням підвіконня у дитячій), системи зберігання до стелі, приховані системи за інсталяціями та в нішах тощо;
- уникнення гострих кутів та різких переходів — сантехніка закругленої форми, пом’якшені кути на меблях або їх відсутність (завдяки вбудованості у стіни), м’які меблі овальної форми;
- проміркований світловий дизайн з різними сценаріями — тонкі чорні треки з магнітними світильниками, точкові світильники, підсвітка дзеркал (ніш, скляної вітрини з келихами, полиць), акцентні люстри цікавої форми в певних зонах кімнат;
- використання яскравих колірних акцентів — глибокий смарагдовий колір дивана перегукується з плиткою на кухонному фартуху в кімнаті-студії та у першій ванній кімнаті, ніжна блакить в ідентичному відтінку використана одразу в кількох приміщеннях квартири (спальня, дитяча, ванна);
- додавання природних фактур (світле дерево) в оздобленні підлоги та стін, оформленні меблів.
Цей сучасний скандинавський стиль квартири в ЖК Місто Квітів виглядає гармонійним та цілісним. Кольори, текстури, відтінки та матеріали тут ідеально поєднані між собою. В спальні зустрічається акцентна стіна в тому ж блакитному кольорі, що й мозаїка в ванній кімнаті чи фасади меблів в дитячий. Світле дерево, базовий беж тут створюють бажаний затишок. До оформлення кожної кімнати підходили відповідально.
Вирішивши замовити дизайн проєкт квартири в Україні велику увагу просили приділити дитячій. Адже саме ця частина квартири виступає приватним простором для найменших членів родини. Дизайнер інтер'єрів спланував зручну, сучасну, безпечну та цікаву дитячу. Кімната розрахована на двох мешканців, тому для збереження простору було прийняте рішення зробити двоповерхове ліжко. Для дітей це завжди цікаво та весело.
Вирішивши замовити дизайн проєкт квартири в Україні велику увагу просили приділити дитячій. Адже саме ця частина квартири виступає приватним простором для найменших членів родини. Дизайнер інтер'єрів спланував зручну, сучасну, безпечну та цікаву дитячу. Кімната розрахована на двох мешканців, тому для збереження простору було прийняте рішення зробити двоповерхове ліжко. Для дітей це завжди цікаво та весело.
Щоб уникнути конфліктів була виконана робоча зона одразу на двох. У кожного мешканця своє власне місце за столом, зі стільцями та частиною меблів. Це не відвертає уваги під час навчання та не створює хаосу. Сам стіл був інтегрований вздовж всієї стіни, завдяки відмові від стандартного підвіконня. Цікавою кімнату зробили ігрові отвори в меблях. Шафа з круглими віконцями-лазами — це і система зберігання, і елемент гри.
Сучасний скандинавський стиль квартири в ЖК Місто Квітів - це вдалий приклад затишку та комфорту. Якщо ви бажаєте щось схоже в себе на об'єкті, можете замовити дизайн проект будинку чи квартири в інтер’єрній студії Бєлік. Наші дизайнери не створять ідентичний простір, але візьмуть базові та ефективні рішення, впровадять вдалі комбінації та технічні моменти. З урахуванням потреб родини, стилю життя та особливостей самого об'єкта ви отримаєте інтер’єр вашої мрії.Оселю, де кожне рішення буде мати сенс, візуал даруватиме естетичну насолоду, ремонт радувати своєю якістю впродовж багатьох років.
Сучасний скандинавський стиль квартири в ЖК Місто Квітів - це вдалий приклад затишку та комфорту. Якщо ви бажаєте щось схоже в себе на об'єкті, можете замовити дизайн проект будинку чи квартири в інтер’єрній студії Бєлік. Наші дизайнери не створять ідентичний простір, але візьмуть базові та ефективні рішення, впровадять вдалі комбінації та технічні моменти. З урахуванням потреб родини, стилю життя та особливостей самого об'єкта ви отримаєте інтер’єр вашої мрії.Оселю, де кожне рішення буде мати сенс, візуал даруватиме естетичну насолоду, ремонт радувати своєю якістю впродовж багатьох років.
Подивіться нашу презентацію