РЕМОНТ ДВОКІМНАТНОЇ КВАРТИРИ В ЖК WHITE LINES
Власники житла у новобудовах можуть замислюватися над плануванням ремонту ще до здачі квартири в експлуатацію. Якщо довіряти компетентним та досвідченим в цій галузі фахівцям, ви суттєво скоротите час на підготовчі процеси та зможете почати ремонт одразу після здачі об'єкта.
Дизайн студія Бєлік планує до дбірниць ремонт двокімнатної квартири. Для цього розробляється дизайн проєкт, в якому відображаються всі планувальні, архітектурні та дизайнерські рішення. В програмах створюють детальні 3Д візуалізація кімнат, підбираються відповідні товари для інтер'єру, стиль та кольори. На базі готових планів, схем та візуалізацій розробляється технічна документація.
Дизайн студія Бєлік планує до дбірниць ремонт двокімнатної квартири. Для цього розробляється дизайн проєкт, в якому відображаються всі планувальні, архітектурні та дизайнерські рішення. В програмах створюють детальні 3Д візуалізація кімнат, підбираються відповідні товари для інтер'єру, стиль та кольори. На базі готових планів, схем та візуалізацій розробляється технічна документація.
В останній надається вся необхідна інформація для ремонтно-будівельної бригади. Мова йде про прокладання комунікацій та їх приховування, впровадження інновацій, монтаж техніки (освітлювальних приладів, сантехніки тощо). Саме після 3Д візуалізацій планується покроковість дій, які сприяють ідеальній картинці та дозволяють уникнути більшість помилок.
Ремонт двокімнатної квартири, маючи проект на руках, починають одразу після отримання ключів. Варто зазначити, що інтер'єрна компанія Бєлік орієнтується спочатку на дані від забудовника (технічний план об'єкта). Після введення в експлуатацію ЖК, наш співробітник виїжджає на об’єкт та проводить контрольні обміри. При необхідності вносяться коригування та виправлення у проект, рішення доводяться до досконалості. Такий підхід суттєво скорочує терміни очікування, адже повна проєктна документація робиться мінімум 2 місяці.
Ремонт двокімнатної квартири, маючи проект на руках, починають одразу після отримання ключів. Варто зазначити, що інтер'єрна компанія Бєлік орієнтується спочатку на дані від забудовника (технічний план об'єкта). Після введення в експлуатацію ЖК, наш співробітник виїжджає на об’єкт та проводить контрольні обміри. При необхідності вносяться коригування та виправлення у проект, рішення доводяться до досконалості. Такий підхід суттєво скорочує терміни очікування, адже повна проєктна документація робиться мінімум 2 місяці.
Якщо ви власник наявної квартири, то все ще простіше. Достатньо домовитися з інтер’єрною студією про виїзд співробітника на об'єкт для проведення всіх замірів, підписати договір співпраці та заповнити анкету клієнта. Останнє дуже важливо для втілення ваших індивідуальних потреб через інтер'єр. Також відповіді на важливі питання дозволяють зрозуміти дизайнерові ваш стиль та рівень життя, склад родини, зорієнтуватися на бюджет, зрозуміти індивідуальні побажання до кольорів (фактур, стилістиці тощо).
Наша компанія інтер'єрів Бєлік має багато прикладів ремонтів квартир різної площі. Актуальними лишаються саме двокімнатні оселі в ЖК та на вторинному ринку. Приклад реально відремонтованого об'єкта в ЖК White Lines свідчить про масштабність робіт, персоналізованість та функціональність інтер'єру. Адже всього на 70 м2 вдалося створити затишний та сучасний простір, який не набридне через кілька років. Якість ремонту - на вищому рівні, завдяки правильно прописаній покроковості дій, прийнятих дизайнером рішень та чітким рекомендаціям.
Наша компанія інтер'єрів Бєлік має багато прикладів ремонтів квартир різної площі. Актуальними лишаються саме двокімнатні оселі в ЖК та на вторинному ринку. Приклад реально відремонтованого об'єкта в ЖК White Lines свідчить про масштабність робіт, персоналізованість та функціональність інтер'єру. Адже всього на 70 м2 вдалося створити затишний та сучасний простір, який не набридне через кілька років. Якість ремонту - на вищому рівні, завдяки правильно прописаній покроковості дій, прийнятих дизайнером рішень та чітким рекомендаціям.
Ремонт у ЖК White Lines - як заощадити час, сили та кошти
Заощадити до 20% вашого бюджету на ремонт двокімнатної квартири можна, якщо замовити дизайн проект у професіоналів. В такому випадку ви отримаєте детальний план всіх робіт, спланований до дрібниць інтер'єр та прийняті рішення, відповідно до вашого бюджету. Ви не зіткнетеся із ситуацією, коли потрібно буде придбати вигадану або зняту з виробництва плитку (диван, люстру).
Студія інтер'єрів Бєлік додає у візуалізації позиції з каталогів реальних виробників, постачальників. Що стосується виконання певних ремонтних робіт? Перш ніж включати у проект певні рішення, дизайнер консультується з іншими вузькопрофільними фахівцями (архітектори, інженери, сантехніки). Це гарантує реальність виконання кожного процесу.
Саме так було з об’єктом ЖК White Lines, де на базі наших дизайнерських ідей виконувався ремонт. Всі процеси виконувалися строго за технічною документацією, тому візуально вдалося досягти 100% відповідності результату до 3Д зображень.
Саме так було з об’єктом ЖК White Lines, де на базі наших дизайнерських ідей виконувався ремонт. Всі процеси виконувалися строго за технічною документацією, тому візуально вдалося досягти 100% відповідності результату до 3Д зображень.
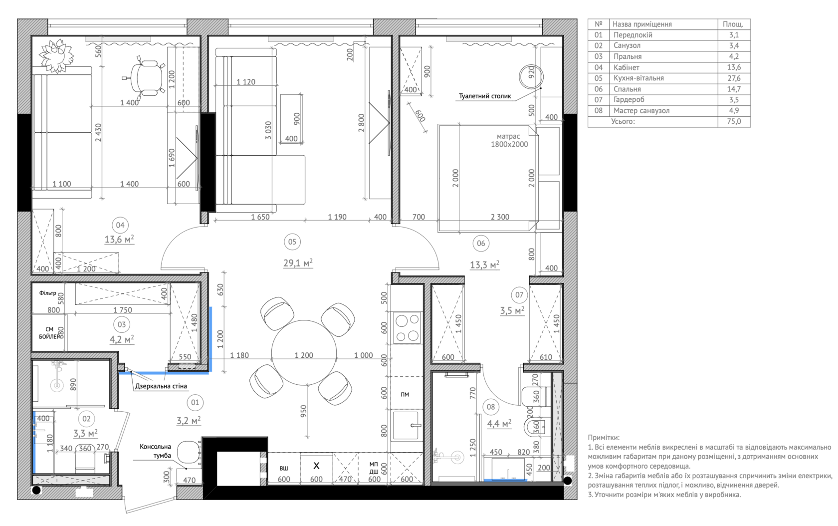
В цій квартирі вдалося зробити:
Кожне приміщення промірковане до дрібниць, що робить їх максимально функціональними. Якщо мова йде про спальну із кабінетом, тут розміщені основні меблі. Зона для відпочинку або роботи, приведення себе до ладу або занять хобі - все має значення.
- 2 окремі кімнати (спальня, кабінет);
- простору вітальню-кухню;
- ванну кімнату;
- санвузол;
- гардероб;
- пральну.
Кожне приміщення промірковане до дрібниць, що робить їх максимально функціональними. Якщо мова йде про спальну із кабінетом, тут розміщені основні меблі. Зона для відпочинку або роботи, приведення себе до ладу або занять хобі - все має значення.
Завдяки наявності пральної кімнати та гардеробної, використанню ніш на користь доцільного використання простору вдалося уникнути великої кількості корпусних меблів. Більшість речей зберігається саме за дверми гардеробної, пральної, вбудованої шафи тощо. Цікавим рішенням стало використання прозорих, скляних дверей у гардеробній. У передпокої використали дзеркальні конструкції, які візуально додають простору.
Ремонт двокімнатної квартири в ЖК White Lines передбачав наявність кімнати-студії. Завдяки відсутності перегородок та непотрібних стін довелося уникнути додаткових монтажних робіт, встановлення дверей тощо.
Ремонт двокімнатної квартири в ЖК White Lines передбачав наявність кімнати-студії. Завдяки відсутності перегородок та непотрібних стін довелося уникнути додаткових монтажних робіт, встановлення дверей тощо.
Оздоблення стін проводилося в одному стилі, з ідентичних матеріалів (фарба, декоративна штукатурка, дерев'яні панелі). Це також заощадило час та кошти, дозволило створити єдиний стиль та передати цілісну ідею. На стелі цієї великої кімнати, та й по всій квартирі, вмонтовані точкові світильники та трекові системи. Це виглядає сучасно. Характеризується максимальною зручністю. Додатково було виконане зональне підсвічування за допомогою світлодіодних стрічок, настінних ламп та круглої акцентної люстри (зона обіднього столу).
В дизайні присутньо багато дерев'яних панелей, акцентного оформлення стін (ефект бетону), матових та скляних фактур Це створює сучасні та цікаві переходи. Використання матеріалів гарної якості забезпечує зручність у догляді за ремонтом. Легко робити прибирання, очищати стіни від забруднень тощо. Способи монтажу та дизайн меблів підібрано також з урахуванням особливостей дотримання порядку. Тобто, частина корпусниз шаф щільно прилягає до стін, не створюючи зазорів. Інші меблі (крісла, ліжко, диван, стол) мають висоту та такий спосіб монтажу, який дозволяє роботу-пилосмоку вільно пересуватися квартирою.
Дизайн студія Бєлік спланувала інтер'єр та ремонт двокімнатної квартири в ЖК White Lines, що дозволило отримати дійсно хороший результат.
Прагнете до сучасного, зручного та персоналізованого оформлення житла?
Все це та навіть більше в галузі дизайну ви можете отримати, звернувшись до інтер'єрної компанії Бєлік.
Дизайн студія Бєлік спланувала інтер'єр та ремонт двокімнатної квартири в ЖК White Lines, що дозволило отримати дійсно хороший результат.
Прагнете до сучасного, зручного та персоналізованого оформлення житла?
Все це та навіть більше в галузі дизайну ви можете отримати, звернувшись до інтер'єрної компанії Бєлік.
Плануючи ремонт у новобудові, важливо починати саме з дизайн проекту квартири, адже він є основою всіх подальших рішень. Саме проект дозволяє заздалегідь продумати планування, освітлення, зони зберігання, розміщення меблів і техніки, а також уникнути помилок під час реалізації. У випадку з ЖК White Lines детально розроблений дизайн проект став інструкцією, завдяки якій ремонт був виконаний швидко, чітко та без переробок. Детальніше про формат і наповнення проектної документації:
👉 https://belik.design/design-project
Не менш важливим питанням для замовників залишаються ціни на ремонт квартир Київ. Вони залежать від обсягу робіт, складності проєкту, обраних матеріалів і технічних рішень. У студії Бєлік вартість ремонту формується прозоро — ще на етапі проєктування, що дозволяє уникнути несподіваних витрат та тримати бюджет під контролем. Ознайомитися з підходом до формування цін можна тут:
👉 https://belik.design/repair
👉 https://belik.design/design-project
Не менш важливим питанням для замовників залишаються ціни на ремонт квартир Київ. Вони залежать від обсягу робіт, складності проєкту, обраних матеріалів і технічних рішень. У студії Бєлік вартість ремонту формується прозоро — ще на етапі проєктування, що дозволяє уникнути несподіваних витрат та тримати бюджет під контролем. Ознайомитися з підходом до формування цін можна тут:
👉 https://belik.design/repair
Саме дизайнерський проект квартири дає можливість досягти 100% відповідності між візуалізаціями та готовим інтер’єром. У ньому враховуються не лише естетичні рішення, а й реальні технічні можливості об’єкта. Приклад ЖК White Lines підтверджує, що грамотний дизайнерський проект — це запорука функціонального, сучасного та довговічного житла. Реальні приклади реалізованих проєктів доступні за посиланням:
👉 https://belik.design/portfolio
Багатьох замовників цікавить вартість ремонту квартири ще до старту робіт. Завдяки повній проєктній документації дизайнери студії Бєлік можуть максимально точно спрогнозувати витрати та уникнути перевитрат під час реалізації. Це особливо важливо для двокімнатних квартир, де потрібно поєднати функціональність, комфорт і якість у межах запланованого бюджету. Приклад детального розбору бюджету можна переглянути тут:
👉 https://belik.design/tpost/2ugo42lfu1-zhk-faina-taun
👉 https://belik.design/portfolio
Багатьох замовників цікавить вартість ремонту квартири ще до старту робіт. Завдяки повній проєктній документації дизайнери студії Бєлік можуть максимально точно спрогнозувати витрати та уникнути перевитрат під час реалізації. Це особливо важливо для двокімнатних квартир, де потрібно поєднати функціональність, комфорт і якість у межах запланованого бюджету. Приклад детального розбору бюджету можна переглянути тут:
👉 https://belik.design/tpost/2ugo42lfu1-zhk-faina-taun
Студія інтер’єрів Бєлік виконує ремонти квартир різної складності — від компактних однокімнатних до просторих двокімнатних і трикімнатних осель у сучасних ЖК. Кожен об’єкт реалізується з урахуванням індивідуальних потреб замовників, технічних особливостей будинку та затвердженого дизайн-проєкту. Ознайомитися з прикладами виконаних ремонтів можна за посиланням:
👉 https://belik.design/tpost/6j77mtcru1-zhk-prichal-8
👉 https://belik.design/tpost/6j77mtcru1-zhk-prichal-8
Подивіться нашу презентацію