ДИЗАЙН ВІТАЛЬНІ З КАМІНОМ У ЗАМІСЬКОМУ БУДИНКУ У С. НОВОСІЛКИ В КИЇВСЬКІЙ ОБЛАСТІ
• Локація - с. Новосілки в Київській області, Україна
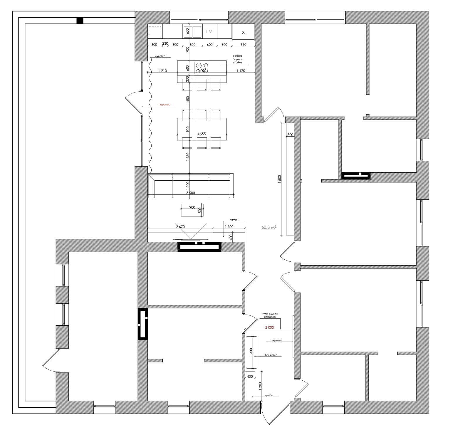
• Площа частини будинку – 60,3 м²
• Формат роботи – дизайн проєкт інтер'єру
• Площа частини будинку – 60,3 м²
• Формат роботи – дизайн проєкт інтер'єру
Існують різні обставини, які роблять неможливим замовлення ремонту під ключ одразу в усьому будинку. Це може бути пов'язано з неготовністю забудови до повного облаштування, проблемами в фінансовому плані або іншими причинами.
Навіть якщо потрібен лише дизайн вітальні з каміном в заміському будинку, робити це ліпше з професійною допомогою. Адже на етапі планування інтер'єру можна передбачити багато помилок, уникнути незручностей, правильно розрахувати матеріали та вибрати меблі.
Буде це дизайн проект квартири у Польщі або ремонт під ключ в місті Київ — інтер'єрна компанія Бєлік на професійному рівні надає послуги в цій галузі. В нас ви можете побачити чисельні приклади облаштування житла різного розміру. Різні стилі, кольори та фактури в гармонійному поєднанні, планувальні та архітектурні рішення, впровадження сучасних інновації — все це є на наших об’єктах.
Навіть якщо потрібен лише дизайн вітальні з каміном в заміському будинку, робити це ліпше з професійною допомогою. Адже на етапі планування інтер'єру можна передбачити багато помилок, уникнути незручностей, правильно розрахувати матеріали та вибрати меблі.
Буде це дизайн проект квартири у Польщі або ремонт під ключ в місті Київ — інтер'єрна компанія Бєлік на професійному рівні надає послуги в цій галузі. В нас ви можете побачити чисельні приклади облаштування житла різного розміру. Різні стилі, кольори та фактури в гармонійному поєднанні, планувальні та архітектурні рішення, впровадження сучасних інновації — все це є на наших об’єктах.
Якщо вас цікавить саме дизайн вітальні з каміном у заміському будинку в конкретній стилістиці, можете обговорити це з представником інтер'єрної агенції Бєлік. Цікавим та оптимальним вважається сучасний стиль з елементами еко, який було відтворено в с. Новосілки в Київській області.
В цьому будинку була спроектована та реалізована лише кімната загального користування. Починається вона з коридору, який плавно перетікає у кімнату-вітальню. Виглядає максимально естетично та доречно. Цілком відповідає потребам сучасної людини та європейським запитам. В такому форматі часто замовляють дизайн проект квартири Варшава, Гданськ, Краків та інших міст.
В цьому будинку була спроектована та реалізована лише кімната загального користування. Починається вона з коридору, який плавно перетікає у кімнату-вітальню. Виглядає максимально естетично та доречно. Цілком відповідає потребам сучасної людини та європейським запитам. В такому форматі часто замовляють дизайн проект квартири Варшава, Гданськ, Краків та інших міст.
Мешканці Києва можуть не просто замовити проектну документацію. Дизайн студія Бєлік реалізує проекти з відповідністю у 100%. Втілює в життя інтер'єри мрії у зазначені заздалегідь терміни, без передплат.
Кімната загального користування в с. Новосілки в Київській області є прикладом затишку, комфорту, сучасності та зручності. Вона виглядає оптимальною та досить нейтральною, що не вплине на сприйняття всього будинку після завершення ремонту. Достатньо буде додати акцентних кольорів або використати аналогічну концепцію в інших приміщеннях, що буде зовсім не складно.
Кімната загального користування в с. Новосілки в Київській області є прикладом затишку, комфорту, сучасності та зручності. Вона виглядає оптимальною та досить нейтральною, що не вплине на сприйняття всього будинку після завершення ремонту. Достатньо буде додати акцентних кольорів або використати аналогічну концепцію в інших приміщеннях, що буде зовсім не складно.
Дизайн вітальні з каміном у заміському будинку — цікаві рішення
Від самого початку роботи фахівці студії Бєлік обговорили із замовником дизайн інтер'єру вартість, терміни та концепцію вітальні. Основа облаштування — це об'єднання кількох зон в одну. Простір не перевантажений перегородками та має відкрите планування. Зони чітко розмежовані за допомогою меблів (диван, кухонний острів). В одне приміщення об’єднані:
- коридор;
- кухня;
- обідня зона;
- вітальня.
Охарактеризувати інтер'єр можна, як сучасний мінімалізм з елементами «тихої розкоші». Дизайнер в усьому приміщенні використав однакове оздоблення, колористику, фактури, архітектурні та декорувальні акценти.
В основі полягає саме монохромна база. Природні, теплі відтінки (пісочний, бежевий, колір світлого дерева, сірий бетон) створюють спокійну атмосферу. Контрасти в глибокому чорному використані точково (профілі трекових світильників, деталі каміна, ніші, ніжки стільців) для створення графічності та глибини. Поєднання гладких поверхонь з текстурою дерева, бетону та м'якого текстилю (диван з оббивкою «букле» або мікророгожка) робить інтер'єр тактильно приємним.
В кожній з зон можна побачити ці оздоблювальні матеріали в певній кількості та виконанні. Вони плавно переплітаються та перегукуються між собою. Створюється єдина, цілісна композиція.
В кожній з зон можна побачити ці оздоблювальні матеріали в певній кількості та виконанні. Вони плавно переплітаються та перегукуються між собою. Створюється єдина, цілісна композиція.
Щоб дизайн вітальні з каміном у заміському будинку с. Новосілки в Київській області лишався максимально світлим та затишним, використали різні сценарії освітлення. По-перше, на об'єкті лишили багато природного світла, завдяки панорамним вікном та відмові від важких штор.
По-друге, використано одразу кілька освітлювальних приладів на різних рівнях:
По-друге, використано одразу кілька освітлювальних приладів на різних рівнях:
- магнітні трекові системи на стелі;
- прихованої LED-підсвітки (вздовж коридору та шаф, на дзеркалах);
- акцентна люстра над обіднім столом у стилі модерн.
Ключовим акцентом в оформленні вітальні в будинку с. Новосілки в Київській області слід вважати камін. Він став головною принадою та якорем в інтер'єрі. Центральний елемент у вітальні, інтегрований у масивну конструкцію, що імітує бетон. Ніша для дров знизу додає особливої естетики та домашнього затишку.
Камін також виступає джерелом тепла. Кутове скління дозволяє насолоджуватися видом вогню, як з боку обіднього столу, так і з дивана у вітальні. Це створює ефект безбар’єрності.
Ніша для дров плавно перетікає у зону ТВ, створюючи єдину горизонтальну лінію. Вертикальна рейкова панель, зліва від топки, приховує технічні ревізійні дверцята та служить декоративним акцентом. Телевізор розташовано на безпечній від вогню відстані.
Камін також виступає джерелом тепла. Кутове скління дозволяє насолоджуватися видом вогню, як з боку обіднього столу, так і з дивана у вітальні. Це створює ефект безбар’єрності.
Ніша для дров плавно перетікає у зону ТВ, створюючи єдину горизонтальну лінію. Вертикальна рейкова панель, зліва від топки, приховує технічні ревізійні дверцята та служить декоративним акцентом. Телевізор розташовано на безпечній від вогню відстані.
Окрім каміна, ще одним центральним елементом вітальні-кухні вважається витяжка над островом. Острівна витяжка циліндричної форми у виконанні “матовий хром” є класикою сучасного стилю. Завдяки своїй формі вона не виглядає, як стильний арт-об’єкт. Ідеально перегукується з іншими металевими елементами в інтер’єрі кімнати (ніжками стільців, трековими світильниками).
Рішення розмістити витяжку над островом було логічним. Адже саме в нього вмонтовано плиту. Велика потужність обраної моделі дозволяє швидко позбутися неприємних запахів під час приготування їжі. Конструкція ідеально прилягає до стелі, що свідчить про ретельне проектування вентиляційного каналу ще на етапі чорнових робіт. Про всі ці нюанси потурбувалися дизайнери агенції інтер'єрів Бєлік під час розробки проектної документації.
Рішення розмістити витяжку над островом було логічним. Адже саме в нього вмонтовано плиту. Велика потужність обраної моделі дозволяє швидко позбутися неприємних запахів під час приготування їжі. Конструкція ідеально прилягає до стелі, що свідчить про ретельне проектування вентиляційного каналу ще на етапі чорнових робіт. Про всі ці нюанси потурбувалися дизайнери агенції інтер'єрів Бєлік під час розробки проектної документації.
Не лише оздоблення, комунікації, розставляння меблів та акцентних елементів планувалися детально на старті робіт. Шафи, ніші, тумби, всі корпусні меблі прораховувалися максимально чітко. Щоб досягти відповідності, під час реалізації проекта були придбані меблі під замовлення у партнерів нашої студії.
Високі вбудовані шафи до стелі та скляні вітрини з напівпрозорим склом візуально “розчиняються” у стінах, не захаращуючи простір.
Масивний острів з інтегрованою варильною поверхнею та циліндричною витяжкою підкреслює сучасний технологічний стиль. Цілісні меблеві групи перетікають з панелювання в коридорі у меблевий гарнітур, створюючи ефект однієї стіни. Все це позбавляє простір від візуального шуму. Робить його сучасним, доречним, дорогим та стриманим.
Високі вбудовані шафи до стелі та скляні вітрини з напівпрозорим склом візуально “розчиняються” у стінах, не захаращуючи простір.
Масивний острів з інтегрованою варильною поверхнею та циліндричною витяжкою підкреслює сучасний технологічний стиль. Цілісні меблеві групи перетікають з панелювання в коридорі у меблевий гарнітур, створюючи ефект однієї стіни. Все це позбавляє простір від візуального шуму. Робить його сучасним, доречним, дорогим та стриманим.
Якщо вас цікавить концепція, де в пріоритеті функціональний комфорт, то варто повідомити про це дизайнера ще до початку планування інтер'єру. Дизайн проект Гданськ чи будь-яке інше місто — в студії Бєлік створять для вас персоналізований та зручний простір.
Подивіться нашу презентацію