• Location — Residential Complex Prychal 8, Kyiv, Ukraine
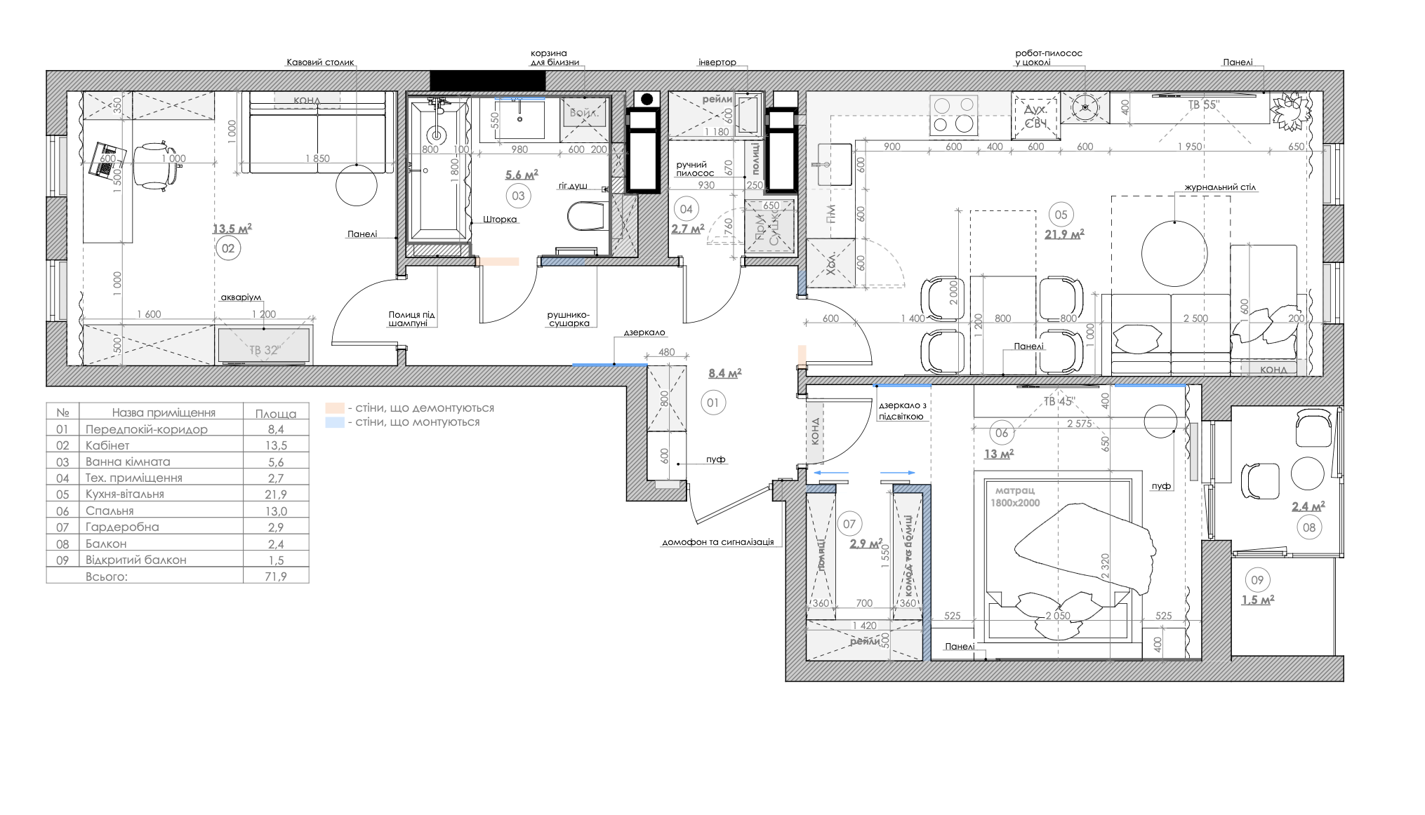
• Apartment area — 71,9 m²
• Scope of work — interior design project, design supervision, and turnkey renovation
• Completion year — 2025
• Apartment area — 71,9 m²
• Scope of work — interior design project, design supervision, and turnkey renovation
• Completion year — 2025