СУЧАСНІ СТИЛІ ДИЗАЙНУ ІНТЕР’ЄРУ КВАРТИРИ У ЖК ФАЙНА ТАУН У КИЄВІ
Сучасний стиль інтер'єру малої квартири в ЖК Файна Таун
Замість того, щоб відповідати стандартам та дотримуватися чітких засад оформлення інтер’єру, більшість людей прагнуть створити в себе вдома власну атмосферу. Безумовно, потрібно дотримуватися певних правил безпеки та здорового глузду. Але це зовсім не означає однакові планувальні рішення для всіх, схожі меблі та кольори, ідентичне розміщення побутової техніки та декору.
Сьогодні існує величезна кількість можливостей проявитися через своє житло. Створити дійсно сучасний стиль, задовольнити всі потреби родини та особисті, досягнути естетики та зручності. Достатньо звернутися до дизайнера інтер'єрів, який підкаже, як правильно все це зробити.
Величезний попит мають саме сучасні стилі дизайну інтер'єру квартири, адже в них зібрані ідеї з різних направлень. Планувальні рішення та використання колористики з мінімалізму, затишні акценти з етно або Провансу, використані природні та безпечні матеріали з еко. Всі елементи вдало переплітаються між собою утворюючи гармонійну композицію.
Обравши сучасне направлення ви можете обирати палітри, стилі, освітлювальні прилади, меблі, декор. Немає чітких правил. Дизайнер орієнтуючись на ваші запити, особливості об'єкта та бюджет пропонує найбільш відповідні варіанти оформлення.
Обравши сучасне направлення ви можете обирати палітри, стилі, освітлювальні прилади, меблі, декор. Немає чітких правил. Дизайнер орієнтуючись на ваші запити, особливості об'єкта та бюджет пропонує найбільш відповідні варіанти оформлення.
В інтер’єрній студії Бєлік не лише створюють 3Д візуалізації з відображенням можливого оформлення. Тут розробляють детальний план дій, який дозволяє досягти омріяної мети. Крім фотореалістичних зображень будуть:
Навіть в невеликій квартирі з особливостями планування можна зробити ідеальний візуал. Прикладом є квартири в ЖК Файна Таун, які часто мають певні незручності в розташуванні кімнат та їх площі.
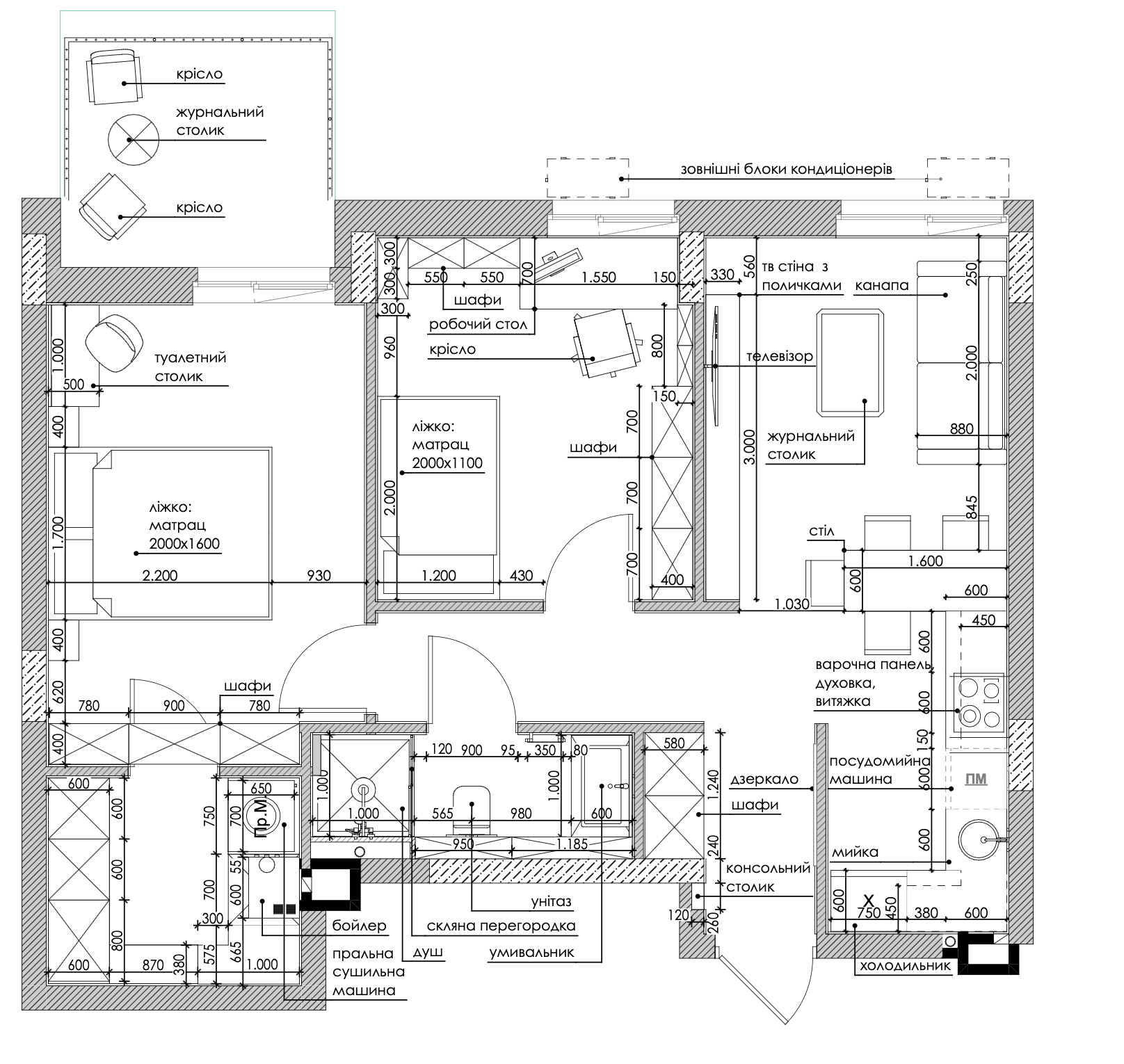
- представлені всі планувальні рішення через схеми та креслення;
- сплановане якісне освітлення - природне та штучне (на різних рівнях та в окремих зонах);
- підібрані оздоблювальні матеріали, меблі, декор, сантехніка та інші позиції з каталогів реальних постачальників (виробників);
- гармонійно скомбіновані все елементи інтер'єра між собою - починаючи від колористики з фактурами, завершуючи дрібними елементами на декорі та в текстилі;
- технічно правильно прийняті рішення, щодо проведення та приховування комунікацій, впровадження інновацій та ефективних в дизайні трендів.
Навіть в невеликій квартирі з особливостями планування можна зробити ідеальний візуал. Прикладом є квартири в ЖК Файна Таун, які часто мають певні незручності в розташуванні кімнат та їх площі.
Як створити затишний та сучасний простір квартири в ЖК Файна Таун?
Сучасні стилі дизайну інтер'єру квартири базуються на творчому підході та прояву індивідуальності власників. Головне - це гармонія та доцільність рішень, функціональне використання простору та запобігання його переобтяження (через зайвий декор та текстиль, надто яскраву колористику).
В ЖК Файна Таун була використана тепла, спокійна колористика. Перевагу надають бежевим відтінкам, білому, сірому. Також присутні елементи чорного, що цікаво відтіняє інтер'єр та додає акцентів.
Бежевий проявляється через:
Дизайнер інтер'єрів вдало “погрався” з фактурами та відтінками, тому такий інтер'єр виглядає максимально органічно. Немає ефекту стерильності та одноманітності. Зона кухні, навпаки, оформлена в чорно-білій колористиці. Побутова техніка, робоча поверхня та кухонний фартух виконанні в темному оформленні. Відтінюються чорні плити завдяки світлим фасадам, які вміщають весь необхідний інвентар, техніку, посуд.
- однотонне фарбування стін, дверей, плінтусів, фасадів корпусних шаф;
- фактури світлого і темного дерева в оздобленні підлог, стін, виборі
- меблів (стіл, корпусні шафи тощо);
- оббивку меблів у більш темному та насиченому відтінку;
- теплому освітленні;
- декор - багато предметів живопису саме в цій колористиці;
- текстиль - декоративні подушки, килими, пледи, фіранки.
Дизайнер інтер'єрів вдало “погрався” з фактурами та відтінками, тому такий інтер'єр виглядає максимально органічно. Немає ефекту стерильності та одноманітності. Зона кухні, навпаки, оформлена в чорно-білій колористиці. Побутова техніка, робоча поверхня та кухонний фартух виконанні в темному оформленні. Відтінюються чорні плити завдяки світлим фасадам, які вміщають весь необхідний інвентар, техніку, посуд.
Ідентичні відтінки, кольори, комбінації зустрічаються в кожній кімнаті. Дитяча має трошки іншу колористику, адже тут обиралися більш яскраві елементи, згідно з побажаннями найменшого мешканця. Замість дуже яскравих кольорів, які сенсорно перевантажують дитину, було обрано спокійний зелений (для створення акцентів). Саме зелений спонукає до розвитку, одночасно заспокоюючи нервову систему. Меблі були куплені під замовлення, з великою кількістю місця для зберігання. Полиці різних розмірів з ящиками та без дозволяють розмістити всі речі та літературу, створити окремі зони для невеликих іграшок тощо.
В дитячий простір поділено раціонально. Обов’язково є місце для навчання - біля панорамного вікна. Це забезпечує велику кількість природного світла та гарантує зручність навчання. Місце для відпочинку та сну, де ліжко максимально зручне та комфортне. Окрема зона для ігор та занять хоббі.
В дитячий простір поділено раціонально. Обов’язково є місце для навчання - біля панорамного вікна. Це забезпечує велику кількість природного світла та гарантує зручність навчання. Місце для відпочинку та сну, де ліжко максимально зручне та комфортне. Окрема зона для ігор та занять хоббі.
Сучасні стилі дизайну інтер'єру квартири - секрети планування
Використання простору у ЖК Файна Таун має свої особливості. Враховуючи, що це сучасне житло, було прийняте рішення не переобтяжувати його зайвими перегородками та стінами. В квартирі, не дивлячись на її невеликі розміри, присутня кімната студія. Приміщення загального користування дозволяє зберегти кілька м2 та забезпечує вдосталь місця для проведення часу всією родиною.
Майже одразу з коридору ви потрапляєте до кухні-вітальні. Немає дверей та довгих хідників. Щоб трошки відокремити ці зони була зроблена невелика перегородка між кухнею та прихожою. Візуально присутній перехід в оздобленні підлоги (з плитки у паркет). При вході вдалося розмістити шафу для зберігання сезонного одягу, взуття.
Одразу за невеликим відгородженням йде зона кухні. Це зручний кухонний гарнітур, виконаний під замовлення та ідеально відповідаючий розмірам об'єкта. Замість окремого обіднього столу тут робоча поверхня перетікає у барну стійку. Цілісна плита створює гарний візуальний ефект.
За барною стійкою знаходиться зона вітальні. В ній є все необхідне для комфортного відпочинку та проведення часу із сім’єю. Це місткий диван, журнальний столик, ТВ зона. Окремо навколо телевізора було вмонтовано велику шафу, яка слугує бібліотекою. Зручні полиці, правильно підібрані фактури каркасів, підсвічування окремих зон забезпечує зручність у догляді. Виглядає естетично та доцільно.
За барною стійкою знаходиться зона вітальні. В ній є все необхідне для комфортного відпочинку та проведення часу із сім’єю. Це місткий диван, журнальний столик, ТВ зона. Окремо навколо телевізора було вмонтовано велику шафу, яка слугує бібліотекою. Зручні полиці, правильно підібрані фактури каркасів, підсвічування окремих зон забезпечує зручність у догляді. Виглядає естетично та доцільно.
Квартира в ЖК Файна Таун має гардеробну. Саме в ній сховано весь інвентар та техніка для прибирання, побутова хімія, одяг, взуття, аксесуари. Важливо, що навіть пральна та сушильна машини знаходиться в гардеробній. Це дозволило зберегти місце в ванній кімнаті та розмістити в ній дійсно бажану сантехніку, додати інсталяції, полиці. В квартирі також мінімальна кількість корпусних шаф та шаф-купе завдяки присутності гардеробу.
Якщо ви бажаєте отримати раціональний розподіл простору та сучасне оформлення свого житла, варто звернутися до інтер’єрної студії Бєлік. Наші фахівці допоможуть досягти мети без зайвих витрат коштів та часу, турбувань та розчарувань.
Якщо ви бажаєте отримати раціональний розподіл простору та сучасне оформлення свого житла, варто звернутися до інтер’єрної студії Бєлік. Наші фахівці допоможуть досягти мети без зайвих витрат коштів та часу, турбувань та розчарувань.
Щоб сучасний стиль інтер’єру малої квартири був не лише естетичним, а й зручним у повсякденному житті, важливо залучати фахівців із практичним досвідом. Саме майстер по ремонту квартир, який працює за дизайн-проєктом, дозволяє реалізувати всі рішення без технічних помилок та перевитрат бюджету.
Комплексний підхід починається з аналітики простору та замовлення послуги з дизайну квартири. Дизайнер інтер’єрів враховує планування ЖК Файна Таун, спосіб життя мешканців, кількість членів родини та побажання до стилю, щоб створити гармонійний і функціональний простір навіть у невеликій площі.
На старті робіт замовник чітко розуміє, якою буде дизайн проект квартири ціна, які етапи передбачені та як виглядатиме фінальний результат. Це дає можливість контролювати витрати й уникати спонтанних рішень у процесі ремонту.
Комплексний підхід починається з аналітики простору та замовлення послуги з дизайну квартири. Дизайнер інтер’єрів враховує планування ЖК Файна Таун, спосіб життя мешканців, кількість членів родини та побажання до стилю, щоб створити гармонійний і функціональний простір навіть у невеликій площі.
На старті робіт замовник чітко розуміє, якою буде дизайн проект квартири ціна, які етапи передбачені та як виглядатиме фінальний результат. Це дає можливість контролювати витрати й уникати спонтанних рішень у процесі ремонту.
Реальні приклади того, як виглядає стильний дизайн квартир у сучасних житлових комплексах, підтверджують: навіть компактне житло може бути просторим, зручним і візуально легким. Продумані планувальні рішення, правильна колористика та мінімум зайвого декору створюють відчуття комфорту й затишку.
Замовляючи дизайн проект з ремонтом в інтер’єрній студії Бєлік, ви отримуєте не просто красивий інтер’єр, а чіткий план дій, який легко реалізується та залишається актуальним на роки. Саме такий підхід дозволяє перетворити квартиру в ЖК Файна Таун на сучасний простір, що повністю відповідає вашому стилю життя.
Замовляючи дизайн проект з ремонтом в інтер’єрній студії Бєлік, ви отримуєте не просто красивий інтер’єр, а чіткий план дій, який легко реалізується та залишається актуальним на роки. Саме такий підхід дозволяє перетворити квартиру в ЖК Файна Таун на сучасний простір, що повністю відповідає вашому стилю життя.
Подивіться нашу презентацію