СВІТЛИЙ ІНТЕР’ЄР КВАРТИРИ В ЖК МЕТРОПОЛІЯ ДАРНИЦЯ У КИЄВІ
Світлий інтер'єр квартири перестав бути чимось недосяжним, надто коштовним та незручним. Сучасні матеріали та ефективні рішення в оформлення інтер'єра значно полегшують процес догляду за ремонтом. Спланований дизайн та правильний підхід до оформлення гарантує отримання не лише гарного візуала. Ви отримуєте житло про яке мріяли, за яким буде просто доглядати та в якому буде комфортно жити.
Колір та стиль оформлення в цьому не відіграють ніякої ролі. Навіть світлий інтер'єр квартири може бути максимально функціональним та зручним. Для цього варто звернутися до дизайнера інтер'єрів, який розуміється на всіх нюансах оформлення світлої квартири.
Колір та стиль оформлення в цьому не відіграють ніякої ролі. Навіть світлий інтер'єр квартири може бути максимально функціональним та зручним. Для цього варто звернутися до дизайнера інтер'єрів, який розуміється на всіх нюансах оформлення світлої квартири.
Самотужки можна придбати дійсно маркі меблі та оздоблення, яке потребуватиме особливого догляду. Також при самостійному плануванні білого дизайну на фінішу можна отримати стерильне житло, в якому все буде тиснути та створювати лікарняний ефект.
Завдяки професійній підтримці та супроводу ви 100% уникнете такого результату. Натомість отримаєте світлий інтер'єр квартири, який хотіли. Дизайнер інтер'єрів прийме правильні планувальні та технічні рішення, гармонійно поєднає всі елементи між собою, створить затишну та комфортну атмосферу, додасть оригінальних акцентів в дизайні.
Завдяки професійній підтримці та супроводу ви 100% уникнете такого результату. Натомість отримаєте світлий інтер'єр квартири, який хотіли. Дизайнер інтер'єрів прийме правильні планувальні та технічні рішення, гармонійно поєднає всі елементи між собою, створить затишну та комфортну атмосферу, додасть оригінальних акцентів в дизайні.
Інтер'єрна компанія Бєлік створює максимально різні простори. В портфоліо дизайн студії ви можете подивитися дизайн приватного будинку чи квартири в чорному, сірому, білому кольорах. З використанням елементів в етно, класики, лофту, арт-деко, хайтеку та інших стилів. Залежно від індивідуальних потреб замовників наші дизайнери грамотно додають різні акценти в інтер'єр, досягають візуальної гармонії та краси. Дбають про зручність використання простору та доцільність кожного рішення.
Дизайн квартири Київ ЖК Метрополія Дарниця - ідеальний приклад для тих, хто полюбляє світлу колористику та прагне оформити своє житло саме в ній. Фахівці компанії інтер'єрів Бєлік використали багато цікавих рішень з розподілу простору, впровадження сучасних тенденцій та дотримання концепції чистоти в оформленні об'єкта. Завдяки професійному підходу не лише візуал радує очі. Професійні послуги ремонту квартир в новобудові характеризується зручністю та доцільністю, забезпечує комфорт та функціональність.
Дизайн квартири Київ ЖК Метрополія Дарниця - ідеальний приклад для тих, хто полюбляє світлу колористику та прагне оформити своє житло саме в ній. Фахівці компанії інтер'єрів Бєлік використали багато цікавих рішень з розподілу простору, впровадження сучасних тенденцій та дотримання концепції чистоти в оформленні об'єкта. Завдяки професійному підходу не лише візуал радує очі. Професійні послуги ремонту квартир в новобудові характеризується зручністю та доцільністю, забезпечує комфорт та функціональність.
Світлий інтер'єр квартири - де зручність поєднано з естетикою
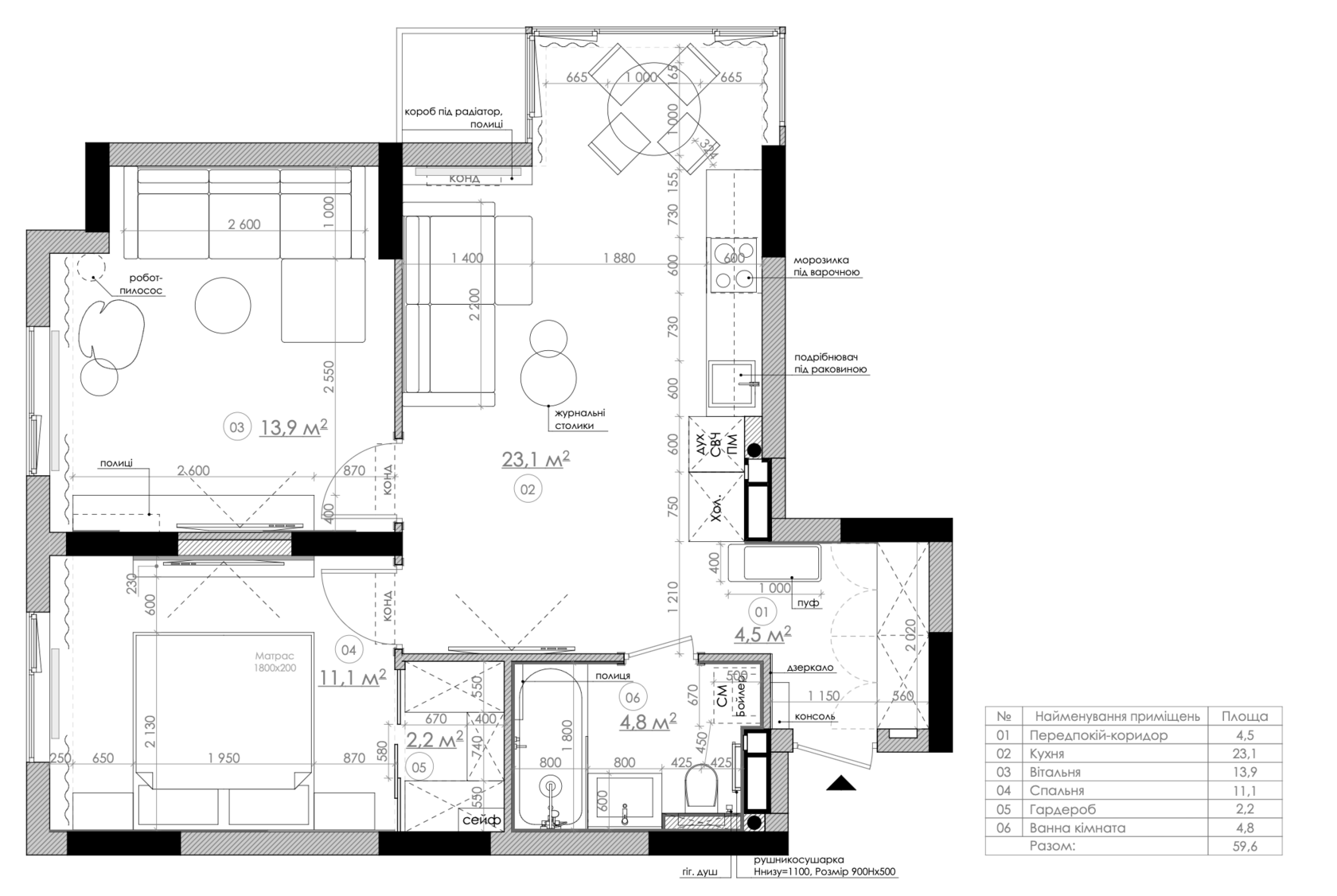
В ЖК Метрополія Дарниця світлий інтер'єр квартири відповідає сучасним трендам. Не дивлячись на білі кольори та його відтінки, правильно прийняті дизайнерські рішення дозволили адаптувати житло під ритм життя та потреби замовників.
Цей об’єкт всього 50 м2. Саме завдяки оформленню у світлій колористиці вийшло візуально зробити кімнати просторішими, уникнути ефекту захаращеності та тісноти. Використані в оздобленні, підборі меблів та декору різні відтінки білого (світло-сірий, бежевий, молочний) та цікаві фактури (матовий однотон, текстиль, дерево та світлий мармур).
Комбінування різних відтінків та фактур дозволило досягти естетичного та цікавого візуалу. При цьому не потрібно було залучати багато різного декору. Акценти створювалися через:
В однаковий колір пофарбовані не лише стіни, але й плінтуси, фасади шаф, двері, декоративні панелі на стінах. Це створило ефект єдиної та гармонійної концепції. Спростило реалізацію ремонту та процес догляду за ним.
- цікаві меблеві композиції - були виконані під замовлення, спеціально для цього об'єкта;
- “гру” кольорів та фактур в оздобленні;
- раціональне та зручне зонування кімнат;
- багаторівневе та різне освітлення - світлодіодні стрічки в окремих зонах, вбудовані точкові світильники, трекові системи, оригінальні настінні та підлогові прилади, торшери тощо.
В однаковий колір пофарбовані не лише стіни, але й плінтуси, фасади шаф, двері, декоративні панелі на стінах. Це створило ефект єдиної та гармонійної концепції. Спростило реалізацію ремонту та процес догляду за ним.
Не лише колористика, але й розподіл простору в ЖК Метрополія Дарниця дозволил створити затишну атмосферу. Беручи до уваги обмеженість площі, дизайнер інтер'єрів вирішив зробити кімнату студію. В кухні-столовій відсутні перегородки та непотрібні стіни. Передпокій плавно перетікає в житловий простір.
Одна частина стіни - це кухонний гарнітур, висотою до стелі та з вбудованою технікою. Розташування техніки планувалося завчасно, особливо для духової шафи та мікрохвильової печі. Замовникам не доведеться нахилятися або підіймати руки над головою, щоб розігріти/ поставити готуватися їжу. Це забезпечує зручність в повсякденні.
Одна частина стіни - це кухонний гарнітур, висотою до стелі та з вбудованою технікою. Розташування техніки планувалося завчасно, особливо для духової шафи та мікрохвильової печі. Замовникам не доведеться нахилятися або підіймати руки над головою, щоб розігріти/ поставити готуватися їжу. Це забезпечує зручність в повсякденні.
Навпроти вийшло розмістити круглий обідній стіл, біля вікна. Також залишилося місце для зручного кутового дивана у бежевому кольорі. Це можна вважати зоною відпочинку. Поруч з диваном також є журнальний столик, окрема шафа з книжками та іншими елементами декору.
В квартирі також присутня вітальня кімната. Вона може бути місцем для приймання та навіть проживання гостей, зоною для роботи чи відпочинку. Це приміщення легко в майбутнього переробити на дитячу. Не складно буде щось змінити, переставити, додати нове. Не потрібно буде наново виконувати ремонт та робити повне перепланування простору.
В квартирі також присутня вітальня кімната. Вона може бути місцем для приймання та навіть проживання гостей, зоною для роботи чи відпочинку. Це приміщення легко в майбутнього переробити на дитячу. Не складно буде щось змінити, переставити, додати нове. Не потрібно буде наново виконувати ремонт та робити повне перепланування простору.
В вітальні розміщено м’яке крісло, зручний диван, зона ТВ, скляний стелаж з декором та літературою. Виконане декорування стіни в зоні ТВ панелями, пофарбованими у білий колір.
Спальня - ще одна кімната, яка входить в 50 м2 загальної площі. Беручи до уваги обмеженість простору, в кожній житловій кімнаті були чітко прораховані розміри та особливості розташування меблевих композицій. У спальні вийшло розмістити просторе двомісне ліжко та пару приліжкових полиць.
Спальня - ще одна кімната, яка входить в 50 м2 загальної площі. Беручи до уваги обмеженість простору, в кожній житловій кімнаті були чітко прораховані розміри та особливості розташування меблевих композицій. У спальні вийшло розмістити просторе двомісне ліжко та пару приліжкових полиць.
Великі шафи та важкі корпусні меблі майже відсутні у квартирі. Виключення - це кухонні меблі, невеликі стелажі для декору та шафа в передпокої. Решта кімнат лишились вільними від цих елементів. Все це завдяки оформленню гардеробної, в яку можна потрапити зі спальні.
Гардеробна значно полегшує життя. Адже дозволяє правильно організувати зберігання всіх речей та візуально розвантажує простір. В невеликій ніші, під замовлення були виконані полиці різних розмірів. Це дозволяє зручно розміщувати різний одяг, аксесуари, взуття тощо.
Гардеробна значно полегшує життя. Адже дозволяє правильно організувати зберігання всіх речей та візуально розвантажує простір. В невеликій ніші, під замовлення були виконані полиці різних розмірів. Це дозволяє зручно розміщувати різний одяг, аксесуари, взуття тощо.
В світлому інтер'єрі квартири в ЖК Метрополія Дарниця всі меблі під замовлення. Це дозволило обрати правильно висоту та габарити, підібрати відповідний колір та фасади. За багатьма фасадами приховані всі інженерні комунікації. Навіть була взята до уваги ефективна робота пилосмока, у зв’язку з чим шафи, або щільно прилягають до стін, або мають потрібну висоту для руху девайсу.
В студії дизайн інтер'єрів Бєлік спланують ваш простір детально та адаптують його під потреби родини. Виконають дизайн інтер'єрів Київ ціна та терміни якого будуть незапланованими заздалегідь. Ремонт стане змістовним та затишним.
В студії дизайн інтер'єрів Бєлік спланують ваш простір детально та адаптують його під потреби родини. Виконають дизайн інтер'єрів Київ ціна та терміни якого будуть незапланованими заздалегідь. Ремонт стане змістовним та затишним.
Подивіться нашу презентацію