РЕМОНТ КВАРТИРИ В НОВОБУДОВІ У ЖК ГАЛАКТИКА У КИЄВІ
Ремонт квартири в новобудові ЖК Галактика
Ремонт квартири в новобудові не викличе розчарувань та не потребуватиме великих витрат, якщо від самого початку правильно все спланувати. Недостатньо придбати оздоблення та меблі, які відповідають вашим смакам. Тут важливо передбачити всі роботи та їх послідовність, прийняти правильні планувальні рішення, розрахувати кількість оздоблення, визначитися з відповідним типом матеріалів, скомбінувати між собою кольори та відтінки. Дуже важливим під час ремонту у новобудовах є технічні аспекти.
Ви заздалегідь повинні розуміти, де саме та як прокладатимуться комунікації. Опалення, утеплення, кондиціонування, водо- та електропостачання, точки доступу, авто вмикання світла та багато інших аспектів потрібно передбачити. Щоб не лише забезпечити безперебійну роботу кожного елемента, але й зробити їх максимально непомітними в своєму інтер'єрі, потрібно заздалегідь подбати про їх приховування.
Самостійно складно передбачити всі необхідні процеси та прийняти правильні рішення. Для цього буде недостатньо знань, навичок та досвіду. Дизайнери інтер’єрів та ремонтно-будівельної бригади, спираючись саме на свій досвід та надивленість, пропонують ліпші варіанти оформлення житла. Досягається не лише зручність використання простору. Створюється функціональний та візуально естетичний інтер'єр, який задовольняє потреби мешканців.
Якість ремонту знаходиться на вищому рівні, адже уникається більшість помилок та непотрібних процесів. Отримати професійний та спланований до двірниць ремонт квартири в новобудові можна, якщо мати на руках дизайн проект. Саме персоналізована проєктна документація від компанії інтер'єрів Бєлік показує всі кроки, послідовність та обсяги для досягнення бажаного дизайну квартири.
Якість ремонту знаходиться на вищому рівні, адже уникається більшість помилок та непотрібних процесів. Отримати професійний та спланований до двірниць ремонт квартири в новобудові можна, якщо мати на руках дизайн проект. Саме персоналізована проєктна документація від компанії інтер'єрів Бєлік показує всі кроки, послідовність та обсяги для досягнення бажаного дизайну квартири.
Крім чіткого плану дій, дизайн проект заощадить до 20% витрат. Ви не переплачуватиме за непотрібний декор, меблі, оствіотлювальні прилади, оздоблювальні матеріали та самі ремонтні роботи. Наочним прикладом, як саме може виглядати ремонт квартири в новобудові, зроблений за дизайн проектом є об’єкт в ЖК Галактика. Всі рішення тут мають логіку та сенс. У візуалі досягнуто максимальної гармонії. Потреби кожного мешканця задовільнені.
Особливості ремонту квартири у новобудові ЖК Галактика
Щоб отримати дійсно якісний результат, ремонт виконувався за проектною документацією. Таке рішення заощадило гроші та час. Дозволило уникнути більшості помилок та розчарувань. Заздалегідь замовники бачили, як саме виглядатиме їх дизайн квартири. Бригада майстрів інтер’єрної студії Бєлік мала на руках детальні схеми та плани, всю технічну документацію для подальших робіт.
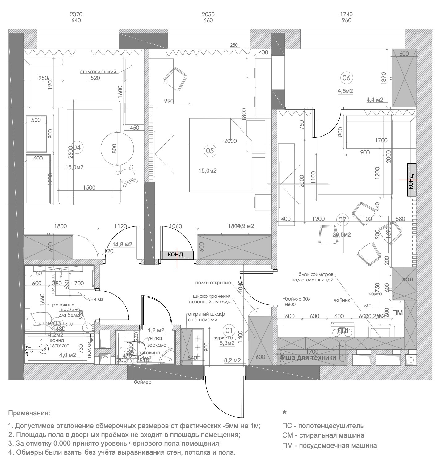
Робився ремонт квартири в новобудові. Тому складних планувальних та архітектурних процесів не виконувалось. Такі об'єкти здаються у вигляді пустої коробки. Всередні легко зводити стіни, робити ніші та обирати місце для монтажу дверей. Комунікації не замінювалися, а проводилися “з нуля”.
Квартира розрахована на родину з дитиною, тому в планувальних схемах було передбачено:
Розділяються приміщення дверима, що створює атмосферу усамітнення та дозволяє відпочивати у тиші. Кімната-студія є досить просторою та комфортною для родинних посиденьок. Створено окремо велику функціональну зону у вітальні - з місцем для перегляду ТВ, читання книг, ігор з дітьми, спілкування та відпочинку. З іншої сторони розміщена кухня, яка обладнана місткими гарнітуром, всією необхідною технікою та інвентарем. Зручна простора робоча поверхня з підсвічуванням гарантує зручність під час приготування їжі.
- спальню;
- дитячу;
- два санвузли (гостьовий та ванна кімната);
- лоджію;
- кімнату загального користування у вигляді кухні-вітальні.
Розділяються приміщення дверима, що створює атмосферу усамітнення та дозволяє відпочивати у тиші. Кімната-студія є досить просторою та комфортною для родинних посиденьок. Створено окремо велику функціональну зону у вітальні - з місцем для перегляду ТВ, читання книг, ігор з дітьми, спілкування та відпочинку. З іншої сторони розміщена кухня, яка обладнана місткими гарнітуром, всією необхідною технікою та інвентарем. Зручна простора робоча поверхня з підсвічуванням гарантує зручність під час приготування їжі.
Завдяки відсутності стін та непотрібних відгороджувань між зонами кухні та вітальні вдалося розмістити обідній стіл на 4 персони. Він виступає розділовим елементом між частинами кімнати, виконує функцію столової та гармонійно виглядає в інтер'єрі.
Сама вітальня-кухня оформлена в одній колористиці та фактурах. Переважно у квартирі використані світлі, бежеві кольори. Обрані м’які меблі, текстиль (килими, фіранки, декоративні подушки, пледи), фарбовані фасади шаф та стіни у відтінки бежевого з сірим. Присутні фактури світлого дерева на:
Сама вітальня-кухня оформлена в одній колористиці та фактурах. Переважно у квартирі використані світлі, бежеві кольори. Обрані м’які меблі, текстиль (килими, фіранки, декоративні подушки, пледи), фарбовані фасади шаф та стіни у відтінки бежевого з сірим. Присутні фактури світлого дерева на:
- декоруванні панелями однієї зі стін вітальні;
- оформленні кухонного фартуха;
- фасадах кухонного гарнітура;
- підлоговому покритті;
- у виборі обіднього столу, робочого столу у кабінет тощо.
Така сама колористика в оздобленні та виборі меблів дотримана в усіх приміщеннях. Ремонт квартири в новобудові завдяки цій концепції виглядає максимально гармонійно. Меблі виконані під замовлення, що дозволило зробити її функціональними всередині. Уникнено непотрібних щілин та ніш. Навіть пофарбувати фасади у колір стін та зробити корпусні шафи майже непомітними не викликало незручностей.
Дитяча, на відміну від інших приміщень, орієнтована саме на найменшого власника житла. Вона має багато цікавих ігрових зон, більш яскраву колористику та декорування. Під час ремонту велика увага була приділена розподілу простору. Присутнє місце для активних ігор, розвитку, відпочинку. Підібрані безпечні матеріали та вироби. Ремонт відбувся таким чином, щоб під час зростання дитини можна було легко внести зміни в облаштування кімнати (перефарбувати стіни, додати нові меблі, створити додаткові зони для занять хобі або спортом тощо). При цьому не треба буде кардинальних змін та складних ремонтних робіт.
Дитяча, на відміну від інших приміщень, орієнтована саме на найменшого власника житла. Вона має багато цікавих ігрових зон, більш яскраву колористику та декорування. Під час ремонту велика увага була приділена розподілу простору. Присутнє місце для активних ігор, розвитку, відпочинку. Підібрані безпечні матеріали та вироби. Ремонт відбувся таким чином, щоб під час зростання дитини можна було легко внести зміни в облаштування кімнати (перефарбувати стіни, додати нові меблі, створити додаткові зони для занять хобі або спортом тощо). При цьому не треба буде кардинальних змін та складних ремонтних робіт.
В цій квартирі не багато місця, тому в ній немає гардеробної. Завдяки раціональному поділу простору, вдалося розмістити все необхідне у корпусних шафах. Більшість з них виконані під замовлення, з вбудованими та пофарбованими фасадами. Вони не впадають в око та чудово виконують функцію зберігання.
В коридорі шафа - ідеальне місце для зберігання сезонного одягу та взуття. В дитячий - це окреме місце не лише для одягу, але й для іграшок, літератури, розвивальних наборів тощо. Окремо була вмонтована містка шафа на лоджії. В спальні також зробити майже непомітними меблі. Але всередині додано багато функціональних зон та полиць різного розміру.
В коридорі шафа - ідеальне місце для зберігання сезонного одягу та взуття. В дитячий - це окреме місце не лише для одягу, але й для іграшок, літератури, розвивальних наборів тощо. Окремо була вмонтована містка шафа на лоджії. В спальні також зробити майже непомітними меблі. Але всередині додано багато функціональних зон та полиць різного розміру.
Перевага шаф та декоративних панелей ще в тому, що саме за ними проведені комунікації. За фасадами та декором приховані дроти, труби, розетки, сенсори та інші елементи інноваційного функціонування житла.
Приховані комунікації - це ідеальне рішення, яке дозволяє досягти візуальної естетики. У випадку потреби до них легко добратися - без необхідності зривати плитку, шпалери на інше оздоблення.
Ремонт квартири в новобудові ЖК Галактика виконано за найвищими стандартами якості. Інтер’єр відповідає потребам та вимогам замовників. Простір максимально функціональний та зручний для проживання. В такій квартирі буде комфортно упродовж багатьох років, адже нічого не викликатиме дискомфорту та проблем. Отримати ідеальний ремонт квартири в новобудові з гарантіями якості ви зможете, звернувшись до інтер’єрної студії Бєлік.
Приховані комунікації - це ідеальне рішення, яке дозволяє досягти візуальної естетики. У випадку потреби до них легко добратися - без необхідності зривати плитку, шпалери на інше оздоблення.
Ремонт квартири в новобудові ЖК Галактика виконано за найвищими стандартами якості. Інтер’єр відповідає потребам та вимогам замовників. Простір максимально функціональний та зручний для проживання. В такій квартирі буде комфортно упродовж багатьох років, адже нічого не викликатиме дискомфорту та проблем. Отримати ідеальний ремонт квартири в новобудові з гарантіями якості ви зможете, звернувшись до інтер’єрної студії Бєлік.
Щоб ремонт у новобудові був прогнозованим та не перетворився на хаотичний процес, важливо дотримуватися чіткої послідовності робіт. Саме поетапний ремонт квартири дозволяє контролювати строки, бюджет і якість виконання кожного етапу — від чорнових робіт до фінального декору.
Перед стартом замовники заздалегідь розуміють послуги дизайнера інтер’єру ціна, адже бюджет формується ще на етапі проектування. Це виключає спонтанні витрати, переробки та ситуації, коли готовий інтер’єр не відповідає очікуванням або фінансовим можливостям родини.
Над проєктом працюють досвідчені дизайнери квартир, які враховують особливості планування ЖК Галактика, технічні вимоги новобудов та реальні сценарії життя мешканців. Саме завдяки цьому простір виходить не просто красивим, а зручним для щоденного використання.
Перед стартом замовники заздалегідь розуміють послуги дизайнера інтер’єру ціна, адже бюджет формується ще на етапі проектування. Це виключає спонтанні витрати, переробки та ситуації, коли готовий інтер’єр не відповідає очікуванням або фінансовим можливостям родини.
Над проєктом працюють досвідчені дизайнери квартир, які враховують особливості планування ЖК Галактика, технічні вимоги новобудов та реальні сценарії життя мешканців. Саме завдяки цьому простір виходить не просто красивим, а зручним для щоденного використання.
Основою реалізації стає детально опрацьований проект квартири, у якому зібрані всі планувальні рішення, 3D-візуалізації та технічна документація. За таким проєктом легко працювати ремонтно-будівельній бригаді, а замовник завжди бачить, за що саме він платить.
Замовляючи дизайн інтер’єру ремонт в інтер’єрній студії Бєлік, ви отримуєте комплексний результат: гармонійний візуал, технічно правильну реалізацію та житло, яке залишатиметься комфортним і актуальним багато років. Саме такий підхід був застосований у ремонті квартири в новобудові ЖК Галактика — без компромісів, зайвих витрат і розчарувань.
Замовляючи дизайн інтер’єру ремонт в інтер’єрній студії Бєлік, ви отримуєте комплексний результат: гармонійний візуал, технічно правильну реалізацію та житло, яке залишатиметься комфортним і актуальним багато років. Саме такий підхід був застосований у ремонті квартири в новобудові ЖК Галактика — без компромісів, зайвих витрат і розчарувань.
Подивіться нашу презентацію