СУЧАСНИЙ ІНТЕР’ЄР КВАРТИРИ В ЖК ФАЙНА ТАУН
Здається, що неможливо створити на 60 м2 затишний та сучасний простір? Вважаєте, ліпшим рішенням стане стандартний ремонт, адже він не потребує достатньо вмінь та навичок? Це помилка багатьох, яка призводить до розчарувань у результаті та додаткових витрат. Адже плануючи сучасний інтер'єр квартири ви навряд чи використаєте вдалі та перевірені досвідом архітектурні рішення, оберете краще для вашого об’єкта планування, сплануєте послідовність усіх робіт та оберете відповідні до вашого бюджету товари.
Усі ці та багато інших питань, стосовно створення затишної та функціонально атмосфери у квартирі, ідеально вирішують дизайнери інтер'єрів. Саме вони планують майбутній ремонт та візуал вашої оселі. На етапі розробки дизайн проекту передбачаються всі кроки, уникається 99% помилок, виключаються зайві роботи та обираються лише потрібні позиції для дизайну.
Усі ці та багато інших питань, стосовно створення затишної та функціонально атмосфери у квартирі, ідеально вирішують дизайнери інтер'єрів. Саме вони планують майбутній ремонт та візуал вашої оселі. На етапі розробки дизайн проекту передбачаються всі кроки, уникається 99% помилок, виключаються зайві роботи та обираються лише потрібні позиції для дизайну.
Дизайн студія Бєлік створює персоналізовані та унікальні простори, в яких комфортно знаходитися впродовж років. Через 10-15 років сучасний інтер'єр квартири не викликає бажання внести корективи. Розподіл простору, використані матеріали, проведені роботи також не принесуть проблеми. Тобто не доведеться перероблювати комунікації, щось постійно ремонтувати та замінювати.
В студії інтер'єрів Бєлік ви можете замовити дизайн квартири під ключ. Ми пропонуємо багато варіантів оформлення квартир. Навіть при обмеженій площі та конкретних потребах, дизайнерам вдасться створити на об'єкті дійсно затишну, унікальну та комфортну атмосферу. Підтвердженням цього є реальні приклади в багатьох новобудовах. Одним із вдалих прикладів нашої роботи слід вважати сучасний інтер'єр квартири в ЖК файна таун.
В студії інтер'єрів Бєлік ви можете замовити дизайн квартири під ключ. Ми пропонуємо багато варіантів оформлення квартир. Навіть при обмеженій площі та конкретних потребах, дизайнерам вдасться створити на об'єкті дійсно затишну, унікальну та комфортну атмосферу. Підтвердженням цього є реальні приклади в багатьох новобудовах. Одним із вдалих прикладів нашої роботи слід вважати сучасний інтер'єр квартири в ЖК файна таун.
Сучасний інтер'єр квартири в новобудові - як його досягти?
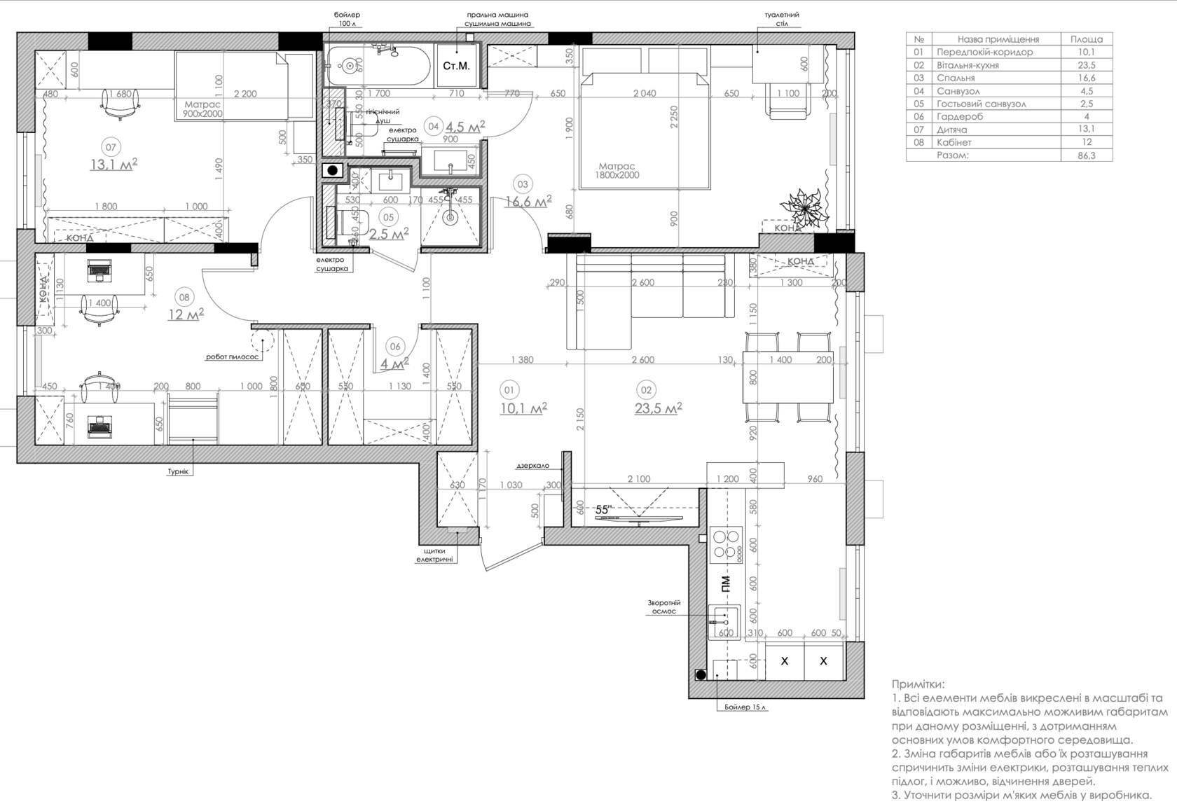
Квартири в жк файна таун, як і в більшості новобудов, здаються з вільним плануванням. Тобто забудовник підготував об'єкт без зайвих перегородок, стін, дверей. Дизайнер інтер'єрів, виходячи з потреб та запитів клієнта, спочатку розробляє планувальні рішення.
Саме на цьому етапі робляться схеми розміщення кімнат, стін, дверей. Замість того, щоб переобтяжувати невелику квартиру зайвими архітектурними елементами, часто приймається рішення - залишити максимум вільного простору. Майже всі сучасні квартири мають кімнати-студії. Адже такий крок дозволяє помістити всі необхідні меблі без крадіння простору, додати світла в приміщення та цікаво зонувати його.
Після розробки планів з детальним розміщенням кімнат (меблів, сантехніки, техніки) дизайнером інтер'єрів створюються детальні 3Д візуалізації. Саме в них відображається стиль, колористика, фактури, освітлення та дрібні деталі інтер'єру. Показано, як виглядатиме житло після ремонту. При внесенні певних коригувань та змін (за необхідністю), дизайнер працює над розробкою технічної документації.
Саме в технічній документації відображається прокладання всіх комунікацій (опалення, кондиціонування, вентиляція, електропостачання, точки доступу, сантехніка тощо). Дивлячись на візуалізації, ви не побачите, де саме будуть проводитися дроти та як виводитимуться розетки. Дивлячись на технічну документацію бригада майстрів розуміє, як саме монтувати певні елементи з проекту, підводити труби та приховувати всі комунікації.
Саме в технічній документації відображається прокладання всіх комунікацій (опалення, кондиціонування, вентиляція, електропостачання, точки доступу, сантехніка тощо). Дивлячись на візуалізації, ви не побачите, де саме будуть проводитися дроти та як виводитимуться розетки. Дивлячись на технічну документацію бригада майстрів розуміє, як саме монтувати певні елементи з проекту, підводити труби та приховувати всі комунікації.
Маючи проектну документацію в такому форматі можна сміливо звернутися до ремонтно-будівельної бригади. Вона вже відтворить всі рішення та доб'ється поставеної мети. Саме так відбувалося з квартирою в ЖК файна таун, яку оформлювала бюро інтер'єру Бєлік.
Персоналізований дизайн інтер’єру квартири на прикладі жк Файна таун
В нас є багато реалізованих дизайнів на об’єктах жк файна таун з різною квадратурою. Хочеться розглянути саме цю квартиру та показати, що навіть невелика площа (60-70 м2) може слугувати комфортним місцем проживання для цілої родини. При правильному підході можна розмістити все необхідне та створити сучасну атмосферу.
На цьому об'єкті було прийняте рішення залишити максимум вільного простору. Тому коридор тут плавно перетікає у кухню-вітальню. Особливістю слід вважати наявність невеликих перегородок, які дозволяють зонувати приміщення, але не крадуть простір.
Коридору у квартирі майже немає. Кілька м2 слугують їм, але цього достатньо. Простір розподілено правильно. На вході є поличка для зберігання речей, пуф, дзеркало Невелика частина стіни відділяє коридор від загальної кімнати-студії. Наявність дзеркала у весь зріст візуально збільшує простір. У квартирі, крім вітальні-кухні, присутні ще 2 кімнати (спальня, дитяча).
Якщо турбує зберігання речей, що просто необхідно у коридорі - то дизайн інтер'єр квартири в ЖК файна таун передбачає гардеробну. Це зручне рішення, яке заощаджує максимум простору. Всі речі, взуття, аксесуари та навіть техніка можуть зберігатися всередині. Гардеробна позбавляє від необхідності розміщувати корпусні шафи та комоди в кожній кімнаті.
Якщо турбує зберігання речей, що просто необхідно у коридорі - то дизайн інтер'єр квартири в ЖК файна таун передбачає гардеробну. Це зручне рішення, яке заощаджує максимум простору. Всі речі, взуття, аксесуари та навіть техніка можуть зберігатися всередині. Гардеробна позбавляє від необхідності розміщувати корпусні шафи та комоди в кожній кімнаті.
Кухня від вітальні також відділена за допомогою невеликої перегородки. Створено невеликий закуток, де можна зручно готувати їжу. Не дивлячись не обмеженість у квадратурі, дизайнерам вдалося зробити на кухні достатньо велику робочу поверхню та барну стійку. Перевага віддалася однотонним матовим фасадам в сірих палітрах. Кухонний гарнітур має висоту до стель. Ручки відсутні, а вся побутова техніка та інвентар заховані за фасадами (вбудовані).
Завдяки невеликим перегородкам з обох боків у вітальні досягнуто ефекту усамітнення. М'які зручні меблі, обідня зона, ТВ закуток, велика шафа з гарним декором та книжками - все це виглядає максимально естетично.
Завдяки невеликим перегородкам з обох боків у вітальні досягнуто ефекту усамітнення. М'які зручні меблі, обідня зона, ТВ закуток, велика шафа з гарним декором та книжками - все це виглядає максимально естетично.
Сучасний інтер'єр квартири виконано у світлих сірих палітрах. Достатня кількість освітлення (природного, штучного), цікаві акцентні кольори меблів/текстилю/декору, зонування за допомогою меблів роблять цю квартиру максимально затишною. Вона не виглядає надто суворо та сумно, а свідчить про гарний смак власників житла.
Спальня та дитяча кімнати виконують свої прямі функції. Перша кімната має мінімум меблів та розрахована на максимальний відпочинок, комфортний сон.
Спальня та дитяча кімнати виконують свої прямі функції. Перша кімната має мінімум меблів та розрахована на максимальний відпочинок, комфортний сон.
Щодо дитячої?
Дизайнери інтер'єрів створити в ній затишний та цікавий простір. Відповідні до статі колір (був обраний рожевий - для дівчинки) та до інтересів декор зробили дизайн персоналізованим. Обов’язково у дитячій жк файна таун створено місце для відпочинку, навчання та ігор. Велика шафа з місцями для зберігання іграшок дозволяє дотримуватися порядку та створює додатковий простір для проявлення себе.
Ви можете надихнутися ідеями оформлення цієї квартири в ЖК файна таун та винести для себе цікаві моменти. Замовити щось схоже або попросити розробити щось протилежне. Більшість рішень від дизайн студії Бєлік довели свою актуальність. Беручи до уваги ваші індивідуальні потреби та обрані приклади оформлення, дизайнер інтер'єру створить унікальні рішення для вас.
Дизайнери інтер'єрів створити в ній затишний та цікавий простір. Відповідні до статі колір (був обраний рожевий - для дівчинки) та до інтересів декор зробили дизайн персоналізованим. Обов’язково у дитячій жк файна таун створено місце для відпочинку, навчання та ігор. Велика шафа з місцями для зберігання іграшок дозволяє дотримуватися порядку та створює додатковий простір для проявлення себе.
Ви можете надихнутися ідеями оформлення цієї квартири в ЖК файна таун та винести для себе цікаві моменти. Замовити щось схоже або попросити розробити щось протилежне. Більшість рішень від дизайн студії Бєлік довели свою актуальність. Беручи до уваги ваші індивідуальні потреби та обрані приклади оформлення, дизайнер інтер'єру створить унікальні рішення для вас.
Варто розуміти, що дизайн проєкт квартири — це не абстрактний набір ідей, а чіткий інструмент контролю якості ремонту. Саме він дозволяє заздалегідь прорахувати всі рішення, узгодити бюджет та уникнути імпровізацій під час реалізації. Завдяки цьому дизайн проєкт квартири стає основою для спокійного та передбачуваного процесу облаштування житла.
Ключову роль у створенні такого результату відіграє дизайнер інтер’єру квартир, який поєднує естетичне бачення з технічним мисленням. Саме фахівець відповідає за логіку планування, ергономіку, правильне зонування та узгодженість усіх елементів між собою. Професійний дизайнер інтер’єру квартир працює не з окремими кімнатами, а з простором як єдиною системою.
Ключову роль у створенні такого результату відіграє дизайнер інтер’єру квартир, який поєднує естетичне бачення з технічним мисленням. Саме фахівець відповідає за логіку планування, ергономіку, правильне зонування та узгодженість усіх елементів між собою. Професійний дизайнер інтер’єру квартир працює не з окремими кімнатами, а з простором як єдиною системою.
Сучасний дизайн інтер’єру в києві формується з урахуванням реальних умов життя у мегаполісі: темпів, типових планувань, інженерних рішень та очікувань власників. Саме тому важливо звертатися до студії, яка має практичний досвід роботи з київськими об’єктами. дизайн інтер’єру в києві — це завжди баланс між стилем, функціональністю та довготривалою актуальністю рішень.
Окреме питання, яке хвилює більшість клієнтів, — вартість дизайну квартир у києві. Вона залежить від площі об’єкта, складності планування, обсягу документації та рівня супроводу. Важливо розуміти, що інвестиція в професійний дизайн дозволяє уникнути значно більших витрат на переробки та помилки під час ремонту. Детально ознайомитися з підходами до формування бюджету можна на сторінці вартість дизайну квартир у києві.
Окреме питання, яке хвилює більшість клієнтів, — вартість дизайну квартир у києві. Вона залежить від площі об’єкта, складності планування, обсягу документації та рівня супроводу. Важливо розуміти, що інвестиція в професійний дизайн дозволяє уникнути значно більших витрат на переробки та помилки під час ремонту. Детально ознайомитися з підходами до формування бюджету можна на сторінці вартість дизайну квартир у києві.
Фінальним орієнтиром для замовника стає ціна дизайну інтер’єру квартири, яка формується прозоро та обґрунтовано ще на старті співпраці. Це дозволяє планувати витрати, приймати зважені рішення та чітко розуміти обсяг робіт. ціна дизайну інтер’єру квартири у студії Бєлік відповідає рівню опрацювання проєкту та гарантує результат, який повністю відповідає погодженим візуалізаціям і документації.
Подивіться нашу презентацію