ПРОЕКТ РЕМОНТУ КВАРТИРИ У ЖК SOFIA RESIDENCE У КИЄВІ
• Локація – ЖК Sofia Residence, Київ, Україна
• Площа квартири – 75 м²
• Формат роботи – дизайн проект інтер'єру
• Площа квартири – 75 м²
• Формат роботи – дизайн проект інтер'єру
Особливості планування квартири в ЖК Sofia Residence
Планування ремонту у новобудові - це не завжди легко та швидко. Адже не дивлячись на здачу об'єкта у пустуючому вигляді та з “голими” стінами, потрібно врахувати багато факторів для досягнення якісного результату. Особливо складно спланувати простір у двоповерхових квартирах з особливостями планування.
Саме такими є приміщення в ЖК Sofia Residence, для яких дизайнери інтер'єрної компанії Бєлік неодноразово розробляли проєкт ремонту. На відміну від пустої коробки прямокутної або квадратної форми, ці квартири мають безліч комор, неординарне планування від забудовника та не дуже велику площу.
Саме такими є приміщення в ЖК Sofia Residence, для яких дизайнери інтер'єрної компанії Бєлік неодноразово розробляли проєкт ремонту. На відміну від пустої коробки прямокутної або квадратної форми, ці квартири мають безліч комор, неординарне планування від забудовника та не дуже велику площу.
На реальному прикладі квартири ЖК Sofia Residence чітко видно:
- маленькі ніші та комори, які потрібно вміти правильно обіграти;
- не ідеально рівне положення стін - не лише зовнішні, а й внутрішні стіни можуть йди навскіс, що ускладнює розподіл простору та вибір меблів;
- наявність сходів на другий поверх, які крадуть значну частину функціонального простору;
- невеликі площі - на житловий простір припадає приблизно по 30 м2 на кожному поверсі.
До всіх цих особливостей забудови потрібно додати ще індивідуальні потреби майбутніх мешканців, їх побажання в оформленні та фінансові можливості. Замість того щоб розчаровуватися у об’єкті та незручностях ремонту, потрібно довірити його планування компетентним фахівцям.
ЖК Sofia Residence вважається досить сучасним та якісним комплексом, з розвиненою інфраструктурою та інноваційним підходом. Ви можете насолоджуватися проживанням в новобудові, створивши всередині функціональний інтер'єр та дійсно комфортні умови. Підтвердженням того, що це можливо та не потребує всіх грошей світу наведені в портфоліо компанії інтер'єрів Бєлік.
ЖК Sofia Residence вважається досить сучасним та якісним комплексом, з розвиненою інфраструктурою та інноваційним підходом. Ви можете насолоджуватися проживанням в новобудові, створивши всередині функціональний інтер'єр та дійсно комфортні умови. Підтвердженням того, що це можливо та не потребує всіх грошей світу наведені в портфоліо компанії інтер'єрів Бєлік.
Проект ремонту квартири для ЖК Sofia Residence - запорука ідеального інтер’єра
Першим та важливим кроком в створенні комфортного дизайну є правильні планувальні рішення. Дизайнер інтер'єрів спочатку на схемах та кресленнях раціонально розподіляє простір. Це може буде перепланування з демонтажем та новим зведенням стін, часткові роботи з переміщенням дверних пройомів та планування розташування всіх меблів (сантехніки, техніки).
Узгодивши всі рішення, проект ремонту квартири далі передбачає розробку 3Д візуалізацій. Створюють детальні зображення майбутнього інтер'єру з урахуванням особистих потреб, можливостей та побажань замовників. Вся ця інформація вказується в анкеті клієнта, яку надає Бєлік. Тут можна позначити побажання до стиля, кольорів, фактур, декору, конкретних меблів та оздоблення.
3D-візуалізації та дизайн інтер’єру квартири
Лише після детальних 3Д візуалізацій квартири з відображенням реальних товарів (від постачальників та виробників) продовжується робота над проектом. Завершальним етапом стає розробка технічної документації. В ній відображена всі необхідна для ремонто-будівельної бригади інформація, а саме:
- демонтажні та монтажні роботи у правильній послідовності;
- проведення та приховування всіх комунікацій (водопостачання, електрика, точки доступу тощо);
- монтаж техніки та сантехніки - особливо вбудованої в інсталяції;
- кондиціонування та вентилювання;
- утеплення та шумоізоляція;
- впровадження інновацій - термостат, фільтрація, душовий трап, датчики руху при освітленні, “розумний дім” тощо;
- оздоблення зі складними процесами декорування стін тощо;
- підведення та встановлення освітлювальних приладів;
- меблювання та декорування кімнат.
Всі процеси з обсягами та правильною послідовністю відображені у технічній документації. Це дозволяє уникнути непотрібних робіт та помилок, запланувати терміни ремонту та виконати все технічно правильно.
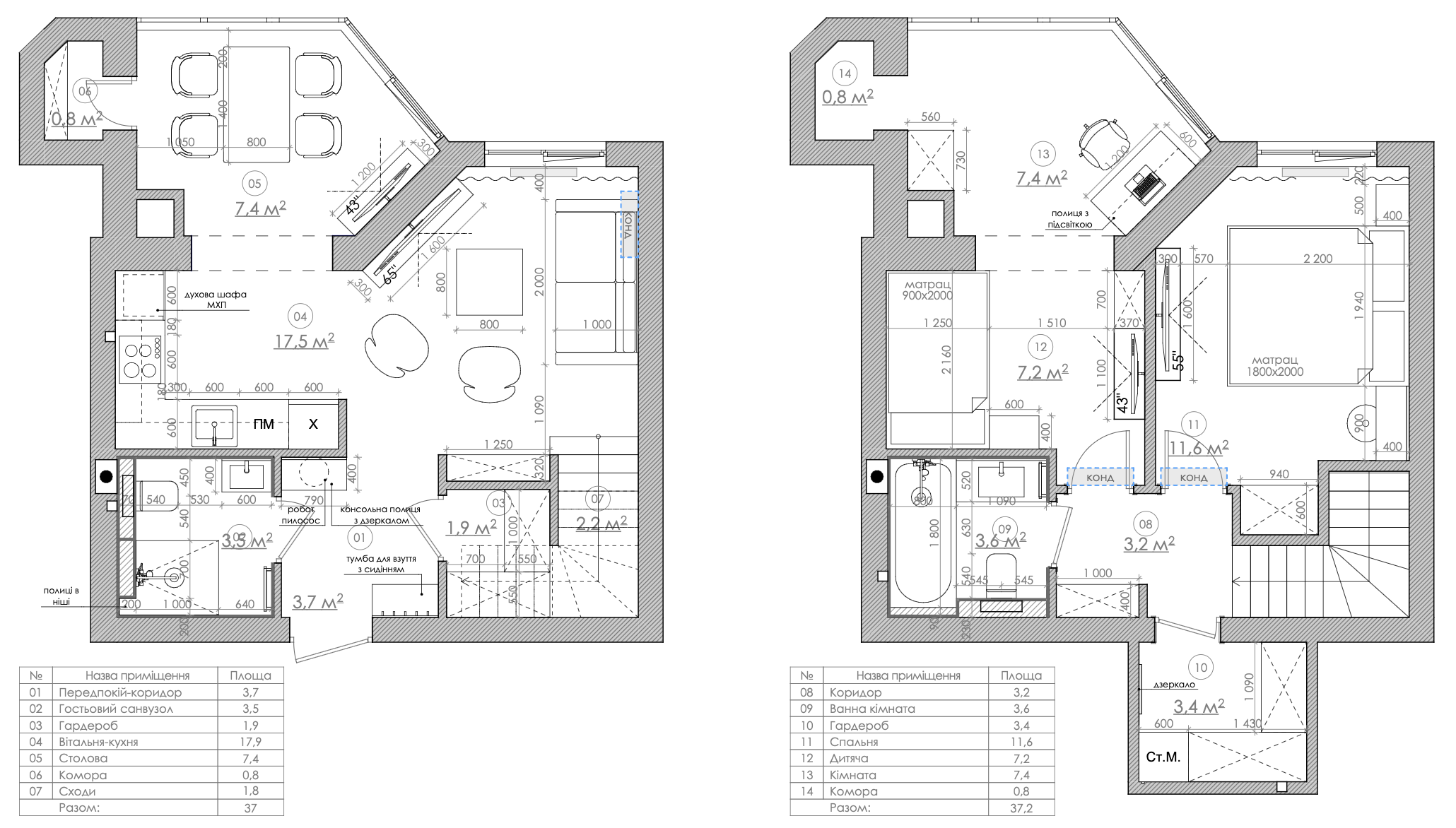
Саме таким був проект ремонту квартири в ЖК Sofia Residence, що дозволило створити всередині затишний та сучасний простір. Кожні 30 м2 на поверсі використали по-максимуму. На першому поверсі знаходяться кімнатна загального користування, гостьовий санвузол, гардероб, комора. Технічне приміщення (комора) та гардероб дозволяють приховати всі зайві речі за дверима.
Саме таким був проект ремонту квартири в ЖК Sofia Residence, що дозволило створити всередині затишний та сучасний простір. Кожні 30 м2 на поверсі використали по-максимуму. На першому поверсі знаходяться кімнатна загального користування, гостьовий санвузол, гардероб, комора. Технічне приміщення (комора) та гардероб дозволяють приховати всі зайві речі за дверима.
Пральна та сушильна машина, швабри та відра, пилосмок, побутова хімія, сезонні речі та взуття, дитячий транспорт та зайві речі зберігаються саме тут. Такий підхід дозволив відмовитися від шаф-купе або великих вбудованих конструкцій. Це додало кілька м2, візуально зробивши кімнати просторішими.
В студії розмістили зону кухні та вітальні. Окремо є прохід до столової, який також не відгороджено дверми. Не дивлячись на обмежений простір, у зоні кухні вдалося розмістили всю необхідну техніку та інвентар. Фасади висотою до стелі та розроблені під замовлення мають багато місця для зберігання. Також передбачена робоча поверхня, на якій зручно готувати їжу. Особливість кухонної зони - це її розміщення у ніші, вздовж стіни навскіс. Гарнітур кухні не прямокутний або Г-образний. Він виконаний саме під особливості планування кімнати.
В студії розмістили зону кухні та вітальні. Окремо є прохід до столової, який також не відгороджено дверми. Не дивлячись на обмежений простір, у зоні кухні вдалося розмістили всю необхідну техніку та інвентар. Фасади висотою до стелі та розроблені під замовлення мають багато місця для зберігання. Також передбачена робоча поверхня, на якій зручно готувати їжу. Особливість кухонної зони - це її розміщення у ніші, вздовж стіни навскіс. Гарнітур кухні не прямокутний або Г-образний. Він виконаний саме під особливості планування кімнати.
У вітальній розмістили зручний диван, невеликий журнальний стіл та практичні круглі пуфи. Ці меблі є максимально мобільними. Їх легко перемістити в інше місце, приховати під столом або в кутку. Візуально вони виглядають дуже естетично та гармонійно. Щоб використати простір раціонально в ніші між стінами сходів та коридору зробили вбудовану шафу. Це зручне місце для розташування декору та книг, зберігання документів та інших дрібних речей.
Другий поверх - це простір житлових кімнат. Тут є гардероб, ванна кімната, дитяча, спальня та навіть кабінет (гостьова). Невеликі приміщення характеризуються максимальною функціональністю та естетикою. Завдяки відсутності великих шаф вдалося розмістити зручні ліжка, створити зони для ігор та відпочинку, досягнути достатньо вільного простору всередині.
Другий поверх - це простір житлових кімнат. Тут є гардероб, ванна кімната, дитяча, спальня та навіть кабінет (гостьова). Невеликі приміщення характеризуються максимальною функціональністю та естетикою. Завдяки відсутності великих шаф вдалося розмістити зручні ліжка, створити зони для ігор та відпочинку, досягнути достатньо вільного простору всередині.
Важливо зазначити, що в інтер'єрі цього об'єкта відсутній зайвий декор. Натомість, використані вдалі кольори та фактури. Принадою спальні, наприклад, виступає рельєфна частина стіни. Виконана вона, як скеля. Це дуже оригінально. Скеля в спальні вдало поєднується з дерев'яними панелями та однотонним світлим оздобленням на стінах. Меблі, оздоблення, декор, текстиль - всі елементи мають сходу колористику.
Ті ж самі кольори та матеріали присутні в оздобленні всієї квартири. Сходи виконані з дерева та мають підсвічування. Стіни по всьому об'єкту оформлені дерев'яними панелями або пофарбовані в один колір. Навіть фасади меблів ідентичні до оздоблення. Вони виконуються під замовлення, що дозволяє досягти максимальної відповідності. М’які меблі характеризуються зручністю та функціональністю. Обшивка обирається відповідно до загальної концепції та колористики.
Ті ж самі кольори та матеріали присутні в оздобленні всієї квартири. Сходи виконані з дерева та мають підсвічування. Стіни по всьому об'єкту оформлені дерев'яними панелями або пофарбовані в один колір. Навіть фасади меблів ідентичні до оздоблення. Вони виконуються під замовлення, що дозволяє досягти максимальної відповідності. М’які меблі характеризуються зручністю та функціональністю. Обшивка обирається відповідно до загальної концепції та колористики.
Технічна документація для ремонту квартири
Звернувшись до інтер’єрного бюро Бєлік навіть незручне, на перший погляд, приміщення ви можете перетворити на унікальний простір. На житло, яке покращувати ваш рівень життя та даруватиме відчуття затишку. Наші дизайнери інтер’єрів розробляють персоналізований проект ремонту квартири, який ви зможете реалізувати на своєму об’єкті на 100%.
Чому варто замовити проєкт ремонту квартири в Belik Design
Щоб отримати прогнозований результат без зайвих витрат і переробок, важливо заздалегідь замовити дизайн ремонту квартир у професійній студії. Саме проєктний підхід дозволяє врахувати всі особливості планування ЖК Sofia Residence, раціонально використати кожен квадратний метр і створити комфортний інтер’єр навіть у складних двоповерхових просторах.
На старті співпраці замовники отримують чітке розуміння, якою буде ціна за дизайн проект квартири, які етапи передбачені та які рішення можна реалізувати в межах запланованого бюджету. Це дає змогу уникнути імпульсивних рішень і зробити ремонт максимально контрольованим.
На старті співпраці замовники отримують чітке розуміння, якою буде ціна за дизайн проект квартири, які етапи передбачені та які рішення можна реалізувати в межах запланованого бюджету. Це дає змогу уникнути імпульсивних рішень і зробити ремонт максимально контрольованим.
Над об’єктами працює дизайнер інтер’єру київ ціна якого формується відповідно до складності планування, площі та запиту клієнта. Професійний дизайнер не просто створює візуал, а продумує всі технічні та функціональні нюанси, що напряму впливають на комфорт проживання.
Саме дизайнерський проект квартири є основою якісного ремонту. Він поєднує в собі планувальні рішення, 3D-візуалізації та технічну документацію, яка дозволяє реалізувати інтер’єр без відхилень від задуму. Ознайомитися з реальними прикладами реалізованих рішень можна в розділі дизайнерський проект квартири, де представлені об’єкти різної складності та стилістики.
Звернувшись до інтер’єрної компанії Бєлік, ви отримаєте не просто гарний дизайн, а продуманий проект ремонту квартири в ЖК Sofia Residence, який легко реалізується та залишається актуальним і зручним упродовж багатьох років.
Саме дизайнерський проект квартири є основою якісного ремонту. Він поєднує в собі планувальні рішення, 3D-візуалізації та технічну документацію, яка дозволяє реалізувати інтер’єр без відхилень від задуму. Ознайомитися з реальними прикладами реалізованих рішень можна в розділі дизайнерський проект квартири, де представлені об’єкти різної складності та стилістики.
Звернувшись до інтер’єрної компанії Бєлік, ви отримаєте не просто гарний дизайн, а продуманий проект ремонту квартири в ЖК Sofia Residence, який легко реалізується та залишається актуальним і зручним упродовж багатьох років.
Подивіться нашу презентацію