СІРО БІЛИЙ ІНТЕР’ЄР КВАРТИРИ В ЖК СОФІЯ КЛУБНИЙ ВІД МАРТИНОВА У КИЄВІ
Сіро-біла колористика сьогодні все частіше використовується, якщо є потреба у створенні лаконічного та сучасного дизайну. Адже саме ці 2 палітри дозволяють “погратися” із візуальними ефектами, що збільшує простір та приховує певні недоліки приміщення. Також вони виступають таким собі “полотном” в дизайні, на якому можна вдало робити акцентні елементи, створювати особливу атмосферу та додавати оригінальних рішень в декоруванні.
Варто зазначити, що при правильному підході та реалізації, сіро білий інтер'єр квартири буде залишатися оптимальним довгі літа. Адже монохром та витриманість ніколи не покидають трендів та не поступаються надсучасним інноваціям. Безумовно, при неправильному виконанні можна отримати ефект “лікарні” або невиразного дизайну. Щоб уникнути розчарувань ще до початку ремонту та передбачити, як саме виглядатиме ваш інтер'єр квартири у сіро-білих кольорах, радимо звернутися до досвідчених фахівців.
Варто зазначити, що при правильному підході та реалізації, сіро білий інтер'єр квартири буде залишатися оптимальним довгі літа. Адже монохром та витриманість ніколи не покидають трендів та не поступаються надсучасним інноваціям. Безумовно, при неправильному виконанні можна отримати ефект “лікарні” або невиразного дизайну. Щоб уникнути розчарувань ще до початку ремонту та передбачити, як саме виглядатиме ваш інтер'єр квартири у сіро-білих кольорах, радимо звернутися до досвідчених фахівців.
Дизайнери інтер’єрної компанії Бєлік мають реальний досвід, спеціальні знання, надивленість та всі професійні інструменти для створення затишних просторів. Підтвердженням є чисельні приклади не просто візуалізацій, нагадуючих зображення з Pinterest. Ми створюємо сучасні та персоналізовані дизайн інтер’єри. Враховуємо одразу кілька критеріїв під час розробки проєктів, а саме:
- потреби майбутніх мешканців - родина з дітьми, наявність домашніх улюбленців або працюючий із дома фрілансер мають різні потреби;
- бюджет - одні можуть дозволити собі брендові люстри та меблі під замовлення з інших країн, в той час, як для інших ми підбираємо якісні та більш доступні альтернативи;
- індивідуальні побажання до стиля, кольорів, фактур, розташуванню меблів або техніки тощо;
- особливості конкретного об'єкта - не завжди площа або планування дозволяють втілити архітектурні рішення, тому наші дизайнери інтер'єрів пропонують кращі альтернативи та рішення для кожної конкретної квартири.
Обговорюються всі умови та особливості оформлення ще на старті робіт. Після підписання договору, заповнення анкети клієнта та визначення зі стратегією починається кропітка робота над створенням інтер'єру. Завчасно можна подивитися та надихнутися ідеями оформлення в кольористиці та стилі, які раніше були реалізовані інтер'єрною студією Бєлік. Можна навіть подивитися приклади оформлення об'єктів саме з вашого ЖК, адже в нас понад сотні реалізованих рішень.
Цікавим став стриманий, але водночас затишний дизайн невеликої квартири в ЖК Софія Клубний від Мартинова. Це сіро білий інтер'єр квартири, який покращує рівень життя, забезпечує максимальний комфорт та зручність проживання.
Цікавим став стриманий, але водночас затишний дизайн невеликої квартири в ЖК Софія Клубний від Мартинова. Це сіро білий інтер'єр квартири, який покращує рівень життя, забезпечує максимальний комфорт та зручність проживання.
Сіро білий інтер'єр квартири - секрети затишку та краси в дизайні
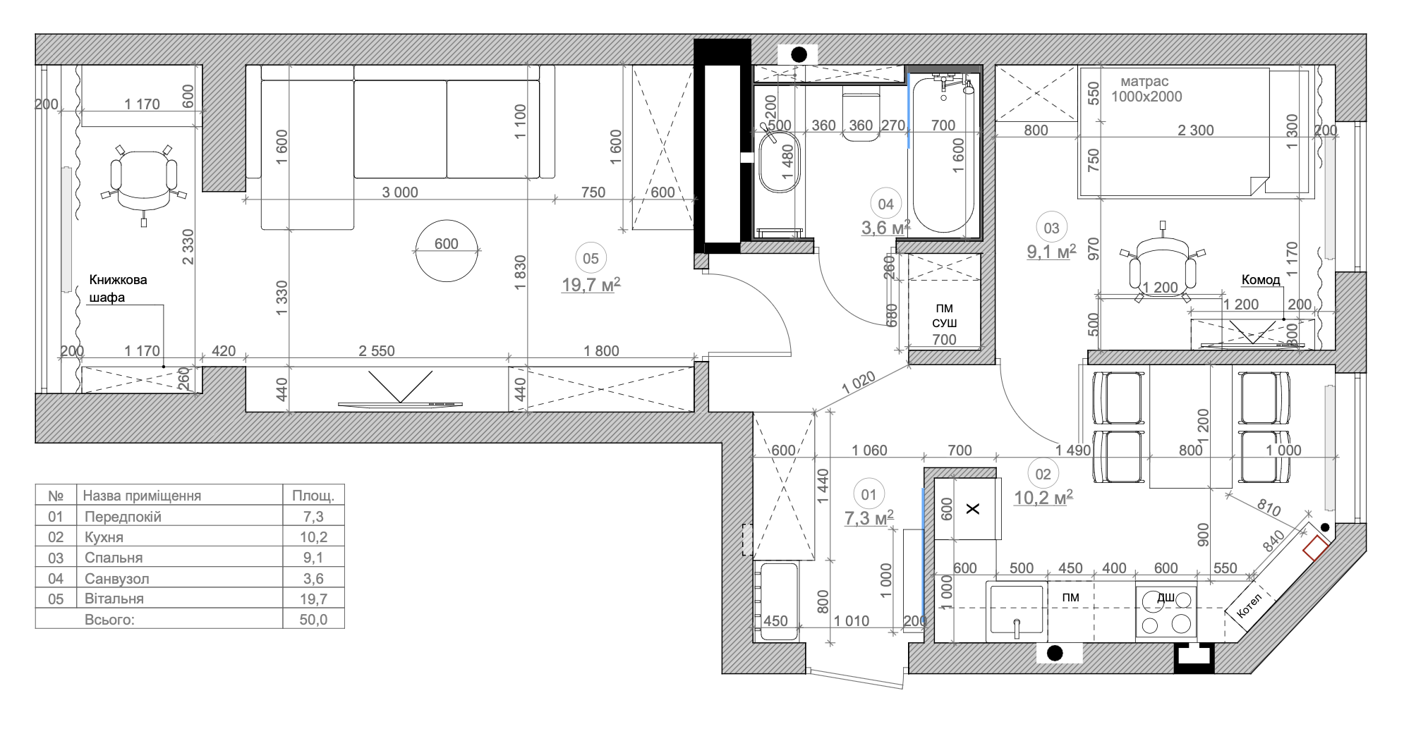
Об'єкт в ЖК Софія Клубний від Мартинова має всього 50 м2. На цій площі, відповідно до потреб замовників, необхідно було розмістити спальню, вітальню, кухню з великим обіднім столом. Замість того щоб поєднувати кухню із вітальнею, дизайнер інтер'єрів пішов іншим шляхом (за проханням замовника).
Кухня вдало поєдналася зі столовою, де присутньо вдосталь місця для приготування та приймання їжі, зустрічі гостей. Це приміщення має не стандартну форму, із кутами та нішами. Тому було прийняте рішення зробити кухонний гарнітур під замовлення, що дозволило максимально раціонально використати простір. Техніка вбудована, інвентар приховано за фасадами. Полиці в середині меблів мають різні параметри, що дозволяє розмістити різні предмети та раціонально використати простір. Вдалося поставити обідній стіл на чотирьох осіб та створити затишну зону столової.
Вітальня - це окрема кімната, яка може слугувати місцем для відпочинку, зустрічей з рідними, роботи чи навіть додатковою кімнатою для гостей. Вона облаштована зручним диваном, робочим місцем, ТВ зоною, журнальним столиком, корпусними меблями для зберігання речей.
В спальні, санвузлі та передпокої простір використано максимально раціонально. Присутньо у квартирі багато вбудованих шаф та корпусних меблів, які щільно прилягають до стін. Візуально це не краде простір, а також створює ефект цілісності інтер'єра. Дизайнери інтер'єрної компанії Бєлік співпрацюють з виробниками меблів, тому вдалося підібрати однакову колористику та потрібні матеріали.
В спальні, санвузлі та передпокої простір використано максимально раціонально. Присутньо у квартирі багато вбудованих шаф та корпусних меблів, які щільно прилягають до стін. Візуально це не краде простір, а також створює ефект цілісності інтер'єра. Дизайнери інтер'єрної компанії Бєлік співпрацюють з виробниками меблів, тому вдалося підібрати однакову колористику та потрібні матеріали.
Сіро білий інтер'єр квартири в ЖК Софія Клубний від Мартинова виконано в сучасному форматі, тому всередині присутньо багато інновацій та цікавих рішень. Меблі виконані прилеглими до стін, з метою уникнення щілин. Деякі корпусні та інші вироби обрано з урахуванням роботи робота-пилосмока. Тобто, це достатня висота та зручне розташування ніжок, щоб “помічник” зміг виконувати свою функцію та підтримувати порядок в середині.
Що стосується кольорів та стилю?
В ЖК Софія Клубний від Мартинова сіро білий інтер'єр квартири та сучасний напрямок оформлення житла. Всі меблі, освітлювальні прилади, текстиль, декор, оздоблення дотримано саме в цій колористиці. На об'єкті відсутні різкі переходи та насичені, яскраві акценти. Натомість дизайнеру інтер'єрів вдалося додати різних фактур та “погратися” з відтінками. Дерев’яні світлі фактури на підлозі та фасадах меблів чудово поєднуються з сіро-білими кольорами.
Що стосується кольорів та стилю?
В ЖК Софія Клубний від Мартинова сіро білий інтер'єр квартири та сучасний напрямок оформлення житла. Всі меблі, освітлювальні прилади, текстиль, декор, оздоблення дотримано саме в цій колористиці. На об'єкті відсутні різкі переходи та насичені, яскраві акценти. Натомість дизайнеру інтер'єрів вдалося додати різних фактур та “погратися” з відтінками. Дерев’яні світлі фактури на підлозі та фасадах меблів чудово поєднуються з сіро-білими кольорами.
Замість різкого переходу від світлого до більш темного кольору, дизайнери обрали плавні перебіги. В одній кімнаті світла колористика поступово стає більш насиченою, що створює гармонійну композицію оформлення житла.
Меблі незвичних форм (з закругленими кутами, овальні), цікаві елементи декору в тій самій стилістиці, підсвічування окремих зон, якісний текстиль - усе це створює атмосферу затишку.
Якщо ви хочете використати свої 40-50 м2 у квартирі по-максимуму, варто завчасно звернутися до дизайнера інтер'єрів. Звернення та розробка дизайн проекта заощадить до 20% вашого бюджету, збереже ваші нерви та час.
Меблі незвичних форм (з закругленими кутами, овальні), цікаві елементи декору в тій самій стилістиці, підсвічування окремих зон, якісний текстиль - усе це створює атмосферу затишку.
Якщо ви хочете використати свої 40-50 м2 у квартирі по-максимуму, варто завчасно звернутися до дизайнера інтер'єрів. Звернення та розробка дизайн проекта заощадить до 20% вашого бюджету, збереже ваші нерви та час.
Крім того, звернувшись до студії інтер'єрів Бєлік ви отримаєте не лише раціонально використаний простір. Індивідуально для вас буде розроблений дизайн майбутнього житла, з урахуванням ваших смаків, потреб та можливостей. ЖК Софія Клубний від Мартинова сіро білий інтер'єр квартири є прямим підтвердженням того, що обмеження в площі та бюджеті не є перепоною при створенні простору своєї мрії. Головне довірити все професіоналам, які вміють виконувати робити це якісно.
Якщо ви прагнете використати свої 40–50 м² максимально ефективно, варто починати не з хаотичних рішень, а з продуманого проєкту квартири. Саме на цьому етапі закладається логіка планування, сценарії життя, зручність зберігання та гармонія колористики. Професійно розроблений проєкт дозволяє ще до старту робіт зрозуміти майбутній результат та уникнути помилок.
Грамотне проєктування напряму впливає і на ремонт квартири — ціну. Коли всі рішення зафіксовані в документації, легше контролювати бюджет, обирати матеріали без перевитрат і планувати етапи робіт. Сам ремонт квартири у такому випадку проходить прогнозовано, без затримок і спонтанних змін.
Грамотне проєктування напряму впливає і на ремонт квартири — ціну. Коли всі рішення зафіксовані в документації, легше контролювати бюджет, обирати матеріали без перевитрат і планувати етапи робіт. Сам ремонт квартири у такому випадку проходить прогнозовано, без затримок і спонтанних змін.
Звертаючись до студії інтер’єрів Бєлік, ви отримуєте комплексний підхід — від ідеї до реалізації. Ми виконуємо ремонти квартир відповідно до затвердженого проєкту, дотримуючись усіх технічних вимог і дизайнерської концепції. Це гарантує відповідність готового інтер’єру візуалізаціям та комфорт у щоденному користуванні.
Сіро-білий інтер’єр квартири в ЖК Софія Клубний від Мартинова є прикладом того, як дизайн-проєкт з ремонтом дозволяє створити стильний, сучасний і затишний простір навіть за обмеженої площі. Продуманий підхід, увага до деталей і професійна реалізація — саме те, що перетворює квартиру на дім, у якому приємно жити роками.
Сіро-білий інтер’єр квартири в ЖК Софія Клубний від Мартинова є прикладом того, як дизайн-проєкт з ремонтом дозволяє створити стильний, сучасний і затишний простір навіть за обмеженої площі. Продуманий підхід, увага до деталей і професійна реалізація — саме те, що перетворює квартиру на дім, у якому приємно жити роками.
Подивіться нашу презентацію