УКРАЇНСЬКИЙ ЕТНІЧНИЙ СТИЛЬ В ІНТЕР’ЄРІ КВАРТИРИ В ЖК ОКЛЕНД У КИЄВІ
• Локація - ЖК Окленд, Київ, Україна
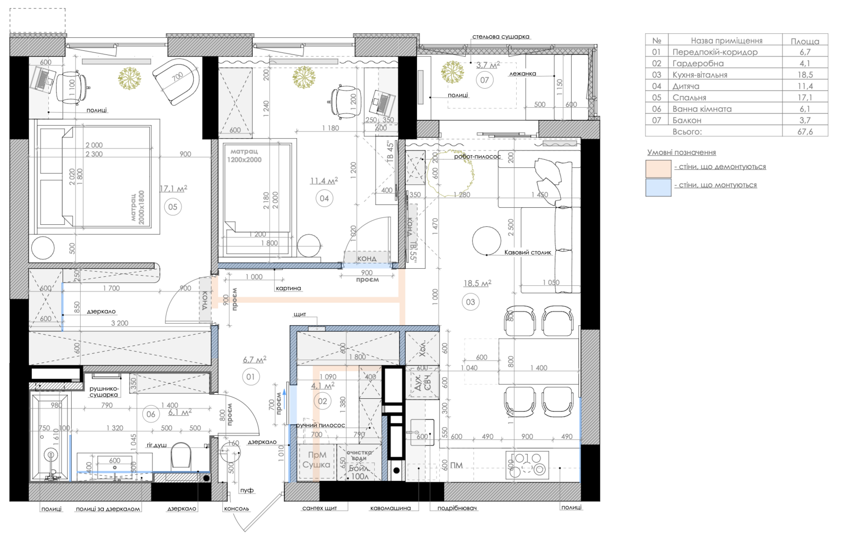
• Площа квартири – 67,6 м²
• Формат роботи – дизайн проєкт інтер'єру
• Площа квартири – 67,6 м²
• Формат роботи – дизайн проєкт інтер'єру
Український етнічний стиль в інтер'єрі квартири має неабиякий попит. Не лише знаходячись на рідній землі, але й за її межами, люди активно намагаються зберігати свій менталітет та національні цінності.
Дотримання певних традицій залежить виключно від самих людей. Що стосується оформлення житла? Тут варто знайти дійсно “свого” фахівця. Лише такий зможе відобразити дизайни квартири Польща в українському стилі. Грамотно вплести етнічні мотиви, при цьому зробивши простір орієнтованим на сучасні європейські стандарти.
Дотримання певних традицій залежить виключно від самих людей. Що стосується оформлення житла? Тут варто знайти дійсно “свого” фахівця. Лише такий зможе відобразити дизайни квартири Польща в українському стилі. Грамотно вплести етнічні мотиви, при цьому зробивши простір орієнтованим на сучасні європейські стандарти.
Бєлік — це студія дизайну інтер єру у Варшаві, яка втілює всі забаганки та побажання своїх клієнтів, стосовно персоналізованого житла. Маючи перевірену команду та понад 10-річний досвід роботи в Україні, наша компанія розширила галузь своєї діяльності. Тепер в агенції інтер’єрів Бєлік можна не просто замовити дизайн проєкт, знаходячись за межами України.
Маючи укомплектовану та перевірену команду фахівців наша компанія виконує дизайни квартири у Гданську, Варшаві та інших містах Польщі. Дотримуються всі терміни, кошторис, правила та норми. Створюються простри, орієнтовані на побут, стиль та рішень життя, індивідуальні побажання та потреби, бюджет.
Маючи укомплектовану та перевірену команду фахівців наша компанія виконує дизайни квартири у Гданську, Варшаві та інших містах Польщі. Дотримуються всі терміни, кошторис, правила та норми. Створюються простри, орієнтовані на побут, стиль та рішень життя, індивідуальні побажання та потреби, бюджет.
Для тих, то прагне підтримувати рідні традиції та оточити себе етнічними мотивами, є кілька цікавих прикладів оформлення об'єктів. Ідеальним для невеликих приміщень (від 50 до 70 м2) варто вважати український етнічний стиль в інтер'єрі квартири ЖК Окленд. З першого погляду на об’єкт можна зрозуміти “настрій” та ідею. Перейнятися атмосферою рідного краю та відчути код нації.
Сам інтер'єр в ЖК Okland виглядає цілком збалансованим, сучасним та гармонійним. Тут вдало впроваджені інновації, ефективні дизайнерські тренди, додана вся необхідна техніка та меблі.
Сам інтер'єр в ЖК Okland виглядає цілком збалансованим, сучасним та гармонійним. Тут вдало впроваджені інновації, ефективні дизайнерські тренди, додана вся необхідна техніка та меблі.
Сучасний український дизайн в ЖК Okland
Цей дизайн квартири Київ виконувався “під ключ”. Спочатку розроблялася детальна проектна документація, через яку було уникнено певних помилок та розбіжностей. Прописані поетапно всі ремонтні та технічні роботи, правильно обрані товари для інтер'єру. Після здачі проєкта почався сам ремонт, який привів до бажаного та якісного результату.
Український етнічний стиль в інтер'єрі квартири ЖК Okland є чудовим прикладом того, як можна майстерно поєднати мінімалізм, функціональність та глибокі національні коріння. Дизайн не перевантажений архаїкою. Оформлення цієї квартири ідеально інтерпретує традиції через сучасні форми та натуральні матеріали.
Було використано одразу кілька ефективних дизайнерських рішень, які характеризують українські традиції в інтер’єрі.
Основою є природна, заземлена гама. В приміщеннях ЖК Окленд присутні відтінки льону, піску, теплого дерева (дуб, горіх) та теракоти.
Використано багато дерева. Паркет “ялинкою”, шпоновані фасади кухні, унікальний журнальний столик зі зрізу дерева та цікаво оформленні елементи меблів (горизонтальні рейки) — все це додає простору автентичності.
Велика кількість грубих натуральних тканин (рогожка на дивані, вовняні килими) створює відчуття затишку та тактильності.
- Колірна палітра та матеріали
Основою є природна, заземлена гама. В приміщеннях ЖК Окленд присутні відтінки льону, піску, теплого дерева (дуб, горіх) та теракоти.
Використано багато дерева. Паркет “ялинкою”, шпоновані фасади кухні, унікальний журнальний столик зі зрізу дерева та цікаво оформленні елементи меблів (горизонтальні рейки) — все це додає простору автентичності.
Велика кількість грубих натуральних тканин (рогожка на дивані, вовняні килими) створює відчуття затишку та тактильності.
2. Етнічні акценти та декор
Стиль розкривається в деталях, що відсилають до українського побуту. Мова йде про:
Стиль розкривається в деталях, що відсилають до українського побуту. Мова йде про:
- килими — геометричні орнаменти нагадують традиційне ткацтво (ліжники або безворсові килими), але у більш сучасних варіаціях;
- стіни — світле панно з об'ємним тисненням імітує вишивку або традиційну ліпнину (мазанку), створює унікальний фокус у зоні вітальні;
- кераміка та дерево — глиняні вази, дерев'яні світильники та солом'яні елементи (як-от люстра-пелюстки) підкреслюють зв'язок із ремеслами;
- природні акценти, як арт-об'єкти — журнальний столик-зріз дерева з епоксидною смолою та пуфи-”баранчики”;
- “сітка” вставки у кухонних фасадах — додає легкості, дозволяє бачити силуети посуду, приховуючи при цьому дрібний безлад.
3. Освітлення
Різні світові сценарії присутні на об'єкті.
Були використані сучасні лаконічні світильники із плетеними абажурами та паперовими плафонами, що створює м'яку гру тіней. Світильники-пелюстки у вітальні дають розсіяне світло, яке підкреслює натуральні фактури дерева та тканини.
Цікавої форми люстр доволі багато у квартирі (дитяча, спальня, вітальня). Вони прикрашають певні зони, виступаючи якірними елементами.
Також розташовано вбудовані у стелю точкові світильники, LED підсвічування окремих зон.
Підсвітка вздовж стелі та вертикальних ліній стін “розмиває” межі, та візуально піднімає висоту кімнати.
Різні світові сценарії присутні на об'єкті.
Були використані сучасні лаконічні світильники із плетеними абажурами та паперовими плафонами, що створює м'яку гру тіней. Світильники-пелюстки у вітальні дають розсіяне світло, яке підкреслює натуральні фактури дерева та тканини.
Цікавої форми люстр доволі багато у квартирі (дитяча, спальня, вітальня). Вони прикрашають певні зони, виступаючи якірними елементами.
Також розташовано вбудовані у стелю точкові світильники, LED підсвічування окремих зон.
Підсвітка вздовж стелі та вертикальних ліній стін “розмиває” межі, та візуально піднімає висоту кімнати.
4. Лінії і форми
Поєднані чіткі лінії з м'якими, округлими формами. Меблеві фасади, декоративні панелі, диван, кухонний гарнітур мають чіткі форми. Щоб пом'якшити простір та додати елементів затишку на об'єкті були використані: декоративна “мазанка” з тематичними візерунками, молдинги на дверях та дзеркала з закругленими кутами, освітлювальні прилади з круглими плафонами, крісла в більш м’яких формах.
Поєднані чіткі лінії з м'якими, округлими формами. Меблеві фасади, декоративні панелі, диван, кухонний гарнітур мають чіткі форми. Щоб пом'якшити простір та додати елементів затишку на об'єкті були використані: декоративна “мазанка” з тематичними візерунками, молдинги на дверях та дзеркала з закругленими кутами, освітлювальні прилади з круглими плафонами, крісла в більш м’яких формах.
5. Меблі
Велика увага приділена зонам зберігання та раціональному використанню площі. Зона на лоджії з подіумом — рішення “два в одному”. Зверху було створене затишне місце для читання чи споглядання міста. Всередині подіуму ховаються місткі ящики для зберігання сезонних речей, що критично важливо для квартир у ЖК.
Гардеробна — додаткові місце для зберігання, яке суттєво розвантажує простір. В невеликій коморі вдалося вздовж всіх трьох стін створити зручні ніші, системи зберігання, вішаки. Навіть пральна та сушильна машини вбудовані тут. Вся техніка та інвентар для дотримання чистоти сховано за дверми гардеробної.
Розроблені під замовлення корпусні меблі — вдале рішення, яке дозволило розмістити всі речі, взуття, аксесуари.
Велика увага приділена зонам зберігання та раціональному використанню площі. Зона на лоджії з подіумом — рішення “два в одному”. Зверху було створене затишне місце для читання чи споглядання міста. Всередині подіуму ховаються місткі ящики для зберігання сезонних речей, що критично важливо для квартир у ЖК.
Гардеробна — додаткові місце для зберігання, яке суттєво розвантажує простір. В невеликій коморі вдалося вздовж всіх трьох стін створити зручні ніші, системи зберігання, вішаки. Навіть пральна та сушильна машини вбудовані тут. Вся техніка та інвентар для дотримання чистоти сховано за дверми гардеробної.
Розроблені під замовлення корпусні меблі — вдале рішення, яке дозволило розмістити всі речі, взуття, аксесуари.
6. Атмосфера та зонування
Інтер'єр виглядає дуже світлим та "повітряним". Кожна зона: від передпокою з дзеркалом-аркою до дитячої кімнати з грайливим килимом — витримана в єдиному стилі. Використання рейкових перегородок додає ритму та допомагає зонувати простір, не захаращуючи його.
Такі вертикалі “витягують” приміщення вгору. Рейки пропускають світло та повітря. При цьому чітко зонують кімнату, не створюючи відчуття глухої стіни.
Інтер'єр виглядає дуже світлим та "повітряним". Кожна зона: від передпокою з дзеркалом-аркою до дитячої кімнати з грайливим килимом — витримана в єдиному стилі. Використання рейкових перегородок додає ритму та допомагає зонувати простір, не захаращуючи його.
Такі вертикалі “витягують” приміщення вгору. Рейки пропускають світло та повітря. При цьому чітко зонують кімнату, не створюючи відчуття глухої стіни.
Інтер'єр квартири в ЖК Okland ідеально підійде для тих, хто цінує культурну ідентичність, але надає перевагу комфорту та естетиці сучасного мінімалізму. Наші дизайнери вміють створювати теплі, екологічні та сповнені змістів простри. При цьому дотримуються правил ергономіки та досягають максимальної функціональності квартир. Якщо ви прагнете втілення ваших побажань в оформленні житла та дійсно ефективних рішень, інтер’єрна агенція Бєлік допоможе досягти цієї мети.
Подивіться нашу презентацію