ІНТЕР’ЄР 1 КІМНАТНОЇ КВАРТИРИ У ЖК СИРЕЦЬКІ САДИ У КИЄВІ
Інтер'єр 1 кімнатної квартири ЖК Сирецькі Сади
Облаштування однокімнатного житла для родити або особисто для себе може пройти двома шляхами. Перший, банальний - це коли ви просто робите ремонт за стандартом. Розставляєте по кутках меблі, винаймаєте перших ліпших ремонтників, намагаєтеся вмістити все в невеликому просторі та відмовляєтесь від більшості сучасних рішень.
Відмова відбувається не через бажання мешкати у зручній та сучасній оселі, а саме через брак місця та нерозуміння, як то все зробити. В результаті ви отримуєте:
- не зовсім затишний простір, в якому не вистачатиме місця або все буде тиснути;
- посередині планувальні рішення, з незручними нішами, стінами, перегородками;
- відсутність індивідуальності в інтер'єрі, адже доведеться робити все можливе, щоб досягти хоч якоїсь функціональності;
- не промірковані ремонтні роботи з наявністю помилок;
- дизайн, який скоріш за все набридне через пару років, адже він не буде покращувати рівень життя та не відображуватиме особисто вашу індивідуальність.
Другий шлях є більш прагматичним та результативним. Виділивши трошки коштів на старті у розробку дизайн проекту, ви отримаєте спланований до дрібниць ремонт та інтер'єр. Це не буде дизайн однокімнатної квартири “за методичкою”. Ви отримаєте персоналізований, унікальний та відповідаючий вашим потребам інтер'єр 1 кімнатної квартири. Саме таке житло, в якому буде розміщено все необхідне. При цьому лишиться вдосталь місця для занять хобі, праці, відпочинку.
Сьогодні навіть у квартирі з однією кімнатою, в обмеженнях за площею та бюджетом можна створити дійсно затишний простір. Дизайнер інтер'єрів, зважаючи на свій досвід та знання, робить все можливе для досягнення поставленої мети. Вам лишається лише обговорити умови співпраці, надати доступ на об'єкт або технічні плани квартири, заповнити анкету клієнта та підписати договір.
Компанія дизайн інтер'єрів Бєлік розробляє проектну документацію та реалізує її на професійному рівні. Наші інтер'єри можуть відрізнятися обсягами робіт, складністю реалізації, бюджетом, ідею, кольорами. Але кожний створений командою компанії інтер'єрів Бєлік дизайн є унікальним, персоналізованим, ергономічним. В таких просторах комфортно та зручно жити. Всі рішення направлені на покращення рівня життя, створення максимально зручних умов та відображення індивідуальності власників.
Компанія дизайн інтер'єрів Бєлік розробляє проектну документацію та реалізує її на професійному рівні. Наші інтер'єри можуть відрізнятися обсягами робіт, складністю реалізації, бюджетом, ідею, кольорами. Але кожний створений командою компанії інтер'єрів Бєлік дизайн є унікальним, персоналізованим, ергономічним. В таких просторах комфортно та зручно жити. Всі рішення направлені на покращення рівня життя, створення максимально зручних умов та відображення індивідуальності власників.
Впевнитися, що навіть інтер'єр 1 кімнатної квартири реально зробити унікальним можна, подивившись приклади нашої роботи. Цікавим та дуже естетичним слід вважати об’єкт в ЖК Сирецькі Сади, площа якого не перевищує 50 м2.
Особливості оформлення однокімнатної квартири у ЖК Сирецькі Сади
Більш доцільним рішенням є ремонт в однушці в стилі мінімалізм. Це дозволяє приховати більшість предметів, заощадити простір та зробити його максимально функціональним. Але в замовників був трошки інший запит на інтер'єр квартири ЖК Сирецькі Сади. Тому дизайнерами студії Бєлік був розроблений унікальний та персоналізований стиль, в якому гармонійно переплітаються рішення з практичного мінімалізму із затишними акцентами східних направлень.
Розподіл простору, планувальні рішення із відсутністю стіни між вітальнею та кухнею, вдосталь вільного місця, приховані фасади шаф та вбудовані конструкції - це все було взято з мінімалізму. Що стосується вибору колористики, фактур, текстилю, декору, освітлення? Тонкою ниттю тут переплітаються японські мотиви.
Виглядає інтер'єр 1 кімнатної квартири в ЖК Сирецькі Сади по-особливому, завдяки присутності матових та дерев’яних фактур. Насичений колір індиго стає не просто акцентим, а є базою (нарівні із сірими, бежевими та кольорами світлого дерева). Синя оббивка меблів (диван, м’які крісла, пуфи) з якісних тканин, декоративні подушки, постільна білизна, предмети декору, фасади корпусних меблів, елементи шаф та навіть окремі частини стін - все це оформлено в єдиній колірній палітрі. Це не просто схожі кольори, а єдиний відтінок, який обирався дизайнером інтер'єрів дуже ретельно. Зустрічається він у кожній із кімнат - починаючи з передпокою та завершуючи ванною кімнатою, лоджією.
Виглядає інтер'єр 1 кімнатної квартири в ЖК Сирецькі Сади по-особливому, завдяки присутності матових та дерев’яних фактур. Насичений колір індиго стає не просто акцентим, а є базою (нарівні із сірими, бежевими та кольорами світлого дерева). Синя оббивка меблів (диван, м’які крісла, пуфи) з якісних тканин, декоративні подушки, постільна білизна, предмети декору, фасади корпусних меблів, елементи шаф та навіть окремі частини стін - все це оформлено в єдиній колірній палітрі. Це не просто схожі кольори, а єдиний відтінок, який обирався дизайнером інтер'єрів дуже ретельно. Зустрічається він у кожній із кімнат - починаючи з передпокою та завершуючи ванною кімнатою, лоджією.
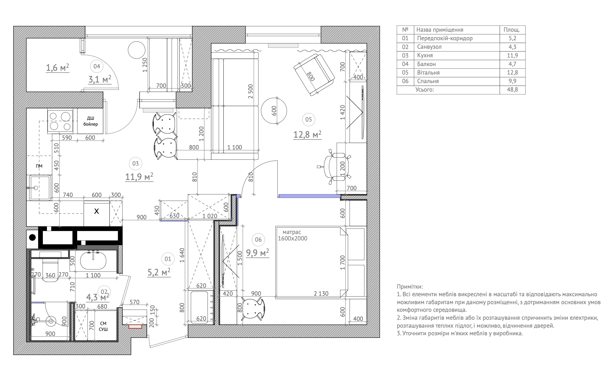
Інтер’єр цієї однушки виглядає як єдина, цілісна композиція. В який би частині об'єкта ти не знаходився. При цьому, кожна кімната у квартирі виконує свої головні функції. В спальні присутнє зручне двомісне ліжко, зона для перегляду ТВ, місце для роботи (невеликий стіл) та окремий вихід у гардеробну. Щоб додати сучасності та цікавого акценту, гардероб тут відділено скляними перегородками. Сама спальня також відділена від загальної кімнати-студії за допомогою скляних конструкції.
Головна кімната (кухня-вітальня) тут має не стандартну форму. Це не просторе квадратне або прямокутне приміщення. Тут є перехід між двома окремими кімнатами, де повинна б була бути стіна. Робітники Бєлік відмовилися від неї на користь кількох вільних м2. Цей додатковий простір вдалося використати для розміщення обіднього столу та більшого дивану. Також вдалося розмістити додаткову шафу для зберігання речей, декору, інвентарю. Всі корпусні меблі виконані майже непомітно, в ідентичних зі стінами фактурах та кольорах. Тому вони не впадають в очі та не тиснуть.
Головна кімната (кухня-вітальня) тут має не стандартну форму. Це не просторе квадратне або прямокутне приміщення. Тут є перехід між двома окремими кімнатами, де повинна б була бути стіна. Робітники Бєлік відмовилися від неї на користь кількох вільних м2. Цей додатковий простір вдалося використати для розміщення обіднього столу та більшого дивану. Також вдалося розмістити додаткову шафу для зберігання речей, декору, інвентарю. Всі корпусні меблі виконані майже непомітно, в ідентичних зі стінами фактурах та кольорах. Тому вони не впадають в очі та не тиснуть.
Кожний предмет в інтер'єрі 1 кімнатної квартири ЖК Сирецькі Сади підібрано дуже тонко. Вази незвичних форм та відповідних кольорів, аналогічні освітлювальні прилади, годинник та цікаві предмети декору роблять цю квартиру максимально естетичною. При цьому, кожна річ виконує певну функцію, а всі рішення лишаються доцільними. Ремонт в цій квартирі варто вважати дуже функціональним.
Не виникає жодних незручностей під час користування приладами та всіма предметами, кожна річ знаходиться на правильному місці. Процес пересування кімнатами та прибирання також не доставляє проблем.
Не виникає жодних незручностей під час користування приладами та всіма предметами, кожна річ знаходиться на правильному місці. Процес пересування кімнатами та прибирання також не доставляє проблем.
Спланувати не лише візуал вашої однокімнатної квартири, а й весь ремонтний процес на професійному рівні, можуть співробітники компанії інтер'єрів Бєлік. Всі рішення відображаються у проєктний документації в повному обсязі (з 3Д візуалізаціями, схемами, планами, розрахунками). Ви можете надихнутися прикладом одного з наших об'єктів, взяти за базу певні рішення або тримати зовсім нові ідеї в оформленні. Кожний наш інтер'єр розробляється з урахуванням індивідуальних побажань та стиля життя замовника, потреб майбутніх мешканців, бюджету та певних особливостей об'єкта. Однотипні та ідентичні інтер'єри в студії дизайну Бєлік відсутні. Наші дизайни квартир, як і їх власники, унікальні та особливі.
Плануючи подібні об’єкти, замовників закономірно цікавлять ціни на дизайн проект. У випадку з однокімнатною квартирою саме проєктна документація дозволяє максимально ефективно використати кожен квадратний метр, уникнути помилок під час ремонту та зафіксувати всі рішення ще до початку робіт. Завдяки цьому бюджет стає прогнозованим, а кінцевий результат — повністю відповідним очікуванням. Детальніше з формуванням бюджету можна ознайомитися тут: ціни на дизайн проект.
Не менш важливим етапом є ремонт квартир у новобудові, адже такі об’єкти потребують комплексного підходу — від планування комунікацій до вибору матеріалів і меблів. Квартира в ЖК Сирецькі Сади є прикладом того, як завдяки чіткій проєктній документації навіть складні планувальні рішення реалізуються без втрати комфорту та функціональності. ремонт квартир у новобудові у поєднанні з професійним дизайном дозволяє отримати готове житло без необхідності переробок.
Не менш важливим етапом є ремонт квартир у новобудові, адже такі об’єкти потребують комплексного підходу — від планування комунікацій до вибору матеріалів і меблів. Квартира в ЖК Сирецькі Сади є прикладом того, як завдяки чіткій проєктній документації навіть складні планувальні рішення реалізуються без втрати комфорту та функціональності. ремонт квартир у новобудові у поєднанні з професійним дизайном дозволяє отримати готове житло без необхідності переробок.
Реалізувати подібні інтер’єри можуть лише досвідчені студії дизайну інтер’єру, які працюють не за шаблонами, а з реальними просторами та сценаріями життя. Команда Бєлік створює проєкти, де естетика завжди поєднується з ергономікою, а кожне рішення має практичне обґрунтування. студії дизайну інтер’єру Бєлік мають досвід роботи як з компактними квартирами, так і з масштабними об’єктами.
Варто зазначити, що підхід, використаний в цьому проєкті, актуальний не лише для квартир. Внутрішній дизайн інтер’єру приватного будинку також потребує продуманого зонування, балансу стилю та функціональності, а також детального проєктування. Саме універсальність підходу дозволяє дизайнерам адаптувати рішення під будь-який формат житла. внутрішній дизайн інтер’єру приватного будинку реалізується з тією ж увагою до деталей, що й квартирні проєкти.
Варто зазначити, що підхід, використаний в цьому проєкті, актуальний не лише для квартир. Внутрішній дизайн інтер’єру приватного будинку також потребує продуманого зонування, балансу стилю та функціональності, а також детального проєктування. Саме універсальність підходу дозволяє дизайнерам адаптувати рішення під будь-який формат житла. внутрішній дизайн інтер’єру приватного будинку реалізується з тією ж увагою до деталей, що й квартирні проєкти.
Для тих, хто хоче отримати комплексний результат без залучення кількох підрядників, оптимальним рішенням стає дизайн інтер’єру ремонт. Такий формат роботи дозволяє контролювати якість, строки та відповідність реалізації затвердженим візуалізаціям. На виході замовник отримує повністю готовий простір, у який можна одразу заїжджати та жити. дизайн інтер’єру ремонт — це зручний, прозорий та прогнозований шлях до ідеального житла.
Подивіться нашу презентацію