СУЧАСНІ СТИЛІ ІНТЕР’ЄРУ КВАРТИРИ В ЖК WELLSPRING У М. ВИШНЕВЕ
• Локація - ЖК Wellspring у м. Вишневе, Україна
• Площа квартири – 72,8 м²
• Формат роботи – дизайн проєкт інтер'єру
• Площа квартири – 72,8 м²
• Формат роботи – дизайн проєкт інтер'єру
Сьогодні більшість людей віддають перевагу інтер'єрам “для життя”. Дизайнам, де кожний квадратний сантиметр працює. Такі простори не про читкі стандарти та однаковість. Їх роблять максимально підлаштованими під побут власників оселі, їх інтереси та стиль життя.
Знайти виконавців, які створюють сучасні стилі інтер'єру квартири сьогодні доволі складно. Особливо, якщо потрібна студія дизайну інтер єру Польща. Адже в цій країні можуть виникнути перепони у вигляді нерозуміння мови, потреб клієнтів, неорієнтовності на індивідуальні потреби та побажання замовників.
Знайти виконавців, які створюють сучасні стилі інтер'єру квартири сьогодні доволі складно. Особливо, якщо потрібна студія дизайну інтер єру Польща. Адже в цій країні можуть виникнути перепони у вигляді нерозуміння мови, потреб клієнтів, неорієнтовності на індивідуальні потреби та побажання замовників.
Студія інтер'єру Бєлік — це компанія, яка створює затишні та персоналізовані простори для об'єктів зі всього світу. Замовити детальний дизайн проект, який стане інструкцією вашого майбутнього ремонту та інтер'єру в онлайн форматі, можна з будь-якого міста. Якщо ви прагнете реалізації дизайну “під ключ” — наша дизайн студія інтер єру у Варшаві, Гданську, Кракові та інших містах надасть цю послугу. Діяльність агенції Бєлік вийшла за межі України, створивши перевірену команду фахівців в Польщі.
Замовити ви можете розробку та реалізацію проекта для об’єкта будь-якої складності. Всі наші сучасні стилі інтер'єру квартири персоналізовані, функціональні, промірковані та орієнтовані на побут замовників. За бажання клієнтів, ми можемо органічно вплести акценти з еко, етно, арт-деко, класики, лофту чи іншого направлення. Створити унікальну атмосферу, яка не набридне через кілька років.
Замовити ви можете розробку та реалізацію проекта для об’єкта будь-якої складності. Всі наші сучасні стилі інтер'єру квартири персоналізовані, функціональні, промірковані та орієнтовані на побут замовників. За бажання клієнтів, ми можемо органічно вплести акценти з еко, етно, арт-деко, класики, лофту чи іншого направлення. Створити унікальну атмосферу, яка не набридне через кілька років.
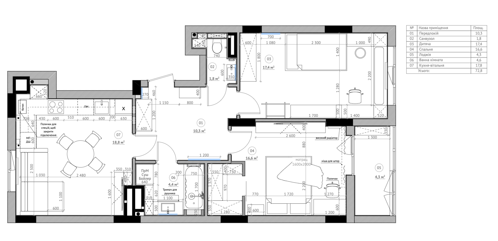
Ми маємо багато прикладів, де втілені не схожі між собою сучасні стилі інтер'єру квартири. Варіантом практичності, функціоналізму та стриманості варто вважати оформлення квартири в ЖК Wellspring у м. Вишневе.
Об'єкт на 70 м2 розраховано на родину із дитиною, що є доволі розповсюдженим запитом серед клієнтів. Подивившись цікаві “фішки” в оформленні, ефективні планувальні рішення, варіанти поєднання фактур та впровадження інновацій можна визначитися для себе з певними рішеннями. Отримати корисні підказки, що реально працюють та роблять життя простішим.
Об'єкт на 70 м2 розраховано на родину із дитиною, що є доволі розповсюдженим запитом серед клієнтів. Подивившись цікаві “фішки” в оформленні, ефективні планувальні рішення, варіанти поєднання фактур та впровадження інновацій можна визначитися для себе з певними рішеннями. Отримати корисні підказки, що реально працюють та роблять життя простішим.
Квартира в ЖК Wellspring у м. Вишневе — ефективні рішення в оформленні
Майже всі сучасні стилі інтер'єру квартири виглядають дорого саме завдяки якості текстур, а не надмірному декору. Плануючи простір цього об'єкта наш дизайнер дотримувався цієї ідеї.
Інтер'єр на об’єкті ЖК Wellspring у м. Вишневе багатий на приховані деталі, які створюють відчуття “дорогого мінімалізму”. Орієнтований простір на функціональність, спокійну кольорову гаму та використання натуральних текстур.
1. Планування та зонування
Це сучасна квартира з чітким розділенням на загальну та приватну зони:
- оpen space (кухня-вітальня) — об'єднаний простір, де обідній стіл виступає візуальним центром, а меблі з оздобленням є частиною єдиної концепції;
- приватні зони (окремі спальня та дитяча кімната) — обладнані всіма необхідними меблями, з використанням прихованих систем зберігання та інтегрованих меблів.
2. Стиль та палітра
В основі лежить монохромна база. Це відтінки сірого, бежевого (greige) та пісочного. Контраст створюється за допомогою глибокого кольору темного дерева та чорних акцентів (змішувачі, ніжки стільців, трекове освітлення).
В інтер’єрі використано багато фактур дерева. Дерево є на підлозі, шпонованих панелях на стінах, елементах меблів та декорі. Розводять природну колористику матові фасади меблів, текстиль з вираженою фактурою (рогожка, льон).
Основний секрет цього дизайну — не колір, а різноманітність поверхонь:
В основі лежить монохромна база. Це відтінки сірого, бежевого (greige) та пісочного. Контраст створюється за допомогою глибокого кольору темного дерева та чорних акцентів (змішувачі, ніжки стільців, трекове освітлення).
В інтер’єрі використано багато фактур дерева. Дерево є на підлозі, шпонованих панелях на стінах, елементах меблів та декорі. Розводять природну колористику матові фасади меблів, текстиль з вираженою фактурою (рогожка, льон).
Основний секрет цього дизайну — не колір, а різноманітність поверхонь:
- вертикальне фрезерування (рейки) — використано на стіні за телевізором та в узголів’ї ліжка;
- текстильні панелі — у спальні частина стіни оздоблена м’якими панелями;
- поєднання дерева та “бетону” — контраст між теплим шпоном дерева та холодним каменем або керамогранітом на кухні, у ванній;
- різний текстиль — поєднання гладких штор, грубої рогожки на дивані та ворсистого килима.
3. Меблі та декор
В обідній зоні розташовано масивний дерев'яний стіл на циліндричних ніжках та стільці з вигнутими спинками. Саме ця частина приміщення виступає якірним елементом простору. Поділяє кімнати на функціональні зони для:
Декором на об'єкті виступають не окремі статуетки та непотрібні елементи. Вважаючи певну обмеженість площі, дизайнер вирішив використати освітлення в якості декору. Великі підвісні світильники над столом нагадують паперові ліхтарі. Магнітні трекові системи на стелі роблять світло спрямованим.
В дитячій та спільні використані елементи декорування в оздобленні. Дитяча виконана у більш ніжних, пудрових тонах з використанням шпалер з акварельними деревами. Це додає казковості, не порушуючи загальну естетику квартири.
Спальня має більш структуроване та стримане оформлення. Цікавими декоративними елементами виступають дерев’яні панелі, якісний текстиль.
Затишку та комфорту додають правильно підібрані акценти. Перевагу надали мінімалістичним вазам з сухоцвітами, дзеркалам з контурним підсвічуванням та "парящим" тумбам.
В обідній зоні розташовано масивний дерев'яний стіл на циліндричних ніжках та стільці з вигнутими спинками. Саме ця частина приміщення виступає якірним елементом простору. Поділяє кімнати на функціональні зони для:
- приготування їжі (кухня);
- приймання їжі (столова);
- відпочинку (вітальня).
Декором на об'єкті виступають не окремі статуетки та непотрібні елементи. Вважаючи певну обмеженість площі, дизайнер вирішив використати освітлення в якості декору. Великі підвісні світильники над столом нагадують паперові ліхтарі. Магнітні трекові системи на стелі роблять світло спрямованим.
В дитячій та спільні використані елементи декорування в оздобленні. Дитяча виконана у більш ніжних, пудрових тонах з використанням шпалер з акварельними деревами. Це додає казковості, не порушуючи загальну естетику квартири.
Спальня має більш структуроване та стримане оформлення. Цікавими декоративними елементами виступають дерев’яні панелі, якісний текстиль.
Затишку та комфорту додають правильно підібрані акценти. Перевагу надали мінімалістичним вазам з сухоцвітами, дзеркалам з контурним підсвічуванням та "парящим" тумбам.
4. Інновації та розумні рішення
Освітлення тут відіграє важливу роль. Воно не лише виступає, як елемент декор, але й впливає на всю атмосферу у квартирі. Були використані різні світлові сценарії:
Двері прихованого монтажу, які зливаються зі стінами, візуально розширюють простір.
Компактне розміщення пральної та сушильної машин у вертикальній колоні. Інтегрована в меблеву шафу техніка — ідеальне рішення, яке позитивно впливає на всю ергономіку у квартирі.
Саме тому корпусні меблі для вітальні, спальні, дитячої, кухні-вітальні були виконані “під замовлення”. Такий хід дозволив підібрати однакові фактури, системи, стилістику оформлення. Створили цілі меблеві групи, які або зовсім не виділяються з загального простору, або виглядають як цікавий акцент у приміщенні.
Освітлення тут відіграє важливу роль. Воно не лише виступає, як елемент декор, але й впливає на всю атмосферу у квартирі. Були використані різні світлові сценарії:
- основне (треки);
- декоративне (бра, підсвітка дзеркал);
- робоче (підсвітка стільниці на кухні).
Двері прихованого монтажу, які зливаються зі стінами, візуально розширюють простір.
Компактне розміщення пральної та сушильної машин у вертикальній колоні. Інтегрована в меблеву шафу техніка — ідеальне рішення, яке позитивно впливає на всю ергономіку у квартирі.
Саме тому корпусні меблі для вітальні, спальні, дитячої, кухні-вітальні були виконані “під замовлення”. Такий хід дозволив підібрати однакові фактури, системи, стилістику оформлення. Створили цілі меблеві групи, які або зовсім не виділяються з загального простору, або виглядають як цікавий акцент у приміщенні.
Консольна тумба під ТБ та стільниця у ванній кімнаті не торкаються підлоги. Це візуально полегшує простір і значно спрощує прибирання (ідеально для робота-пилососа).
У зоні столової розміщено стіл, який має циліндричні опори. Масивні круглі ніжки роблять його архітектурним об'єктом, а не просто функціональною річчю.
Варто зазначити, що у квартирі дотримана спадковість форм. Тобто, округлість ніжок столу перегукується з вигинами спинок стільців та сферичними світильниками. Це створює цілісність інтер'єру.
У зоні столової розміщено стіл, який має циліндричні опори. Масивні круглі ніжки роблять його архітектурним об'єктом, а не просто функціональною річчю.
Варто зазначити, що у квартирі дотримана спадковість форм. Тобто, округлість ніжок столу перегукується з вигинами спинок стільців та сферичними світильниками. Це створює цілісність інтер'єру.
У дитячій кімнаті дизайнер вирішив перетворити підвіконня на повноцінну зону відпочинку (з м’якими подушками та місцями для зберігання знизу).
Створені в нашій студії Бєлік сучасні стилі інтер'єру квартири лишаються оптимальними протягом десятиріч. Ми працюємо не лише в межах України. Якщо ви знаходитеся в Польщі, наша студія дизайну інтер єру у Гданську чи Варшаві надасть послуги на вищому професійному рівні та з гарантіями якості.
Створені в нашій студії Бєлік сучасні стилі інтер'єру квартири лишаються оптимальними протягом десятиріч. Ми працюємо не лише в межах України. Якщо ви знаходитеся в Польщі, наша студія дизайну інтер єру у Гданську чи Варшаві надасть послуги на вищому професійному рівні та з гарантіями якості.
Подивіться нашу презентацію