СУЧАСНИЙ ДИЗАЙН КВАРТИРИ У ВАРШАВІ У ПОЛЬЩІ
Сучасний дизайн квартири у Варшаві від студії інтер'єрів Бєлік
Проживаючи або плануючи перебратися до Європи, більшість людей активно починають розмірковувати над власним житлом. Квартира або будинок, незалежно від типу нерухомості, її потрібно правильно оформити. Для наших людей особливо складно призвичаїтися під житло європейського типу.
Замість того щоб стикатися з негативом та невдоволенням в себе вдома, вони вирішують підлаштувати дизайн під власні потреби. Зробити його функціональним, звичним та затишним для себе (своєї родини). Для цього достатньо звернутися до компетентного в цій галузі дизайнеру інтер'єрів та замовити послугу розробки проекту. Саме через схеми, плани, 3Д візуалізації та технічну документацію він пропише шлях переоблаштування житла в Європі.
Замість того щоб стикатися з негативом та невдоволенням в себе вдома, вони вирішують підлаштувати дизайн під власні потреби. Зробити його функціональним, звичним та затишним для себе (своєї родини). Для цього достатньо звернутися до компетентного в цій галузі дизайнеру інтер'єрів та замовити послугу розробки проекту. Саме через схеми, плани, 3Д візуалізації та технічну документацію він пропише шлях переоблаштування житла в Європі.
Актуальним для українців став сучасний дизайн квартири у Польщі, який виконує інтер'єрна компанія Бєлік. Ми маємо багато прикладів проектування інтер'єру та планування ремонтів для об'єктів в інших країнах. Всі наші ідеї реалізуються на 100%, якщо довірити це перевіреним ремонтно-будівельним бригадам. Головна мета під час планування дизайну квартири в Європі полягає в створенні умов, звичних замовникам.
За необхідності робляться:
За необхідності робляться:
- перепланування об’єкта;
- зміцнюються та заново проводяться всі комунікації;
- досягається максимальна функціональність та зручність використання простору;
- впроваджуються ефективні тенденції та цікаві інновації;
- створюється сучасний, гармонійний та естетичний візуал інтер'єра.
Всі роботи виконують співробітники компанії інтер'єрів Бєлік на базі технічних планів житла від забудовників та реальних обмірів виконроба (будівельників). Такий підхід гарантує максимальну точність та відповідність ідей, що позбавляє від розчарувань під час реалізації проектної документації.
Цікавим прикладом того, як можна спланувати та реалізувати сучасний дизайн квартири у Варшаві представлено в портфоліо нашої компанії. Кожне рішення тут орієнтовано на індивідуальні потреби, можливості та побажання замовників. Також ідеї підлаштовувалися під особливості об’єкта, досягалися компроміси та знаходились кращі альтернативи.
Цікавим прикладом того, як можна спланувати та реалізувати сучасний дизайн квартири у Варшаві представлено в портфоліо нашої компанії. Кожне рішення тут орієнтовано на індивідуальні потреби, можливості та побажання замовників. Також ідеї підлаштовувалися під особливості об’єкта, досягалися компроміси та знаходились кращі альтернативи.
Сучасний дизайн квартири у Польщі - цікаві ідеї та рішення на об'єкті
Сучасний дизайн квартири у Варшаві, як і в інших містах країни, підлаштовувався саме під потреби та звичний рівень комфорту замовників. Студія дизайн інтер'єрів Бєлік створює інновації, зручні та сімейні простори. Ті, в яких комфортно знаходитися тривалий час та які характеризуються максимальною ергономічністю.
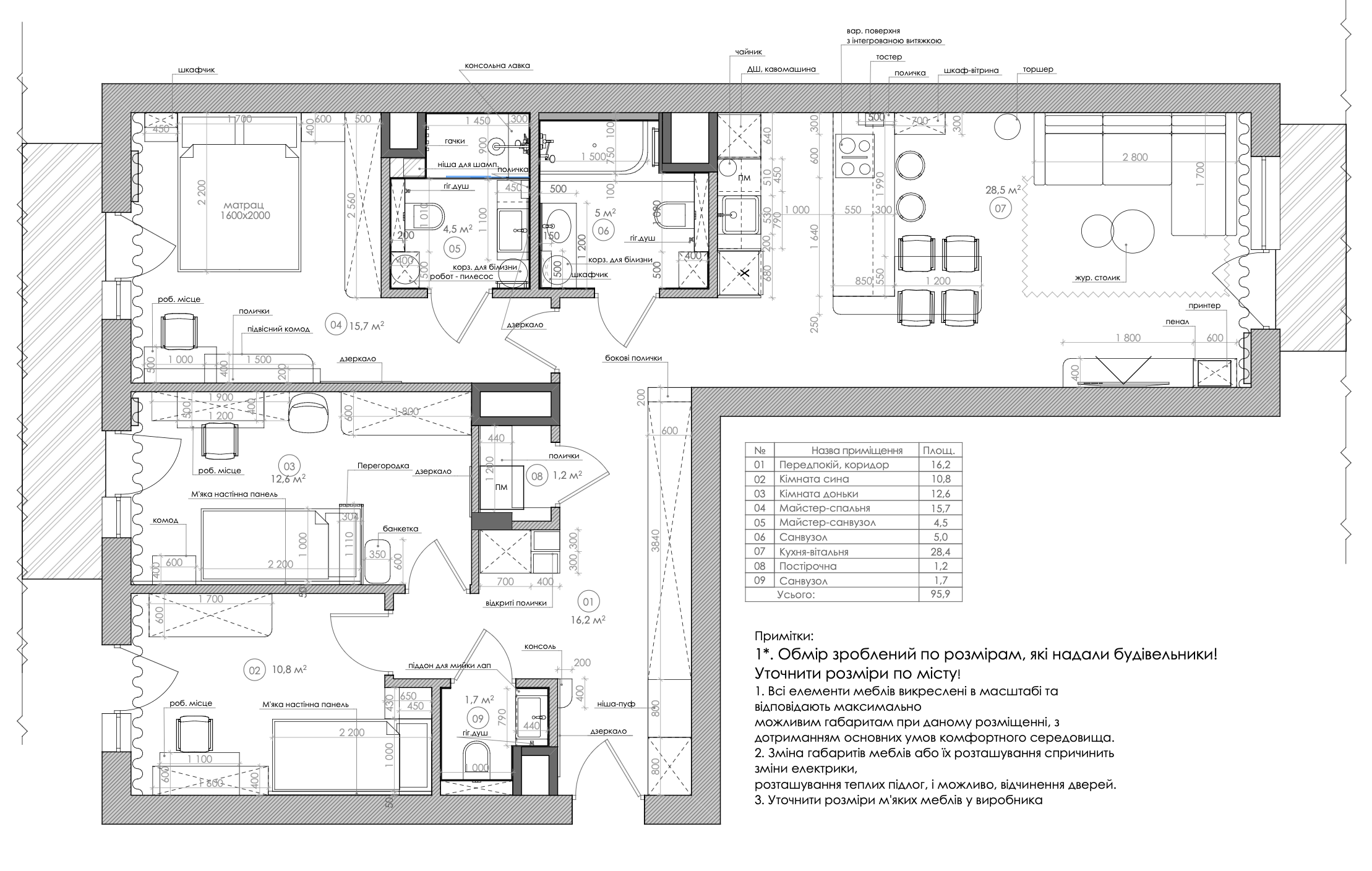
Замість того, щоб намагатися впровадити якийсь один стиль, дизайнери інтер’єрів створюють персоналізовані та покращуючи рівень життя простори. Цей об’єкт мав вдосталь місця (95 м2), що дозволило запровадити багато сміливих та ефективних ідей.
Планування тут лишили вільним у кухні-вітальній. Зона кухні досить невелика, тому окрім меблів вздовж стіни було прийняте рішення зробити додатково острів. Це меблі під замовлення, адже крім місця для монтажу індукційної плити та полиць для зберігання кухонного інвентарю, в зоні острову вирішили додати місце для приймання їжі. Беручи до уваги факт, що родина велика, просто оформити одну сторону острова, як барну стійку - не вийде.
Дизайнери знайшли вихід та разом із майстрами спроектували зручні меблі. Острів тут виступає додатковим місцем для приготування їжі, зберігання продуктів. З іншої сторони є місце для сидіння. В цю конструкцію вбудовано дерев'яний стіл, який додає ще чотири посадових місця. Стіл є продовженням острову. Меблі мають кутову форму. Тут вдало переплітаються фактури каменю, з якого зроблена стільниця з матовими фасадами меблів та дерев’яними фактурами стола. Виглядає це максимально естетично та ефектно. Створили вдосталь місця, шо забезпечило зручність використання простору.
Дизайнери знайшли вихід та разом із майстрами спроектували зручні меблі. Острів тут виступає додатковим місцем для приготування їжі, зберігання продуктів. З іншої сторони є місце для сидіння. В цю конструкцію вбудовано дерев'яний стіл, який додає ще чотири посадових місця. Стіл є продовженням острову. Меблі мають кутову форму. Тут вдало переплітаються фактури каменю, з якого зроблена стільниця з матовими фасадами меблів та дерев’яними фактурами стола. Виглядає це максимально естетично та ефектно. Створили вдосталь місця, шо забезпечило зручність використання простору.
Сам кухонний гарнітур займає небагато місця, вздовж короткої стіни. В ньому вдалося вбудувати всю необхідну техніку, додати вдосталь полиць для зберігання. Для посуду окремо було спроектовано сервант зі скляними дверцятами, що зробило його акцентом елементом в інтер’єрі. Самі фасади гарнітура виконані з того ж матеріалу, що обідній стіл.
Дерев’яні фактури (крім меблів) також зустрічаються в оздобленні підлоги, декоруванні частини стін. Були підібрати відповідні натуральним дерев'яним кольорам декоративні подушки та штори.
Дерев’яні фактури (крім меблів) також зустрічаються в оздобленні підлоги, декоруванні частини стін. Були підібрати відповідні натуральним дерев'яним кольорам декоративні подушки та штори.
Насичені природні відтінки чудо відтіняють в цій кімнаті світлі кольори. В них виконані: обшивка м'яких меблів, оздоблення більшості стін, стелі, частини підлоги, елементи фасадів корпусних меблів, обрані вази різних форм та дизайну, предмети живопису. Тобто базові фактури та кольори дерева, плавно переплітаються з матовою світлою колористикою по всій квартирі.
Зона вітальні йде відразу після столу та повністю виконує свій функціонал. Цей сучасний дизайн квартири у Польщі має багато різнорівневого освітлення. Заплановані тут вбудовані світильники, трекові системи, підсвічування серванта та робочої поверхні світлодіодними стрічками, візуально грані настінні та стельові прилади. Всі ці елементи в купі дозволять підлаштовувати освітлення під себе, візуально роблять інтер'єр цікавішим.
Зона вітальні йде відразу після столу та повністю виконує свій функціонал. Цей сучасний дизайн квартири у Польщі має багато різнорівневого освітлення. Заплановані тут вбудовані світильники, трекові системи, підсвічування серванта та робочої поверхні світлодіодними стрічками, візуально грані настінні та стельові прилади. Всі ці елементи в купі дозволять підлаштовувати освітлення під себе, візуально роблять інтер'єр цікавішим.
Така сама концепція зберігається при облаштуванні всіх інших кімнат квартири. Цей об’єкт розраховано на велику родину із дітьми, тому до облаштування дитячої було запроваджено персональний підхід. До уваги були взяти:
Інтер'єр дитячих кімнат відповідає загальній ідеї, але виконаний з орієнтованістю на майбутніх мешканців. В таких приміщеннях їм комфортно знаходитися тривалий час: навчатися, грати, відпочивати, розвиватися.
- вік дитини;
- стать;
- хобі;
- індивідуальні уподобання по кольорах, декоруванню, вибору певних меблів.
Інтер'єр дитячих кімнат відповідає загальній ідеї, але виконаний з орієнтованістю на майбутніх мешканців. В таких приміщеннях їм комфортно знаходитися тривалий час: навчатися, грати, відпочивати, розвиватися.
У квартирі передбачено три санвузли та пральня. Була підібрана якісна сантехніка, спроєктоване зручне розставляння всіх елементів, проведення та приховування комунікацій. Ви побачите тільки гарний результат. Це крани прихованого монтажу, полиці в стіні, інсталяції, стільниці та полиці в том з оздобленням стін та підлог. Всі матеріали обиралися максимально ретельно, з орієнтованістю на високі показникі якості та влагостійкості.
Щодо місць для зберігання?
По всій квартирі присутнього багато вбудованих та звичайних шаф. Перші виконані максимально непомітно, мають фасади в один колір зі стінами. Це створює ефект цілісності та не виділяє меблі з загальної композиції.
Щодо місць для зберігання?
По всій квартирі присутнього багато вбудованих та звичайних шаф. Перші виконані максимально непомітно, мають фасади в один колір зі стінами. Це створює ефект цілісності та не виділяє меблі з загальної композиції.
Окремі шафи мають відкриті полиці для зберігання декору та книг, певних предметів інтер'єру. Інші частини шаф (двері, корпус) мають відповідні до оздоблення фасади. Передбачені також зручні системи відчинення дверцят:
- частіше без ручок;
- з врізними у двері ручками;
- з автоматизованими системами відчиненням (від натискання).
Дивлячись на те, що сучасний дизайн квартири у Варшаві реалізовувався самостійно замовниками, фахівці інтер'єр компанії Бєлік подбали про їх комфорт. Всі оздоблювальні матеріали, меблі, освітлювальні прилади, декор, текстиль обиралися з каталогів реальних виробників (постачальників). Не доводилося шукати вигадану люстру або підбирати щось схоже на зазначену у 3Д візуалізаціях плитку. Всі позиції реальні та знаходияься у продажу, тому їх можна замовити з доставленням. Крім візуала, товари підбираються відповідно до бюджету замовника (був оговорений на старті робіт). Тому реалізація не дуже вдарить по кишенях, а витрати на ремонт будуть відповідати закладеним у проєкті.
Звернувшись до компанії інтер’єрів Бєлік ви можете замовити та отримати сучасний дизайн квартири у Польщі. Саме той простір, який задовольнятиме ваші потреби та покращуватиме рівень життя. Будуть впроваджені звичні для вас та забезпечуючи комфорт рішення, ефективні тенденції. Досягнута візуальна гармонія та максимальна зручність житла.
Замовляючи проєкт інтер’єру, ви отримуєте детально продуману документацію, яка дозволяє реалізувати сучасний дизайн квартири у Варшаві без хаотичних рішень і зайвих витрат. Саме завдяки кресленням, схемам, 3D-візуалізаціям та технічним планам вдається заздалегідь передбачити всі нюанси європейського житла та адаптувати його під звичний для вас спосіб життя.
Реалізація такого проєкту можлива навіть дистанційно, якщо ремонт у квартирі виконується відповідно до затвердженої документації. Чітка послідовність робіт, підібрані матеріали та зрозумілі технічні рішення значно спрощують процес ремонту й дозволяють уникнути помилок, які часто виникають під час самостійного планування.
Реалізація такого проєкту можлива навіть дистанційно, якщо ремонт у квартирі виконується відповідно до затвердженої документації. Чітка послідовність робіт, підібрані матеріали та зрозумілі технічні рішення значно спрощують процес ремонту й дозволяють уникнути помилок, які часто виникають під час самостійного планування.
Ще на етапі проєктування замовник розуміє, якою буде ремонт квартири під ключ ціна. Це дає можливість зафіксувати бюджет, обрати оптимальні матеріали та уникнути непередбачених витрат у процесі реалізації. Такий підхід особливо актуальний для об’єктів за кордоном, де важливо контролювати кожен етап.
Практика показує, що саме дизайнерський ремонт квартири забезпечує максимальну відповідність готового результату візуалізаціям. Всі рішення, закладені в проєкті, реалізуються без компромісів, а інтер’єр залишається актуальним і зручним у повсякденному житті протягом багатьох років.
Практика показує, що саме дизайнерський ремонт квартири забезпечує максимальну відповідність готового результату візуалізаціям. Всі рішення, закладені в проєкті, реалізуються без компромісів, а інтер’єр залишається актуальним і зручним у повсякденному житті протягом багатьох років.
Звернувшись до студії інтер’єру Бєлік, ви можете замовити сучасний дизайн квартири у Польщі, який буде повністю адаптований під ваші потреби, звички та очікування. Проєкт у Варшаві — наочний приклад того, як професійний підхід, чітке планування та продумані рішення створюють комфортний, функціональний і гармонійний простір навіть далеко від дому.
Подивіться нашу презентацію