ДИЗАЙН БУДИНКУ У СУЧАСНОМУ СТИЛІ В С. БОРОК У ЖИТОМИРСЬКІЙ ОБЛАСТІ
- Локація - с. Борок у Житомирській області, Україна
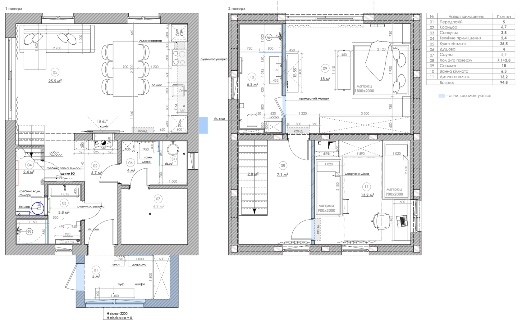
- Площа будинку – 94,8 м²
- Формат роботи – дизайн проєкт інтер'єру
Наявність приватного будинку потребує особливого ставлення до планування інтер'єру та реалізації ремонту. Адже такі забудови мають вдосталь простору для реалізації найсміливіших запитів. Але плануючи використання вільної площі дуже важливо враховувати необхідність розміщення технічних приміщень, правильно спланувати всі комунікації та впровадження інновацій, подбати про зручність пересування, комфорт та затишок.
Недостатньо закупити будівельні матеріали, подивитися приклади з Pinterest та домовитися з майстрами про їх роботу. Буде це дизайн квартири у Варшаві чи оформлення приватного будинку у Києві — в будь-якому випадку необхідно звернутися до компетентних в галузі дизайну інтер'єра фахівців.
Недостатньо закупити будівельні матеріали, подивитися приклади з Pinterest та домовитися з майстрами про їх роботу. Буде це дизайн квартири у Варшаві чи оформлення приватного будинку у Києві — в будь-якому випадку необхідно звернутися до компетентних в галузі дизайну інтер'єра фахівців.
Завдяки розробці проектної документації ви уникнете 99% можливих помилок під час планування дизайну та виконання ремонтних робіт. Отримаєте дійсно бажаний, персоналізований, підлаштований під ваш побут та рівень життя простір. Студія дизайн інтер'єрів Бєлік має досвід зі створення затишних та сучасних просторів.
Потрібен вам дизайнер інтер єру у Гданську чи іншому місті в Польщі? Можете сміливо звертатися до нашої дизайн студії, адже тепер ми надаємо послуги “дизайн під ключ” не лише по Україні. Вже на старті співпраці вас орієнтують стосовно того, якою буде ціна за дизайн проект квартири/будинку. Вона в нас фіксована.
Потрібен вам дизайнер інтер єру у Гданську чи іншому місті в Польщі? Можете сміливо звертатися до нашої дизайн студії, адже тепер ми надаємо послуги “дизайн під ключ” не лише по Україні. Вже на старті співпраці вас орієнтують стосовно того, якою буде ціна за дизайн проект квартири/будинку. Вона в нас фіксована.
Що стосується інтер'єрного оформлення та вибору стиля? Співробітники студії інтер'єрів Бєлік індивідуально підходять до кожного об'єкта, створюючи унікальні та придатні для комфортного життя простори. Подивитися приклади оформлення заміських будинків можна в нашому портфоліо.
Особливе захоплення викликає дизайн будинку у сучасному стилі в с. Борок у Житомирській області. Цей об'єкт є прикладом оформлення будинку у сучасному шале, з елементами мінімалізму. В ньому вільно дихається, ідеально відпочивається наодинці із собою та в компанії друзів. Кожна дрібниця несе сенс та виконує певну функцію. Кожне рішення помірковане для створення комфортних умов проживання.
Особливе захоплення викликає дизайн будинку у сучасному стилі в с. Борок у Житомирській області. Цей об'єкт є прикладом оформлення будинку у сучасному шале, з елементами мінімалізму. В ньому вільно дихається, ідеально відпочивається наодинці із собою та в компанії друзів. Кожна дрібниця несе сенс та виконує певну функцію. Кожне рішення помірковане для створення комфортних умов проживання.
Кращі дизайнерські рішення в будинку с. Борок у Житомирській області
Цей об’єкт на 95 м2 має все необхідне для комфортного проживання великою родиною. У двоповерховому будинку вдало посмітили:
- кухню-вітальню;
- технічне приміщення;
- сауну;
- санвузол;
- душову кімнату;
- ванну;
- дитячу;
- спальню.
З першого погляду на будинок, з'являється відчуття затишку та комфорту. Досягли цієї мети завдяки використанню великої кількості дерева в оздобленні, вибору меблів та декору. Ідеально поєднано природний матеріал з гладкими, сучасними поверхнями. Де це було можливо, системи зберігання та шафи робили прихованими (вбудованими).
Виготовлення меблів під замовлення дозволило створити ідеальну відповідність фасадів до кольору та фактур стін. Використати кожний вільний см для систем зберігання та полиць. Встановити цілі меблеві групи, які виступають частиною єдиної концепції.
Виготовлення меблів під замовлення дозволило створити ідеальну відповідність фасадів до кольору та фактур стін. Використати кожний вільний см для систем зберігання та полиць. Встановити цілі меблеві групи, які виступають частиною єдиної концепції.
Дизайн будинку у сучасному стилі з елементами шале має одразу кілька вдалих рішень в оформленні.
Стеля не просто обшита деревом, а має виражену структуру з масивними балками. Це створює відчуття заміського будинку, але без зайвої “сільської” ваги.
Дерево також використано, як акцент на стінах. Панелі переходять зі стелі на стіни (особливо в спальні та вітальні), створюючи “ефект кокона”. Простір завдяки цьому виглядає дуже затишним і цілісним.
- Робота з деревом та стелею
Стеля не просто обшита деревом, а має виражену структуру з масивними балками. Це створює відчуття заміського будинку, але без зайвої “сільської” ваги.
Дерево також використано, як акцент на стінах. Панелі переходять зі стелі на стіни (особливо в спальні та вітальні), створюючи “ефект кокона”. Простір завдяки цьому виглядає дуже затишним і цілісним.
- Розумне зонування
Вертикальне зонування відбувається через світло та матеріалами. Межа між кухнею та вітальнею проведена не стінами, а кольором. Темна зона кухні та каміна візуально “стискає” простір, роблячи робочу зону камерною. Тоді як світла зона відпочинку з диваном здається просторішою.
Були додані також текстильні “острови”. Використання великих килимів — це класичний, але дієвий захід. Вони чітко окреслюють межі зони відпочинку та обідньої групи, не створюючи фізичних перешкод для руху.
Обідній стіл розташований як буфер між зоною приготування їжі та відпочинку. Це створює логічний маршрут руху по колу, що зручно для великої родини.
- Світловий сценарій
Над обіднім столом та у спальні використані об'ємні підвісні лампи м'яких, органічних форм. Вони візуально полегшують інтер'єр, де багато дерева.
Основними освітлювальними елементами виступають трекові та точкові споти. На дерев'яній стелі встановлені сучасні чорні циліндричні споти. Це круте контрастне рішення, де традиційне дерево ідеально переплітається з сучасним технічним світлом.
Сходи, ніші, дзеркала, елементи декоративних панелей -— все це має підсвічування. Використання вбудованого лінійного світла додає глибини та сучасної динаміки.
- Функціональні та декоративні деталі
Огородження сходів у с. Борок у Житомирській області виконане у вигляді тонких вертикальних чорних стрижнів (металевих прутів). Це виглядає як графічний арт-об’єкт і не перевантажує простір.
Використання вертикальних металевих стійок від підлоги до стелі — це також одне з найбезпечніших рішень. Крізь них неможливо випасти (актуально для дітей).
Приховане зберігання всюди. Величезні шафи до стелі з мінімалістичними фасадами зливаються зі стінами, що розвантажує кімнати від візуального шуму.
Навіть дровниця в приміщенні не просто виконує свою функцію. Вмонтована в меблі ніша для дров виконує й естетичну функцію, додаючи інтер'єру природності.
- Текстурні контрасти
Поєднання матових темних фасадів кухні, шорсткого каменю (тераццо) у ванній кімнаті та м'якого текстилю (диван «букле», килими з класичним орнаментом) — створюють максимально цікаві контрасти.
Базовими кольорами обране тепле дерево та світло-сіра підлога. Відтіняються вони глибоким антрацитовим (кухня, камінна зона) та білим кольорами. Що при різному освітленні створюють цікаві ефекти, роблять простір гармонійним і затишним.
- Живий вогонь, як якісний акцент в інтер'єрі
Камін, інтегрований у центральну стіну додає природного тепла. Навіть якщо камін не горить, сама наявність дерева в інтер’єрі підсвідомо сприймається, як безпечне та комфортне середовище.
- Ідеальна ергономіка
Важливо розуміти, що житлові приміщення (спальня, дитяча) знаходяться на мансарді. Тому потрібно було ергономічне та правильне використання простору. Розташування меблів відбувалося так, щоб діти чи дорослі не билися головою об стелю. Щоб світла було достатньо, а пересування лишалося максимально зручним.
Дизайнери грамотно вписали двоярусне ліжко та робочу зону в дитячій під похилу стелю, використовуючи кожен сантиметр. Такий самих хід було використано при облаштуванні спальні.
- Наявність додаткових кімнат
Дизайн будинку у сучасному стилі в с. Борок у Житомирській області облаштовано технічним приміщенням, де сховано весь інвентар, техніка та засоби для прибирання. Це дозволило приховати все зайве за дверми, уникнувши візуального шуму. Максимально затишною стала вітальня-кухня із каміном.
Але оригінальною та улюбленою виявилась сауна, яка була спланована за індивідуальним побажанням клієнта.Використання дерева навіть у вологих зонах (стеля та оздоблення сауни) у поєднанні з плиткою під натуральний камінь створює атмосферу дорогого гірського готелю.
Були дотримані всі засоби безпеки, правильно сплановані технічні моменти та підібрані матеріали. Крім парильні дизайнери спланувати в душовій катку (дерев'яна діжка). Такий хід дозволив створити сауну, у найкращих традиціях
Цей дизайн будинку у сучасному стилі — чудове рішення для комфортного проживання родиною. Впроваджені цікаві “фішки” та актуальні рішення створюють максимальний комфорт, дозволяють насолоджуватися життям та відчувати спокій в себе вдома.
Якщо ви розмірковує над створенням чогось схожого в себе в будинку, дизайнер інтер єру Польща, Україна допоможе зробити все правильно. Залежно від ваших індивідуальних запитів, потреб, можливостей, особливостей об'єкта співробітник інтер'єрної студії Бєлік запропонує ліпші варіанти оформлення простору.
Подивіться нашу презентацію