СУЧАСНИЙ СТИЛЬ ДИЗАЙНУ ІНТЕР’ЄРУ КВАРТИРИ В ЖК ПАРКОВІ ОЗЕРА 2 У КИЄВІ
• Локація - ЖК Паркові Озера 2, Київ, Україна
• Площа квартири – 60 м²
• Формат роботи – дизайн проєкт інтер'єру
• Площа квартири – 60 м²
• Формат роботи – дизайн проєкт інтер'єру
У квартирах в новобудові можна створювати дійсно унікальні, сучасні та функціональні простори. Для цього не потрібно робити великого перепланування та складних ремонтних процесів. Але, як і у кожному ремонті, тут є свої нюанси. Вони можуть бути пов'язані з малою площею, не зручним плануванням або особливостями самого об’єкта.
Щоб отримати дійсно якісний ремонт та збалансований інтер'єр, краще замовляти послуги з дизайну у перевірених фахівців. Знаходитесь ви в Україні або за її межами, замовити проектну документацію у повному форматі можна в інтер'єрній студії Бєлік. Наша компанія тепер працює й у Польщі. Виконує “під ключ” дизайни квартири Гданськ, Варшава та інших містах.
Щоб отримати дійсно якісний ремонт та збалансований інтер'єр, краще замовляти послуги з дизайну у перевірених фахівців. Знаходитесь ви в Україні або за її межами, замовити проектну документацію у повному форматі можна в інтер'єрній студії Бєлік. Наша компанія тепер працює й у Польщі. Виконує “під ключ” дизайни квартири Гданськ, Варшава та інших містах.
Студія дизайну інтер єру у Польщі Бєлік має багато цікавих прикладів оформлення. Можна роздивитися реалізовані дизайни квартир в Польщі та в Україні. Знайти для себе цікаві рішення та надихаючі ідеї. Обговорити власні побажання та зазначити бюджет. Орієнтуючись одразу на декілька факторів, наданих клієнтом, фахівці компанії створюють персоналізовані простори. Саме такі, яких потребують замовники.
Кращим рішенням сьогодення став сучасний стиль дизайну інтер'єру квартири. Адже це направлення поєднує одразу кілька направлень, втілює всі ефективні ідеї та максимальний функціонал. Студія дизайну Бєлік має великий досвід відтворення сучасних стилей. Кожний з них відповідає стандартам сьогодення, але при цьому відображає індивідуальність замовників та покращує їх рівень життя.
Кращим рішенням сьогодення став сучасний стиль дизайну інтер'єру квартири. Адже це направлення поєднує одразу кілька направлень, втілює всі ефективні ідеї та максимальний функціонал. Студія дизайну Бєлік має великий досвід відтворення сучасних стилей. Кожний з них відповідає стандартам сьогодення, але при цьому відображає індивідуальність замовників та покращує їх рівень життя.
Навіть нестандартна геометрія об’єкта не стане перешкодою для сучасних дизайнів. Це виклик для наших дизайнерів, щоб зробити квартири ще цікавішою. Якщо вам потрібна студія дизайну інтер єру Варшава чи інші міста, яка зможе впоратися зі сміливими запитами та нестандартними об’єктами, наша компанія ідеально підійде.
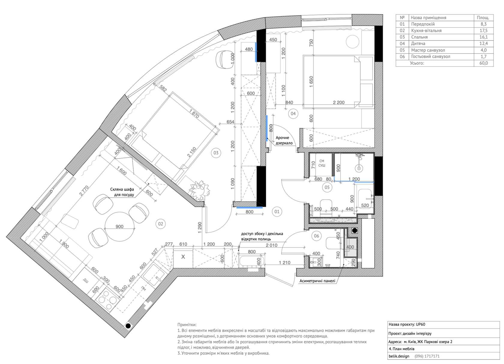
Приклад дизайну квартири в ЖК Паркові Озера 2 це підтверджує. Адже приміщення має нестандартну геометрію від забудовника. Це потребувало індивідуального підходу до проектування від самого початку.
Приклад дизайну квартири в ЖК Паркові Озера 2 це підтверджує. Адже приміщення має нестандартну геометрію від забудовника. Це потребувало індивідуального підходу до проектування від самого початку.
Особливості планування у нестандартній квартири ЖК Паркові Озера 2
Планування в ЖК Паркові Озера 2 виглядає набагато цікавіше за типові "коробки".
Гостьова (кухня-вітальня) і приватна (спальня, дитяча) зони рознесені по різних частинах квартири, що забезпечує акустичний комфорт.
Радіальна вітальня-кухня — це серце квартири. Через скошену стіну приміщення має динамічну форму. Кухонна зона винесена в кут, а обідня група (круглий стіл) вдало нівелює гострі кути.
Приватна частина квартири (спальня) також має скошену стіну. Правильний дизайнерський підхід дозволив встановити меблеві групи та раціонально розподілити простір.
Дубльований санвузол підвищує комфорт для сім'ї. Окремо виділено місце під пральну/сушильну машини.
Викликами стали гострі та тупі кути. Зовнішня стіна йде по дузі, що зробило неможливим використання стандартних корпусних меблів вздовж цієї стіни. Використали меблі на замовлення. Саме замовлення у виробників конструкцій дозволило створити меблеві групи, зробити їх продовженням стіни, підібрати однакові фасади та фактури.
План квартири передбачає багато вбудованих ніш для шаф, що дозволяє тримати основний простір вільним від візуального шуму.
План квартири передбачає багато вбудованих ніш для шаф, що дозволяє тримати основний простір вільним від візуального шуму.
Сучасний стиль дизайну інтер'єру квартири — дизайнерські фішки
Інтер'єр в ЖК Паркові Озера 2 — це взірець сучасного мінімалізму. Основний акцент було зроблено на тактильності, функціональності та м'якій палітрі кольорів.
Для створення атмосфери спокою та затишку дизайнер використав такі ключові рішення :
- колористика — поєднання теплих деревних текстур, світло-бежевих поверхонь та контрастних чорних ліній;
- використання вертикальних рейок на стінах — додало простору висоти та ритму;
- обов'язкові акценти — оливковий колір оббивки стільців та пуфа в передпокої виступає стриманим природним акцентом, у дитячий використали пудрові акценти;
- різні світлові сценарії — трекове освітлення, акцентні люстри (кільцеві світильники з кульовими плафонами над обіднім столом та кільця в спальні), настінні світильники, приховані LED-стрічки (під шафами, вздовж стелі та в нішах);
- ефективні рішення для планування — круглий обідній стіл, системи зберігання “в стелю”, розумна зона передпокою, вертикальне прання;
- деталі, що працюють на затишок — дзеркала до стелі, робоча зона в спальні, текстиль (багатошарові штори в підлогу та фактурні покривала додають).
Корпусні кухні та всі меблі максимально непомітні. З однотонними фасадами, закритими системами зберігання, без ручок. Що стосується вибору обіднього столу, дитячих меблів, серванту у вітальній? Ці елементи зробити акцентними. Круглий стіл має ніжки нестандартної форми та цікаве різьблення.
Сервант у вітальні — повністю прозорий, “паруючий”, з матовим склінням та контрастними чорними лініями.
В дитячий створена ціла меблева група. Окрім шафи для одягу, вдало інтерпретовані: приліжкова тумба, робочий стіл, пенал для зберігання шкільного інвентарю та літератури. Спеціально були залишені відкритими деякі полиці, щоб в них можна було розмістити антикварні іграшки або інші улюблені предмети дитини.
Сучасний стиль дизайну інтер'єру квартири — краще рішення для облаштування житла, яке не набридне та залишатиметься оптимальним впродовж багатьох років. В інтер'єрній компанії Бєлік створять для вас гармонійний та функціональний візуал, до дрібниць планують ремонт. Підлаштовують бажані для вас стилістичні направлення під побут вашої родини, уникнувши будь-яких незручностей у просторі.
Сервант у вітальні — повністю прозорий, “паруючий”, з матовим склінням та контрастними чорними лініями.
В дитячий створена ціла меблева група. Окрім шафи для одягу, вдало інтерпретовані: приліжкова тумба, робочий стіл, пенал для зберігання шкільного інвентарю та літератури. Спеціально були залишені відкритими деякі полиці, щоб в них можна було розмістити антикварні іграшки або інші улюблені предмети дитини.
Сучасний стиль дизайну інтер'єру квартири — краще рішення для облаштування житла, яке не набридне та залишатиметься оптимальним впродовж багатьох років. В інтер'єрній компанії Бєлік створять для вас гармонійний та функціональний візуал, до дрібниць планують ремонт. Підлаштовують бажані для вас стилістичні направлення під побут вашої родини, уникнувши будь-яких незручностей у просторі.
🔗 Дивіться також:
Подивіться нашу презентацію