ДИЗАЙНЕРСЬКИЙ РЕМОНТ КВАРТИРИ У ЖК ФАЙНА ТАУН У КИЄВІ
• Локація – ЖК Файна Таун, Київ, Україна
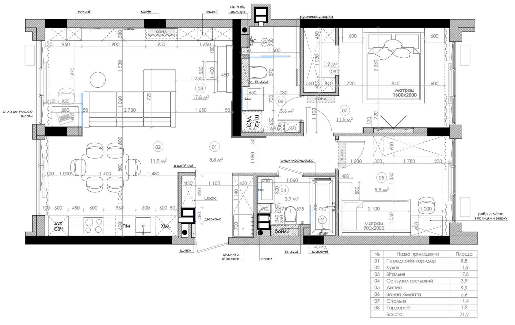
• Площа квартири – 71 м²
• Формат роботи – дизайн проект інтер'єру
• Площа квартири – 71 м²
• Формат роботи – дизайн проект інтер'єру
Що таке дизайнерський ремонт квартири
Дизайнерський ремонт квартири базується на розробленому індивідуально для вас дизайн проекті. Тобто, неможливо провести всі роботи без наявності детальної документації зі схемами, кресленнями, 3Д візуалізаціями, технічною документацією та інформацією по товарах для інтер'єра від фахівця. Саме дизайнер інтер'єрів створює інструкцію та фотореалістичні зображення результату, який повинна надати ремонтно-будівельна бригада.
Дизайнерський ремонт сьогодні - це не про впровадження всіх останніх трендів та вкладання величезних коштів в преміальні матеріали, складні архітектурні рішення та всі можливі інновації. Це саме про створення персоналізованого житла, який покращуватиме рішення життя та задовольнятиме потреби кожного мешканця. Про прояв себе через своє житло. Про прийняття доцільних рішень та впровадження дійсно ефективних ідей. Про орієнтованість на фінансові можливості замовника, його особисті побажання та особливості об'єкта.
Дизайнерський ремонт сьогодні - це не про впровадження всіх останніх трендів та вкладання величезних коштів в преміальні матеріали, складні архітектурні рішення та всі можливі інновації. Це саме про створення персоналізованого житла, який покращуватиме рішення життя та задовольнятиме потреби кожного мешканця. Про прояв себе через своє житло. Про прийняття доцільних рішень та впровадження дійсно ефективних ідей. Про орієнтованість на фінансові можливості замовника, його особисті побажання та особливості об'єкта.
Безумовно, дизайнерський ремонт квартири втілити самотужки неможливо. Адже саме дизайнер зможе грамотно пояснити бригаді майстрів всі свої рішення, відстояти точку зору та знайти компроміси (у випадку непередбачених ситуацій). Також цей фахівець знає де саме можна замовити певні позиції з 3Д візуалізацій, зможе визначити їх правильну кількість та обрати аналоги у випадку потреби.
Вам, як клієнту, лишиться на старті обговорити головні засади бажаного інтер'єра. Взяти участь у затвердженні певних ідей для переходу на наступний етап планування, втілення інтер'єра. При замовленні дизайнерського ремонту квартири з авторським наглядом навіть не буде потреби особисто відвідувати об'єкт.
Дизайнер особисто:
Дизайнер особисто:
- контролюватиме всі процеси та результати;
- спілкуватиметься з виконробом та окремими майстрами;
- допоможе в закупівлі всіх товарів для інтер'єра (оздоблювальні матеріали, декор, освітлювальні прилади, сантехніка тощо);
- розв'яже виниклі питання;
- досягне 100% відповідності результату ідеям з 3Д візуалізацій.
Дизайнерський ремонт квартири в ЖК Файна Таун
Вам лишиться лише заїхати в повністю підготовлене житло та насолоджуватися результатом. Інтер’єрна студія Бєлік має понад 100 реалізованих об'єктів в новобудовах та у квартирах старого фонду.
Побачити, як саме може виглядати персоналізований дизайнерський ремонт квартири, можна на прикладі ЖК Файна Таун. В нас є одразу кілька проектів з цієї новобудови, де кожен відрізняється ідеєю, колористикою, планувальними рішеннями, стилем. Саме ця квартира відображує сміливість та вишуканий смак власників. У квартирі ЖК Файна Таун присутньо багато оригінальних ідей в оформленні, що задають певний настрій та характеризують особистість замовників.
Побачити, як саме може виглядати персоналізований дизайнерський ремонт квартири, можна на прикладі ЖК Файна Таун. В нас є одразу кілька проектів з цієї новобудови, де кожен відрізняється ідеєю, колористикою, планувальними рішеннями, стилем. Саме ця квартира відображує сміливість та вишуканий смак власників. У квартирі ЖК Файна Таун присутньо багато оригінальних ідей в оформленні, що задають певний настрій та характеризують особистість замовників.
Дизайнерський ремонт квартири в ЖК Файна Таун - цікаві рішення
Це унікальний ремонт, який ви не зустрінете на засадах в мережі, журналах або у сусідів. Певні рішення були взяті зі стилістичних направлень, змінені та підлаштовані під побут замовника.
Спочатку були прийняти правильні планувальні рішення. Без них неможливо далі виконати фотореалістичні 3Д візуалізації, прописати всі технічні та дизайнерські аспекти. Це невелика квартира (приблизно 70 м2), в якій потрібно було виділити місце для:
- спальні;
- дитячої кімнати;
- передпокою;
- гардеробної;
- санвузла з душовою;
- ванної кімнати
- кімнати-студії (вітальня, кухня, столова).
Всі ці приміщення, завдяки правильному підходу, вдалося зробити максимально функціональними та органічними. В середині знаходиться вся необхідна техніка та меблі. При цьому інтер'єр виглядає максимально сучасно і оригінально. Візуальної естетики досягнуто не через використання великої кількості декору та текстилю. На цьому об'єкті використано багато різних фактур, акцентні кольори, переходи в оздобленні. Також присутнє багаторівневе освітлення, кілька дійсно оригінальних та привертаючих увагу елементів.
У вітальні-кухні головною принадою став біокамін. Він створює особливу атмосферу, задає настрій та прикрашає інтер’єр. Монтований на фоні мармурової плити в чорному кольорі він виглядає максимально органічно.
У вітальні-кухні головною принадою став біокамін. Він створює особливу атмосферу, задає настрій та прикрашає інтер’єр. Монтований на фоні мармурової плити в чорному кольорі він виглядає максимально органічно.
Дизайн-проєкт як основа якісного ремонту
На цьому об’єкті в усіх кімнатах були виконані акценті елементи в чорному кольорі. Декорування стін плитами, фасади корпусних шаф, трекові світильники, елементи на меблях та в декорі - все це додає цікавих акцентів. Чорний присутній, як в однотонних матових палітрах, так і у вигляді фактур каменю, текстилю. Таке рішення дозволяє комбінувати різні елементи, створюючи єдину концепцію.
Крім темного, в кімнатах частина стін та стелі оформлені світлими кольорами. Спокійний беж відтіняє та розбавляє чорну колористику, роблячи її ще виразнішою. При цьому додає свіжості та візуальної легкості в інтер’єр.
Крім темного, в кімнатах частина стін та стелі оформлені світлими кольорами. Спокійний беж відтіняє та розбавляє чорну колористику, роблячи її ще виразнішою. При цьому додає свіжості та візуальної легкості в інтер’єр.
В ЖК Файна Таун стіна та стеля пофарбовані в один світлий відтінок. Прийом створює гармонійний ефект. Також гіпсова стеля дозволяє монтувати та фарбувати точкові світильники. Такі вбудовані світильники не мають додаткових рамок, кольорів тощо. Не виділяються, але ідеально освітлюють кімнати. Акценти ж створюють окремі трекові системи, світлодіодні стрічки та одиничні люстри в певних зонах.
Не лише протилежні палітри та кам’яні фактури були використані у дизайнерському ремонтні в ЖК Файна Таун. У квартирі присутньо дуже багато дерева. Оздоблення підлоги паркетом та стін панелями, перегородки та фасади корпусних шаф, стільниці - все це робить дизайн квартири екологічним.
Не лише протилежні палітри та кам’яні фактури були використані у дизайнерському ремонтні в ЖК Файна Таун. У квартирі присутньо дуже багато дерева. Оздоблення підлоги паркетом та стін панелями, перегородки та фасади корпусних шаф, стільниці - все це робить дизайн квартири екологічним.
Інтер’єр вітальні-кухні з біокаміном
Житлові кімнати не надто великі. Але всередині вдалося розмістити всі необхідні елементи меблювання. В дитячій додали оригінального та цікавого для дитини декору, ігрову зону тощо. В спальні вдалося монтувати гардероб. Для цього дизайнером була розрахована оптимальна відстань гардероба - проща, наповнення, сторона відчинення дверей.
Варто розуміти, що навіть рішення додати гардероб складно зробити у процесі виконання ремонту. Дизайнерський ремонт квартири з професійним супроводом дозволяє зробити кожне рішення доцільним, а результат ідеальним. Фахівець знає всі розміри та норми з власного досвіду.
Варто розуміти, що навіть рішення додати гардероб складно зробити у процесі виконання ремонту. Дизайнерський ремонт квартири з професійним супроводом дозволяє зробити кожне рішення доцільним, а результат ідеальним. Фахівець знає всі розміри та норми з власного досвіду.
Завдяки професійній підтримці та супроводу ви зможете отримати дизайнерський ремонт квартири та персоналізований інтер'єр. Заощадити свій час та бюджет. Не буде помилок, перевитрат за непотрібні товари та процеси. Інтер'єрна компанія Бєлік виконує всі процеси на професійному рівні, впроваджуючи інновації в реальність та оптимізуючи сучасні рішення під потреби замовників. Житло не виглядатиме одноманітно, а ремонт не викличе проблем із плином часу. Всі технічні аспекти також будуть сплановані до дрібниць та професійно реалізовані.
Щоб результат повністю відповідав очікуванням, квартира ремонт має виконуватися не спонтанно, а за чітко продуманим сценарієм. Саме комплексний підхід дозволяє уникнути помилок, перевитрат бюджету та отримати інтер’єр, у якому все працює на комфорт і зручність мешканців.
Основою якісного результату завжди є вартість дизайн проекту, адже саме проєктна документація визначає планувальні рішення, стилістику, технічні вузли та послідовність усіх робіт. Це не просто візуалізації, а інструкція для реалізації ідеї без компромісів.
Звертаючись до студія інтер’єру, ви отримуєте системний підхід: від аналізу об’єкта та ваших потреб — до повної реалізації простору. Усі рішення приймаються з урахуванням ергономіки, бюджету та довготривалої експлуатації житла.
Основою якісного результату завжди є вартість дизайн проекту, адже саме проєктна документація визначає планувальні рішення, стилістику, технічні вузли та послідовність усіх робіт. Це не просто візуалізації, а інструкція для реалізації ідеї без компромісів.
Звертаючись до студія інтер’єру, ви отримуєте системний підхід: від аналізу об’єкта та ваших потреб — до повної реалізації простору. Усі рішення приймаються з урахуванням ергономіки, бюджету та довготривалої експлуатації житла.
Ще на старті робіт замовник розуміє, якою буде дизайн квартири ціна за квадратний метр, що дозволяє чітко планувати витрати та уникати несподіваних фінансових рішень у процесі ремонту.
Для тих, хто хоче повної прозорості та контролю бюджету, важливо одразу прорахувати вартість дизайн квартир та визначити оптимальний формат співпраці. Такий підхід забезпечує передбачуваний результат і спокій протягом усього ремонтного процесу.
Для тих, хто хоче повної прозорості та контролю бюджету, важливо одразу прорахувати вартість дизайн квартир та визначити оптимальний формат співпраці. Такий підхід забезпечує передбачуваний результат і спокій протягом усього ремонтного процесу.
Замовити дизайнерський ремонт квартири під ключ
Подивіться нашу презентацію