СУЧАСНИЙ ДИЗАЙН КВАРТИР У ЖК ГРЕЙТ У КИЄВІ
• Локація - ЖК Грейт, Київ, Україна
• Площа квартири – 46 м²
• Формат роботи – дизайн проєкт інтер'єру
• Площа квартири – 46 м²
• Формат роботи – дизайн проєкт інтер'єру
Всі хто має невеликий простір у квартирі доводиться розмірковувати над тим, як перетворити його у комфортні умови для проживання. Замість стандартних рішень та обмежень, сьогодні дизайн інтер'єра дозволяє створювати унікальні та оригінальні простори. Обмеження в площі не є перепоною для прояву себе через своє житло, впровадження інновацій сьогодення та створення дійсно комфортних умов.
Досягти бажаного ефекту без кардинальних змін в архітектурі об'єкта та колосальних витрат на всі процеси реально. Для цього варто звернутися до перевірених виконавців. В студіях інтер'єрів працюють фахівці з різних галузей, що дозволяє приймати правильні рішення. Розробляючи дизайн проекти приватних будинків чи квартир виконавець радитися стосовно майбутнього ремонту, правильності певних рішень з компетентними в цій галузі фахівцями.
Досягти бажаного ефекту без кардинальних змін в архітектурі об'єкта та колосальних витрат на всі процеси реально. Для цього варто звернутися до перевірених виконавців. В студіях інтер'єрів працюють фахівці з різних галузей, що дозволяє приймати правильні рішення. Розробляючи дизайн проекти приватних будинків чи квартир виконавець радитися стосовно майбутнього ремонту, правильності певних рішень з компетентними в цій галузі фахівцями.
Саме за таким принципом працює компанія інтер'єрів Бєлік, в якій є укомплектована бригада професіоналів. Якщо виникають питання стосовно перепланування, прокладання комунікацій чи втілення інших ідей в оформленні простору, дизайнер завжди обговорює це з освіченими фахівцями. Такий підхід дозволяє зробити проекту документацію точною, технічно правильно та зрозуміло для бригади майстрів у майбутньому.
Ціна дизайн проекту квартири при цьому не залежить від кількості виконавців, які братимуть участь у плануванні вашого ремонту та дизайну. В інтер’єрній компанії Бєлік вона фіксована та залежить лише від площі об'єкта. Незалежно від того дизайн інтер'єра будинків чи квартири,в студії Бєлік відповідально ставляться до надання послуг.
Оформлення кожного об'єкта має свої особливості. Дуже важливо спланувати ремонт та прорахувати все до дрібниць при обмеженій площі. В такому випадку використовується кожний сантимент. Обігруються ніші, комори та закутки.
Ціна дизайн проекту квартири при цьому не залежить від кількості виконавців, які братимуть участь у плануванні вашого ремонту та дизайну. В інтер’єрній компанії Бєлік вона фіксована та залежить лише від площі об'єкта. Незалежно від того дизайн інтер'єра будинків чи квартири,в студії Бєлік відповідально ставляться до надання послуг.
Оформлення кожного об'єкта має свої особливості. Дуже важливо спланувати ремонт та прорахувати все до дрібниць при обмеженій площі. В такому випадку використовується кожний сантимент. Обігруються ніші, комори та закутки.
Сучасний дизайн квартир на 40-60 м2 - це розповсюджений запит. Адже невеликі площі виступають стартом для молодого чи зрілого подружжя, одинаків чи навіть місцем для тимчасового перебування. Останнє - доволі розповсюджена практика. Коли людина часто відвідує місто по роботі та обирає проживати у комфорті (у власній квартирі).
Гарним прикладом того, як з 45 и2 можна створити затишний, функційний та персоналізований інтер'єр є об’єкт ЖК Грейт. Обмеженість простору не заважала втілити ефективні рішення в його розподілі, оздобленні, виборі меблів та впровадженні сучасних трендів. Правильне планування та подальша реалізація рішень дозволили створити сучасний інтер'єр. Дизайн квартири ціна обговорювала з замовником заздалегідь. Тому витрати на матеріали та роботи повністю відповідають можливостям клієнта. Саме оформлення виконувалося з орієнтованістю на особисті побажання та потреби замовників.
Гарним прикладом того, як з 45 и2 можна створити затишний, функційний та персоналізований інтер'єр є об’єкт ЖК Грейт. Обмеженість простору не заважала втілити ефективні рішення в його розподілі, оздобленні, виборі меблів та впровадженні сучасних трендів. Правильне планування та подальша реалізація рішень дозволили створити сучасний інтер'єр. Дизайн квартири ціна обговорювала з замовником заздалегідь. Тому витрати на матеріали та роботи повністю відповідають можливостям клієнта. Саме оформлення виконувалося з орієнтованістю на особисті побажання та потреби замовників.
Сучасний дизайн квартир на 40-50 м2
Облаштування маленької квартири - це завжди про раціональний та максимально ергономічний поділ просторою. Тут немає місця складним архітектурним інсталяціям, чисельному декору та текстилю, незрозумілим ідеям. Дизайнер інтер'єрів намагається брати максимум з того, що було надано забудовником.
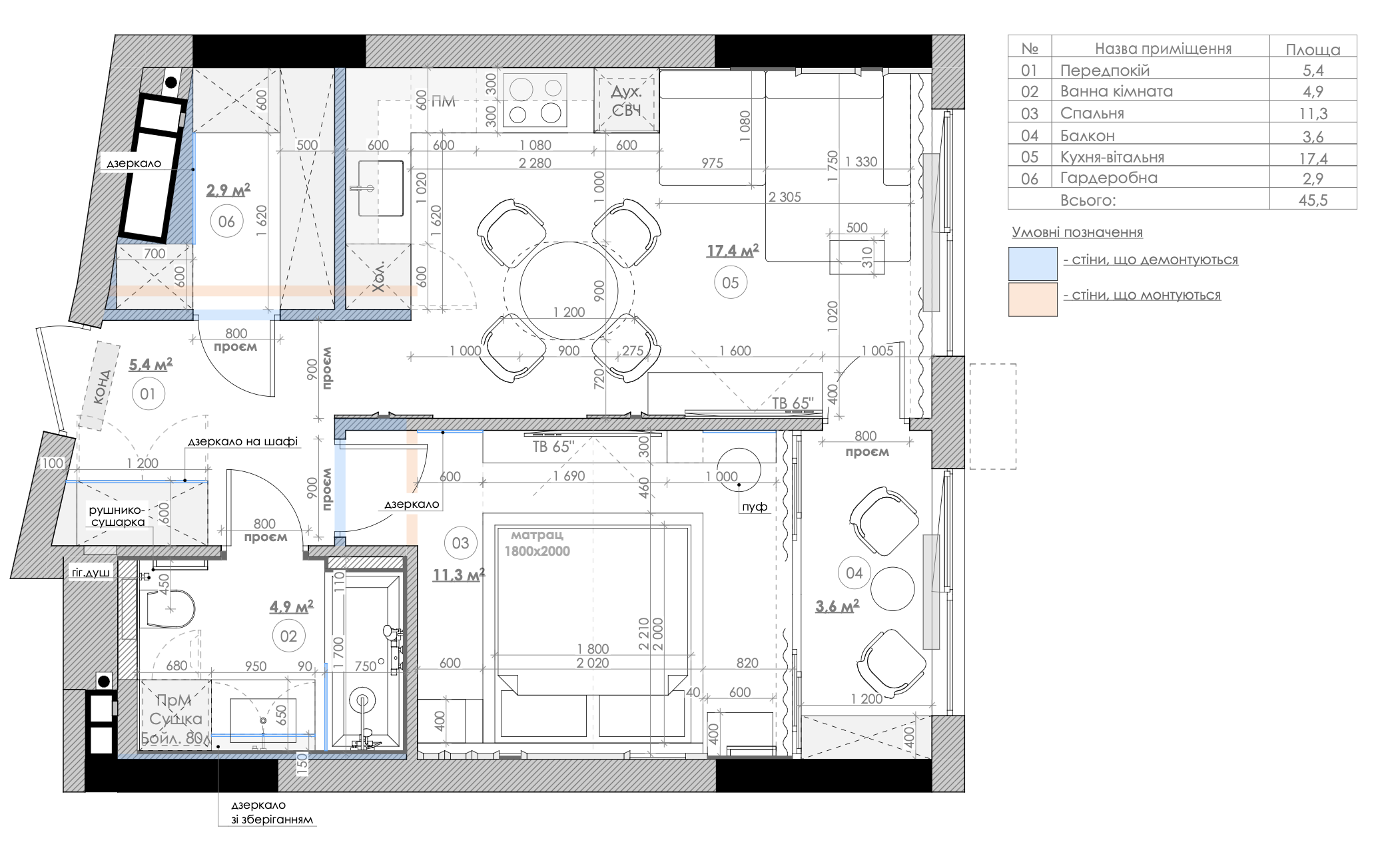
Враховуючи, що це об'єкт в ЖК Грейт, не потрібно було виконувати масштабного перепланування. У випадку з житлом старого фонду часто доводиться робити монтаж або переміщення більшості стін. В цьому випадку відбулося втручання лише в оформленні спальні та гардеробній. Обидві кімнати зробили трішки більшими, завдяки зменшенню передпокою. Решту планування не змінювали та активно працювали з чинною базою.
Гардеробна - це краще рішення для малих квартир. Адже в невеликій ніші можна зробити багато місць для зберігання з трьох сторін. Можна додати вішаки, відкриті та закриті системи для зберігання. Заховати за дверми інвентар для прибирання, мийні засоби, одяг та аксесуари.
Як і в багатьох випадках сучасний дизайн квартир передбачає вільний простір. Кімната-студія додає легкої атмосфери в інтер'єр. Відсутність перегородок, непотрібних стін та дверей між вітальнею і кухнею дозволяє розставити більше меблів. При 45 м2 це дійсно ефективно.
Вітальня-кухня облаштована всіма необхідними меблями. Окрім кухонного гарнітура, величезного м'якого дивана та ТВ зони вдалося розмістити навіть обідній стіл. Обрали форму кола, адже за такий стіл можуть сісти багато людей. Відсутність гострих кутів додає затишку в інтер'єр.
Як і в багатьох випадках сучасний дизайн квартир передбачає вільний простір. Кімната-студія додає легкої атмосфери в інтер'єр. Відсутність перегородок, непотрібних стін та дверей між вітальнею і кухнею дозволяє розставити більше меблів. При 45 м2 це дійсно ефективно.
Вітальня-кухня облаштована всіма необхідними меблями. Окрім кухонного гарнітура, величезного м'якого дивана та ТВ зони вдалося розмістити навіть обідній стіл. Обрали форму кола, адже за такий стіл можуть сісти багато людей. Відсутність гострих кутів додає затишку в інтер'єр.
Що стосується оздоблення?
Вся квартира в ЖК Грейт виконана в базовій колористиці. Це бежевий колір та багато фактур дерева у відповідному відтінку. Присутня гра з контрастами у вигляді декорування мармуровими панелями стін, використання елементів чорного кольору. Але їх невелика кількість та вони відіграють роль саме акцентів.
Такий вибір кольорів, матеріалів, контрастів присутній в кожному приміщенні. Однакові панелі, трекові системи на стелі, фасади на меблях зустрічаються в передпокої, вітальній, спальні та навіть у ванній кімнаті. Матеріали підбиралися з максимальними показниками якості. Навіть в ванній кімнаті, після років експлуатації оздоблення виглядатиме ідеально.
Вся квартира в ЖК Грейт виконана в базовій колористиці. Це бежевий колір та багато фактур дерева у відповідному відтінку. Присутня гра з контрастами у вигляді декорування мармуровими панелями стін, використання елементів чорного кольору. Але їх невелика кількість та вони відіграють роль саме акцентів.
Такий вибір кольорів, матеріалів, контрастів присутній в кожному приміщенні. Однакові панелі, трекові системи на стелі, фасади на меблях зустрічаються в передпокої, вітальній, спальні та навіть у ванній кімнаті. Матеріали підбиралися з максимальними показниками якості. Навіть в ванній кімнаті, після років експлуатації оздоблення виглядатиме ідеально.
Всі меблі робилися під замовлення, що дозволило створювати меблеві групи та досягати ідентичності в оздобленні. Завдяки виготовленню корпусних конструкцій індивідуально під об’єкт, використали кожний см. Зручно розташувати полиці та системи зберігання. Наявність гардеробну мінімізувала кількість корпусних шаф, що зберегло простір в кімнатах. Додавалися елементи точково, у вигляді комода, полиці, вбудованих систем.
На замовлення клієнта зона кухні має не лише гарнітур у вигляді верхніх та нижніх ящиків. Цей елемент плавно переходить у шафу-сервант для зберігання посуду. В ньому вбудована духовка шафа та зроблений бар за склом.
На замовлення клієнта зона кухні має не лише гарнітур у вигляді верхніх та нижніх ящиків. Цей елемент плавно переходить у шафу-сервант для зберігання посуду. В ньому вбудована духовка шафа та зроблений бар за склом.
В цій квартирі також є лоджія, де було зроблене місце для відпочинку. Потрапити на неї можна як з кухні, так і зі спальні (прохідна кімната). Вихід зі спальні зробили у вигляді розсувної, скляної системи. За бажанням можна лишити простір об'єднаним з лоджією чи закрити двері, зробивши дві окремі кімнати.
Концепція цього інтер'єра - домашній затишок та комфорт. Тому окрім дерев’яних фактур, бежевого кольору та якісних матеріалів було використане м'яке світло. Трекові системи, підсвічування стелі та панелей по периметру, точкові прилади, настінні бра - це все дозволяє впливати на атмосферу.
Замовити дизайн інтер'єру квартир у Києві з детальним плануванням та повною реалізацію ви можете в інтер'єрній студії Бєлік. Тут надаються гарантії. Адаптуються простори під рівень життя клієнтів. Створюються оптимальні інтер’єри та комфортні умови.
Концепція цього інтер'єра - домашній затишок та комфорт. Тому окрім дерев’яних фактур, бежевого кольору та якісних матеріалів було використане м'яке світло. Трекові системи, підсвічування стелі та панелей по периметру, точкові прилади, настінні бра - це все дозволяє впливати на атмосферу.
Замовити дизайн інтер'єру квартир у Києві з детальним плануванням та повною реалізацію ви можете в інтер'єрній студії Бєлік. Тут надаються гарантії. Адаптуються простори під рівень життя клієнтів. Створюються оптимальні інтер’єри та комфортні умови.
Подивіться нашу презентацію