ДИЗАЙН КОТЕДЖІВ У КОТЕДЖНОМУ МІСТЕЧКУ BALATON VILLAGE В С. НОВІ ПЕТРІВЦІ У КИЇВСЬКІЙ ОБЛАСТІ
• Локація - КМ Balaton Village в с. Нові Петрівці, Україна
• Площа будинку – 133,1 м²
• Формат роботи – дизайн проєкт інтер'єру
• Площа будинку – 133,1 м²
• Формат роботи – дизайн проєкт інтер'єру
Дизайн котеджів потребує професійних навичок та спеціальних знань. Адже можна зіпсувати оформлення приватної забудови, припустившись багато помилок та вклавши величезну суму коштів. При цьому, сам інтер'єр виглядатиме не доцільним та не затишним. Ремонт викликатиме багато питань та проблем.
Щоб уникнути розчарувань, варто ще на старті спланувати оформлення своєї забудови. Інтер’єрна агенція Бєлік — це команда фахівців які не просто розроблять проєктну документацію. В нас ви можете замовити дизайн квартири у Польщі та Україні. Інтер'єр будинків “під ключ” з наданням гарантій якості.
Щоб уникнути розчарувань, варто ще на старті спланувати оформлення своєї забудови. Інтер’єрна агенція Бєлік — це команда фахівців які не просто розроблять проєктну документацію. В нас ви можете замовити дизайн квартири у Польщі та Україні. Інтер'єр будинків “під ключ” з наданням гарантій якості.
Понад 10 років інтер'єрна студія Бєлік створює персоналізовані та сучасні простори, підлаштовані під потреби мешканців. Нещодавно компанія розширила межі своєї діяльності. Можна спланувати інтер'єр котеджів, дизайн квартири Варшава, Гданськ, Краків та інші міста Польщі. В нас вже є укомплектована команда фахівців, які доводять дизайн та ремонт до досконалості, допомогають купити всі необхідні товари та мебель під заказ.
В портфоліо студії інтер’єрів Бєлік присутньо багато чудових прикладів оформлення приватних будинків. Власникам нерухомості в котеджне містечко Balaton Village в с. Нові Петрівці варто звернути увагу на оформлення одного з таких об'єктів на цій території.
Спланований нашими дизайнерами інтер'єра забудова вважається зразком сучасного стилю, де вдало додані елементи Soft Loft та Japandi. Саме це створює враження стриманості, високої вартості дизайну та затишку всередині.
В портфоліо студії інтер’єрів Бєлік присутньо багато чудових прикладів оформлення приватних будинків. Власникам нерухомості в котеджне містечко Balaton Village в с. Нові Петрівці варто звернути увагу на оформлення одного з таких об'єктів на цій території.
Спланований нашими дизайнерами інтер'єра забудова вважається зразком сучасного стилю, де вдало додані елементи Soft Loft та Japandi. Саме це створює враження стриманості, високої вартості дизайну та затишку всередині.
Сучасний дизайн котеджів
В інтер’єрі цього котеджу вдало поєднані суворі лінії із м’якими фактурами. Існує одразу кілька ключових аспектів, які зробили будинок затишним та цікавим.
- Колірна палітра
Основа дизайну — монохромна природна гама. Вона побудована на грі відтінків, а не на контрастах.
Базовими кольорами обрали кавовий, тауп (сіро-коричневий), антрацит та теплий сірий.
Акцентними зробили — темне дерево (горіх або морений дуб) та матовий чорний у деталях (змішувачі, трекові світильники, рами).
Також додали світлих “плям”. Це текстиль кольору слонової кістки, мармурові стільниці та світла деревина підлоги, що додають простору повітря.
- Матеріали та текстури
Головна фішка цього дизайну — тактильність. Використано багато натуральних або імітуючих їх матеріалів.
Вертикальні стінові панелі з глибокою текстурою дерева додають ритму та тепла.
Великоформатні плити з матовою текстурою дикого каменю або мармуру (у ванній та на кухонному фартусі) створюють ефект розкоші та підкреслюють вишуканий смак власників житла.
Матові чорні та бронзові металеві елементи виглядають дуже сучасно.
Букле або груба рогожка на дивані та стільцях, важкі портьєри в тон стін, що створюють ефект "кокона" та інші елементи текстилю пом'якшують грубі фактури, додають необхідного в дизайн затишку.
- Освітлення
Світло грає роль архітектурного інструменту. В кожній кімнаті присутня прихована підсвітка. Світлодіодні стрічки за панелями, під кухонними шафами та в нішах гардероба створюють ефект "ширяння" меблів.
Акцентні світильники для будинку підібрані зі смаком. Вони не просто підсвічують зони, а виступають якірними елементами інтер'єру. Люстри над островом та обіднім столом мають графічну, майже скульптурну форму.
Локальне світло також використовуються для різних сценаріїв. Були обрані також настільні лампи-гриби, настінні елемнети.
- Особливості зонування та меблів
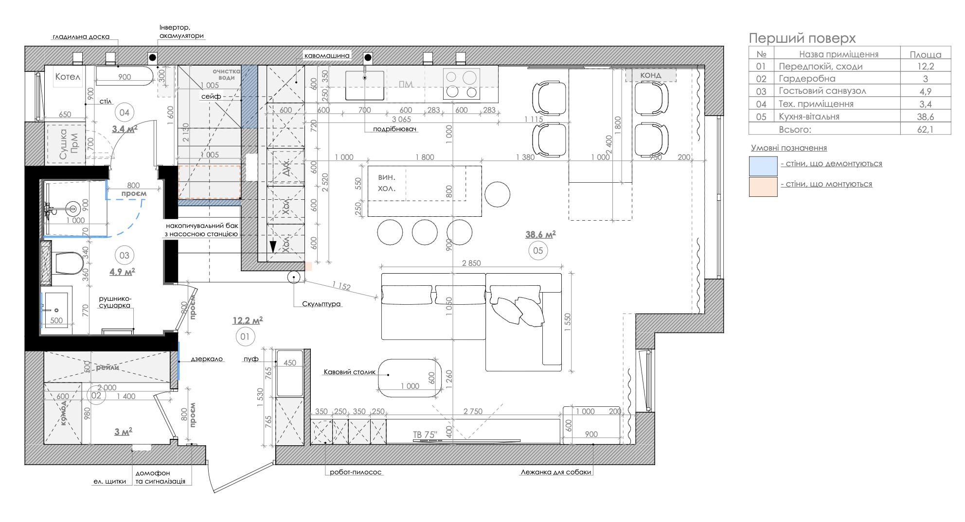
Цей дизайн котеджів має стандартне планування. Перший поверх — це кімнати загального користування (кухня-вітальня, гостьовий санвузол, техприміщення, гардеробна). На другому — розташована житлова зона.
Розподіл простору у кімнатах вільного користування виконано не за допомогою дверей, а через меблі.
Використано кухонний острів як перехідну зону. Диван розвернуто так, щоб створювалась окрема зона для відпочинку.
Фасади кухні та всіх меблів у котеджі максимально лаконічні, без видимих ручок. Шафи та зони зберігання інтегровані в стіни (вбудовані конструкції), що дозволяє уникнути візуального шуму.
Додатково є технічне приміщення, де за дверима розмістити пральну та сушильну машину, сховали котел за коробом. Також в технічному приміщенні зберігається техніка та інвентар для прибирання, мийні засоби тощо.
Щоб уникнути надто суворої атмосфери через використання чітких ліній, в кімнатах були додані м’які меблі закруглих форм. Диван, обідні стільці, крісла — все це пом’якшує інтер’єр.
Цей дизайн є ідеальним прикладом раціонального та вдалого розподілу простору. Правильного підбору стиля, кольорів, текстур та всіх елементів. Окрім дизайнерських фішок, які роблять візуал гармонійним — дизайнер подбав про зручне та технічне правильне прокладання комунікацій, впровадження інновацій.
Цей дизайн є ідеальним прикладом раціонального та вдалого розподілу простору. Правильного підбору стиля, кольорів, текстур та всіх елементів. Окрім дизайнерських фішок, які роблять візуал гармонійним — дизайнер подбав про зручне та технічне правильне прокладання комунікацій, впровадження інновацій.
Котеджне містечко Balaton Village в с. Нові Петрівці — особливості планування забудов
Це дизайн котеджів на 130 м2 потрібно було спланувати для родини із трьома дітьми. Весь простір використали по-максимуму. Врахували в оформленні побажання кожного мешканця, додали функціональності та затишку.
Перший поверх пристосовано для загального користування. Вітальня-кухня слугує місцем, де може збиратися вся родина, приходити друзі та знайомі. В кімнаті-студії вдосталь місця для приготування та приймання їжі, відпочинку перед ТБ, активних ігор та спілкування. Технічне приміщення, окремий санвузол, гардеробна — також зроблені на першому поверсі. Це дозволило уникнути необхідності підніматися наверх для того, щоб взяти швабру чи прийняти душ після прогулянки.
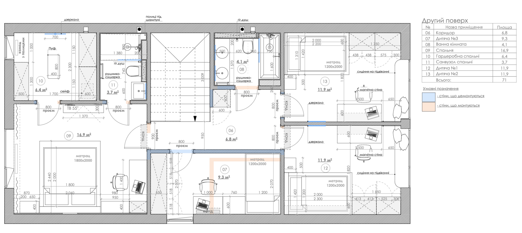
На другому поверсі було створено особистий простір для кожного мешканця. Спальня дорослих виконана окремою групою. За принципом “кімната в кімнаті”. Зі спільні є вихід в окрему гардеробну та ванну. Такий захід можливий не лише у випадку з котеджами та просторими будинками. Послуги з дизайну квартири від фахівців інтер'єрної агенції Бєлік часто мають подібний розподіл, що гарантує усамітнення та комфорт мешканців.
Дитячі зроблені окремо, з загальною ванною кімнатою в передпокої. У ванній вся сантехніка та полиці знаходяться на зручній для малечі висоті. Кожна кімната має власний вхід та унікальний простір. Оформлення кімнат для дітей виконувалося з урахуванням потреб, віку, статі, інтересів мешканців. Обов’язково запроваджено поділ приміщень на зони: для навчання, розвитку, відпочинку, занять хобі.
Дитячі зроблені окремо, з загальною ванною кімнатою в передпокої. У ванній вся сантехніка та полиці знаходяться на зручній для малечі висоті. Кожна кімната має власний вхід та унікальний простір. Оформлення кімнат для дітей виконувалося з урахуванням потреб, віку, статі, інтересів мешканців. Обов’язково запроваджено поділ приміщень на зони: для навчання, розвитку, відпочинку, занять хобі.
Потрібен дизайнер інтер єру Гданськ чи в іншому місті Польщі (України), який зможе реалізувати якісні та сучасні ідеї? Інтер'єрна студія Бєлік допоможе вам розробити проєкт та, за потреби, реалізувати його. Довести дизайн котеджів чи квартир до ідеалу. Покращити ваш рівень життя, облаштувати побут під потреби, зробити домівку зручною та затишною, досягти ідеального візуала в інтер'єрі.
Подивіться нашу презентацію