РЕМОНТ КВАРТИРИ З НУЛЯ В ЖК ВАРШАВСЬКИЙ 2 У КИЄВІ
Наявність невеликої квартири для родини з дитиною - це реальність багатьох українців. Замість того щоб намагатися вмістити все в обмеженому просторі, варто спочатку правильно спланувати ремонт.
Досвідчений фахівець може порадити дійсно ефективні рішення з перепланування та розподілу простору, використання сучасних трендів. Меблі під замовлення, влучне поєднання кольорів та фактур, використання кожного м2 на користь, впровадження корисних в побуті інновацій, відображення особистості через дизайн - все це реально сьогодні.
В студії дизайн інтер'єрів Бєлік працюють фахівці, які реальними результатами довели, що навіть малі площі можна зробити затишними та цілком придатними для тривалого проживання. Серед наших прикладів є студії площею всього 35-40 м2, таунхауси з нестандартною геометрією та великі будинки. Присутній різні варіації облаштування більш квартир на 50-70 м2.
Досвідчений фахівець може порадити дійсно ефективні рішення з перепланування та розподілу простору, використання сучасних трендів. Меблі під замовлення, влучне поєднання кольорів та фактур, використання кожного м2 на користь, впровадження корисних в побуті інновацій, відображення особистості через дизайн - все це реально сьогодні.
В студії дизайн інтер'єрів Бєлік працюють фахівці, які реальними результатами довели, що навіть малі площі можна зробити затишними та цілком придатними для тривалого проживання. Серед наших прикладів є студії площею всього 35-40 м2, таунхауси з нестандартною геометрією та великі будинки. Присутній різні варіації облаштування більш квартир на 50-70 м2.
В кожному конкретному випадку ціни на дизайн проект інтер'єру різняться. Адже фахівці інтер'єрної компанії Бєлік розробляють проєктну документацію, орієнтуючись на площу приміщення. Фіксована ціна помножується на кількість м2. Вартість дизайн проекта будинку чи квартири озвучується на старті співпраці. Що стосується витрат на ремонт та оформлення інтер'єру? Ця цифра залежить від ваших індивідуальних побажань до оформлення, складності обраних процесів, вартості товарів для інтер'єру.
Замовники інтер’єрної студії Бєлік заздалегідь повідомляють не лише про свої побажання та потреби родини. Також вказується бюджет, який клієнт готов витратити на дизайні інтер'єру, ремонт приміщення. Беручи до уваги цю цифру дизайнер приймає певні рішення, обирає товари та впроваджує тенденції.
Замовники інтер’єрної студії Бєлік заздалегідь повідомляють не лише про свої побажання та потреби родини. Також вказується бюджет, який клієнт готов витратити на дизайні інтер'єру, ремонт приміщення. Беручи до уваги цю цифру дизайнер приймає певні рішення, обирає товари та впроваджує тенденції.
Важливо! В Бєлік не заощаджують на якості та безпеці. Фахівець може запропонувати більш доступні альтернативи та компроміси, відмовити вас від надто складних та не зовсім потрібних архітектурних робіт тощо. Кожна пропозиція буде характеризуватися доцільністю рішень та ефективністю.
Щоб не загубитися в сотні прикладів, завжди можна попросити дизайнера інтер'єрів зробити підбірку з бажаними варіантами оформлення (стилі, кольори, розмір квартири тощо). Всім, хто шукає максимально затишний інтер'єр, в якому присутня спокійна колористика та єднання з природою варто ознайомитися в фото об’єкта ЖК Варшавський 2. На ньому виконували ремонт квартири з нуля, перед яким було розроблено дизайн проект квартири Київ. Це стандартне приміщення, в якому вдалося створити дійсно ергономічний простір.
Щоб не загубитися в сотні прикладів, завжди можна попросити дизайнера інтер'єрів зробити підбірку з бажаними варіантами оформлення (стилі, кольори, розмір квартири тощо). Всім, хто шукає максимально затишний інтер'єр, в якому присутня спокійна колористика та єднання з природою варто ознайомитися в фото об’єкта ЖК Варшавський 2. На ньому виконували ремонт квартири з нуля, перед яким було розроблено дизайн проект квартири Київ. Це стандартне приміщення, в якому вдалося створити дійсно ергономічний простір.
Квартира ЖК Варшавський 2 - затишок в кожній деталі
Головним запитом замовників було створення максимально затишної, домашньої та комфортної атмосфери. Дизайнер інтер'єрів приклав максимум зусиль, що дозволило з першого погляду на фото об'єкта відчути це тепло.
В основі оформлення були обрані теплі, спокійні палітри. Присутній не лише один базовий бежевий колір в різних його відтінках. Була обрана інша концепція. В однаковій пропорції присутні:
- фактури світлого і темного дерева - зустрічаються в оздобленні стін та підлог, на корпусах та фасадах шаф, в якості елементів м'яких меблів;
- оливковий колір та його відтінки - зустрічається в оформленні фасадів меблів, оздобленні стін, кладки мозаїкою, обшивці м'яких меблів, текстилі;
- більш яскраві помаранчеві відтінки - використали при оформленні дитячої, орієнтуючись на вік, стать на індивідуальні побажання самої дитини.
У квартирі вдало поєднані природні елементи та теплі базові кольори. Кожна деталь тут виступає частиною єдиної композиції. З першого погляду ця квартира навіює затишок та спокій. В основі полягають рішення саме з еко. Тому ремонт квартири з нуля в ЖК Варшавський 2 має багато природних матеріалів, енергоефективних рішень, світла та тепла.
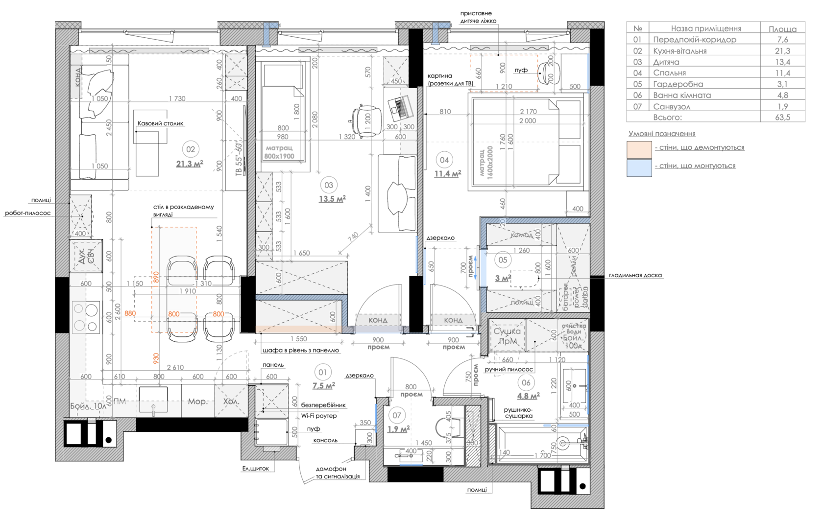
Головною метою було максимально раціональне використання простору, при впровадженні екостиля. Передпокій маленький, але в ньому вдалося зробити технічну шафу. За її фасадами приховали безперебійник, роутер, електрощиток. Також залишилося місце для зберігання верхнього одягу, взуття. Меблева група з передпокою плавно перетікає в кухонний гарнітур, де змінюються фасади з білого та природні оливкові.
Головною метою було максимально раціональне використання простору, при впровадженні екостиля. Передпокій маленький, але в ньому вдалося зробити технічну шафу. За її фасадами приховали безперебійник, роутер, електрощиток. Також залишилося місце для зберігання верхнього одягу, взуття. Меблева група з передпокою плавно перетікає в кухонний гарнітур, де змінюються фасади з білого та природні оливкові.
Вітальню було поєднано з кухнею, що дозволило додати більше місця. Кухонний гарнітур займає майже цілу стіну. Має багато місця для зберігання інвентарю, техніки та іншого приладдя. Щоб логічно завершити зону кухні, було прийняте рішення додати окремий сервант зі скляними дверцятами (для зберігання посуду) та пенал з закритими фасадами й відкритими полицями. Ця частина меблевої групи слугує місцем для зберігання книжок, живих рослин, ваз, іншого корисного декору.
Диван обрали невеликого розміру, стандартної форми. Колір - світлий молочний, з доповненням декоративними подушками однакового з кухнею відтінку (олива). Стіна навпроти - це місце для приймання їжі та окрема ТВ-зона. Обідній стіл розраховано на родину з 4 осіб в складеному вигляді. При роскладанні може вмістити велику компанію.
Диван обрали невеликого розміру, стандартної форми. Колір - світлий молочний, з доповненням декоративними подушками однакового з кухнею відтінку (олива). Стіна навпроти - це місце для приймання їжі та окрема ТВ-зона. Обідній стіл розраховано на родину з 4 осіб в складеному вигляді. При роскладанні може вмістити велику компанію.
ТВ-зона виконує свою функцію Має під низом полицю для зберігання речей, додатковий пенал. Щою стіна, де кріпиться ТВ не виглядала безлико, в ній зробити підсвічування світлодіодами та додали вертикальних смуг. В зоні розташування обіднього столу стіна декорована дерев'яною панеллю.
Деревом в спальні оформлена частина стіни та гардеробна. Двері в неї також виконані з дерева та мають розсувну систему, що не краде місце. Гардеробна - це ідеальне рішення, навіть для невеликих квартир. В середні вдалося розмістити всі речі, аксесуари, взуття тощо.
Деревом в спальні оформлена частина стіни та гардеробна. Двері в неї також виконані з дерева та мають розсувну систему, що не краде місце. Гардеробна - це ідеальне рішення, навіть для невеликих квартир. В середні вдалося розмістити всі речі, аксесуари, взуття тощо.
Ще одна шафа, за фасадами якої схована техніка є в ванній кімнаті. За дверима з дерев'яних рейок помістили пральну та сушильну машини, бойлер, ручний пилотяг. Для ванної та санвузла використовували матеріали з високими показниками вологостійкості. Це гарантує їх ідеальний вигляд навіть через 10-20 років експлуатації.
Дитяча кімната - місце спокою, розвитку та комфорту для малечі. Виконана в теплих, але акцентних кольорах вона гарантує безпеку та чудове самопочуття. Меблі тут робилися під замовлення. Це дозволило створити зручне місце для навчання, зону для відпочинку та ігор, вдосталь місць для зберігання (речей, іграшок, канцелярії). Цікавим рішення є вільні отвори овальної форми. Ще один MustHave для дитячої - це цікаві стіни. На цьому об'єкті зробити стіну у форматі мозаїки, на якій дитина може самостійно створювати картини, додавати нові елементи тощо.
Дитяча кімната - місце спокою, розвитку та комфорту для малечі. Виконана в теплих, але акцентних кольорах вона гарантує безпеку та чудове самопочуття. Меблі тут робилися під замовлення. Це дозволило створити зручне місце для навчання, зону для відпочинку та ігор, вдосталь місць для зберігання (речей, іграшок, канцелярії). Цікавим рішення є вільні отвори овальної форми. Ще один MustHave для дитячої - це цікаві стіни. На цьому об'єкті зробити стіну у форматі мозаїки, на якій дитина може самостійно створювати картини, додавати нові елементи тощо.
Бажаєте ремонт квартири з нуля, схожий за концепцією на ЖК Варшавський 2 або прагнете отримати щось протилежне за стилем? В інтер'єрній компанії Бєлік задовольняються запити замовників та створюються персоналізовані, сучасні, оптимальні та комфортні простори. Для цього варто лише замовити дизайн проект квартири ціна якого не перевищуватиме 8% вашого майбутнього ремонту, але дозволить отримати інтер'єр мрії. При цьому ви заощадите кошти на виправленні помилок та перевитратах на матеріалах, вбережете свої нерви та не витратите роки на ремонт.
Подивіться нашу презентацію