СУЧАСНІ СТИЛІ ДИЗАЙН ІНТЕР’ЄРУ КВАРТИРИ В ЖК ГРЕЙТ У КИЄВІ
• Локація - ЖК Грейт, Київ, Україна
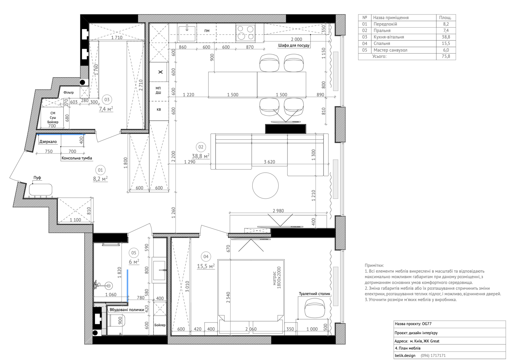
• Площа квартири – 75,8 м²
• Формат роботи – дизайн проєкт інтер'єру
• Площа квартири – 75,8 м²
• Формат роботи – дизайн проєкт інтер'єру
Плануючи відтворити на своєму об'єкті сучасні стилі дизайн інтер'єру квартири дуже важливо ще на старті обрати професійних виконавців. Від компетентності, навичок, знань та досвіду залежить результат. Те, як саме будуть виглядати інновацій та тренди вашій квартири. Наскільки зручно та доречно вони будуть впроваджені.
Студія дизайну інтер'єру Бєлік - це компанія, в якій створюються функціональні, затишні ті унікальні простори. Раніше, знаходячись за межами України клієнти могли отримати лише розробку детального проєкта. Сьогодні послуги у повному форматі надає наша дизайн студія інтер єру у Польщі.
Студія дизайну інтер'єру Бєлік - це компанія, в якій створюються функціональні, затишні ті унікальні простори. Раніше, знаходячись за межами України клієнти могли отримати лише розробку детального проєкта. Сьогодні послуги у повному форматі надає наша дизайн студія інтер єру у Польщі.
В цій країні активно функціонує перевірена та повністю укомплектована команда фахівців. Отже, ви можете замовити дизайн “під ключ” — з розробкою проекта, ремонтом та авторським наглядом. Студія дизайну інтер єру Гданськ має надійних виконавців, перевірених постачальників товарів для інтер'єру та виробників меблів.
Звернувшись до компанії інтер'єрів Бєлік ви гарантовано отримаєте персоналізований дизайн, підлаштований під потреби вашої родини та бюджет. Не виникне мовного непорозуміння, проблем під час обговорення стратегії та певних робіт. Всі процеси, які спонукають до створення сучасного стиля у квартирі виконають в правильній послідовності.
Звернувшись до компанії інтер'єрів Бєлік ви гарантовано отримаєте персоналізований дизайн, підлаштований під потреби вашої родини та бюджет. Не виникне мовного непорозуміння, проблем під час обговорення стратегії та певних робіт. Всі процеси, які спонукають до створення сучасного стиля у квартирі виконають в правильній послідовності.
Якщо інтер'єр планує наша дизайн студія інтер єру Варшава (Гданськ, Київ, Закарпаття, інші міста), радимо заздалегідь подивитися портфоліо з прикладами. Адже всі наші сучасні стилі дизайн інтер'єру квартири відрізняються деталями, акцентами, настроєм, кольорами. Обирається концепція, виходячи з можливостей, індивідуальних потреб та побажань клієнтів.
Одним подобається витриманість та дотримання мінімалізму. Інші просять внести елементів еко та етно. Ще одним максимально важливо відобразити вишуканий смак через коштовні елементи, складні архітектурні роботи та дизайнерські меблі.
Залежно від запиту дизайнер інтер'єру планує простір, підбирає товари та процеси. Якщо ви прагнете витриманого оформлення, який буде відображати гарний смак — радимо звернути увагу на об'єкт в ЖК Грейт у Києві.
Одним подобається витриманість та дотримання мінімалізму. Інші просять внести елементів еко та етно. Ще одним максимально важливо відобразити вишуканий смак через коштовні елементи, складні архітектурні роботи та дизайнерські меблі.
Залежно від запиту дизайнер інтер'єру планує простір, підбирає товари та процеси. Якщо ви прагнете витриманого оформлення, який буде відображати гарний смак — радимо звернути увагу на об'єкт в ЖК Грейт у Києві.
Мінімалізм з елементами сучасного люксу у ЖК Грейт у Києві
Мінімалізм з елементами сучасного люксу у ЖК Грейт у Києві — саме так можна схарактеризувати цей простір. Головне правило, яке працює: ”чим менше, тим краще”. Це стосується використання декору, текстиля, незрозумілих інсталяцій.
Якщо було прийняте рішення використати складні архітектурні процеси, то з конкретною метою. Вдалим прикладом цього слід вважати острів посеред кімнати-студії. Острів став центральним елементом, на якому можна готувати їжу, зберігати речі та пити каву. Його наявність дозволила уникнути робочої кухонної зони вздовж стіни. Там розмістили меблеву групу з вбудованою технікою та достатньою кількістю місця для зберігання. Витяжка, варильна поверхня, мийка, зона для приготування їжі — все це вдало розмістило на острові.
Необхідним та корисним архітектурним елементом також стала колона в кімнаті-студії. На одній стороні колони вдало розмістити телевізор. Друга, стала бар’єром між вітальнею та кухнею. Візуально вона допомогла розділити простір на зони, не вкравши при йому зайві м2 (як це б зробила повноцінна стіна з дверима).
Нотки мінімалізму простежуються в оформленні всієї квартири через
Вдалим прикладом того, як це працює є диван. Він масивний, але без зайвих деталей.
Нотки мінімалізму простежуються в оформленні всієї квартири через
- мінімальну кількість декору;
- чисті лінії;
- прості геометричні форми;
- багато “повітря” в просторі.
Вдалим прикладом того, як це працює є диван. Він масивний, але без зайвих деталей.
Колористика — це саме те, що створює певне враження та задає настрій. Дизайнер інтер'єру, орієнтуючись на індивідуальні побажання замовника, обрав темну, глибоку палітру. Базою стали відтінки граніту, чорного, темно-коричневого, бежа.
Акценти створювалися через додавання природного зеленого (декоративні подушки, живі рослини у вазонах),
Замість "грати" на колірних контрастах, ставка була зроблена на поєднанні різних фактур. Використали протилежні природні матеріали, які в цьому інтер'єрі чудово “грають” між собою. А саме:
Ці матеріали додають “тепла”, позбавляючи інтер'єр ефекту сірості та похмурості.
Акценти створювалися через додавання природного зеленого (декоративні подушки, живі рослини у вазонах),
Замість "грати" на колірних контрастах, ставка була зроблена на поєднанні різних фактур. Використали протилежні природні матеріали, які в цьому інтер'єрі чудово “грають” між собою. А саме:
- дерево (панелі, меблі);
- камінь або його імітація (стіни, кухня);
- текстиль з природною фактурою.
Ці матеріали додають “тепла”, позбавляючи інтер'єр ефекту сірості та похмурості.
Неможливо уявити сучасні стилі дизайн інтер'єру квартири без світових сценаріїв. Саме освітлення є базою в оформленні інноваційних, функціональних та цікавих просторів. Квартира в ЖК Грейт у Києві не стала виключенням.
Тут присутні одразу кілька різних елементів освітлення, а саме:
Світло тут — не просто функція, а частина дизайну. Підтвердженням цього є обрані над обідньою зоною та в спальні світильники-стрічки. Вони виступають якірними елементами, привертаючи увагу.
Тут присутні одразу кілька різних елементів освітлення, а саме:
- трекові системи;
- вбудовані точкові світильники у стелі;
- LED-підсвітка в нішах, дзеркалах, по периметру панелей тощо;
- акцентні світильники — дизайнерські, сміливі та оригінальні.
Світло тут — не просто функція, а частина дизайну. Підтвердженням цього є обрані над обідньою зоною та в спальні світильники-стрічки. Вони виступають якірними елементами, привертаючи увагу.
Щоб візуально не красти просторі та не розчаровуватися у невідповідності фасадів до кольору стін, було прийняте рішення робити під замовлення корпусні меблі для кухні та всієї квартири в цілому. Це дозволило зробити фасади меблів в одній стилістиці, кольорі. Самостійно спланувати внутрішнє наповнення. Максимально використати кожний см, приховати всі комунікацій в нішах та за дверима.
Завдяки меблям під замовлення у квартирі зручніше було зробити акценти на певні частини чи групу меблів. В ЖК Грейт у Києві таким елементом став сервант, зі скляними дверцятами. Також двері з затемненого скла використали у шафі (спальня).
Завдяки меблям під замовлення у квартирі зручніше було зробити акценти на певні частини чи групу меблів. В ЖК Грейт у Києві таким елементом став сервант, зі скляними дверцятами. Також двері з затемненого скла використали у шафі (спальня).
Вам потрібен інтер'єр, де переважатиме візуальна простота, якісні матеріали, світло та простір (як у ЖК Грейт у Києві)? В інтер’єрній студії Бєлік втілюють у життя мрії, в найкращому вигляді. Незалежно від складності та площі об'єкта ви отримаєте сучасний та підлаштований під вас простір, для комфортного життя. Детальну інструкцію майбутнього ремонту через дизайн проект. Якісну його реалізацію (за запитом) з наданням гарантій.
Подивіться нашу презентацію