ІНТЕР’ЄР КВАРТИР ФОТОГРАФІЇ В ЖК ПРИЧАЛ 8 У КИЄВІ
• Локація - ЖК Причал 8, Київ, Україна
• Площа квартири – 71,9 м²
• Формат роботи – дизайн проєкт інтер'єру + дизайнерський нагляд + ремонт під ключ
• Рік завершення – 2025
• Площа квартири – 71,9 м²
• Формат роботи – дизайн проєкт інтер'єру + дизайнерський нагляд + ремонт під ключ
• Рік завершення – 2025
Дизайнерський ремонт квартири - це не примха для багатіїв. Це інвестування в спокій та комфорт. Замість того щоб звалювати на свої плечі планування ремонту, а потім контролювати всю його реалізацію - ви довіряєте цю справу професіоналам.
На фінішу отримаєте не просто гарний візуал. Ви позбавляєте себе турбот за можливі помилки в оформленні простору, виконанні робіт та інших супутніх незручностей. Розроблений індивідуально для вашого об'єкта дизайн проект дозволяє ще на старті побачити всі рішення, спланувати терміни та бюджет.
На фінішу отримаєте не просто гарний візуал. Ви позбавляєте себе турбот за можливі помилки в оформленні простору, виконанні робіт та інших супутніх незручностей. Розроблений індивідуально для вашого об'єкта дизайн проект дозволяє ще на старті побачити всі рішення, спланувати терміни та бюджет.
Проектна документація не просто є інструкцією майбутнього ремонту. Вона дозволяє зробити кожний крок правильним та прогнозованим. Наявність дизайн проекта заощаджує до 20% вашого бюджету на ремонт. До того ж всі товари та рішення будуть обиратися з орієнтованістю на ваші фінансові можливості. Економія відбувається завдяки відсутності зайвих робіт та процесів, які б могли нав'язати майстри. Також ви не витрачатимете кошти на купівлю зайвих матеріалів та товарів для інтер'єру. Не сплачуватиме за виправлення помилок, адже більшість з них буде уникнено ще під час планування ремонту.
Подивитися, як може виглядати оформлення простору в столиці або за її межами можна в портфоліо інтер’єрної студії Бєлік. В нашій компанії зібрані приклади максимально різних об'єктів, які відрізняються бюджетом, стилем, колористикою та загальною концепцією.
Подивитися, як може виглядати оформлення простору в столиці або за її межами можна в портфоліо інтер’єрної студії Бєлік. В нашій компанії зібрані приклади максимально різних об'єктів, які відрізняються бюджетом, стилем, колористикою та загальною концепцією.
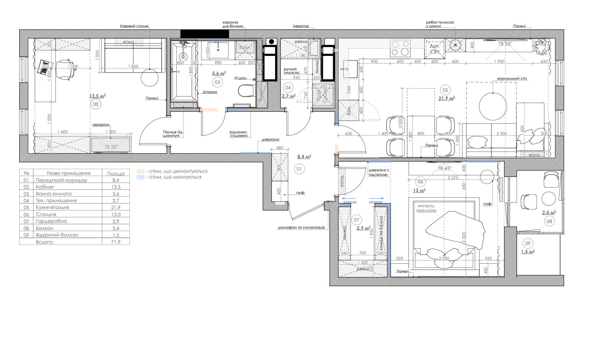
Цікавим та натхненним варіантом оформлення квартири в новобудові приблизно на 70 м2 слід вважати об’єкт ЖК Причал 8 у Києві. Тут виконувався повний комплекс робіт під ключ:
Результат ремонту був очікуваним та запланованим. А сам інтер'єр виявився орієнтованим на потреби мешканців, сучасним, покращуючи рівень життя та максимально комфортним.
Щоб надихнутися певними рішеннями, перейняти концепцію або впевнитися в професіоналізмі наших співробітників ви можете подивитися інтер'єр квартир фотографії з ЖК Причал 8 у Києві. Реальні фото результату свідчать про професійний рівень та проміркованість всіх ідей. Доводять, що навіть на малих площах реально створити візуально гарний та функціональний простір.
- дизайн проект;
- ремонт;
- авторський нагляд.
Результат ремонту був очікуваним та запланованим. А сам інтер'єр виявився орієнтованим на потреби мешканців, сучасним, покращуючи рівень життя та максимально комфортним.
Щоб надихнутися певними рішеннями, перейняти концепцію або впевнитися в професіоналізмі наших співробітників ви можете подивитися інтер'єр квартир фотографії з ЖК Причал 8 у Києві. Реальні фото результату свідчать про професійний рівень та проміркованість всіх ідей. Доводять, що навіть на малих площах реально створити візуально гарний та функціональний простір.
Інтер'єр квартир - фотографії, що надихають
Фото реального та вже реалізованого об'єкта дозволяє не просто подивитися дизайн інтер'єру вартість в приблизних межах ви також можете дізнатися. Адже дизайнер інтер’єрів точно знає, скільки коштувати певні процеси та матеріали. Ви будете розуміти, який бюджет потрібен для створення чогось схожого в вашій оселі. Особливо близька цифра видатків, якщо квартира знаходиться в тому самому ЖК Причал 8 у Києві або має схожу квадратуру.
Судячи з наданих зображень результату можна чітко оцінити стиль та якість виконання робіт. На об'єкті ЖК Причал 8 у Києві переважає сучасний та стриманий стиль. Вільний простір, його використання та зонування в кімнаті-студії актуально для більшості випадків.
Адже квартири в новобудовах часто здаються з вільним плануванням. Щоб не красти зайві м2 через зведення стін та не переплачувати за будівельні роботи, оздоблення - частина квартири з кімнатами загального користування поєднують в одну велику. Це дозволяє розставити зручні меблі, додати зони для ігор та навіть зробити столову (з великим обіднім столом та достатню кількістю місць для сидіння).
Впровадження інновацій, сучасних трендів, поєднання різних фактур, приховування комунікацій та багато ефективних рішень відображає цей інтер'єр квартир фотографії.
Впровадження інновацій, сучасних трендів, поєднання різних фактур, приховування комунікацій та багато ефективних рішень відображає цей інтер'єр квартир фотографії.
Актуальні рішення у квартирі ЖК Причал 8 у Києві
- Меблі під замовлення. Це дає змогу використовувати однакові системи, фактури та кольори. На цьому об'єктів меблярами була створена окрема меблева група в кімнаті-студії. Кухонний гарнітур плавно перетікає в шафу під ТВ зоною. Навіть акцентна зона, з дерев'яної панелі за ТВ, виконана з ідентичних з фасадами та корпусом меблів матеріалу. Такий підхід створив ефект цілісності ідеї. Дозволив заощадити кошти та максимально використати кожний м2.
- Гардеробна. В цій квартирі невелику комору використали з користю. Замість кутової шафи на дві стіни вийшло зробити одразу три стіни ефективними. Також були зроблені системи для зберігання відкритого та закритого типу, вішаки тощо. Відділяють гардероб від спальні розсувні, скляні двері. Цей хід також заощадив простір. Візуально виглядає дизайн з такими системами естетично та доцільно.
- Робоча поверхня (стільниця) та кухонний фартух виконані з однакової компакт-плити.
- Ніша під сервантом, для зупинки робота пилосмока. Вона не припадає в око, але є максимально зручним місцем для зберігання цієї техніки.
- Робоче місце в кабінеті. Його зробили біля вікна. Стіл плавно перетікає в меблі для зберігання на сусідній стіні.
- Акцентна стіна в спальні в двох варіантах оформлення. ДСП панелювання та декоративна скеля - тренд останніх сезонів.
- Прохідні вимикачі біля кожного спального місця. Також розміщено розетки та вимикачі кожної групи бра.
- Багато рівнів освітлення. Окрім трекових систем, присутні точкові світильники, підсвічування по периметру стелі та стін світлодіодними стрічками, окремі бра та навесні плафони.
- Поєднання в оздобленні фактур дерева, світлого бежевого однотонну та темних сірих палітр. Акценти створені саме елементами темного кольору у вигляді стіни-скелі, натуральних тканин на оббивці м'яких меблів, цікавих візерунків на компакт-плиті та керамічній плиті.
- Полиці, вбудовані у стіну - для ванної кімнати це MustHave, який заощаджує простір та дозволяє зберігати всі засоби “під рукою”.
- Раковина врізна у стільницю та обладнана осмосом (подрібнювачем сміття).
- Приховування всіх комунікацій, щитових, бойлера, пральної та сушильної машини, іншої техніки та приладдя за фасадами технічних (звичайних) шаф. З таким підходом вони завжди лишаються в доступі, але не знаходяться на видному місці.
Якщо ви хочете замовити ремонт квартири Київ, в якому будуть впроваджені сучасні та довівші ефективність тенденції - дизайн студія Бєлік допоможе в цьому. Наша компанія впродовж 10 років спеціалізується на плануванні та реалізації дизайну житлових приміщень на професійному рівні. Ми підлаштовуємо стилі та побажання клієнтів під їх побут (фінансові можливості), створюючи дійсно комфортні умови.
🔗 Дивіться також:
Подивіться нашу презентацію