ТАУНХАУС У КОТЕДЖНОМУ МІСТЕЧКУ BEVERLY HILLS RESIDENCE У С. ГАТНЕ У КИЇВСЬКІЙ ОБЛАСТІ
Таунхаус в с. Гатне - дизайн проєкт та ремонт
Таунхауси - це забудови, які мають великий попит серед населення. Відокремлені будинки мають певну автономію та досить великий простір. До того ж, котеджне містечко Beverly Hills Residence дає відчуття безпеки та комфорту.
Зовсім не дивно, що багато запитів саме на проектування внутрішнього інтер'єру та ремонт таких об'єктів. На відміну від квартир в новобудовах чи навіть окремих будинків, оформлення таунхаусів мають певні особливості. Це двоповерхові простори, які мають планувальні відмінності. На першому поверсі, як правило, одна велика кімната-студія та технічні приміщення. На другому - передбачено розташування вже житлових кімнат. Враховуючи це, немає потреби кардинально змінювати планування та виконувати складні роботи.
Потрібно просто правильно оформити кожне приміщення, зробивши максимально функціональні зони та з розумом використавши простір. Навіть незручні рішення можна обіграти на користь, зробити цікавим акцентом або корисним в побуті елементом. Виноти це без колосальних витрат та технічно правильно можна, якщо найняти дизайнера інтер'єрів.
Цей фахівець створить інтер'єр вашої мрії спочатку на схемах та 3Д візуалізації. Допоможе проявитися через дизайн, впровадивши ефективні тенденції та корисні в повсякденні інновації. Саме дизайнер інтер'єрів пропише покроковий план ремонту. Тобто, надасть всю технічну документацію стосовно етапів робіт, обсягів, послідовності тощо. Ви матимете не просто замальовки можливого результату. Буде надано детальний та покроковий план дій, який призведе до бажаного результату.
Цей фахівець створить інтер'єр вашої мрії спочатку на схемах та 3Д візуалізації. Допоможе проявитися через дизайн, впровадивши ефективні тенденції та корисні в повсякденні інновації. Саме дизайнер інтер'єрів пропише покроковий план ремонту. Тобто, надасть всю технічну документацію стосовно етапів робіт, обсягів, послідовності тощо. Ви матимете не просто замальовки можливого результату. Буде надано детальний та покроковий план дій, який призведе до бажаного результату.
Студія інтер’єрів Бєлік працює саме за таким принципом та має понад 100 реалізованих дизайн проектів. Серед такої чисельності прикладів присутньо багато реалізованих таунхаусів в с. Гатне. Крім розробки проектної документації в компанії Бєлік можна замовити ремонт та супровід. Котеджне містечко Beverly Hills Residence входить в перелік тих, де неодноразово працювали наші дизайнери інтер'єрів та ремонтно-будівельні бригади. Впевнитися особисто в оригінальності інтер'єра, при досить непростому плануванні об’єкта, можна на прикладі таунхаусу в с. Гатне.
Таунхаус в с. Гатне - секрети вдалого планування
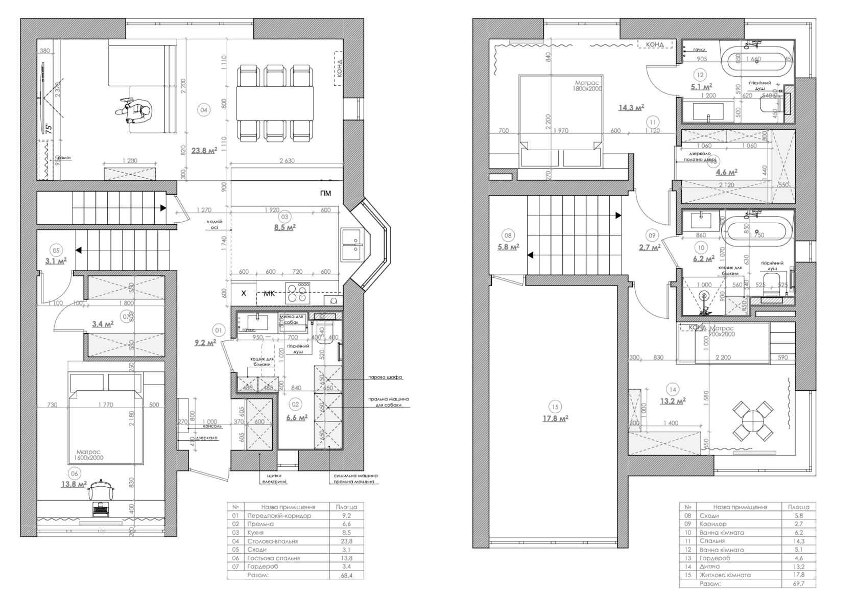
Котеджне містечко Beverly Hills Residence має таунхауси з цікавими планувальними рішеннями. Цей об’єкт у два поверхи приблизно на 120 м2 (по 60+ на кожному) достатньо складний в оформленні приклад. Дизайнеру інтер'єрів довелося працювати з особливостями забудови (еркерні вікна, кімната під сходами), невеликими житловими та технічними приміщеннями. Було прийняте рішення використати наданий простір по-максимуму.
У великій кімнаті загального користування вдалося розмістити зону кухні, столової, вітальні. Кухня виконана в ніші та призначена для приготування їжі. Меблевий гарнітур має П-образну форму. Оснащений всією необхідною технікою, інвентарем, посудом. Одна з частин виступає островом, що є додатковою робочою поверхнею та місцем для зберігання. Другій частинна кухні розташована в зоні еркерних вікон. Це додає природного освітлення та виглядає естетично. Але облаштування цієї частини потребувало планування меблів до дрібниць.
Кухонний гарнітур, як і більшість меблів у таунхаусі с. Гатне, виготовлені під замовлення.Такий підхід дозволив:
Враховуючи те, що корпусні конструкції виготовлялися під замовлення, було прийняте рішення зробити острів-сервант. Сервант має скляні двері та розташований у зоні столової. Призначений для зберігання посуду.
- використати кожну нішу та закуток;
- досягти максимального прилягання конструкцій до стін;
- “погратися” з розмірами та кількістю полиць;
- провести (де потрібно) додаткове підсвічування;
- обрати ідентичні фактури/фасади і навіть пофарбувати їх у колір стін.
Враховуючи те, що корпусні конструкції виготовлялися під замовлення, було прийняте рішення зробити острів-сервант. Сервант має скляні двері та розташований у зоні столової. Призначений для зберігання посуду.
Столова має місткий обідній стіл (мінімум на 6 персона) для великої родини та постійних гостей. Одразу за столом починається зона вітальної. Вона обставлена необхідними для відпочинку меблями - зручним диваном, ТВ зоною, полицями для книг та декору. Інтер’єр об’єкта котеджного містечка Beverly Hills Residence має цікаву особливість.
В кімнаті-студії встановлено камін-піч. Конструкція, з живим вогнем за склом виглядає дуже естетично. При цьому, вона додатково прогріває забудову. Були заплановані та проведені всі роботи з вентилювання та кондиціонування, що дозволяє без проблем користуватися каміном в сезон.
В кімнаті-студії встановлено камін-піч. Конструкція, з живим вогнем за склом виглядає дуже естетично. При цьому, вона додатково прогріває забудову. Були заплановані та проведені всі роботи з вентилювання та кондиціонування, що дозволяє без проблем користуватися каміном в сезон.
Окрім кухні-вітальні, перший поверх таунхаусу має велику спальню, яка може бути притулком для гостей або місцем для усамітнення когось з родини. Технічне приміщення розташоване також на першому поверсі. В ньому присутня зона санвузла. Розміщено котел, пральну та сушильну машини, місця для зберігання побутової хімії та домашнього інвентарю тощо. Зберігання більшості побутових речей за дверима пральної дозволяють досягти візуальної естетики та зручності в догляді за інтер'єром.
Дерев’яні сходи ведуть на другий поверх. На ньому облаштовані житлові кімнати - спальня, дитяча, гостьова, кабінет. В спальні дизайнер створив максимально комфортну атмосферу. Зі ручним ліжком, приліжковими тумбами, додатковим теплим освітленням. Зі спальні є вихід до гардеробної, де зберігають більшість одягу, взуття, аксесуарів. Це дозволило уникнути великих шаф по всьому будинку.
Дерев’яні сходи ведуть на другий поверх. На ньому облаштовані житлові кімнати - спальня, дитяча, гостьова, кабінет. В спальні дизайнер створив максимально комфортну атмосферу. Зі ручним ліжком, приліжковими тумбами, додатковим теплим освітленням. Зі спальні є вихід до гардеробної, де зберігають більшість одягу, взуття, аксесуарів. Це дозволило уникнути великих шаф по всьому будинку.
Дитяча - особливий простір, де є місце розвитку та ігр. Тому це приміщення було облаштовано в неперевантажуючих сенсорно, але цікавих кольорах. Спокійний зелений - ідеальний колір, який дозволив створити цікаві ігрові зони, зручне місце для навчання та затишне для відпочинку.
Таунхаус в с. Гатне - оформлення дизайн інтер'єру у кольорах
Загальна концепція у виборі кольорів та фактур на об'єктні с. Гатне - це природні кольори та фактури. В кожному приміщенні тут можна побачити теплий беж та світлу колористику в різних фактурах. Дерево, текстиль, декорування стін, однотонний матовий - ця палітра присутня у різних проявах та гармонійно перетікає з однієї форми в іншу. Те ж саме відбувається з сірою колористикою. Від темного мармуру вона плавно переходить у світло-сірий однотон на фасадах меблів та декоративне шпаклювання на стінах. Елементи чорного на меблях, побутової техніки, сантехніки, освітлювальних приладах, в декорі та текстилі ідеально розводять спокійні палітри.
В загальній концепції цей дизайн інтер'єру виглядає максимально отримано, але сучасно. Тут немає надлишку декору та текстилю, що полегшує догляд за будинком. Всі рішення зрозуміли та доцільні. В загальній купі вони створюють гармонійний та комфортний простір, де все дарує візуальну насолоду.
Якщо ви обрали для себе котеджне містечко Beverly Hills Residence та плануєте дійсно якісний ремонт, радимо звернутися до бюро дизайну інтер'єрів Бєлік. На власному досвіді фахівці знають, як створити в таунхаусах комфортні умови та підлаштувати інтер'єр під потреби, можливості, побажання майбутніх мешканців. Крім отримання бажаного результату, ви зробите свій ремонт передбаченим. Це заощадить кошти та збереже час.
Якщо ви обрали для себе котеджне містечко Beverly Hills Residence та плануєте дійсно якісний ремонт, радимо звернутися до бюро дизайну інтер'єрів Бєлік. На власному досвіді фахівці знають, як створити в таунхаусах комфортні умови та підлаштувати інтер'єр під потреби, можливості, побажання майбутніх мешканців. Крім отримання бажаного результату, ви зробите свій ремонт передбаченим. Це заощадить кошти та збереже час.
Плануючи ремонт у таунхаусі, важливо заздалегідь розуміти послідовність дій, бюджет та кінцевий результат. Саме тому все більше власників обирають дизайн проект квартири ще до початку робіт. Такий підхід дозволяє уникнути хаотичних рішень, передбачити всі технічні моменти та отримати інтер’єр, який буде зручним і актуальним упродовж багатьох років.
У студії Бєлік ви можете замовити ремонт квартир або таунхаусів під ключ — від проєктування до повної реалізації. Роботи виконуються за чіткою технічною документацією, що гарантує відповідність готового інтер’єру 3D-візуалізаціям, дотримання термінів і контроль якості на кожному етапі.
У студії Бєлік ви можете замовити ремонт квартир або таунхаусів під ключ — від проєктування до повної реалізації. Роботи виконуються за чіткою технічною документацією, що гарантує відповідність готового інтер’єру 3D-візуалізаціям, дотримання термінів і контроль якості на кожному етапі.
Ще на старті співпраці замовники отримують розуміння, якою буде вартість дизайн квартир та загальний бюджет на реалізацію. Це дає можливість приймати зважені рішення, обирати оптимальні матеріали й уникати непередбачених витрат у процесі ремонту.
Над кожним об’єктом працює дизайнер інтер’єрів київ з реальним досвідом проєктування складних просторів — зокрема таунхаусів із двоповерховим плануванням. Саме завдяки професійному підходу вдається максимально ефективно використати кожен квадратний метр і створити комфортне середовище для всієї родини.
Ознайомитися з реалізованими об’єктами та повним переліком дизайн інтер’єру послуги можна в портфоліо студії Бєлік. Таунхаус у с. Гатне — яскравий приклад того, як грамотне проєктування та якісна реалізація перетворюють складний простір на гармонійний, функціональний і по-справжньому затишний дім.
Над кожним об’єктом працює дизайнер інтер’єрів київ з реальним досвідом проєктування складних просторів — зокрема таунхаусів із двоповерховим плануванням. Саме завдяки професійному підходу вдається максимально ефективно використати кожен квадратний метр і створити комфортне середовище для всієї родини.
Ознайомитися з реалізованими об’єктами та повним переліком дизайн інтер’єру послуги можна в портфоліо студії Бєлік. Таунхаус у с. Гатне — яскравий приклад того, як грамотне проєктування та якісна реалізація перетворюють складний простір на гармонійний, функціональний і по-справжньому затишний дім.
Подивіться нашу презентацію