ДИЗАЙН ПРОЕКТ КВАРТИРИ В ЖК SOFIA RESIDENCE У КИЄВІ
• Локація - ЖК Sofia Residence, Київ, Україна
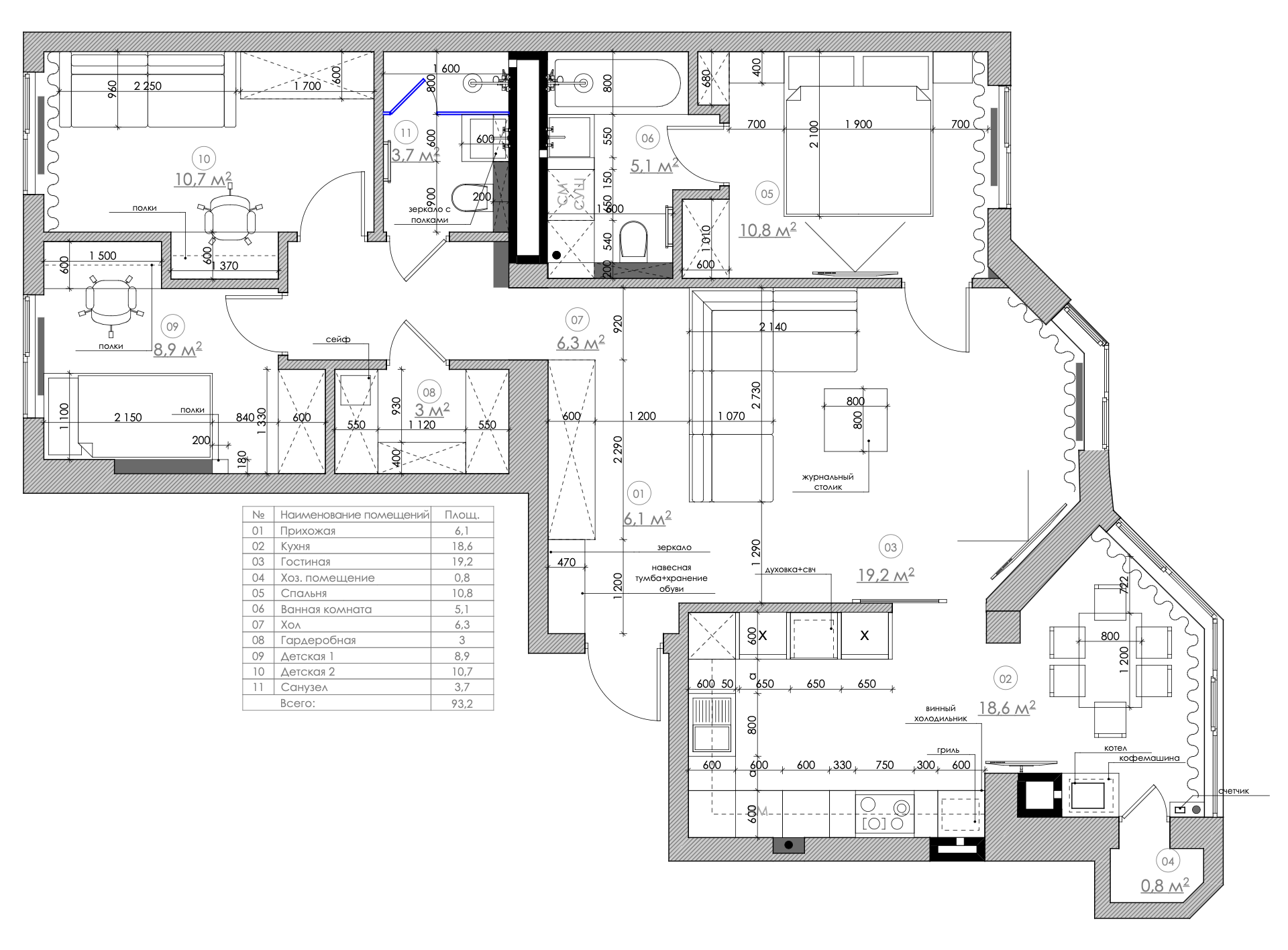
• Площа квартири – 93,2 м²
• Формат роботи – дизайн проєкт інтер'єру
• Площа квартири – 93,2 м²
• Формат роботи – дизайн проєкт інтер'єру
Незалежно від того, де саме знаходиться людина, вона намагається оточити себе красою та створити комфортні умови для проживання. Саме тому буде це дизайн проект квартири Польща чи планування інтер'єру в Україні, потрібно відповідально поставитися до вибору фахівців. Вд компетентності дизайнера інтер'єру та ремонтно-будівельної бригади залежатиме ваше відчуття комфорту, безпека в оселі.
Щоб атмосфера у квартирі була максимально затишною, а якість та візуал ремонту залишався актуальним тривалий час, варто довірити дизайн проект квартири професіоналам.
Щоб атмосфера у квартирі була максимально затишною, а якість та візуал ремонту залишався актуальним тривалий час, варто довірити дизайн проект квартири професіоналам.
В інтер'єрній студії Бєлік не просто створюються дизайн проект квартири у Гданську, інших містах Польщі та України. Наші дизайнери розробляють проекти та надаються послуги авторського нагляду (за запитом клієнта). Авторський нагляд дозволяє перекласти всі процеси зі спілкування з бригадою майстрів, контролю відтворення ідей з проекта, розв'язання спірних питань, замовлення та доставлення товарів для інтер'єру на плечі вашого дизайнера. Тобто ви позбавляйте себе клопоту з приводу втілення 3Д візуалізації та отримуєте результат, на який розраховували від самого початку.
Побачити, як саме може виглядати дизайн проект квартири у новобудові можна в портфоліо з прикладами компанії інтер’єрів Бєлік. Якщо ви шукаєте сучасний, підлаштований під побут мешканців мегаполіса та максимально зручний простір, варто звернути увагу на об’єкт в ЖК Sofia Residence.
Побачити, як саме може виглядати дизайн проект квартири у новобудові можна в портфоліо з прикладами компанії інтер’єрів Бєлік. Якщо ви шукаєте сучасний, підлаштований під побут мешканців мегаполіса та максимально зручний простір, варто звернути увагу на об’єкт в ЖК Sofia Residence.
Цей дизайн інтер'єру квартир вартість, концепція, колористика та планувальні рішення були повністю орієнтовані на індивідуальні запити замовника. В квартирі ви не зустрінете надлишку декору, кричущих кольорів, незрозумілих та незручних конструкцій. На об'єкті впроваджені виключно ефективні ідеї, надихаючи тренди та даруючи комфорт рішення.
ЖК Sofia Residence - комфортний та затишний дизайн проект квартири
Цей дизайн проект квартири ЖК Sofia Residence та сам інтер’єр виглядає цілісним, продуманим та “дорогим”. Такий ефект було досягнено завдяки вдалому поєднанню текстур, стриманій колірній гамі.
В основі інтер'єру природні, теплі відтінки. Гармонійно поєднані кольори світлого дерева (дуб або горіх), кашемірового сірого, бежевого та антрацитові акценти. Активно використовується імітація природного каменю/мармуру (кухонний фартух, стіни у ванній), вертикальні рейкові панелі та текстиль з виразним плетінням.
Одна з найсильніших сторін дизайну — це багаторівневе освітлення:
Ця квартира розрахована на родину із двома дітьми. Тому дуже важливим тут було раціональне використання простору. По всьому об'єкту були заплановані системи зберігання. Вбудовані шафи “в стелю” візуально піднімають приміщення та прибирають візуальний шум. Фасади без ручок підкреслюють мінімалізм. Ще під час розробки проекта було прийняте рішення замовити меблі у виробників. Це дозволило досягти ідеальних розмірів гарнітура та відповідності всіх елементів. Отримати якісні системи та механізми, зручне розташування полиць та ящиків.
- прихована підсвітка — світлодіодні стрічки під верхніми шафами кухні, вздовж стелі та в нішах створюють ефект “парящих” стін і додають затишку ввечері;
- декоративне світло — трендові кільцеві люстри над обіднім столом та графічні бра додають інтер’єру характеру;
- технічне світло — мінімалістичні точкові світильники, які майже непомітні на стелі.
Ця квартира розрахована на родину із двома дітьми. Тому дуже важливим тут було раціональне використання простору. По всьому об'єкту були заплановані системи зберігання. Вбудовані шафи “в стелю” візуально піднімають приміщення та прибирають візуальний шум. Фасади без ручок підкреслюють мінімалізм. Ще під час розробки проекта було прийняте рішення замовити меблі у виробників. Це дозволило досягти ідеальних розмірів гарнітура та відповідності всіх елементів. Отримати якісні системи та механізми, зручне розташування полиць та ящиків.
Для розташування пральної та сушильної машини, мийних засобів, інвентарю для прибирання зробили спеціальну колону. Використали двері прихованого монтажу. Були дотримані прямі лінії, які пом'якшуються круглими формами (обідній стіл, люстри, дзеркало у ванній).
Особливості планування у квартирі
Кухня-столова (Open Space)
Кухня П-подібна, зроблена в ніші. Використано трирівневе планування шаф. Антресолі під саму стелю збільшують об’єм зберігання. Фасади комбіновані — матовий беж та дерево. Скляна вітрина з підсвіткою додає глибини та виступає цікавим елементом гарнітура.
Обідня зона плавно перетікає з кухні. Вона розташована біля панорамного вікна, в зоні еркера. Використано овальний стіл на масивній ніжці та стільці з м’якою оббивкою. Над столом монтована футуристична люстра-кільце, яка слугує головним візуальним акцентом.
Вітальня
Вітальня не відділена від кухні масивними дверима, але відокремлена за допомогою меблевої групи. Це приміщення вважається відокремленим. В зоні відпочинку розмістили лаконічний кутовий диван кавового кольору. Стіна за телевізором оздоблена вертикальними панелями (рейками), що візуально витягує висоту стелі. Затишок додаються штори, різні освітлювальні прилади, килим, живі рослини у вазонах.
Вітальня не відділена від кухні масивними дверима, але відокремлена за допомогою меблевої групи. Це приміщення вважається відокремленим. В зоні відпочинку розмістили лаконічний кутовий диван кавового кольору. Стіна за телевізором оздоблена вертикальними панелями (рейками), що візуально витягує висоту стелі. Затишок додаються штори, різні освітлювальні прилади, килим, живі рослини у вазонах.
Дитячі кімнати
В цій новобудові їх дві. У проєкті представлено різні підходи до дитячих, що дозволило адаптувати їх простір під вік та інтереси дітей.
Варіант №1 з жовтими акцентами. Універсальна кімната, де використано прийом “колірного зонування”. Яскрава жовта смуга переходить зі стіни на меблі (тумбу). Ліжко з м’яким узголів’ям стоїть у кутку, що створює відчуття безпеки. Цікава деталь — шафа з дзеркальними вставками та відкритими полицями для книг.
Варіант №2 — футбольна тематика. Яскраво виражена кімната для хлопчика. Велика ілюстрація із футболістом на стіні та світильник у формі м’яча обиралася з урахуванням інтересів дитини. Робоче місце інтегроване в металеву конструкцію біля вікна, що забезпечує гарне природне освітлення.
Обидві кімнати облаштовані всіма необхідними меблями та елементами для гри, розвитку, відпочинку. Були створені окремі простори, які дозволяють дітям відчувати спокій та комфорт у кімнатах.
В цій новобудові їх дві. У проєкті представлено різні підходи до дитячих, що дозволило адаптувати їх простір під вік та інтереси дітей.
Варіант №1 з жовтими акцентами. Універсальна кімната, де використано прийом “колірного зонування”. Яскрава жовта смуга переходить зі стіни на меблі (тумбу). Ліжко з м’яким узголів’ям стоїть у кутку, що створює відчуття безпеки. Цікава деталь — шафа з дзеркальними вставками та відкритими полицями для книг.
Варіант №2 — футбольна тематика. Яскраво виражена кімната для хлопчика. Велика ілюстрація із футболістом на стіні та світильник у формі м’яча обиралася з урахуванням інтересів дитини. Робоче місце інтегроване в металеву конструкцію біля вікна, що забезпечує гарне природне освітлення.
Обидві кімнати облаштовані всіма необхідними меблями та елементами для гри, розвитку, відпочинку. Були створені окремі простори, які дозволяють дітям відчувати спокій та комфорт у кімнатах.
Спальня
Зона максимального спокою та тактильного комфорту. М'які вертикальні панелі до самої стелі в зоні узголів'я — це не лише про стиль. Таке рішення покращує шумоізоляцію.
Замість класичних люстр використано підвісні кулясті світильники та функціональні споти для читання (гнучкі бра). Приліжкові тумби інтегровані в загальну конструкцію зі стіновими панелями. Такі меблі виглядають дуже охайно.
Зона максимального спокою та тактильного комфорту. М'які вертикальні панелі до самої стелі в зоні узголів'я — це не лише про стиль. Таке рішення покращує шумоізоляцію.
Замість класичних люстр використано підвісні кулясті світильники та функціональні споти для читання (гнучкі бра). Приліжкові тумби інтегровані в загальну конструкцію зі стіновими панелями. Такі меблі виглядають дуже охайно.
Дизайн проект квартири в ЖК Sofia Residence — це ідеальне рішення для родини, де люблять порядок та цінують візуальний комфорт. Такий інтер'єр не набридне через пару років, оскільки база нейтральна. Якісні матеріали, ефективні рішення та продумане світло роблять його актуальним на довгі роки. Тепер замовити проєктну документацію та реалізацію можна не лише в Україні. Наші дизайнери інтер єру у Варшаві надають повний спектр послуг, з гарантіями якості та повним супроводом (за бажанням).
🔗 Дивіться також:
Подивіться нашу презентацію