ІНТЕР’ЄР ЗАЛУ В БУДИНКУ У КОТЕДЖНОМУ МІСТЕЧКУ SWEET HOME У М. ІРПІНЬ
• Локація - КМ Sweet Home у м. Ірпінь, Україна
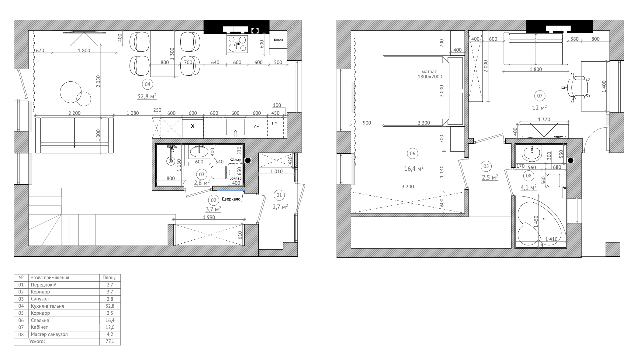
• Площа будинку – 77,1 м²
• Формат роботи – дизайн проєкт інтер'єру
• Площа будинку – 77,1 м²
• Формат роботи – дизайн проєкт інтер'єру
Мати можливість спланувати інтер'єр та втілити в життя всі ідеї з проєкта одразу — це чудово. Але іноді люди стикаються з необхідністю оформити лише інтер'єр залу в будинку (спальні, кабінету, кухні). В такому випадку варто підійти відповідально до вибору фахівця.
Адже розробка дизайн проекту навіть однієї кімнати потребує детальної проміркованості. Роль відіграє функціональність, оптимальність та доцільність рішень. Дизайн в майбутньому повинен стати частиною загальної концепції, без різких переходів та з відображенням певної ідеї.
Інтер'єрна компанія Бєлік на професійному рівні займається розробкою та реалізацією дизайн проєктів. Ви можете отримати сучасний простір, який виглядатиме доцільно протягом багатьох років. Такий дизайн проект з ремонтом не призведе до необхідності щось додавати або змінювати.
Адже розробка дизайн проекту навіть однієї кімнати потребує детальної проміркованості. Роль відіграє функціональність, оптимальність та доцільність рішень. Дизайн в майбутньому повинен стати частиною загальної концепції, без різких переходів та з відображенням певної ідеї.
Інтер'єрна компанія Бєлік на професійному рівні займається розробкою та реалізацією дизайн проєктів. Ви можете отримати сучасний простір, який виглядатиме доцільно протягом багатьох років. Такий дизайн проект з ремонтом не призведе до необхідності щось додавати або змінювати.
Щоб досягти цього результату, плануючи інтер'єр залу в будинку, дизайнери компанії Бєлік обирають оптимальні направлення. Надалі замовник може дотримуватися обраної концепції, підбираючи аналогічні матеріали, декорування, текстиль, меблі, освітлювальні прилади тощо.
Цікавим прикладом того, як може виглядати вітальня, створена фахівцями дизайн студії Бєлік слід вважати об’єкт в КМ Sweet Home у м. Ірпінь. Був запит лише на інтер'єр залу в будинку, який з першого погляду дарує відчуття візуальної естетики та комфорту. В цьому дизайні все виглядає гармонійно та має сенс. Навіть через кілька років не доведеться вносити корективи чи глобальні зміни.
Цікавим прикладом того, як може виглядати вітальня, створена фахівцями дизайн студії Бєлік слід вважати об’єкт в КМ Sweet Home у м. Ірпінь. Був запит лише на інтер'єр залу в будинку, який з першого погляду дарує відчуття візуальної естетики та комфорту. В цьому дизайні все виглядає гармонійно та має сенс. Навіть через кілька років не доведеться вносити корективи чи глобальні зміни.
Затишний та проміркований інтер'єр залу в будинку
Щоб створити інтер'єр вітальні, який не потребуватиме змін при продовженні ремонту в інших кімнатах, дизайнер пішов шляхом “золотого стандарту”.
Була обрана ідея “кремового будинку” (інтер'єру в монохромних теплих відтінках). Це добре працює завдяки кільком психологічним та візуальним факторам.
1. Візуальне розширення простору
Світлі кремові та бежеві відтінки мають високий коефіцієнт відбиття світла. На відміну від чисто білого, який може здаватися холодним або “лікарняним”, кремовий створює м'яке сяйво. Це робить навіть невеликі кімнати просторішими та легшими.
Зовсім не дивно, що такий дизайн інтер'єру квартир вартість в більшості випадків просять прорахувати замовники.
2. Ефект “Кокона”
Кремовий колір та природні текстури підсвідомо асоціюються з безпекою, спокоєм та природністю. У такому інтер'єрі нервова система швидше розслабляється. Це ідеальна база для дому, куди хочеться повернутися після активного робочого дня.
Текстура дерева є головним акцентом. Елементи з еко стиля створюють відчуття єднання з природою, що при проживанні в будинках є значною перевагою.
Щоб додати контрастів були зроблені тонкі “металеві” акценти. Прослідковуються вони через трекове освітлення, бильця сходів, змішувачі та фурнітуру. Це додає інтер'єру чіткості та "архітектурності".
Кремовий колір та природні текстури підсвідомо асоціюються з безпекою, спокоєм та природністю. У такому інтер'єрі нервова система швидше розслабляється. Це ідеальна база для дому, куди хочеться повернутися після активного робочого дня.
Текстура дерева є головним акцентом. Елементи з еко стиля створюють відчуття єднання з природою, що при проживанні в будинках є значною перевагою.
Щоб додати контрастів були зроблені тонкі “металеві” акценти. Прослідковуються вони через трекове освітлення, бильця сходів, змішувачі та фурнітуру. Це додає інтер'єру чіткості та "архітектурності".
3. Гра текстур замість кольорів
Чому цей дизайн не виглядає нудним? Секрет у різноманітності фактур.
Коли колір один, око починає чіткіше бачити різницю матеріалів, що додає інтер'єру цінності та глибини.
В оформленні простору було поєднаної:
Чому цей дизайн не виглядає нудним? Секрет у різноманітності фактур.
Коли колір один, око починає чіткіше бачити різницю матеріалів, що додає інтер'єру цінності та глибини.
В оформленні простору було поєднаної:
- матові фарбовані стіни;
- глибокі текстури дерева;
- м'який текстиль дивана, пуфа, обідніх стільців;
- холодний камінь/ керамограніт на підлозі;
- скло та метал у вигляді акцентів (дзеркала, двері в серванті для посуду, вертикальні рейки на сходах, освітлювальні прилади тощо).
4. Універсальність та актуальність
Кремова база — це як чисте полотно. Вона ніколи не вийде з моди, бо є природною. Якщо через рік захочеться змін, достатньо буде змінити лише декор (подушки, картини, вази) на більш яскраві. Додати інших акцентів і весь простір зазвучить по-новому.
5. Природне світло
Такі інтер'єри “працюють” у будь-яку пору року. В сонячний день вони сяють. В похмурий — зберігають тепло всередині, не даючи приміщенню стати сірим та депресивним.
Кремова база — це як чисте полотно. Вона ніколи не вийде з моди, бо є природною. Якщо через рік захочеться змін, достатньо буде змінити лише декор (подушки, картини, вази) на більш яскраві. Додати інших акцентів і весь простір зазвучить по-новому.
5. Природне світло
Такі інтер'єри “працюють” у будь-яку пору року. В сонячний день вони сяють. В похмурий — зберігають тепло всередині, не даючи приміщенню стати сірим та депресивним.
Попрацював дизайнер інтер'єрів не лише з підбором кольорів та фактур. Зробили інтер'єр залу в будинку КМ Sweet Home у м. Ірпінь максимально функціональним та сучасним. Для досягнення цієї мети корпусні меблі у вітальню були виконані під замовлення. Це дозволило використати кожний вільний сантиметр. Утворилася меблева група з плавними переходами кухонного гарнітура у пенал для вбудованої техніки, комору для зберігання речей у зоні коридору.
Підбір фасадів для меблів, ідентичних до панелей на стінах та навіть сходів — ефективне дизайнерське рішення. Такий хід підкреслює ідею, що кожний елемент в приміщенні виступає частиною єдиної концепції. Меблі, декорування, техніка — все перегукуються між собою, утворюючи гармонійну композицію.
Підбір фасадів для меблів, ідентичних до панелей на стінах та навіть сходів — ефективне дизайнерське рішення. Такий хід підкреслює ідею, що кожний елемент в приміщенні виступає частиною єдиної концепції. Меблі, декорування, техніка — все перегукуються між собою, утворюючи гармонійну композицію.
В КМ Sweet Home у м. Ірпінь були використані такі актуальні дизайнерські рішення:
Замовити в нашій компанії ви можете дизайн частини будинку чи оформлення всього об’єкта. Незалежно від запиту, наші фахівці виконають все на вищому рівні.
Цікавить студія інтер єру Гданськ, Варшава, інші міста? Агенція Бєлік розширила межі своєї діяльності, надаючи послуги дизайну “під ключ” не лише по Україн, а й у Польщі.
- приховане освітлення — підсвічування вздовж сходів та під полицями на кухні створює глибину, робить інтер'єр "дорожчим" у вечірній час;
- зонування — дерев’яна перегородка-шафа служить не тільки місцем для зберігання, а й розділяє вхідну зону і вітальню, не перевантажуючи простір;
- акцентне світло (люстра над обіднім столом у формі скляних куль) — це м'який органічний контраст до прямих ліній інтер'єру.
Замовити в нашій компанії ви можете дизайн частини будинку чи оформлення всього об’єкта. Незалежно від запиту, наші фахівці виконають все на вищому рівні.
Цікавить студія інтер єру Гданськ, Варшава, інші міста? Агенція Бєлік розширила межі своєї діяльності, надаючи послуги дизайну “під ключ” не лише по Україн, а й у Польщі.
Подивіться нашу презентацію