КВАРТИРИ РЕМОНТ В ЖК ФАЙНА ТАУН У КИЄВІ
• Локація - ЖК Файна Таун, Київ, Україна
• Площа квартири – 70 м²
• Формат роботи – дизайн проєкт інтер'єру
• Площа квартири – 70 м²
• Формат роботи – дизайн проєкт інтер'єру
Дизайн квартири ремонт в ЖК Файна Таун
Справжнім поціновувачам домашнього затишку та теплої атмосфери, візуальним естетам досить складно планувати свій ремонт. Адже вони прагнуть отримати дійсно гарний візуал, при цьому часто забуваючи про зручність та функціонал простору. Щоб досягти ідеальних рішень в оформленні квартирі в цілому варто ще до початку вибору шпалер спланувати дизайн.
Незалежно від того ремонт у приватному будинку це чи у квартирі, вам знадобиться дизайн проект. Саме у проектній документації дизайнер детально виконує майбутнє планування, візуал, прокладання комунікацій, впровадження інновацій та досягнення гармонії на об'єкті. Завдяки чітким обмірам квартири (будинку), обговорення з замовниками його побажань та бюджету на ремонт дизайнер інтер'єру може створити зручний простір.
В процесі розробки планувальних рішень, 3д візуалізацій та технічних документів планується кожний крок ремонту. Створюється детальна інструкція для ремонтно-будівельної бригади, яка приведе до бажаного результату.
Замовити дизайн проект інтер'єру можна в компанії Бєлік. Ми створюємо персоналізовані простори, які є відображенням індивідуальності замовників. Підлаштовані під побут, стиль та рівень життя клієнтів дизайни лишаються оптимальними впродовж багатьох років. Поміркований до дрібниць ремонт не викликає проблем та незручностей, дарує затишок та комфорт.
Вам, як клієнтам, потрібно лише звернутися у студію дизайну інтер'єрів Бєлік та замовити бажаний тип послуг:
У процесі створення інтер'єру ви можете вплинути на стиль, колористику, планувальні рішення та цікаві дизайнерські фішки. Для цього достатньо буде подивитися портфоліо з прикладами робіт інтер’єрної компанії Бєлік. Для легкого пошуку можна обговорити свої інтереси, уподобання та цікаві вам стилістичні направлення з дизайнером інтер'єрів.
Естетам та прихильникам “м’якого” сучасного оформлення варто звернути уваги на об’єкт в ЖК Файна Таун. Дизайн квартири ремонт в ній - це про візуальну насолоду, спокій та затишок. Все оформлення тут доведено до балансу.
Вам, як клієнтам, потрібно лише звернутися у студію дизайну інтер'єрів Бєлік та замовити бажаний тип послуг:
- розробка дизайну інтер'єру на проекті;
- ремонт квартири, будинку;
- дизайн під ключ - складається з розробки проектної документації, ремонтних робіт, авторського нагляду.
У процесі створення інтер'єру ви можете вплинути на стиль, колористику, планувальні рішення та цікаві дизайнерські фішки. Для цього достатньо буде подивитися портфоліо з прикладами робіт інтер’єрної компанії Бєлік. Для легкого пошуку можна обговорити свої інтереси, уподобання та цікаві вам стилістичні направлення з дизайнером інтер'єрів.
Естетам та прихильникам “м’якого” сучасного оформлення варто звернути уваги на об’єкт в ЖК Файна Таун. Дизайн квартири ремонт в ній - це про візуальну насолоду, спокій та затишок. Все оформлення тут доведено до балансу.
Затишний ремонт квартири в ЖК Файна Таун
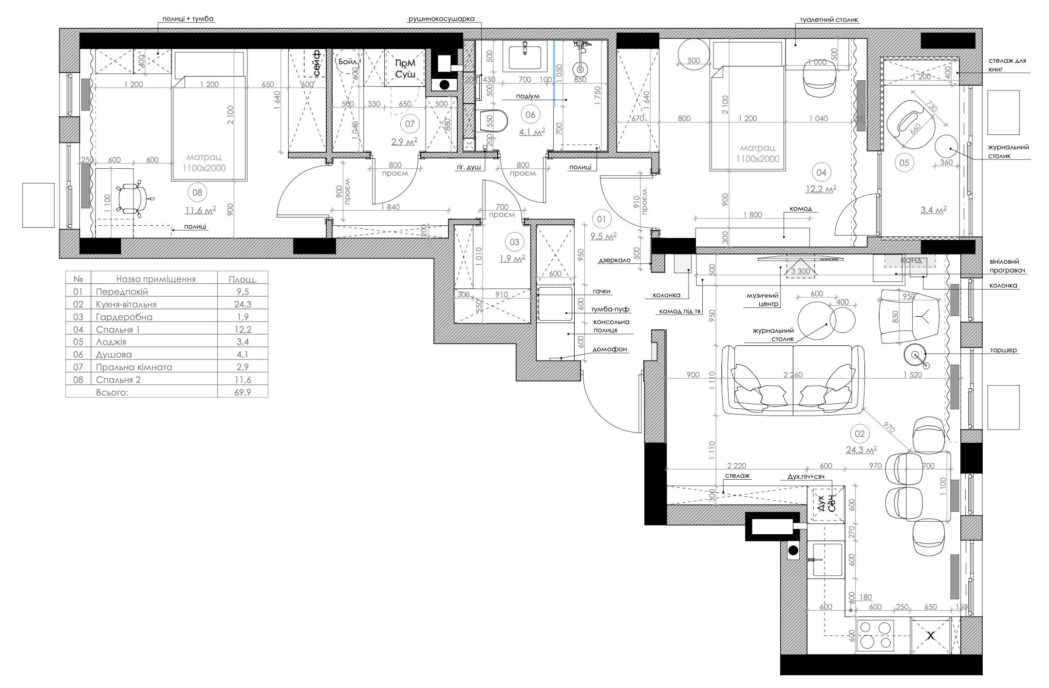
Враховуючи невеликий (до 65 м2), але досить вільний розмір квартири ремонт в ній виконувався без складних архітектурних робіт. Замість великого перепланування дизайнер вирішив на об'єкті ЖК Файна Таун використати наявний простір по-максимуму.
Квартира розділена на чіткі функціональні зони, що характерно для сучасних європейських стандартів:
- Оpen Space (кухня-вітальня), де об'єднані зони приготування їжі, обідньої групи та місце для відпочинку.;
- приватна зона - окрема спальня з робочим місцем (туалетним столиком) та дитяча кімната;
- господарський блок, де були створені пральня/комора та окрема гардеробна.
Від дверей дизайнер відмовився, де це було можливо. Тому між коридором та вітальнею-кухнею немає чіткого розподілення.
Коридор було використано максимально ефективно завдяки вбудованим системам зберігання. Меблі зливаються зі стінами, візуально не крадучи простір. Щоб досягти максимального функціоналу всі меблі були виконані під замовлення. Такий підхід дозволив використати ніші та кожний вільний сантиметр. Навіть в коморі, пральна та сушильна машини вбудовані в колону.
Замовлення меблів дозволило створити цікавий та оригінальний центральний візуальний акцент у вітальні-кухні. Скляна шафа-вітрина є складним вибором, інтегрованим у загальну систему меблевих пеналів. Наявність її - це індивідуальне побажання клієнта, яке було враховано нашими дизайнерами під час планування інтер'єру.
Для конструкції були обрані однакові із кухонним гарнітуром фасади. Це створило ефект монолітності. Скло обрали гартоване, з ефектом тонування. Додали підсвічування. Все це дозволяє бачити вміст лише при увімкненому внутрішньому світлі. У вимкненому стані шафа виглядає як темне дзеркало. Внутрішнє наповнення також було виконано з орієнтованістю на потреби замовників. Додано багато вертикальних та горизонтальних секцій різного розміру.
Ця вбудована скляна шафа розбиває масив "глухих" фасадів кухонних пеналів, додаючи простору глибини та легкості. Також вона виступає додатковим місцем для зберігання (колекційних книг, декору, гарного посуду або алкоголю). Навіть звичайні побутові речі тут виглядають, як об'єкти мистецтва.
Для конструкції були обрані однакові із кухонним гарнітуром фасади. Це створило ефект монолітності. Скло обрали гартоване, з ефектом тонування. Додали підсвічування. Все це дозволяє бачити вміст лише при увімкненому внутрішньому світлі. У вимкненому стані шафа виглядає як темне дзеркало. Внутрішнє наповнення також було виконано з орієнтованістю на потреби замовників. Додано багато вертикальних та горизонтальних секцій різного розміру.
Ця вбудована скляна шафа розбиває масив "глухих" фасадів кухонних пеналів, додаючи простору глибини та легкості. Також вона виступає додатковим місцем для зберігання (колекційних книг, декору, гарного посуду або алкоголю). Навіть звичайні побутові речі тут виглядають, як об'єкти мистецтва.
Крім цього цікавого елементу в ЖК Файна Таун були використані такі ефективні дизайнерські рішення, як:
- приховані двері - встановлені врівень зі стіною без лиштви, що створює ефект безперервної поверхні;
- системи зберігання "в стелю" - шафи та кухонні пенали займають всю висоту приміщення, що виключає накопичення пилу зверху та візуально "підіймає" стелю;
- вертикальне зонування - використання м'яких стінових панелей у спальні та вертикальних дерев'яних рейок у вітальні (за ТБ-зоною) додає динаміки та ритму інтер'єру;
- різноманітність фактур (дерево, текстиль "букле", камінь, матові поверхні) —в кожній кімнаті зустрічаються однакові фактури, відтінки, матеріали, елементи меблів та декору;
- велика кількість сценаріїв світла — магнітні трекові системи, прихована LED-підсвітка стелі та полиць, підсвічування дзеркал, акцентні дизайнерські світильники;
- наявність окремих гардеробної та пральної — це суттєво розвантажило простір, дозволивши уникнути великих корпусних шаф, комодів в кожній кімнаті;
- використання акцептних кольорів (антрацитовий, теракотовий/коричневий) та дерев'яних текстур на фоні нейтральної світло-сірої та білої колористики.
Саме плавно перетікаюча колористика тут створює ефекти візуальної гармонії та краси. Оформлення квартири ремонт в ЖК Файна Таун немає яскравих акцентів, насиченої колористики. Комбінування природних палітр дозволило досягти функціонального стиля, ідеального для мешканців мегаполіса. Кожен квадратний сантиметр на цьому об'єкті працює на комфорт, а естетика не заважає ергономіці.
Якщо ви бажаєте отримати планування вашого майбутнього інтер'єру та ремонту, варто замовити розробку проєктної документації. Саме вона стане детальною інструкцією, яку легко буде виконати досвідченій бригаді майстрів. В інтер'єрній компанії Бєлік ціни на дизайн проект квартири є фіксованими. Вони залежать лише від площі об'єкта, та не зобов'язують відразу та обов’язково замовляти ремонт в студії. Подальші дії, стосовно реалізації ідей з проекта залежать лише від вашого рішення.
Якщо ви прагнете 100% відповідності результату до ідей, спокою під час свого ремонту, дотримання запланованого кошторису та гарантій на кожний виконаний процес? То вам варто замовити реалізацію дизайн проєкта в компанії інтер'єрів Бєлік.
Якщо ви бажаєте отримати планування вашого майбутнього інтер'єру та ремонту, варто замовити розробку проєктної документації. Саме вона стане детальною інструкцією, яку легко буде виконати досвідченій бригаді майстрів. В інтер'єрній компанії Бєлік ціни на дизайн проект квартири є фіксованими. Вони залежать лише від площі об'єкта, та не зобов'язують відразу та обов’язково замовляти ремонт в студії. Подальші дії, стосовно реалізації ідей з проекта залежать лише від вашого рішення.
Якщо ви прагнете 100% відповідності результату до ідей, спокою під час свого ремонту, дотримання запланованого кошторису та гарантій на кожний виконаний процес? То вам варто замовити реалізацію дизайн проєкта в компанії інтер'єрів Бєлік.
Подивіться нашу презентацію